Little Birch House by buck&simple: A Modern Urban House Design Rooted in Stillness and Detail
A serene modern urban house design that blends resort-style living with architectural precision and material refinement in compact settings.
A Refined Urban Retreat in the Heart of Australia
In a compact urban setting on the traditional lands of the Kameygal people, Little Birch House by buck&simple redefines the notion of modern urban house design. This 320-square-meter residence is a serene, tactile escape designed to give a young family the calm of resort-style living while seamlessly integrating into the urban rhythm of daily life. Its architecture delicately balances the intimacy of a private oasis with the openness of borrowed vistas and sky-lit volumes.



Architecture That Conceals, Directs, and Connects
The home’s exterior offers a clean, tectonic geometry that contrasts with the eclectic neighborhood, presenting a harmonious and intentional visual language to the street. Beneath this minimalist façade lies a layered spatial experience. Descending from street level, residents are gradually enveloped by a lush courtyard garden, where indoor and outdoor spaces interweave to create a resort-like sanctuary. The design thoughtfully conceals utility zones while directing movement through the home with seamless transitions between public and private areas.




Sculptural Stairs and Split-Level Living
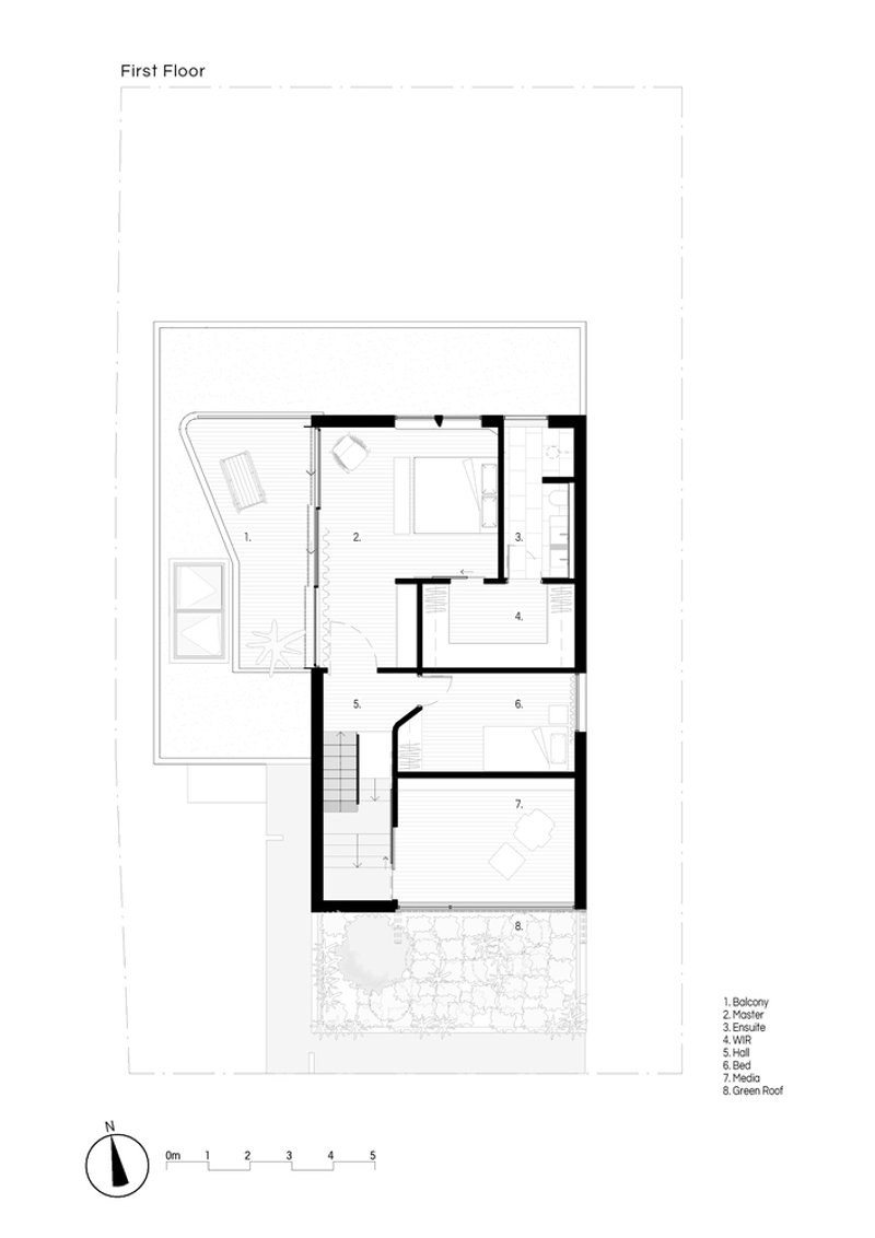
One of the standout features is a ribbonlike concrete staircase that pierces a central double-height void, serving both a functional and sculptural purpose. This central axis not only connects the lower ground living spaces to the upper zones but also enhances vertical interaction throughout the home. Split-level configurations make full use of the compact footprint, borrowing sightlines to expand perceived space and frame district views, while custom skylights connect the architecture to the sky above.



Materiality and Atmosphere
Material restraint defines the interior palette. Natural textures are elevated through minimalism—timber, concrete, soft paint finishes, and precise joinery choices form a cohesive spatial language. Finishes are refined and expressive in their simplicity, celebrating the architecture through details, joints, and intersections. These subtle shifts in texture and form invite tactile interaction and sensory immersion. Light plays a central role in shaping the home’s daily rhythm, shifting across surfaces, revealing softness and shadows that contribute to the home’s tranquil atmosphere.



An Architecture of Slowness and Sensory Experience
The home is crafted to slow down the pace of life. Every design gesture—from the hovering staircase to concealed thresholds—encourages a deliberate movement through space. Framed views connect occupants with distant greenery, sky, and horizon, forging an emotional link between inside and out. This spatial choreography fosters a balance of compression and release, stillness and movement, providing both architectural depth and emotional resonance.





Sustainability and Lasting Comfort
Beneath its quiet elegance lies a performance-driven structure. Passive design strategies ensure natural ventilation and light optimization, creating a thermally comfortable environment year-round. Apertures are strategically placed to guide sunlight into core areas while maintaining privacy. The home is designed for longevity, with robust detailing and carefully selected materials that stand the test of time. The landscape is not an afterthought but an integrated component, softening edges and blurring the line between built form and environment.





Modern Urban House Design with Lasting Serenity
Little Birch House is more than a home—it is a case study in how modern urban house design can deliver refined living without compromise. Every surface, every connection, and every void serves to heighten the experience of domestic life. It proves that within the constraints of an urban site, it is possible to cultivate calm, spaciousness, and a connection to the natural world through thoughtful design.





All photographs are works of Tim Pascoe Photographer
Popular Articles
Popular articles from the community
Fifth NRE Jazz Club – De Bever Architecten: Eindhoven’s Revitalized Cultural Hub
Historic gas factory transformed into Fifth NRE Jazz Club blending modern sustainability, jazz culture, dining, and heritage architecture seamlessly.
Free Architecture Competitions You Can Enter Right Now
No entry fees, real prizes. Here are the best free architecture competitions open for submissions in 2026.
Alton Cliff House: A Harmonious Retreat by f2a Architecture in Lake Country, Canada
Alton Cliff House blends corten steel, prefabrication, and sustainable design, creating a luxurious, energy-efficient retreat perched on Canadian cliffs.
Atelier Macri Concept Store Interior Design by CASE-REAL
Atelier Macri store features a "ko" counter, walnut wood details, cork displays, blending retail, gallery, and seamless customer experiences.
Similar Reads
You might also enjoy these articles
Free Architecture Competitions You Can Enter Right Now
No entry fees, real prizes. Here are the best free architecture competitions open for submissions in 2026.
Top 15 Architecture Competitions to Enter in 2026
From student-friendly idea competitions to prestigious international awards, here are the best architecture competitions open for entries in 2026. Updated regularly.
DIY & Engineering in Computational Design : Enter the BeeGraphy Design Awards
Showcase Your Creativity with Computational Design and Open Source Projects

Innovative Design Solutions: Award-Winning Projects from Recent Architecture Competitions
Exploring award-winning architectural projects shaping the future of design, sustainability, and community.
Explore Architecture Competitions
Discover active competitions in this discipline
The International Standard for Design Portfolios
The Global Benchmark for Architecture Dissertation Awards
The Global Benchmark for Graduation Excellence
Challenge to reimagine the Iron Throne
Comments (0)
Please login or sign up to add comments
No comments yet. Be the first to comment!