MJK Kindergarten: A Sustainable Blend of Nature and Education by HIBINOSEKKEI, Kids Design Labo, and Youji no Shiro
MJK Kindergarten integrates sustainable architecture and nature to create an inspiring, child-centered environment fostering autonomy and environmental respect.
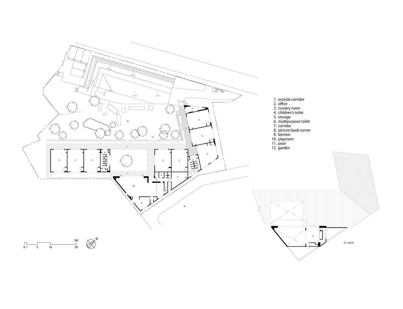
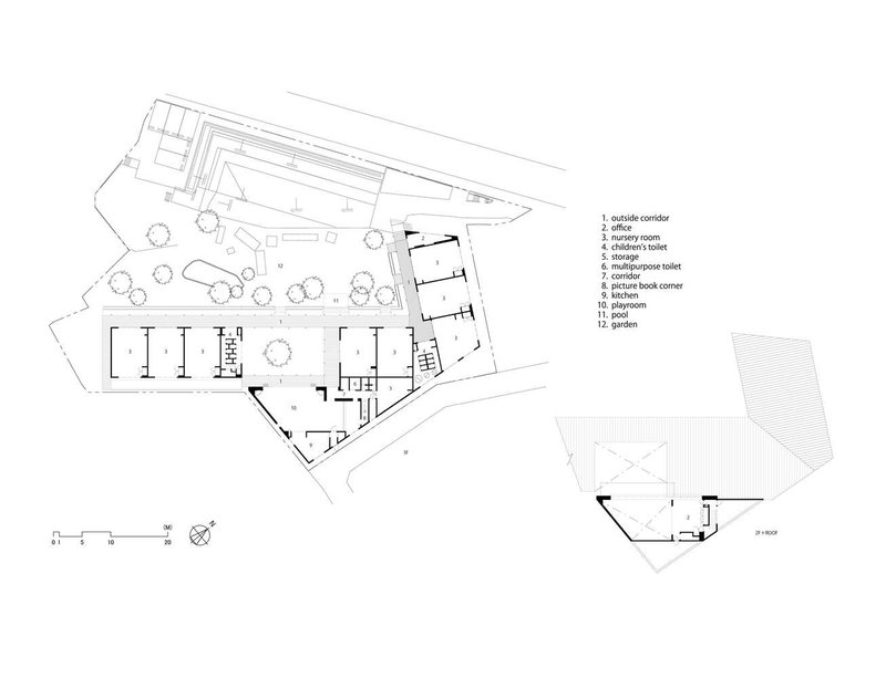
MJK Kindergarten, located in Moji, Kitakyushu City, Japan, is a transformative renovation project that redefines early childhood education through sustainable design. Designed by HIBINOSEKKEI, Kids Design Labo, and Youji no Shiro, this kindergarten incorporates nature into its architecture to foster autonomy and creativity in children. With a capacity for 240 children, the kindergarten harmonizes modern educational principles with the surrounding natural environment, creating a space where learning and nature coexist.


Embracing the Site's Natural Context
Situated in a residential area bordered by the sea to the north and mountains to the south, the kindergarten is surrounded by breathtaking natural beauty. The playground, with over three meters of elevation difference, serves as a natural extension of the site's unique topography. This environment has long been cherished by children for its trees and play areas, fostering a deep connection with nature. The renovation carefully preserves these natural elements, blurring the boundaries between indoor and outdoor spaces.


Innovative Layout and Design Principles
The kindergarten’s layout is designed to maximize interaction with nature. Classrooms are arranged in an L-shaped configuration, all facing the playground. This design ensures that children are constantly exposed to the changing environment, encouraging them to engage with their surroundings.


The external corridor, reminiscent of the traditional Japanese veranda, connects the playground with the classrooms. This semi-outdoor space allows children to experience natural phenomena such as rain and wind, refining their senses and nurturing self-awareness. The architecture encourages children to observe seasonal changes and understand the dynamic relationship between themselves and the environment.


Integrating Nature into Daily Activities
A central courtyard lies at the heart of the building, protecting the existing trees that have stood on the site since the kindergarten's inception. Adjacent to the courtyard is the dining area, featuring fully openable windows that allow children to enjoy meals while immersed in nature. By preserving these trees, the design instills a sense of respect for the environment, teaching children the importance of sustainability and the value of natural resources.


A Holistic Approach to Early Childhood Education
In an era where early childhood facilities often prioritize excessive safety and comfort, MJK Kindergarten stands out by promoting children's autonomy. The design fosters free movement, encouraging exploration and interaction with the natural environment. This approach cultivates self-directed learning and nurtures a deep connection with nature, essential for a sustainable future.

Sustainability and Architectural Excellence
MJK Kindergarten exemplifies how architecture can serve as a tool for environmental education. The thoughtful integration of natural elements and sustainable practices creates a unique learning environment that inspires both children and educators. The kindergarten is a model for modern educational architecture, proving that design can shape not just spaces but also values and behaviors.

MJK Kindergarten by HIBINOSEKKEI, Kids Design Labo, and Youji no Shiro is a visionary project that harmonizes nature, education, and sustainability. By blurring the lines between indoor and outdoor spaces, preserving natural elements, and fostering children's autonomy, this kindergarten sets a new benchmark for early childhood education. It is a testament to how architecture can shape the future by nurturing a profound connection with the natural world.
