Modern Cave Dwelling Architecture: A Case Study of the Residence in Dionisos
This article explores the Residence in Dionisos, blending ancient cave dwelling concepts with modern architecture for a multi-generational family home.
The concept of the cave as a primal shelter continues to inspire contemporary architecture, offering a blend of protection, intimacy, and connection with the environment. The Residence in Dionisos by Desypri&Misiaris Architecture exemplifies this trend, translating ancient dwelling concepts into modern architectural language.





Conceptual Framework of the Residence in Dionisos
Design Philosophy
Situated on the northern slope of Mount Penteli in Dionisos, Greece, this residence revisits the primitive notion of the cave as a shelter. Designed for a multi-generational family, the architects aimed to create a space that offers both a protective environment and a connection to the landscape.





Inspiration from Primitive Shelters
Drawing on the archetype of primitive shelters, the design integrates the idea of 'dwelling' deeply rooted in human history. This approach informs the spatial arrangement and material selection, aiming to reconnect the occupants with more genuine aspects of habitation.





Architectural Features of the Residence in Dionisos
The Use of Concrete
Monolithic Design
The primary structure, a suspended monolithic volume of exposed concrete, reflects the residence’s foundational concept. The choice of concrete not only emphasizes the solidity and security associated with caves but also adds a timeless aesthetic to the building.



Symbolic Significance
Concrete, with its earthy textures and robustness, plays a crucial role in linking the building to its archetypal inspiration while providing a contemporary edge.



Integration with the Environment
Natural Light and Spatial Dynamics
The residence’s orientation along the east-west axis maximizes natural light penetration, creating a dynamic interplay of light and shadow that shifts throughout the day and seasons, enhancing the living experience by continuously transforming the space.



Atrium and Outdoor Connections
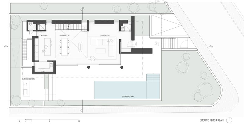
A central atrium acts as a transitional space, connecting the contrasting qualities of the interior spaces with the outdoor environment, reinforcing the cave-like feeling of shelter and openness.


Sustainable Elements and Living Experience
Energy Efficiency
The strategic orientation and material choice contribute to the home’s energy efficiency, with natural light reducing the need for artificial lighting and the thermal mass of concrete moderating the interior climate.

Living and Interaction Spaces
The ground level houses the main living areas, designed to extend seamlessly to the outdoor spaces, encouraging interaction with the natural environment and among the family members across generations.




The Relevance of Modern Cave Dwelling Architecture
The Residence in Dionisos is more than just a home; it's a modern interpretation of the ancient human need for refuge and community. This project exemplifies how modern cave dwelling architecture can offer a sanctuary that supports contemporary lifestyle demands while fostering a deep connection with our ancestral roots.




All photographs are work of George Sfakianakis