Modern Corporate Headquarters Design: Neumann Monson’s Integrated Vision for Kreg Tool CompanyModern Corporate Headquarters Design: Neumann Monson’s Integrated Vision for Kreg Tool Company

Modern Corporate Headquarters Design: Neumann Monson’s Integrated Vision for Kreg Tool Company

UNI EditorialUNI Editorial
UNI Editorial published News under Architecture on Jun 11, 2025

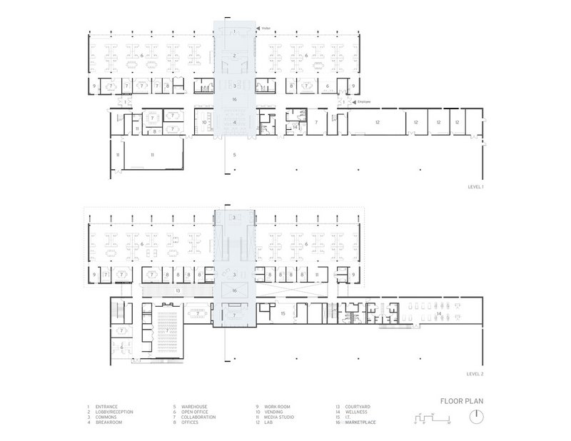
In the rolling landscape of Ankeny, Iowa, Neumann Monson Architects have delivered a forward-thinking and human-centered modern corporate headquarters design for Kreg Tool, a global leader in pocket joinery systems. This 154,500-square-foot facility not only consolidates office and manufacturing functions but also redefines how workspaces can nurture collaboration, transparency, and wellness.

Merging Office and Manufacturing Through Architecture

The project strategically unites a 50,000-square-foot office with a 105,000-square-foot manufacturing facility on a sustainably managed 25-acre campus. Designed to accommodate future expansion, the master plan emphasizes modular growth while reinforcing the company's commitment to operational agility. Instead of isolating functions, the architecture blurs distinctions between departments, dissolving traditional silos and creating a unified corporate ecosystem.

This integrated spatial logic underpins the concept of a living workplace, where innovation flows freely between hands-on production and high-level strategizing.

The Marketplace: Heart of the Headquarters

At the literal and symbolic core of the project is the Marketplace, a central communal space located at the intersection of the facility's two main axes. This multifunctional hub connects manufacturing with administration, serving as the “heart” between the facility’s “hands” and “head.”

Here, a dynamic central stair — sculptural and functional — becomes a stage for all-hands meetings, spontaneous conversations, and cross-departmental interaction. It’s more than a design element; it’s a gesture of organizational transparency and openness.

Wellness, Flexibility, and Daylighting at the Forefront

The headquarters prioritizes employee well-being with an emphasis on natural light, movement, and comfort. Generous glazing along the north façade brings in abundant daylight and connects indoor workspaces with outdoor views. East and west elevations feature clerestory windows that filter in additional light, while a full-height curtain wall on the manufacturing side echoes the transparency of the office zones.

The facility includes a state-of-the-art fitness center, a walking trail, and an open-air courtyard, encouraging physical activity and social interaction. Formal conference rooms coexist with informal collaboration zones, supporting a range of working styles.

Material Expression Rooted in Function and Place

Material choices balance innovation with a grounded pragmatism reflective of Midwestern values. The office is framed in steel with laminated wood decks, while the exterior combines a black metal rainscreen and precast concrete panels to delineate different functions without visual separation.

A photovoltaic system atop the warehouse roof reduces the building’s energy consumption, emphasizing sustainability as a core value. This commitment to environmental responsibility is as architectural as it is ethical.

A Model for Contemporary Workplace Design

The modern corporate headquarters design of Kreg Tool goes beyond the physical merging of departments — it reflects a deeper corporate philosophy of employee ownership, connectivity, and long-term adaptability. The architecture acts as a catalyst for organizational transformation, enhancing performance while reinforcing shared values.

In Neumann Monson’s hands, the headquarters becomes a strategic asset — one that is not only sustainable and flexible but also distinctly human.

All Photographs are works of Cameron Campbell Integrated Studio 

UNI EditorialUNI Editorial

UNI Editorial

Where architecture meets innovation, through curated news, insights, and reviews from around the globe.

UNI EditorialUNI Editorial
Search in