Modern Sustainable Architecture: A Closer Look at 54 Social Housing in Inca, Illes Balears
Explore the innovative design and sustainability features of 54 Social Housing in Inca, a model of modern ecological architecture.
The project 54 Social Housing in Inca, Illes Balears, designed by Joan Josep Fortuny Giró and Alventosa Morell Arquitectes, is a sterling example of modern sustainable architecture. This long-form article delves deep into the architectural features, sustainable practices, and urban integration of this unique housing development, providing an insightful overview for architects, students, and enthusiasts of sustainable design.


Sustainable Design Principles and Architecture
Urban Integration and Sustainable Architecture
Located in Inca, Spain, this project is not just a housing solution but a model of urban integration. The design effectively addresses the challenges posed by the local environment, including the terrain's strong unevenness. By elevating the building to the upper level, the architects have created an accessible and practical entry point that aligns with Raiguer Avenue, promoting ease of access and environmental harmony.



Innovative Use of Space and Natural Resources
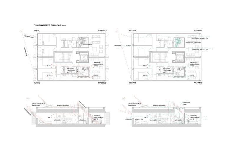
The north-south orientation of the building harnesses optimal sunlight and wind, contributing to energy efficiency. The layout includes two independent volumes separated by a public space, enhancing community interaction while ensuring privacy. Each apartment is thoughtfully designed with a central wet core, facilitating distinct day and night zones tailored to sun orientation, wind, and scenic views.



Detailed Overview of Environmental Techniques and Materials
Eco-Friendly Materials and Construction Techniques
The structure's foundation and walls use locally-sourced materials, significantly reducing the carbon footprint. The use of reticular concrete slabs and metal pillars not only provides stability but also supports large spans without excessive material use. The facade employs a double ceramic layer with recycled cotton insulation, showcasing a commitment to sustainable building practices.


Thermal Efficiency and Renewable Energy
Exterior insulation features sprayed cork and coarse lime, topped with fine lime containing natural pigments, enhancing the building’s thermal efficiency. The roofs are designed with an inverted insulation system, waterproofed and covered with recycled gravel, which supports photovoltaic panels and aerothermal systems, demonstrating an advanced approach to sustainable energy use.


Architectural Aesthetics and Community Features
Design Aesthetics and Functional Spaces
The architectural aesthetics of 54 Social Housing blend seamlessly with functional living spaces. Each housing unit includes private gardens or terraces, promoting outdoor living and connection with nature. The communal areas are thoughtfully designed with eco-friendly, permeable surfaces and native Jacaranda trees providing shade and beauty.




Community Engagement and Shared Spaces
The ground floor features community spaces that are vital for resident interaction and engagement. These areas are designed with concrete and draining gravel pavements, facilitating natural water absorption and contributing to the site’s ecological balance.



The Future of Architecture in Sustainable Housing
The 54 Social Housing project in Inca represents a forward-thinking approach to sustainable urban living. By integrating modern architectural techniques with eco-friendly materials and energy-efficient systems, this development sets a benchmark for future projects worldwide. It stands as a testament to how architecture can play a crucial role in addressing environmental challenges while providing affordable, aesthetically pleasing, and sustainable housing solutions.
This exploration of 54 Social Housing not only highlights its innovative design but also underscores the importance of sustainability in modern architecture, making it a valuable resource for anyone interested in the future of environmentally responsible construction.


All photographs are work of Jose Hevia