Modernist Townhouse Renovation in Hampstead by Studio Hagen Hall
A sustainable and refined modernist townhouse renovation in London’s Hampstead revives mid-century charm with spatial and material elegance.
A Sensitive Revival of Post-War Architecture
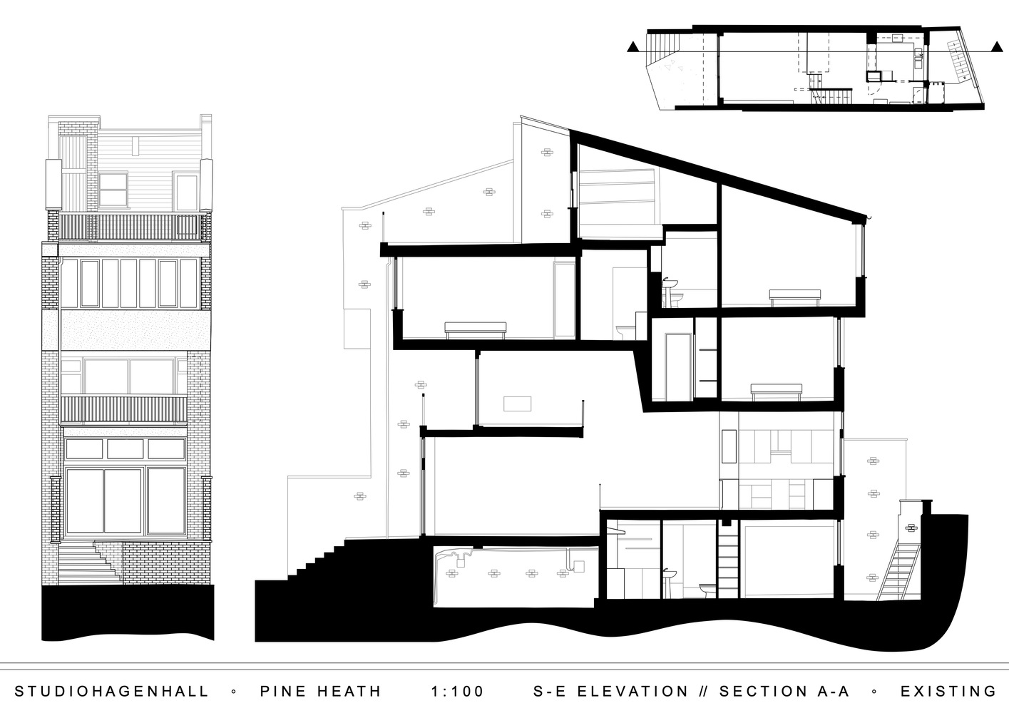
Located within the verdant Hampstead Conservation Area in North London, the Pine Heath Townhouse by Studio Hagen Hall is a masterful renovation that celebrates the legacy of post-war modernist architecture while bringing the home into the present with sustainable upgrades and refined spatial planning. Originally designed by Ted Levy, Benjamin & Partners in the late 1960s, the townhouse is one of a cluster of nine homes inspired by Cape Town’s coastal developments. While many of the neighboring homes have been stripped of their mid-century character, Pine Heath retains much of its original charm, now thoughtfully reimagined for contemporary living.





From Modest Refurbishment to Comprehensive Restoration
Initially intended as a light refurbishment focusing on the kitchen, bathrooms, and windows, the project evolved into a full-scale renovation upon discovery of the home's underlying potential. Studio Hagen Hall proposed a holistic design strategy to reintroduce the house’s modernist soul, while enhancing energy efficiency, operational performance, and daily functionality. The architectural team focused on creating a broken-plan layout that accommodates the needs of a growing family and responds elegantly to the original structure’s vertical configuration.





Layered Spatial Strategy and Functional Elegance
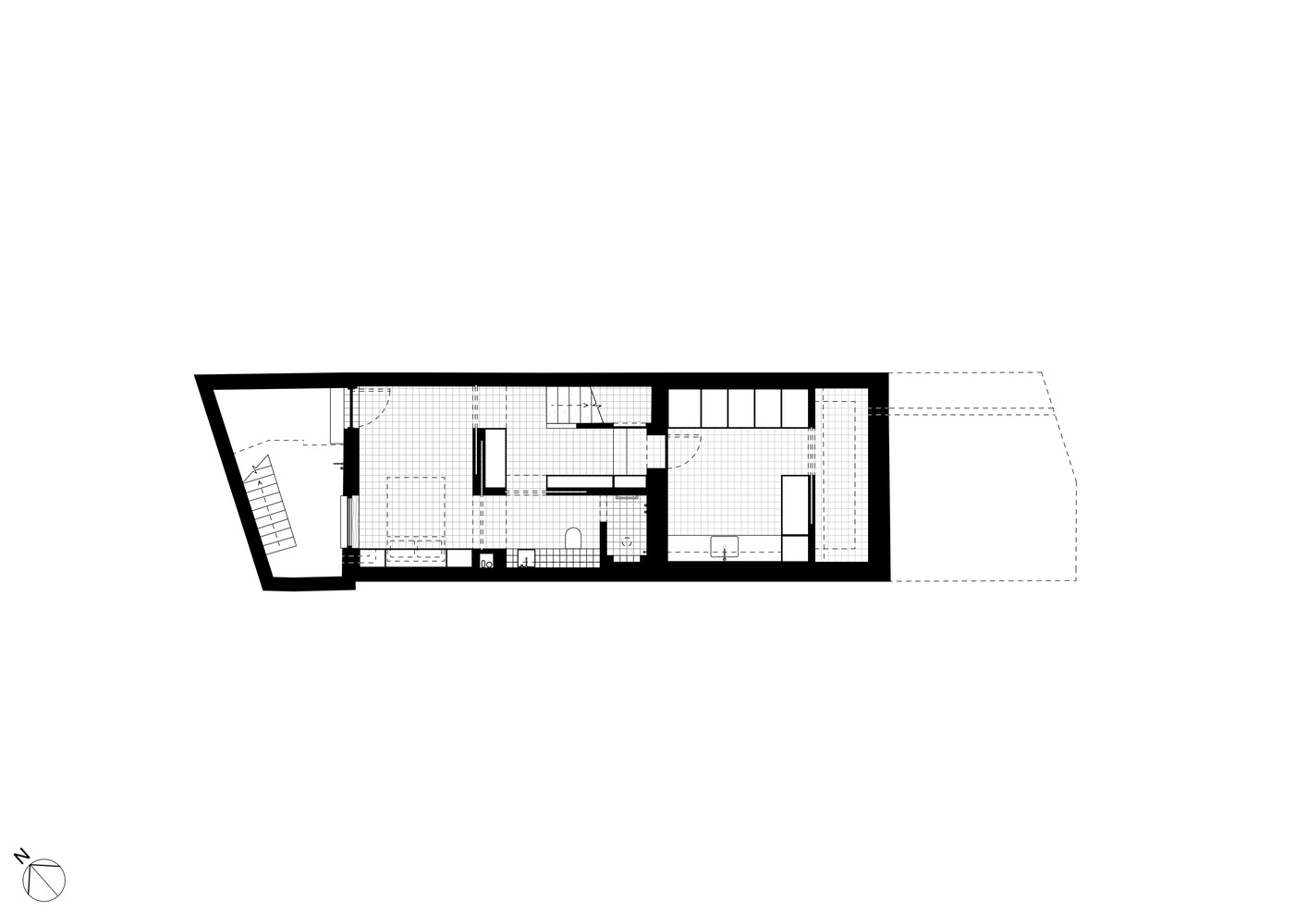
Spanning five levels, the home now balances intimate private areas with multifunctional shared spaces. A fourth bedroom suite and gym were added to the basement, while the top floor houses a guest pod and office. The reconfiguration of the plan establishes seamless transitions between indoor and outdoor zones, introducing visual and physical connectivity. The central stairwell, a defining feature, acts as the project’s spatial spine. Pocket doors, cleverly realigned to allow axial views from front to back, amplify the home's sense of openness while preserving privacy.




Material Heritage and Sustainable Craftsmanship
The design pays particular homage to the existing material palette, especially the use of Paraná pine—a rare and now endangered species. Rather than discarding or replacing this material, Studio Hagen Hall sensitively worked around it, letting it inform the aesthetic direction of the project. Floor-to-ceiling timber-lined portals frame views and transitions, while the continuity of detailing—seen in datum lines, tile grids, and joinery cut at 45-degree angles—underscores the meticulous execution of the renovation.





Light, Flow, and the Return of Modernist Character
Natural light and thoughtful sightlines define the spatial experience throughout the home. Built-in storage units are repositioned to optimize views, and large picture windows and reconfigured thresholds ensure unobstructed sightlines across the plan. Upon entry, a cloak area with seating opens directly to garden views, guiding the visitor along a coherent visual narrative. Every aspect of the design reflects Studio Hagen Hall’s dedication to spatial clarity and sensitive modernist revival.








A Blueprint for Modernist Restoration
The Pine Heath Townhouse is not merely a home upgrade—it’s a strategic restoration that reasserts the value of mid-century architectural ideals in today's context. It demonstrates how careful material preservation, modern energy-efficient interventions, and spatial rethinking can harmonize heritage with contemporary living. For architecture enthusiasts and designers alike, this project offers a compelling case study in modernist townhouse renovation—thoughtful, enduring, and deeply attuned to its history.







Popular Articles
Popular articles from the community
Alton Cliff House: A Harmonious Retreat by f2a Architecture in Lake Country, Canada
Alton Cliff House blends corten steel, prefabrication, and sustainable design, creating a luxurious, energy-efficient retreat perched on Canadian cliffs.
Atelier Macri Concept Store Interior Design by CASE-REAL
Atelier Macri store features a "ko" counter, walnut wood details, cork displays, blending retail, gallery, and seamless customer experiences.
Free Architecture Competitions You Can Enter Right Now
No entry fees, real prizes. Here are the best free architecture competitions open for submissions in 2026.
Gads Hill Early Learning Center by JGMA: Adaptive Reuse Shaping Community-Focused Educational Architecture
Adaptive reuse transforms fragmented structure into vibrant early learning center with playful façade, natural light, and community-focused sustainable design.
Similar Reads
You might also enjoy these articles
Free Architecture Competitions You Can Enter Right Now
No entry fees, real prizes. Here are the best free architecture competitions open for submissions in 2026.
Top 15 Architecture Competitions to Enter in 2026
From student-friendly idea competitions to prestigious international awards, here are the best architecture competitions open for entries in 2026. Updated regularly.
DIY & Engineering in Computational Design : Enter the BeeGraphy Design Awards
Showcase Your Creativity with Computational Design and Open Source Projects

Innovative Design Solutions: Award-Winning Projects from Recent Architecture Competitions
Exploring award-winning architectural projects shaping the future of design, sustainability, and community.
Explore Architecture Competitions
Discover active competitions in this discipline
The International Standard for Design Portfolios
The Global Benchmark for Architecture Dissertation Awards
The Global Benchmark for Graduation Excellence
Challenge to reimagine the Iron Throne
Comments (0)
Please login or sign up to add comments
No comments yet. Be the first to comment!