Puzzle Home
Modular Home
Above all of the places in the world, New York City has its own cultural texture which can be tried to be summarized as daring, standing out, and bold. In the fast rhythm of the city, Houston Street is one of the busiest areas. The streets witness people from various backgrounds and cultures, including the young working class, who wants to have a fresh start. The ones who have come with a big dream but small opportunities. Therefore, looking for an affordable place until they put everything on track. This is where the Puzzle Home comes into the frame.
The idea of modularity in architecture has always been a discussion. The narrow hallways, limited measurements, ventilation, natural light, privacy becoming more transparent… hence, the life becoming more robotic and standardized. The idea of Puzzle Home is to break this feeling of being cornered while forming a common ground with architecture and fundamental needs. These needs can be identified as but not limited to; leisure time, sleeping, cooking, eating, relaxing, greenery, and so on. Putting the key actions and the brief which has been provided under consideration, the Puzzle Home was designed to come up with architectural solutions to the formerly identified problems.
Since the area is a narrow alley, one side of the modules was going to face the wall and the opposite side would face the circulation. According to this idea, we have tried modules in square and rectangle because these shapes would give us the highest surface area. Later on, the module with the rectangle shape was chosen and the layout of the modules was studied. Putting the modules on top of each other like blocks would have suited the height restrictions. However, that would have given a sense of stress and loneliness to the residents. We wanted to allow socializing and taking out the best from this 30 sqm module. Hence, we formed spaces in between the modules for multiple uses. For instance, it can be used for storage, hobby purposes, having a cup of tea with the neighbor, or green terraces. Later on, we wanted to make a connection with the city and interact with the surrounding neighbors. Therefore, we formed a space that opens up towards the street so others can stop by at their lunch break, having a meal from the Whole Food. The circulation was dealt with at the backside of the alley so that the housing can have continuity in the design and the security, lobby, and staff area was put in the middle space on the ground floor. People can check in or check out easily before going up.
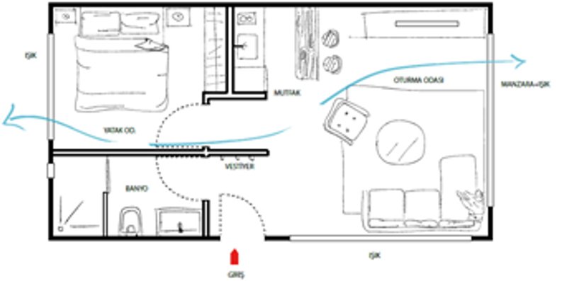
We wanted to take in the natural light and ventilation as much as possible, however, since the surrounding buildings are taller than 12 meters, it was challenging for us to decide on such a plan. The module was divided into three parts: private area, commune area, wet area. We wanted to maintain privacy as much as possible by separating the sleeping area from the living area. We also wanted to take this idea of modularity into interior design. Hence, the furniture used also has modular qualities. The couch and the bed can be used interchangeably. The cupboards can also differ in size.
The name comes from the positioning of the modules in the steel structural frame. Since one of the main aims of the design is portability so that the structure can be relocated to different areas, the number of houses and the height of the structure can change accordingly. Hence, the houses are positioned in such a way that the light and the ventilation will be affected at a minimum because of the density of the whole housing. This forms a puzzle-like layout that can be further continued when necessary. Moreover, this layout also forms spaces between modules that can be used for various purposes such as storage, socializing, terraces… On the ground level, the spaces are used as an event space on the front, and a space for the lobby, the security, and the staff purposes. The event space is a meeting point for others passing by, just grabbing a coffee or a meal from Whole Foods and sitting there just spending time with some friends. On the upper floors, the spaces can be used for a hobby, storage, or any other purpose if desired.
Access to the modules is provided from the stairs and the elevator, which are located on the back of the area. The aim of this is to prevent privacy and the security of the housing. The main material used for construction for the stairs, elevator, and structure is steel since it suits the best for portability purposes. Also, the natural light and ventilation are provided by the openings of the module and the layout of the housing. The interior is designed considering the ideas of modularity and multi-use. The furniture can be functioned according to the needs of the user and can be relocalized as wanted.




