Shaanxi Culture and Art Museum: A Sunken Cultural Landscape Shaping a New Immersive Theater Paradigm
Sunken cultural complex with immersive theater, blending heritage, technology, and landscape to create dynamic public spaces and a new performance experience.
Located in Xi’an’s Xixian New Area, the Shaanxi Culture and Art Museum (Phase 1) by TJAD Atelier L+ is a large-scale cultural complex that reinterprets history through contemporary architecture, technology, and spatial innovation. Positioned near the archaeological remains of Epang Palace and other significant heritage sites, the project operates within a highly sensitive cultural landscape, where strict height and planning regulations shape its architectural response.


Rather than competing with its historical surroundings, the design adopts a strategy of integration and restraint. The entire complex is partially sunken into the ground, lowering the site by approximately 1.5 meters. This gesture reduces the visual impact of the buildings while creating a calm, enclosed spatial atmosphere. The architecture appears to emerge from the earth, echoing the rammed-earth foundations of Qin and Han dynasty structures and establishing a direct dialogue with the site’s historical layers.



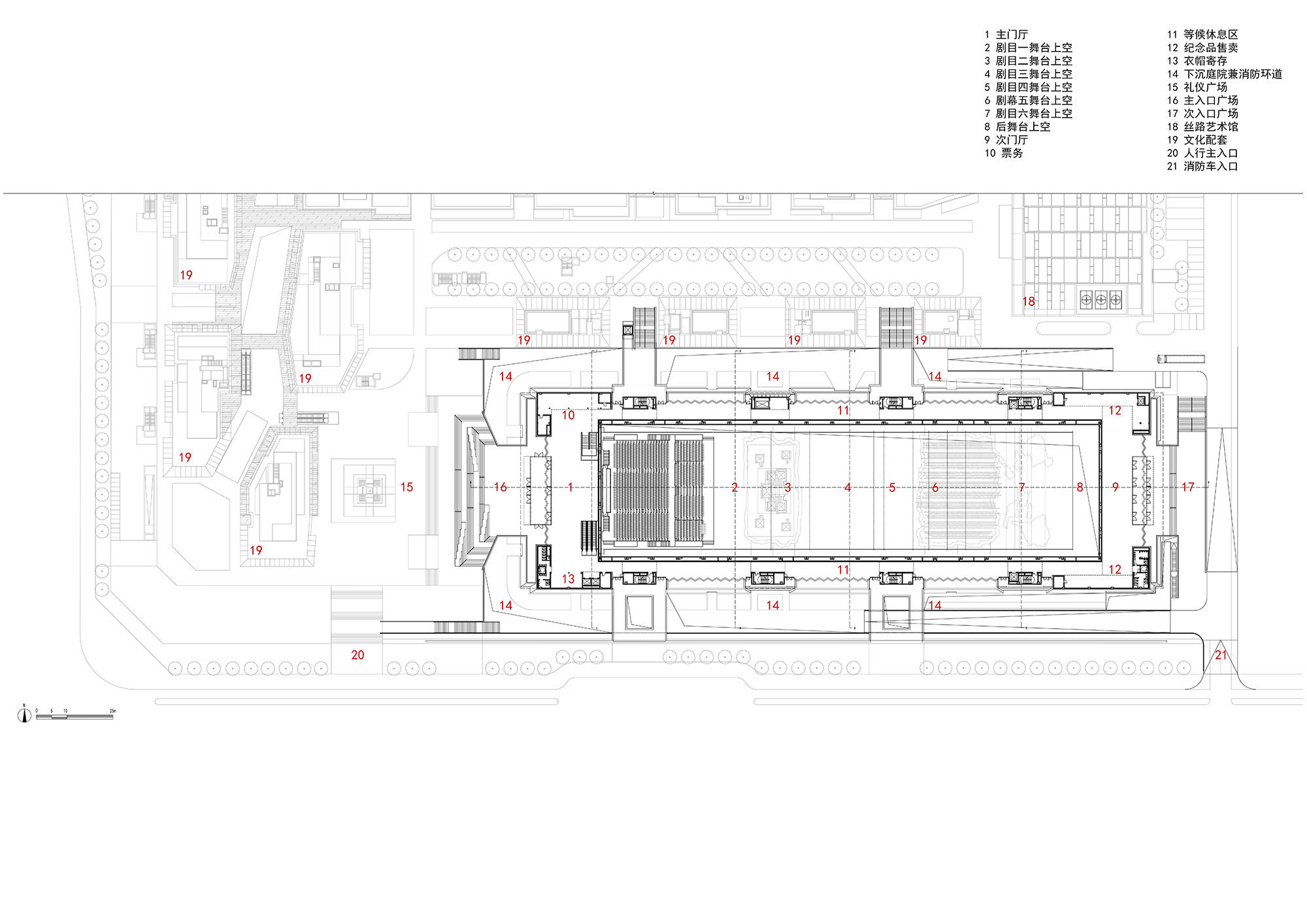
The masterplan draws inspiration from the traditional Li-Fang urban layout, organizing the complex through a network of intersecting streets and courtyards. Public spaces are distributed between the major program elements: including the performing arts theater, the Silk Road Art Museum, and supporting facilities: forming a layered system of plazas, gardens, terraces, and ramps. This multi-level landscape creates a continuous pedestrian experience, encouraging exploration and interaction.


The first phase focuses on the performing arts theater, a 32,000-square-meter structure that serves as the centerpiece of the development. Positioned strategically within the less restrictive height zone, the theater balances monumentality with subtle integration into the terrain. Its base is deeply embedded, with the stage pit descending up to eight meters below ground level, reinforcing the sense of rootedness.



Architecturally, the building expresses a duality between mass and lightness. The lower portion is clad in textured concrete with horizontal layering, emphasizing its connection to the ground. Above, the structure transitions into a lighter composition of transparent glass façades and semi-reflective aluminum roofing. This contrast creates a visual dialogue between solidity and openness, tradition and modernity.

Inside, the theater redefines conventional performance spaces through an innovative “super theater” concept. Designed in collaboration with stage director George Tsypin, the space features a vast integrated hall measuring approximately 160 meters in length and 40 meters in width. Unlike traditional theaters with fixed seating, this design incorporates movable seating and a flexible stage system, allowing the performance environment to transform dynamically.

The theater accommodates around 1,500 seats, all designed to shift in relation to the stage, breaking down the boundary between audience and performance. Advanced lighting, sound, and multimedia systems further enhance this immersive experience, creating a fully integrated environment where architecture and performance merge. This pioneering approach has led to the theater being recognized as the world’s first large-scale moving high-tech theater.


Surrounding the main performance space are multiple levels of public and support areas, including lobbies, lounges, cafés, and cultural spaces. Circulation is carefully organized both horizontally and vertically, ensuring efficient movement for visitors, performers, and staff. The integration of these spaces supports a seamless operational flow while enriching the overall user experience.


Beyond the building itself, the project contributes to a broader cultural and economic vision. By combining architecture, technology, and tourism, the development aims to become a key cultural landmark and a driver of regional growth. Its inclusion in major cultural initiatives underscores its importance within China’s evolving cultural landscape.


Ultimately, the Shaanxi Culture and Art Museum represents a new model of cultural infrastructure. It bridges past and present, grounding itself in historical context while embracing technological innovation. Through its sunken form, layered public spaces, and immersive performance environment, the project transforms architecture into an experiential medium: one that redefines how culture is produced, shared, and experienced.



All the Photographs are works of Schran Image
Popular Articles
Popular articles from the community
Inverted Architecture Installation by Studio Link-Arc: Exploring the Intersection of Architecture and Living Organisms
Inverted Architecture Installation by Studio Link-Arc blends mycelium, sustainability, inverted design, ecological cycles, and urban adaptive architecture in Shenzhen.
Alton Cliff House: A Harmonious Retreat by f2a Architecture in Lake Country, Canada
Alton Cliff House blends corten steel, prefabrication, and sustainable design, creating a luxurious, energy-efficient retreat perched on Canadian cliffs.
Gads Hill Early Learning Center by JGMA: Adaptive Reuse Shaping Community-Focused Educational Architecture
Adaptive reuse transforms fragmented structure into vibrant early learning center with playful façade, natural light, and community-focused sustainable design.
Similar Reads
You might also enjoy these articles
Free Architecture Competitions You Can Enter Right Now
No entry fees, real prizes. Here are the best free architecture competitions open for submissions in 2026.
Top 15 Architecture Competitions to Enter in 2026
From student-friendly idea competitions to prestigious international awards, here are the best architecture competitions open for entries in 2026. Updated regularly.
DIY & Engineering in Computational Design : Enter the BeeGraphy Design Awards
Showcase Your Creativity with Computational Design and Open Source Projects

Innovative Design Solutions: Award-Winning Projects from Recent Architecture Competitions
Exploring award-winning architectural projects shaping the future of design, sustainability, and community.
Explore Architecture Competitions
Discover active competitions in this discipline
The International Standard for Design Portfolios
The Global Benchmark for Architecture Dissertation Awards
The Global Benchmark for Graduation Excellence
Challenge to design an urban locus of culture and heritage
Comments (0)
Please login or sign up to add comments
No comments yet. Be the first to comment!