Small Apartment Renovation in Buenos Aires: A Flexible Living Space by Pedro Ignacio Yáñez + Carolina Recondo
A minimalist small apartment renovation in Buenos Aires reimagines space, materials, and daily life for adaptable modern urban living.
A Thoughtful Transformation for Contemporary Urban Living
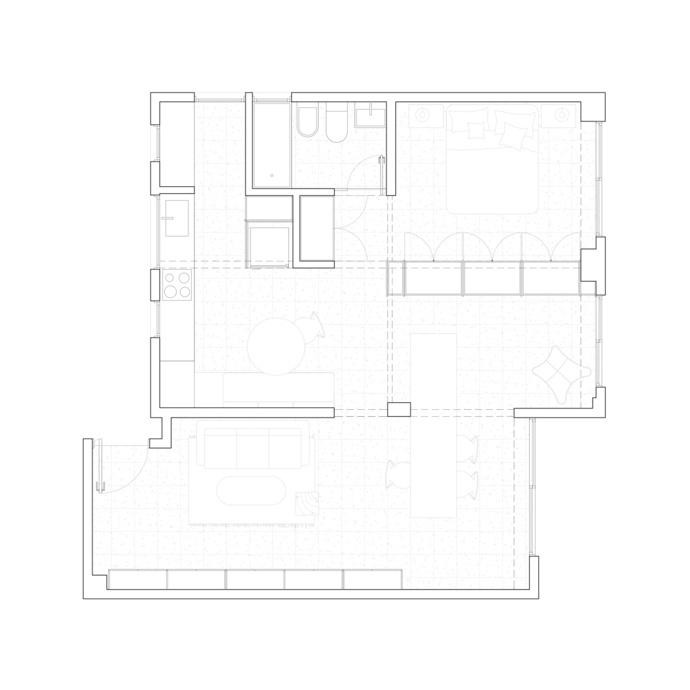
In the heart of Buenos Aires, architects Pedro Ignacio Yáñez and Carolina Recondo have redefined the concept of home with their small apartment renovation project designed for Sofia, a young woman who both lives and works in the space. Originally a compartmentalized 70m² apartment intended for a traditional family structure, the dwelling underwent a complete transformation to support modern, solo living.




Rethinking Boundaries in a Compact Urban Home
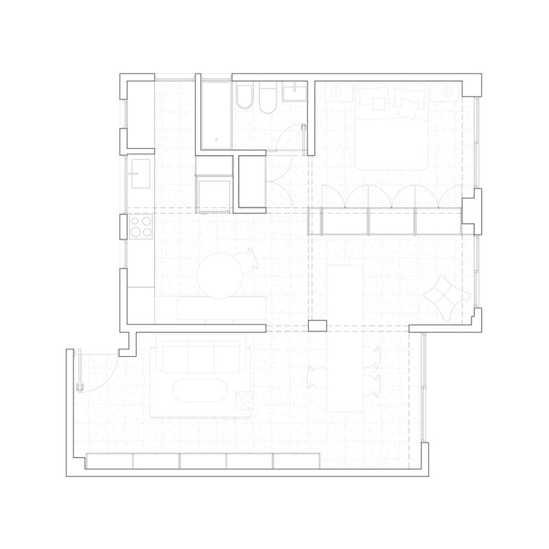
The renovation began with a fundamental question: does a single occupant truly need rooms that divide everyday activities, or is it possible to embrace a more fluid way of living? The result is a striking reinterpretation of space that dismisses rigid divisions in favor of openness, flexibility, and natural connectivity. Non-essential walls were removed to unify areas, enhancing ventilation and natural light across the apartment. This spatial continuity empowers the resident to move effortlessly between work, relaxation, and social interaction within a single open framework.



Material Harmony and Minimalist Design Choices
Material selection played a pivotal role in the design narrative. The renovation is grounded in a philosophy of simplicity and unity: one flooring surface, one consistent wood material, and a repeated lighting motif. The use of white granite mosaic flooring—uncovered from beneath prior artificial finishes—asserts a connection to the apartment's original essence. At the same time, the exposed concrete structure adds a raw architectural character that contrasts beautifully with the warmth of wood.




Three custom pieces crafted from incense wood—a wardrobe, a kitchen bench, and a chest of drawers—along with a continuous metal modular bookshelf, form the functional and aesthetic core of the interior. These elements serve not only as furniture but also as spatial organizers, quietly reinforcing the apartment’s minimalist yet adaptable identity.




A Framework for Adaptive Living
This small apartment renovation was designed not just for Sofia’s present, but also for potential future shifts. Whether hosting guests, celebrating milestones, or embracing new routines, the space can transform seamlessly. By stripping the home to its essentials and rebuilding it with adaptability in mind, the architects have created an elegant, timeless environment that supports modern urban life.





Sofia’s apartment stands as a compelling model for small apartment renovation—demonstrating how intentional design and strategic material use can dramatically expand the quality of life in compact urban settings. The design blurs the boundaries between zones while maintaining structure through carefully chosen textures, light, and furnishings. In doing so, it proves that even a modest footprint can offer boundless possibilities for contemporary living.



All Photographs are works of Pedro Ignacio Yáñez
Popular Articles
Popular articles from the community
Atelier Macri Concept Store Interior Design by CASE-REAL
Atelier Macri store features a "ko" counter, walnut wood details, cork displays, blending retail, gallery, and seamless customer experiences.
Split House: A Compact Urban Home Blending Privacy, Light, and Flexible Living in Japan
Compact Japanese home featuring DOMA space, flexible café potential, passive lighting, privacy zoning, and sustainable urban living design.
Alton Cliff House: A Harmonious Retreat by f2a Architecture in Lake Country, Canada
Alton Cliff House blends corten steel, prefabrication, and sustainable design, creating a luxurious, energy-efficient retreat perched on Canadian cliffs.
Inverted Architecture Installation by Studio Link-Arc: Exploring the Intersection of Architecture and Living Organisms
Inverted Architecture Installation by Studio Link-Arc blends mycelium, sustainability, inverted design, ecological cycles, and urban adaptive architecture in Shenzhen.
Similar Reads
You might also enjoy these articles
Free Architecture Competitions You Can Enter Right Now
No entry fees, real prizes. Here are the best free architecture competitions open for submissions in 2026.
Top 15 Architecture Competitions to Enter in 2026
From student-friendly idea competitions to prestigious international awards, here are the best architecture competitions open for entries in 2026. Updated regularly.
DIY & Engineering in Computational Design : Enter the BeeGraphy Design Awards
Showcase Your Creativity with Computational Design and Open Source Projects

Innovative Design Solutions: Award-Winning Projects from Recent Architecture Competitions
Exploring award-winning architectural projects shaping the future of design, sustainability, and community.
Explore Architecture Competitions
Discover active competitions in this discipline
The International Standard for Design Portfolios
The Global Benchmark for Architecture Dissertation Awards
The Global Benchmark for Graduation Excellence
Challenge to reimagine the Iron Throne
Comments (0)
Please login or sign up to add comments
No comments yet. Be the first to comment!