Spelman College Mary Schmidt Campbell Center Studio Gang: A New Gateway for Innovation and the ArtsSpelman College Mary Schmidt Campbell Center Studio Gang: A New Gateway for Innovation and the Arts

Spelman College Mary Schmidt Campbell Center Studio Gang: A New Gateway for Innovation and the Arts

UNI Editorial
UNI Editorial published Blog under Architecture on

The Spelman College Mary Schmidt Campbell Center Studio Gang is a groundbreaking new academic building dedicated to fostering innovation across arts and STEM. Designed by the internationally recognized architectural practice Studio Gang, led by Jeanne Gang, the 82,500-square-foot facility is Spelman’s first new academic building in nearly 25 years. More than a physical expansion, the Center redefines the college’s relationship with its surrounding Westside Atlanta community while offering transformative opportunities for students of African descent in fields where they remain underrepresented.

Article image
Article image
Article image
Article image

A Vision for Cross-Disciplinary Learning

The Mary Schmidt Campbell Center Studio Gang was conceived as a hub for collaboration and exchange. The building is designed to break down silos between arts and sciences, creating a cross-disciplinary environment that empowers women of African descent to excel as technologists, inventors, entrepreneurs, and artists. Spelman’s leadership describes the project as both a transformative learning space and a statement of commitment to innovation, community, and inclusivity.

Article image
Article image
Article image
Article image

Architectural Design and Façade Expression

Defining a new “front porch” for the campus, the Spelman College Mary Schmidt Campbell Center Studio Gang embraces the community with a distinctive façade and welcoming threshold spaces. The ground floor features Flemish bonded brick that recalls Georgia’s red clay soil and references Spelman’s historic architecture, while the upper volumes of sleek metal panels express the contemporary spirit of innovation.

Article image
Article image
Article image

The façade integrates layered brise soleils and screens that bring daylight into the interior while providing shade, reducing glare, and improving energy efficiency. A recessed ground level creates shaded outdoor porches that extend gathering spaces into the public realm, reinforcing the building’s role as a bridge between campus and city.

Article image
Article image

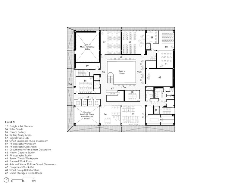
Spaces for Collaboration and Innovation

The Center is organized around two primary hubs of collaboration, anchored by a central Forum. This highly visible and flexible space functions as the heart of the building, hosting performances, exhibitions, and interactive gatherings. A skylight above the Forum introduces natural light deep into the interior, symbolizing openness and transparency.

Article image
Article image

One of the building’s most prominent features is the Arthur M. Blank Innovation Lab, an interdisciplinary maker space located at the southwest corner. This lab offers state-of-the-art tools and expansive glazing, enabling students to experiment, collaborate, and observe. Above, clerestory windows allow connections between quieter classrooms and the lab, promoting cross-pollination of ideas.

Article image
Article image

Classrooms and workspaces are positioned on the upper levels, where circulation is designed to encourage chance encounters and creative dialogue. An elevated walkway links the Center directly with Spelman’s historic campus, ensuring both accessibility and security.

Article image
Article image

Environmental Strategies and Sustainability

Sustainability is central to the Mary Schmidt Campbell Center Studio Gang. Passive shading, patterned sunshades, and responsive screens reduce solar heat gain and mechanical loads, increasing the building’s environmental performance. The central skylight provides daylighting without excessive glare, while shaded outdoor porches extend comfort for open-air learning and gathering.

Article image

Landscape strategies, including rainwater swales and soft gardens, manage stormwater on-site while enhancing ecological resilience. Future rooftop photovoltaic panels will support renewable energy generation, positioning the Center to achieve LEED Silver certification.

Article image

A Gateway Between Campus and Community

The Spelman College Mary Schmidt Campbell Center Studio Gang is more than an academic building. It is a new threshold between Spelman’s historic campus and the surrounding Westside community. By offering porches, public spaces, and visual connections, the building strengthens community engagement while amplifying Spelman’s mission as a leader in higher education for women of African descent.

Article image
Article image

The Spelman College Mary Schmidt Campbell Center Studio Gang reimagines academic space for the 21st century. By uniting arts and STEM, embracing sustainability, and opening itself to the community, the building stands as both a symbol of progress and a platform for future innovation. It reflects Spelman’s enduring mission of excellence while positioning the college at the forefront of collaborative and inclusive education.

Article image

All Photographs are works of  Tom Harris

UNI Editorial

UNI Editorial

Where architecture meets innovation, through curated news, insights, and reviews from around the globe.

Share your ideas with the world

Share your ideas with the world

Write about your design process, research, or opinions. Your voice matters in the architecture community.

Comments (0)

No comments yet. Be the first to comment!

Similar Reads

You might also enjoy these articles

publishedBlog2 days ago
Free Architecture Competitions You Can Enter Right Now
publishedBlog1 week ago
Top 15 Architecture Competitions to Enter in 2026
publishedBlog1 year ago
DIY & Engineering in Computational Design : Enter the BeeGraphy Design Awards
publishedBlog2 years ago
Innovative Design Solutions: Award-Winning Projects from Recent Architecture Competitions

Explore Architecture Competitions

Discover active competitions in this discipline

UNI Editorial
Search in