Traditional Japanese House Design: House Along the Old Road by KOMINORU Design
House Along the Old Road by KOMINORU Design integrates traditional Japanese elements with modern design, creating a harmonious living space.
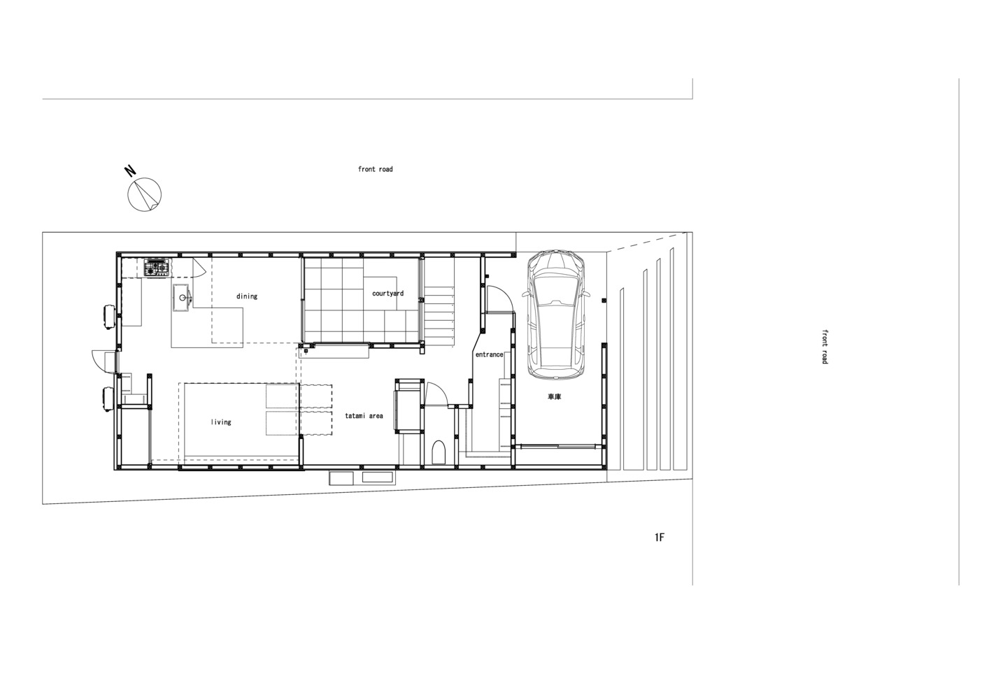
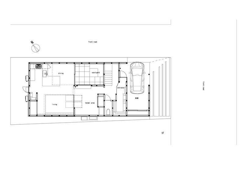
The House Along the Old Road, designed by KOMINORU Design, offers a unique interpretation of traditional Japanese house design with modern elements. Situated along the historic Tokaido Road in Shimizu, Japan, this residential project blends seamlessly into the landscape, reflecting the architectural heritage of one of Japan's most important ancient routes. The design maintains respect for traditional aesthetics while responding to the needs of contemporary living.




A Fusion of Tradition and Modernity
The Tokaido Road is an iconic route that once connected the cities of Edo (Tokyo) and Kyoto, with numerous old townscapes remaining along its path. The house's exterior continues the tradition of the wooden textures found along the road, but with a modern twist. Wooden panels are strategically arranged at various angles, serving both aesthetic and functional purposes. These panels reflect and absorb the traffic noise from the bustling Tokaido side, creating a peaceful interior despite the high traffic outside.


The use of parametric design ensures that each panel is oriented with precision, shifting its angles slightly to form a dynamic and harmonious façade. This modern approach allows the house to reflect the historical context while embracing contemporary design practices.


Courtyard-Centered Living: The Heart of Traditional Japanese Homes
At the core of the House Along the Old Road is its courtyard, an essential feature in many traditional Japanese homes. This open-air space serves as the focal point around which the living spaces are organized. The design of the home ensures that each room benefits from natural light at different times of the day. The study area and washroom are illuminated in the morning, while the living room enjoys the afternoon sunlight, promoting a harmonious flow of light and energy throughout the home.



The central courtyard also fosters a sense of connection to nature, reinforcing the house’s ties to traditional Japanese living, where the boundary between indoors and outdoors is often fluid.



A Sense of Movement and Space
The design of the house is also driven by a sense of movement. On the first floor, the open layout encourages a dynamic flow of space, where the atmosphere evolves as the day progresses. The second floor introduces indoor and outdoor bridges, which encircle the courtyard and create a sense of continuity between the different spaces. This feature reflects the traditional Japanese emphasis on circulation and the fluidity of space.



Additionally, a unique element of the house design is the creation of a subterranean space beneath the floor, allowing for a relaxing area that feels connected to the earth. This underground zone offers a sense of calm and tranquility, which is central to the Japanese concept of Zen living. The floating staircase, raised by bolts to appear suspended in front of the garden, enhances the feeling of lightness and airiness in the space.



Views and Natural Light: Embracing the Japanese Landscape
The architectural design cleverly incorporates views of Mt. Fuji through the gap between two intersecting roofs. This feature ties the house to the broader Japanese landscape, a tradition deeply rooted in traditional Japanese house design. The design allows the beauty of the natural surroundings to become part of the interior experience, offering both visual and spiritual connections to the land.





Honoring Tradition Through Modern Design
House Along the Old Road by KOMINORU Design exemplifies how traditional Japanese house design can evolve to meet modern needs while staying true to its roots. The thoughtful integration of wooden textures, courtyard-centered living, and the dynamic arrangement of spaces demonstrates a deep understanding of Japanese architectural principles. This home is not just a place to live; it is an embodiment of Japanese history, culture, and a harmonious blend of the old and the new.





Popular Articles
Popular articles from the community
Solar Steam: A Climate-Responsive Architecture That Redefines the Monument
A climate-responsive memorial architecture that transforms heat, decay, and time into a living system reflecting humanity’s ecological impact.
On the Brooks House by Monsoon Collective – A Contemporary Kerala Home Rooted in Tradition
Kerala home blending tradition and modernity with water-inspired design, brick architecture, courtyard planning, and sustainable rainwater harvesting strategies.
Inverted Architecture Installation by Studio Link-Arc: Exploring the Intersection of Architecture and Living Organisms
Inverted Architecture Installation by Studio Link-Arc blends mycelium, sustainability, inverted design, ecological cycles, and urban adaptive architecture in Shenzhen.
An Miên Lumière Cafe by xưởng xép, Ho Chi Minh City, Vietnam
An industrial-inspired café where layered steel and warm light create a dynamic, immersive environment shaped by reflection, depth, and perception.
Similar Reads
You might also enjoy these articles
The Ken Roberts Memorial Delineation Competition (Krob)
As the most senior architectural drawing competition currently in operation anywhere in the world, it draws hundreds of entries each year, awarding the very best submissions in a series of medium-based categories.
Waterfront Redevelopment and Urban Revitalization in Mumbai: Forging a New Dawn for Darukhana
A transformative waterfront redevelopment project reimagining Darukhana’s shipbreaking heritage into an inclusive urban future.
OUT-OF-MAP: A Call for Postcards on Feminist Narratives of Public Space
Rhizoma Design and Research Lab invites artists, designers, architects, researchers, and students to reflect on how feminist perspectives can reshape public space. Selected works will be exhibited in Barcelona, October 2026. Submissions open until 15 April 2026.
Documentation Work on Buddhist Wooden Temple
Architectural syncretism and cultural hybridity: A comparative study of the Buddhist temples in Chattogram Hill tracks
Explore Architecture Competitions
Discover active competitions in this discipline
The International Standard for Design Portfolios
The Global Benchmark for Architecture Dissertation Awards
The Global Benchmark for Graduation Excellence
Challenge to reimagine the Iron Throne
Comments (0)
Please login or sign up to add comments
No comments yet. Be the first to comment!