Colombian-Hebrew School: Redefining Educational Campus Architecture in Bogotá
A visionary educational campus in Bogotá that blends architecture, culture, and learning to redefine the modern Jewish school environment.
A Transformational Vision for a Historic Institution
The recent renovation of the Colombian-Hebrew School in Bogotá marks a groundbreaking moment in educational campus architecture across Latin America. Spearheaded by architects Aarón Cohen, Angélica Mejía, Camilo Sellamén, Camilo Fuentes, and Joel Amón, this project represents the most ambitious undertaking by Bogotá’s Jewish community in four decades. Completed in 2024, it goes far beyond a physical redesign—it reimagines what a learning environment can be in both spatial and cultural terms.



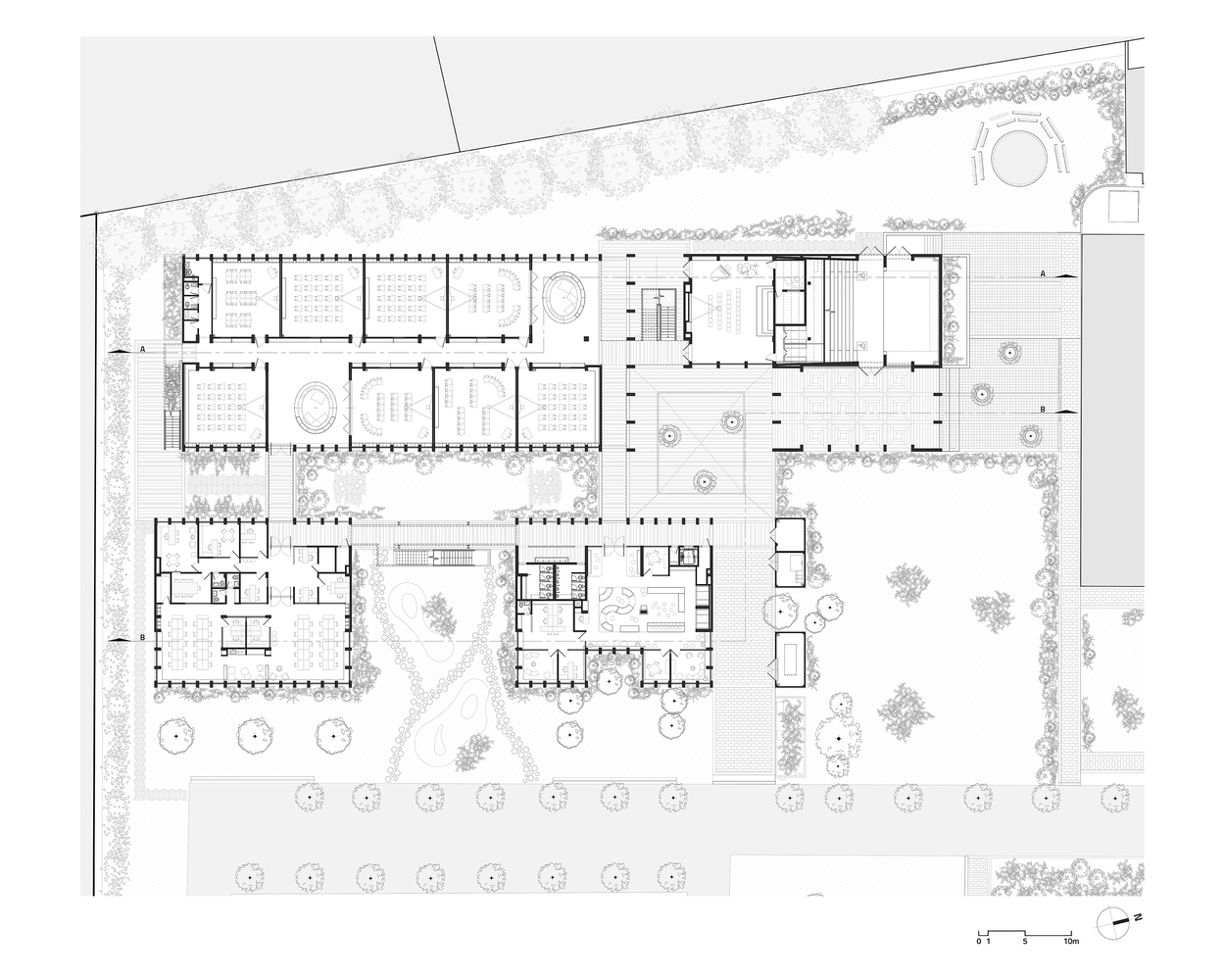
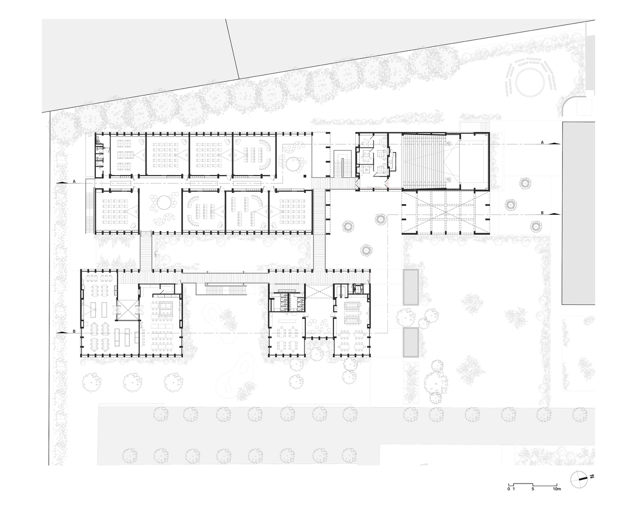
After more than seventy years of piecemeal development without a master plan, the campus had become fragmented, with disjointed buildings and inefficient spatial flow. The new plan reorganizes the 4,294 m² site into a holistic, cohesive educational ecosystem that serves not only the students but also reflects the Jewish community’s commitment to continuity, culture, and values.
A New Master Plan: Structure Through Spatial Clarity
One of the core principles of the redesign was the establishment of a clear spatial hierarchy. The architects structured the campus into three distinct yet interlinked zones: academic buildings, sports facilities, and service areas—all arranged around generous green spaces. The former central pathway has been transformed into a grand promenade, which now serves as the organizational spine of the school, encouraging connection and flow.

This spatial clarity not only enhances circulation but cultivates a greater sense of community among students, educators, and visitors. Every path and passage now leads to a meaningful space, a purposeful interaction, or a moment of reflection—an essential quality in any successful educational campus architecture.


Architecture as a Reflection of Jewish Values
The architectural language is minimalist yet profound. The design draws from Jewish cultural and philosophical values, which are deeply embedded in the spatial experience. Recognizing the Jewish people as the “People of the Book,” the architecture had to reflect education as a sacred endeavor. Thus, the material palette—concrete, steel, and glass—was selected for its sobriety and timelessness.

Rhythmic repetition in the design elements symbolizes perseverance and resilience, while the integration of architecture and nature speaks to a deeper respect for the environment and oneself. These are not just academic buildings—they are cultural vessels designed to last generations.

The Atrium: A Symbolic and Ceremonial Heart
At the literal and symbolic center of the campus lies the Atrium, a double-height structure that sets the emotional tone of the entire site. Vast and quiet, this space is intentionally disproportionate to the surrounding buildings. It is not just a connector but a sacred void—a place for reflection, transition, and reverence. Here, the boundaries between secular education and spiritual legacy dissolve.


The Atrium represents the heart of the new campus, a bridge between the tangible and the transcendent, reinforcing education as both a personal and collective journey.


Functional Diversity Meets Architectural Unity
The new campus comprises four main buildings interconnected by a system of corridors, courtyards, and green areas. These structures accommodate a wide range of functions—classrooms, administrative offices, laboratories, a library, STEM makerspaces, an auditorium, art and music rooms, and multipurpose halls. All are brought together under a unifying aesthetic that honors tradition while embracing modern pedagogical needs.


Bridges and covered walkways link the structures, emphasizing the idea of connectivity and collaboration across disciplines. Outdoor patios and plazas offer additional spaces for informal learning, socializing, or solitude—extending the educational experience beyond the classroom walls.


A Legacy in Built Form
This project is more than an architectural feat. It is a cultural landmark that affirms identity, fosters community ties, and honors a commitment to knowledge. It respects history while boldly charting a course for the next 50 years of educational excellence. The new Colombian-Hebrew School stands as a benchmark in educational campus architecture, demonstrating how design can serve both function and meaning with equal clarity.




All Photographs are works of Alejandro Arango
Popular Articles
Popular articles from the community
Atelier Macri Concept Store Interior Design by CASE-REAL
Atelier Macri store features a "ko" counter, walnut wood details, cork displays, blending retail, gallery, and seamless customer experiences.
Flamboyant House by Juliana Camargo + Prumo Projetos
Modern Brazilian house integrating existing tree, pool, and volumes with glass, wood, and transitional spaces blending interior, exterior, and landscape seamlessly.
Solar Steam: A Climate-Responsive Architecture That Redefines the Monument
A climate-responsive memorial architecture that transforms heat, decay, and time into a living system reflecting humanity’s ecological impact.
Inverted Architecture Installation by Studio Link-Arc: Exploring the Intersection of Architecture and Living Organisms
Inverted Architecture Installation by Studio Link-Arc blends mycelium, sustainability, inverted design, ecological cycles, and urban adaptive architecture in Shenzhen.
Similar Reads
You might also enjoy these articles
Top 15 Architecture Competitions to Enter in 2026
From student-friendly idea competitions to prestigious international awards, here are the best architecture competitions open for entries in 2026. Updated regularly.
DIY & Engineering in Computational Design : Enter the BeeGraphy Design Awards
Showcase Your Creativity with Computational Design and Open Source Projects

Innovative Design Solutions: Award-Winning Projects from Recent Architecture Competitions
Exploring award-winning architectural projects shaping the future of design, sustainability, and community.
Explore Architecture Competitions
Discover active competitions in this discipline
The International Standard for Design Portfolios
The Global Benchmark for Architecture Dissertation Awards
The Global Benchmark for Graduation Excellence
Challenge to reimagine the Iron Throne
Comments (0)
Please login or sign up to add comments
No comments yet. Be the first to comment!