Mich Mich Bakery: A Thoughtful Bakery Interior Architecture in São Paulo by entre escalas
Mich Mich Bakery redefines bakery interior architecture through spatial transparency, artisanal integrity, and adaptive reuse in São Paulo.
Transforming Domestic Space into a Public Culinary Experience
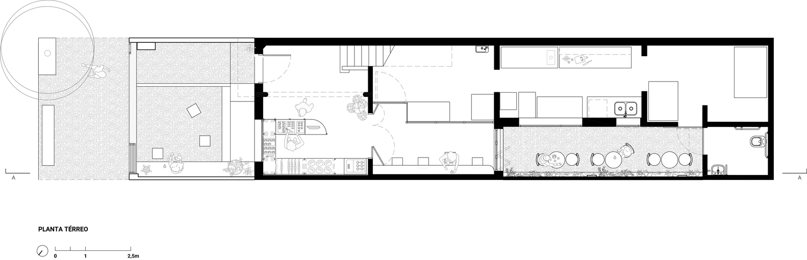
Mich Mich Bakery in São Paulo, Brazil, is a refined example of bakery interior architecture that merges artisanal food production with public interaction. Designed by Marina Panzoldo Canhadas of entre escalas, the project transforms a modest 117 m² semi-detached house in the Pompeia neighborhood into a micro-scale bread factory and retail space. It balances the spatial complexities of an industrial kitchen, a community-oriented storefront, and architectural preservation with a careful interplay of form, function, and visibility.




Designing for Transparency Between Production and Consumption
At the heart of the architectural concept is a strong desire to visually and spatially connect the public with the process of bread-making. The layout reimagines the original domestic structure with strategic openings—both new and preserved—that establish continuity between the street, interior hall, and rear courtyard. This openness reinforces trust, authenticity, and the idea that quality food is both crafted and witnessed.



The central hall is more than a transitional zone; it becomes an experiential space where visitors engage with the making of the product. A new metal-and-glass enclosure in earthy hues defines this zone, maintaining transparency while organizing flow.



Layering Functions Across Two Levels
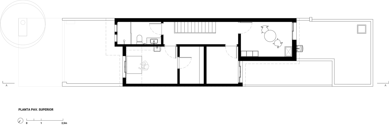
The bakery is distributed across two functional floors. The ground level is open to the public, integrating service counters, bread displays, and a fully equipped industrial kitchen. A freight elevator facilitates movement between the two levels, optimizing efficiency. The upper floor, accessible only to staff, houses specialized production spaces including a cold room, low-temperature pasta preparation area, storage facilities, and a private bathroom.


These distinct layers preserve operational integrity while maintaining an uninterrupted workflow. This spatial clarity ensures that customer-facing experiences remain seamless and inviting, while production maintains precision and hygiene.


Celebrating Heritage Through Material and Memory
Mich Mich Bakery’s design pays homage to its original structure. Rather than masking the building’s past, the architects chose to reveal and celebrate it. Existing elements like the arched doorway, wooden stairs, doors, and railings were preserved. Stripping the walls to expose structural brickwork reflects both craftsmanship and temporal patina, grounding the design in architectural memory.

These tactile remnants give the space character and authenticity, aligning with the bakery’s handcrafted ethos. The materials, textures, and construction techniques reflect both the past and the present—imbuing the architecture with warmth, honesty, and lived history.

Crafting a Seamless Street-to-Shop Transition
The design extends beyond the building envelope, with Portuguese mosaic paving continuing from the public sidewalk into the front terrace. This subtle yet effective move blurs boundaries between street and store, transforming the entrance into an informal gathering place. A new fixed concrete bench strengthens this continuity, welcoming customers to linger and engage with the bakery as part of the neighborhood fabric.


This porous interface between public and private space exemplifies a thoughtful approach to urban micro-architecture, where even small interventions can generate a strong communal identity.

Architectural Space That Bakes With Purpose
The service counter and wooden display units are not merely functional—they are sculpted to frame the bread as a focal point, embodying the heart of the bakery. Every design decision, from material palettes to spatial planning, speaks to the idea that architecture should serve the rituals of daily life with grace and intentionality.

Mich Mich Bakery is a standout example of bakery interior architecture that amplifies the sensory and communal values of food-making. It invites transparency, embraces heritage, and curates a fluid dialogue between production and experience.

Popular Articles
Popular articles from the community
Atelier Macri Concept Store Interior Design by CASE-REAL
Atelier Macri store features a "ko" counter, walnut wood details, cork displays, blending retail, gallery, and seamless customer experiences.
A Contemporary Take on Iranian Residential Architecture
A modern interior design in Mashhad that reinterprets brick, light, and spatial flow to create a warm, contemporary residential architecture.
The Ken Roberts Memorial Delineation Competition (Krob)
As the most senior architectural drawing competition currently in operation anywhere in the world, it draws hundreds of entries each year, awarding the very best submissions in a series of medium-based categories.
Inverted Architecture Installation by Studio Link-Arc: Exploring the Intersection of Architecture and Living Organisms
Inverted Architecture Installation by Studio Link-Arc blends mycelium, sustainability, inverted design, ecological cycles, and urban adaptive architecture in Shenzhen.
Similar Reads
You might also enjoy these articles
Top 15 Architecture Competitions to Enter in 2026
From student-friendly idea competitions to prestigious international awards, here are the best architecture competitions open for entries in 2026. Updated regularly.
DIY & Engineering in Computational Design : Enter the BeeGraphy Design Awards
Showcase Your Creativity with Computational Design and Open Source Projects

Innovative Design Solutions: Award-Winning Projects from Recent Architecture Competitions
Exploring award-winning architectural projects shaping the future of design, sustainability, and community.
Explore Architecture Competitions
Discover active competitions in this discipline
The International Standard for Design Portfolios
The Global Benchmark for Architecture Dissertation Awards
The Global Benchmark for Graduation Excellence
Challenge to reimagine the Iron Throne
Comments (0)
Please login or sign up to add comments
No comments yet. Be the first to comment!