Miyan Residential Building by Pi Architects: A New Approach to Multi-Level Urban Residential ArchitectureMiyan Residential Building by Pi Architects: A New Approach to Multi-Level Urban Residential Architecture

Miyan Residential Building by Pi Architects: A New Approach to Multi-Level Urban Residential Architecture

UNI Editorial
UNI Editorial published Blog under Architecture on

Redefining Vertical Living in Mashhad

Located along the bustling Kalantari Highway in Mashhad, Iran, the Miyan Residential Building by Pi Architects is a bold and thoughtful exploration of multi-level urban residential architecture. Completed in 2024, the 3,400-square-meter structure stands as a reinterpretation of dense city living, using architectural variety and volumetric innovation to address privacy, outdoor connection, and energy efficiency in a high-density environment.

Article image
Article image
Article image
Article image

Challenging Conventional Urban Housing

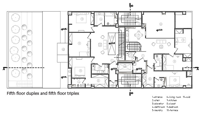
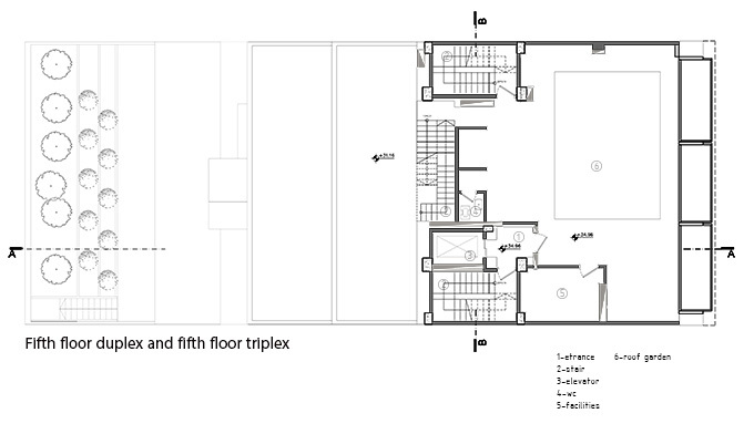
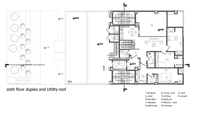
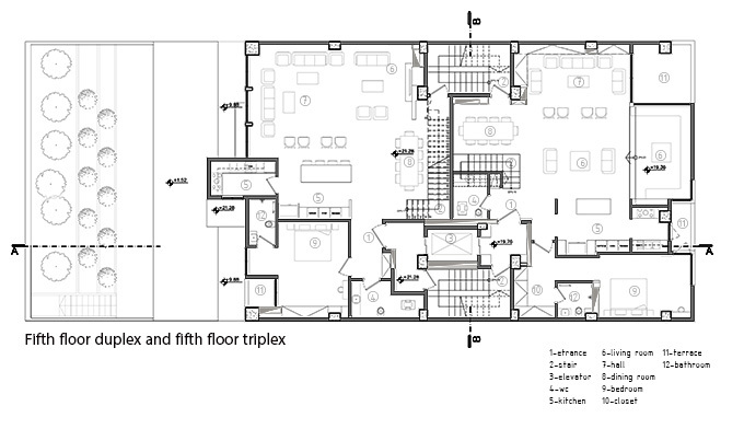
The nine-unit project departs from traditional housing typologies by offering five unique floor plans tailored to different spatial experiences and user preferences. Rather than focusing solely on square footage, the design prioritizes livability, spatial diversity, and the dynamic relationship between public and private life. Each unit is crafted as a distinct architectural experience, allowing residents to choose based on their lifestyle and the kind of space they wish to inhabit.

Article image
Article image
Article image
Article image

Volumetric Breaks and Spatial Innovation

A key design element of the Miyan Residential Building is its intentional volumetric break at the building’s midpoint. This architectural gesture separates the structure both visually and spatially, resulting in a compelling mix of unit types including two duplexes, one triplex, and three units with fragmented, split-level layouts. This approach brings complexity and depth to the building's form, fostering a more intimate and multi-dimensional residential experience.

Article image
Article image
Article image

Functional Terraces as Urban Relief

On the southern façade, deeply recessed terraces have been integrated into the building mass. These semi-open spaces provide a rare connection to nature in an urban context, offering both usability and privacy. The design frames views of the southern mountains and the lush greenery of Malekabad Garden to the north, establishing a strong indoor-outdoor dialogue that enhances well-being and natural ventilation. These terraces function as transitional buffers between the interior and exterior, amplifying the residents’ sensory engagement with the environment.

Article image
Article image
Article image

Layered Public and Private Zones

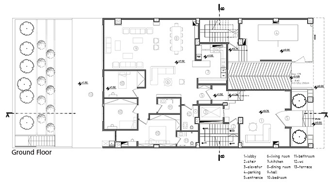
The internal layout is organized to create a clear separation between public and private spaces. This subtle zoning allows residents to preserve their privacy within personal spaces while engaging with communal areas only when necessary, such as hosting visitors. By reducing circulation through public areas, the design supports both energy efficiency and a more peaceful daily routine.

Article image
Article image
Article image
Article image

Architectural Identity Through Façade and Entrance

The building’s façade departs from the norm with a carefully articulated three-dimensional treatment. This design decision highlights the differences between duplex, triplex, and standard units while rejecting the flatness of typical residential exteriors. At the entrance, two sunken gardens linked to the main lobby through a suspended staircase offer an expressive, welcoming gesture. This entry experience forms a visual and spatial transition from the urban street to the serene interior, reinforcing the building’s distinct identity.

Article image
Article image
Article image

Responding to Urban Density with Design Clarity

Miyan Residential Building is not just a response to the challenges of urban housing; it is a vision of what future city living can be. By reimagining the building block through multi-level units, integrated terraces, and volumetric breaks, Pi Architects have introduced a dynamic and human-centered alternative to conventional apartment buildings. The project emphasizes architectural quality, energy-conscious living, and the nuanced needs of contemporary residents in dense metropolitan areas.

Article image
Article image

A Model for Multi-Level Urban Residential Architecture

Through its innovative spatial logic, material articulation, and strong connection to context, the Miyan Residential Building sets a new benchmark in multi-level urban residential architecture. It demonstrates how architectural diversity and three-dimensional design can enhance livability, sustainability, and user experience in high-density urban settings.

Article image
Article image

All Photographs are works of diman studio

UNI Editorial

UNI Editorial

Where architecture meets innovation, through curated news, insights, and reviews from around the globe.

Share your ideas with the world

Share your ideas with the world

Write about your design process, research, or opinions. Your voice matters in the architecture community.

Comments (0)

No comments yet. Be the first to comment!

Similar Reads

You might also enjoy these articles

publishedBlog2 days ago
Free Architecture Competitions You Can Enter Right Now
publishedBlog1 week ago
Top 15 Architecture Competitions to Enter in 2026
publishedBlog1 year ago
DIY & Engineering in Computational Design : Enter the BeeGraphy Design Awards
publishedBlog2 years ago
Innovative Design Solutions: Award-Winning Projects from Recent Architecture Competitions

Explore Architecture Competitions

Discover active competitions in this discipline

UNI Editorial
Search in