Renovation of 1960s Apartment by Studio Jakob Sellaoui: Revitalizing Modernist Living in Vienna
A thoughtful renovation transforming a 1960s Vienna apartment, blending original pragmatism with contemporary spatial flexibility and simplicity.
In the heart of Vienna, Studio Jakob Sellaoui has undertaken the renovation of a 1960s apartment, breathing new life into a building type often dismissed as outdated or unattractive. This thoughtful transformation showcases how architecture can embrace the pragmatic qualities of mid-century residential blocks while elevating them to meet contemporary living standards.



Context of the 1960s Housing Estates
The apartment is situated in a residential complex constructed during the 1960s—a period marked by Vienna’s rapid expansion and a pressing demand for affordable housing. These housing estates, typically located in the city’s outer districts, were built with speed and cost-efficiency as primary concerns. As a result, their architecture is often perceived as utilitarian, characterized by repetitive layouts and minimal ornamentation.






Design Approach: Embracing the Existing
Rather than imposing a completely new design language, Studio Jakob Sellaoui approached this 1960s apartment renovation in Vienna by continuing and amplifying the inherent logic of the original building. The design acknowledges the pragmatism of the row-type typology and seeks to unlock its latent spatial potential.





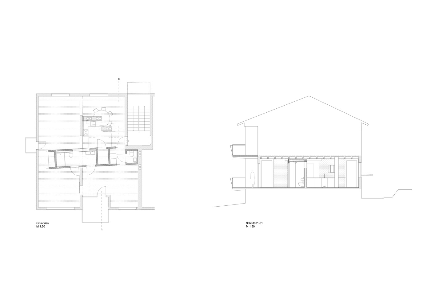
The Spatial Cross: Organizing the Interior
Central to the renovation is a newly introduced plywood-clad box housing the sanitary infrastructure. This intervention intersects with the apartment’s original load-bearing central wall, forming a “spatial cross” that reorganizes the home into four equally sized rooms. Each room is adaptable, allowing residents to change their use over time, and large sliding doors provide flexibility to open or close spaces as needed.




Living in a Circle: Enhancing Movement and Flow
One of the most distinctive aspects of the design is the decision to detach the new inner walls from the apartment’s perimeter. This creates a circular walkway around the central box, enabling a continuous flow of movement. This playful strategy introduces the concept of “living in a circle,” which breaks away from the rigid compartmentalization typical of many mid-century apartments.


Sensitive Adaptations: Respecting the Old, Introducing the New
The project also demonstrates a careful and creative treatment of existing elements. A freestanding chimney-wall is transformed into a wardrobe, while a mirrored surface above cleverly conceals a wastewater pipe from the apartment above. The kitchen is designed to thread through a narrow space and morph into a table, blurring the line between function and form. A clerestory window atop the central sanitary core not only brings in light but also celebrates the intersection between new interventions and existing structural elements.


Material Language: A Dialogue with Scarcity
Material choices reflect a thoughtful continuation of the original building’s modest character. The plywood-clad core, minimalistic kitchen, and mirrored surfaces all engage with the question: how much is truly needed to live well? Rather than overdesigning or overdecorating, the renovation amplifies the beauty of simplicity, functionality, and spatial clarity.

Studio Jakob Sellaoui’s 1960s apartment renovation in Vienna stands as an exemplary case of how architectural interventions can honor the past while creating adaptable, meaningful spaces for today. By reinterpreting the pragmatic logic of the original structure and introducing subtle yet transformative elements, the project redefines what it means to live well within a mid-century housing block. This renovation is not about erasure, but about intelligent continuation and refinement—a respectful dialogue between old and new.

All the photographs are works of kunst-dokumentation
Popular Articles
Popular articles from the community
Split House: A Compact Urban Home Blending Privacy, Light, and Flexible Living in Japan
Compact Japanese home featuring DOMA space, flexible café potential, passive lighting, privacy zoning, and sustainable urban living design.
Alton Cliff House: A Harmonious Retreat by f2a Architecture in Lake Country, Canada
Alton Cliff House blends corten steel, prefabrication, and sustainable design, creating a luxurious, energy-efficient retreat perched on Canadian cliffs.
Atelier Macri Concept Store Interior Design by CASE-REAL
Atelier Macri store features a "ko" counter, walnut wood details, cork displays, blending retail, gallery, and seamless customer experiences.
Free Architecture Competitions You Can Enter Right Now
No entry fees, real prizes. Here are the best free architecture competitions open for submissions in 2026.
Similar Reads
You might also enjoy these articles
Free Architecture Competitions You Can Enter Right Now
No entry fees, real prizes. Here are the best free architecture competitions open for submissions in 2026.
Top 15 Architecture Competitions to Enter in 2026
From student-friendly idea competitions to prestigious international awards, here are the best architecture competitions open for entries in 2026. Updated regularly.
DIY & Engineering in Computational Design : Enter the BeeGraphy Design Awards
Showcase Your Creativity with Computational Design and Open Source Projects

Innovative Design Solutions: Award-Winning Projects from Recent Architecture Competitions
Exploring award-winning architectural projects shaping the future of design, sustainability, and community.
Explore Architecture Competitions
Discover active competitions in this discipline
The International Standard for Design Portfolios
The Global Benchmark for Architecture Dissertation Awards
The Global Benchmark for Graduation Excellence
Challenge to reimagine the Iron Throne
Comments (0)
Please login or sign up to add comments
No comments yet. Be the first to comment!