Community-Centered Cultural Architecture: James Baldwin Media Library and Refugee House by associer
Associer transforms a 1970s school in Paris into a sustainable media library and refugee integration center through community-focused architecture.
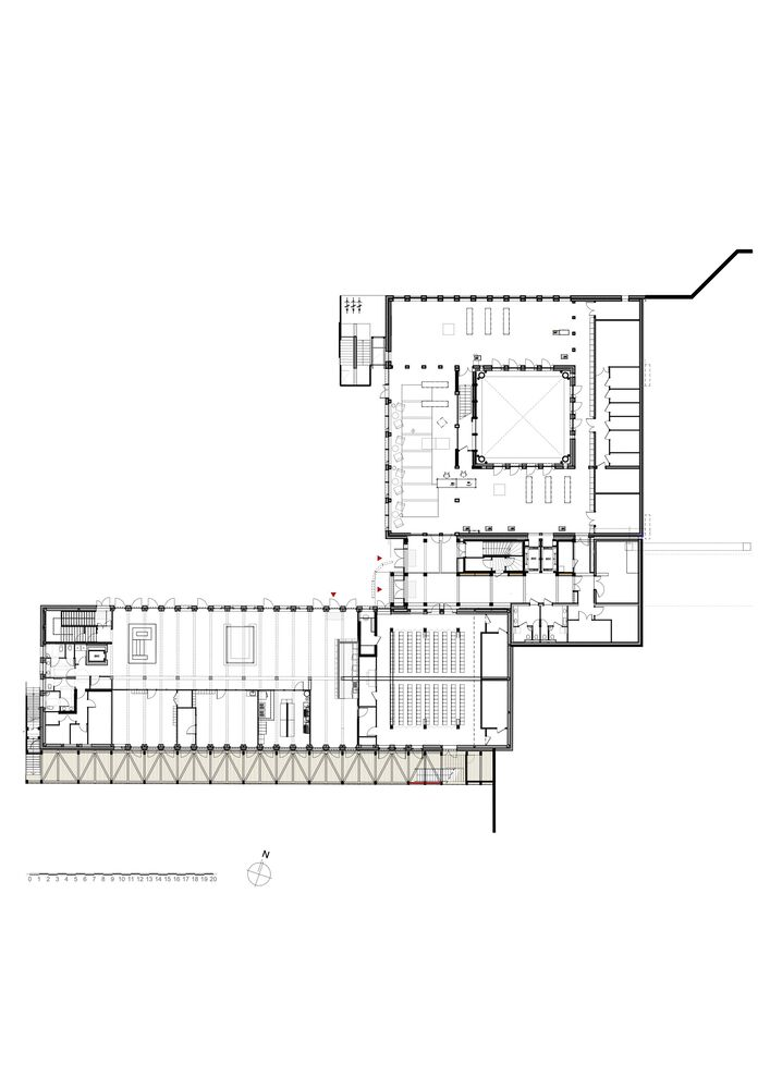
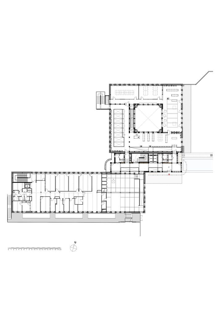
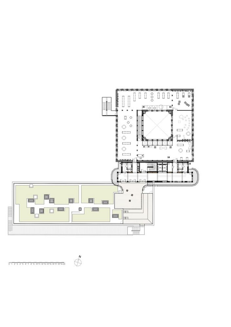
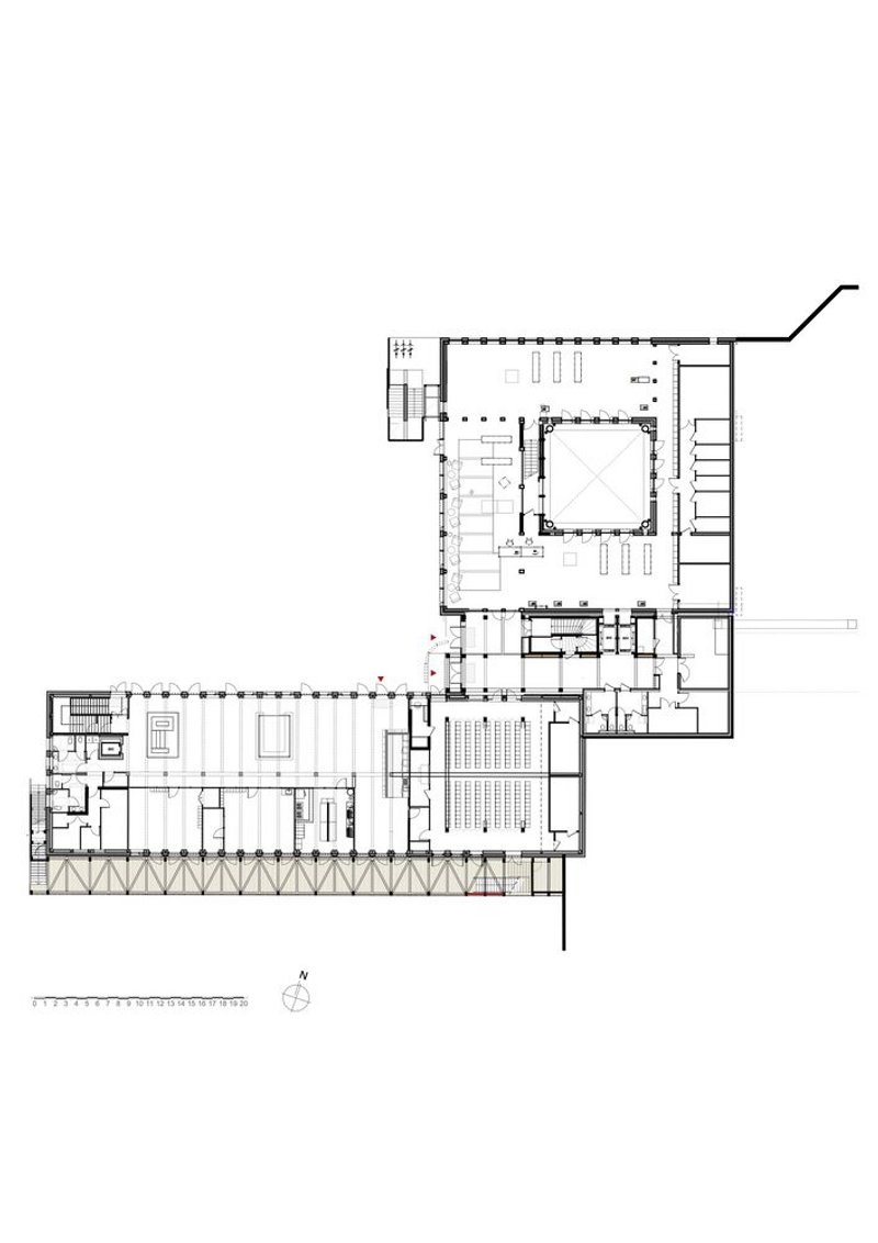
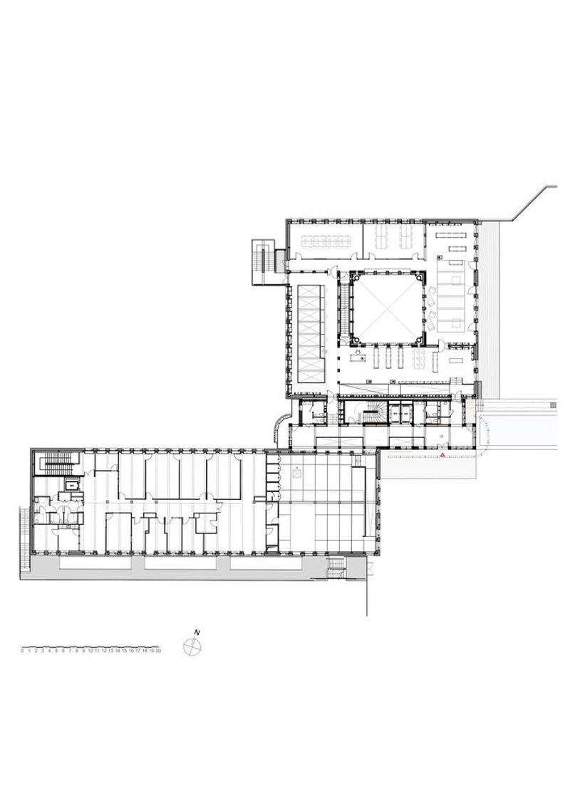
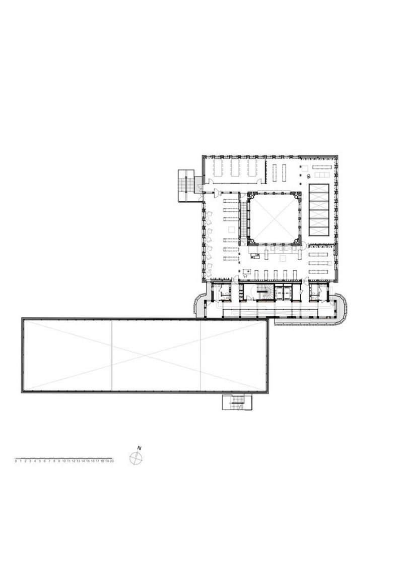
In the vibrant and densely populated 19th arrondissement of Paris, the architectural studio associer has reimagined the former 1970s Jean Quarré upper secondary hospitality school into a landmark project of community-centered cultural architecture. This transformation has yielded the James Baldwin Media Library and Refugee House, a unique cultural and social hub that combines a neighborhood media library with an inclusive refuge dedicated to supporting refugees’ integration into Parisian society.





Revitalizing a Brutalist Legacy for Social Impact
The original 1970s concrete school structure posed both challenges and opportunities. Rather than demolishing it, associer embarked on a sensitive refurbishment strategy that preserved and enhanced the raw beauty of the exposed reinforced concrete posts, beams, floors, and façade panels. Asbestos was carefully removed, and selective deconstruction allowed parts of the concrete elements to be reused on-site, maintaining material continuity and honoring the Brutalist heritage while adapting it to contemporary social functions.




The retention of the building’s structural integrity has resulted in spacious interiors with softened surfaces and textured materials that provide a tactile warmth and thermal inertia ideal for the Parisian climate. The reactivation of this overlooked architectural asset now frames a welcoming environment for education, culture, and humanitarian engagement.



Bioclimatic Design Enhancing Comfort and Sustainability
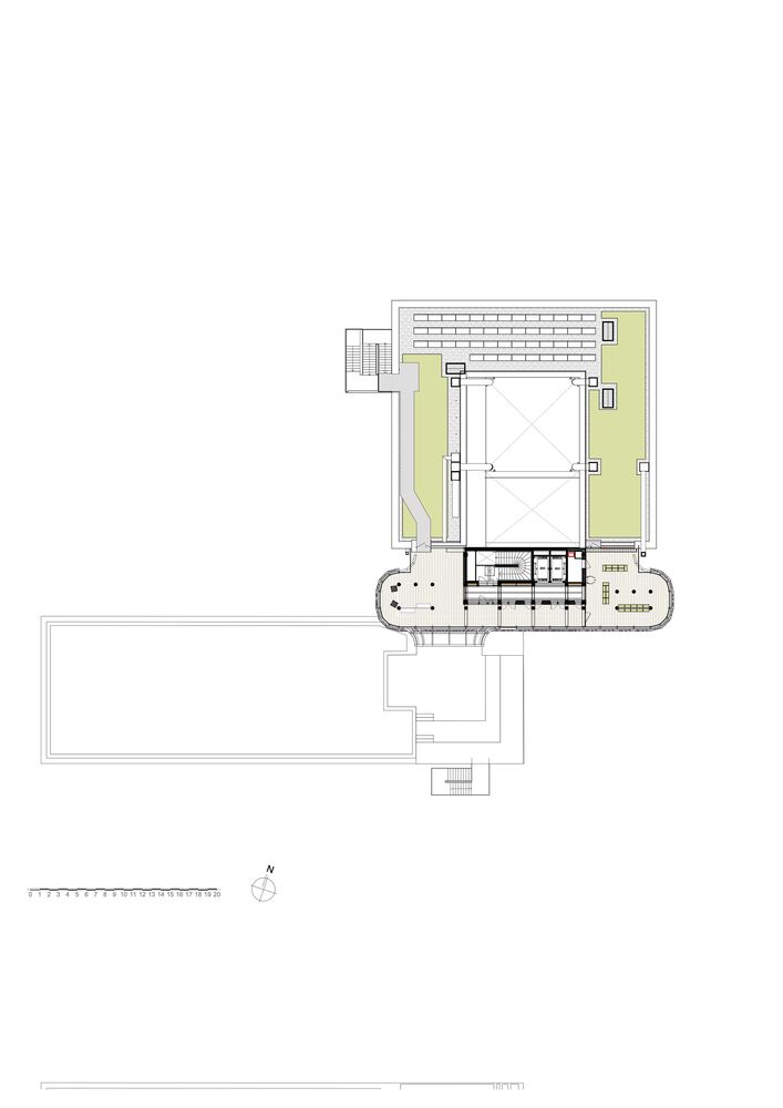
The renovation follows bioclimatic principles, optimizing natural light and ventilation to improve user comfort and reduce energy consumption. The existing concrete structure has been refined to allow increased daylight penetration, bathing interiors in a soft natural glow. Hygienic natural ventilation is facilitated through the introduction of double-height air wells and interior patios, promoting fresh airflow and passive temperature regulation throughout the year.


This environmental sensitivity extends to the outdoor spaces, where 70% of the site’s waterproof surfaces have been replaced with permeable ground cover, such as recycled concrete slabs and stabilized sand. These measures combat the urban heat island effect while fostering biodiversity through new green areas—including a central patio, a shaded garden, a shared garden, and a tranquil terrace.


The Link: A Wooden and Poured Earth Connector
A defining feature of this project is the creation of a vertical “link” volume that physically and symbolically connects the media library and the Refugee House. This new structure embraces ecological responsibility through the use of bio-sourced and geo-sourced materials, notably prefabricated poured earth walls that regulate humidity and thermal inertia naturally.


Encased in a wooden mantilla, this structure acts as a sun filter and environmental shield, balancing protection with openness. The tall post-and-beam wooden frame creates warm, inviting interiors where community members and refugees can share meals, practice French, and build social bonds in acoustically comfortable spaces designed for inclusion.



Hospitality and Integration in Architecture
The Refugee House is more than a shelter; it is a place of encounter, learning, and empowerment. The architectural language fosters hospitality through spacious communal areas, terraces facing south for relaxation, and gardens that serve as peaceful urban oases. This approach turns architecture into a social catalyst, reinforcing the importance of space in welcoming displaced populations and supporting their cultural integration.




A Model for Future Social Architecture
The James Baldwin Media Library and Refugee House exemplifies how community-centered cultural architecture can address urgent social needs while revitalizing existing urban fabric. The project’s blend of Brutalist heritage, ecological innovation, and human-centric programming creates a compelling model for adaptive reuse and socially responsible design in metropolitan contexts.



Through the thoughtful renovation and extension by associer, the building now stands as a beacon of cultural resilience, social justice, and environmental stewardship—demonstrating how architecture can actively foster community cohesion and human dignity.



All Photographs are works of Pierre-Yves Brunaud
Popular Articles
Popular articles from the community
The Ken Roberts Memorial Delineation Competition (Krob)
As the most senior architectural drawing competition currently in operation anywhere in the world, it draws hundreds of entries each year, awarding the very best submissions in a series of medium-based categories.
Alton Cliff House: A Harmonious Retreat by f2a Architecture in Lake Country, Canada
Alton Cliff House blends corten steel, prefabrication, and sustainable design, creating a luxurious, energy-efficient retreat perched on Canadian cliffs.
Solar Steam: A Climate-Responsive Architecture That Redefines the Monument
A climate-responsive memorial architecture that transforms heat, decay, and time into a living system reflecting humanity’s ecological impact.
Inverted Architecture Installation by Studio Link-Arc: Exploring the Intersection of Architecture and Living Organisms
Inverted Architecture Installation by Studio Link-Arc blends mycelium, sustainability, inverted design, ecological cycles, and urban adaptive architecture in Shenzhen.
Similar Reads
You might also enjoy these articles
Free Architecture Competitions You Can Enter Right Now
No entry fees, real prizes. Here are the best free architecture competitions open for submissions in 2026.
Top 15 Architecture Competitions to Enter in 2026
From student-friendly idea competitions to prestigious international awards, here are the best architecture competitions open for entries in 2026. Updated regularly.
DIY & Engineering in Computational Design : Enter the BeeGraphy Design Awards
Showcase Your Creativity with Computational Design and Open Source Projects

Innovative Design Solutions: Award-Winning Projects from Recent Architecture Competitions
Exploring award-winning architectural projects shaping the future of design, sustainability, and community.
Explore Architecture Competitions
Discover active competitions in this discipline
The International Standard for Design Portfolios
The Global Benchmark for Architecture Dissertation Awards
The Global Benchmark for Graduation Excellence
Challenge to reimagine the Iron Throne
Comments (0)
Please login or sign up to add comments
No comments yet. Be the first to comment!