House E by Studio 1:1 Design: A Contemporary Interpretation of Swahili Bauhaus Architecture
A Swahili Bauhaus residence in Shela fuses traditional craftsmanship and minimalist design into a sustainable, coastal sanctuary.
A Modern Vernacular on Kenya’s Shela Dunes
House E by Studio 1:1 Design is a masterful architectural composition that brings together the traditional elegance of Swahili architecture and the clean, functional clarity of Bauhaus design. Located on Shela Island, off the coast of Kenya, this 852-square-meter residence is embedded in a historic coastal village that has long maintained its architectural identity. The house offers a poetic dialogue between cultural heritage and modernist principles, carefully tailored to its site’s topography, climate, and community.





Swahili Bauhaus: A Cultural and Climatic Response
Set on a 50x25-meter sloped site cascading down the dunes, House E faces eastward toward panoramic views of Manda Island and the Indian Ocean. The residence utilizes the visual and structural language of Swahili Bauhaus architecture — a synthesis of traditional coral stone, carved timber, and geometric forms — to express a design ethos that values spatial efficiency, simplicity, and contextual sensitivity.



Swahili Bauhaus in this context is more than an aesthetic choice. It is a design strategy that respects local culture, leverages passive design for comfort, and reinterprets regional craftsmanship through a modern lens.



Spatial Layout: Interconnected Volumes and Courtyards
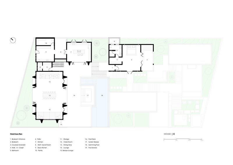
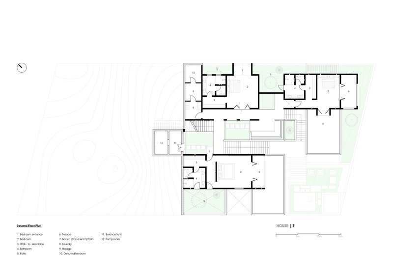
House E unfolds as a series of interconnected volumes organized around shaded courtyards. These outdoor voids are not just formal features but climate-responsive elements that allow light and cross-ventilation to permeate the living spaces. The residence comprises six suites designed to maximize openness and communal living.


At the center of the layout is a tower-like kitchen that acts as a vertical anchor. This space seamlessly connects to the pool area, dining and living zones, and outdoor terraces, encouraging social interaction while embracing the outdoors.



Craftsmanship and Materiality: A Celebration of the Local
Materiality plays a defining role in the house’s character. Locally sourced coral blocks and Neru (limestone plaster) provide a thermally responsive envelope that naturally cools the interiors. Hand-carved timber doors and intricately patterned screens serve both as shading devices and cultural touchpoints, linking the dwelling to its Swahili roots.



The construction of House E relied on the labor and artistry of local craftspeople, who carried forward generations-old techniques. Donkeys—still vital to Shela’s car-free infrastructure—transported building materials along sand-laden paths, rooting the project in the rhythms and textures of village life.



Sustainable Architecture Embedded in Tradition
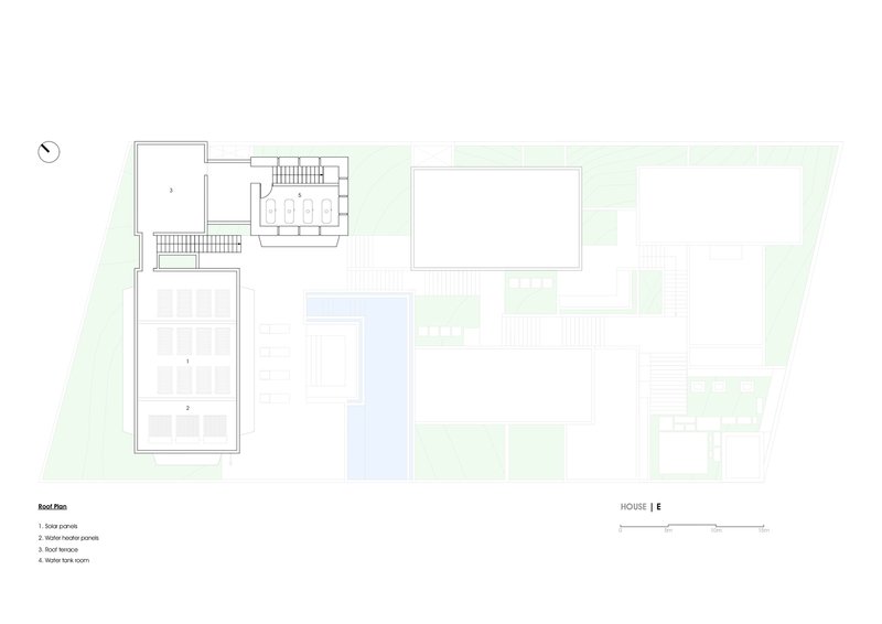
Sustainability in House E is not treated as an afterthought but as an inherent design principle. Passive cooling through natural ventilation, solar orientation, and thick masonry walls reduces energy consumption. Roof gardens and terraces further insulate the building, while integrated solar systems provide power and hot water. The result is a self-sufficient residence that lives in harmony with its environment.

By minimizing transportation through local sourcing and empowering artisans through traditional building methods, the house also fosters a sustainable socioeconomic loop within the community.


Swahili Bauhaus as a Living Experience
What makes House E unique is its ability to transcend the role of a mere dwelling. It becomes a living, breathing artifact of Swahili Bauhaus architecture—a form that bridges past and future, local and global, craft and minimalism. The design's emotional resonance lies in its ability to evoke memory, provoke sensory awareness, and seamlessly embed itself in Shela's historical and environmental context.



Whether one is lounging on the rooftop garden overlooking the ocean or admiring the play of filtered light through wooden mashrabiya screens, every moment in House E is a celebration of heritage fused with modernity.



All Photographs are works of Javier Callejas
Popular Articles
Popular articles from the community
Pedevilla Architects Disguise a Five-Story School as a Tyrolean Farmhouse in Kössen
A dark-clad education center in rural Austria borrows the robust calm of Alpine vernacular to anchor a village's northern edge.
MIDW Casts a Pavilion Roof from the Earth Itself at the 2025 Osaka Expo
On a fragile reclaimed island, excavated soil becomes formwork for a concrete canopy that will eventually disappear into wisteria.
20 Most Popular Office Building Projects of 2025
From biophilic workspaces in India to net-positive energy offices in New Delhi, 20 office building projects that defined architecture in 2025.
OUJ Rewires a 72-Square-Meter Taipei Apartment for Multigenerational Living After the Pandemic
Inside a 40-year-old public housing block, plywood volumes and translucent screens turn three cramped bedrooms into a flexible family home.
Similar Reads
You might also enjoy these articles
FAAB Wraps a Polish Healthcare Complex in Perforated Metal Inspired by the Sea
Waves 4 and 5 of the ECR complex in Sopot transform brownfield land into a healing environment 400 meters from the Baltic coast.
OUJ Rewires a 72-Square-Meter Taipei Apartment for Multigenerational Living After the Pandemic
Inside a 40-year-old public housing block, plywood volumes and translucent screens turn three cramped bedrooms into a flexible family home.
Pedevilla Architects Disguise a Five-Story School as a Tyrolean Farmhouse in Kössen
A dark-clad education center in rural Austria borrows the robust calm of Alpine vernacular to anchor a village's northern edge.
MAVA Design Turns a Column-Riddled Shell into a Serene Hair Extension Salon in Kyiv
Inside a former motorcycle factory campus, a 110 square metre beauty atelier treats structural obstacles as spatial anchors.
Explore Architecture Competitions
Discover active competitions in this discipline
The International Standard for Design Portfolios
The Global Benchmark for Architecture Dissertation Awards
The Global Benchmark for Graduation Excellence
Challenge to reimagine the Iron Throne
Comments (0)
Please login or sign up to add comments
No comments yet. Be the first to comment!