Pioneering the Future of Learning: Innovative Educational Architecture at Modern High School International
Exploring Modern High School International's design by Studio SKLIM, blending innovative architecture with dynamic educational spaces.
Modern High School International, designed by Studio SKLIM, stands as a landmark of innovative educational architecture in Kolkata, India. Spanning an impressive 8000 m², this transformation of traditional basketball courts into a six-story co-educational facility underscores a profound shift in educational paradigms. Through strategic design and thoughtful integration of the International Baccalaureate (IB) curriculum, the school fosters an environment that encourages dynamic learning experiences, facilitated by the architectural brilliance of Hitesh Toolsidass's photography.



A New Pedagogical Landscape
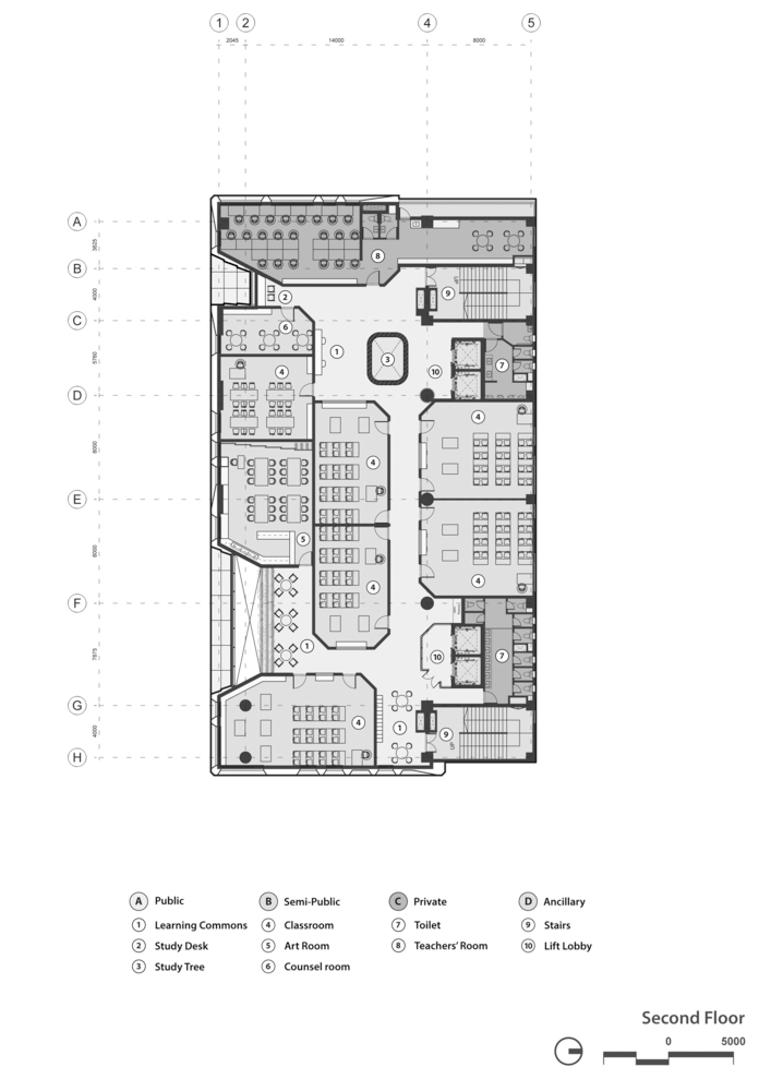
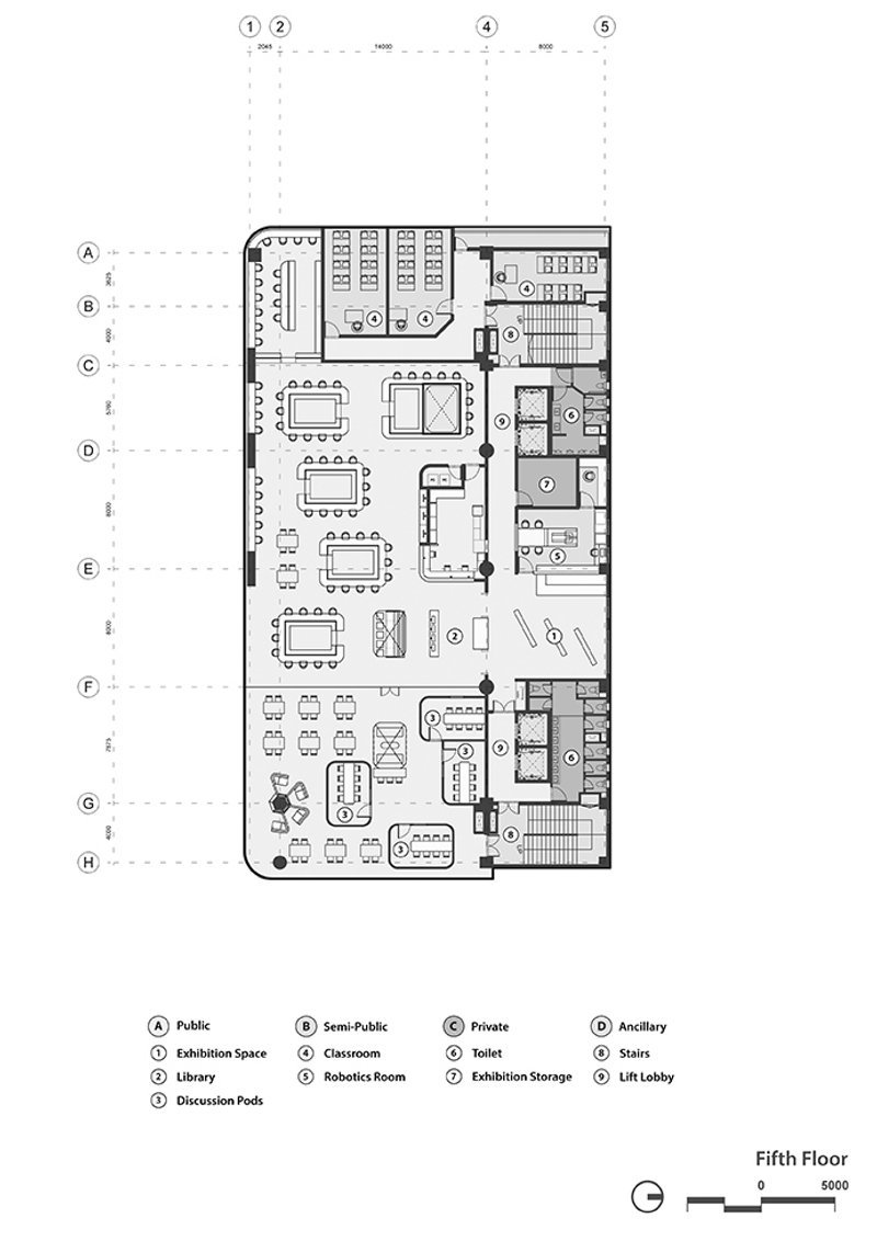
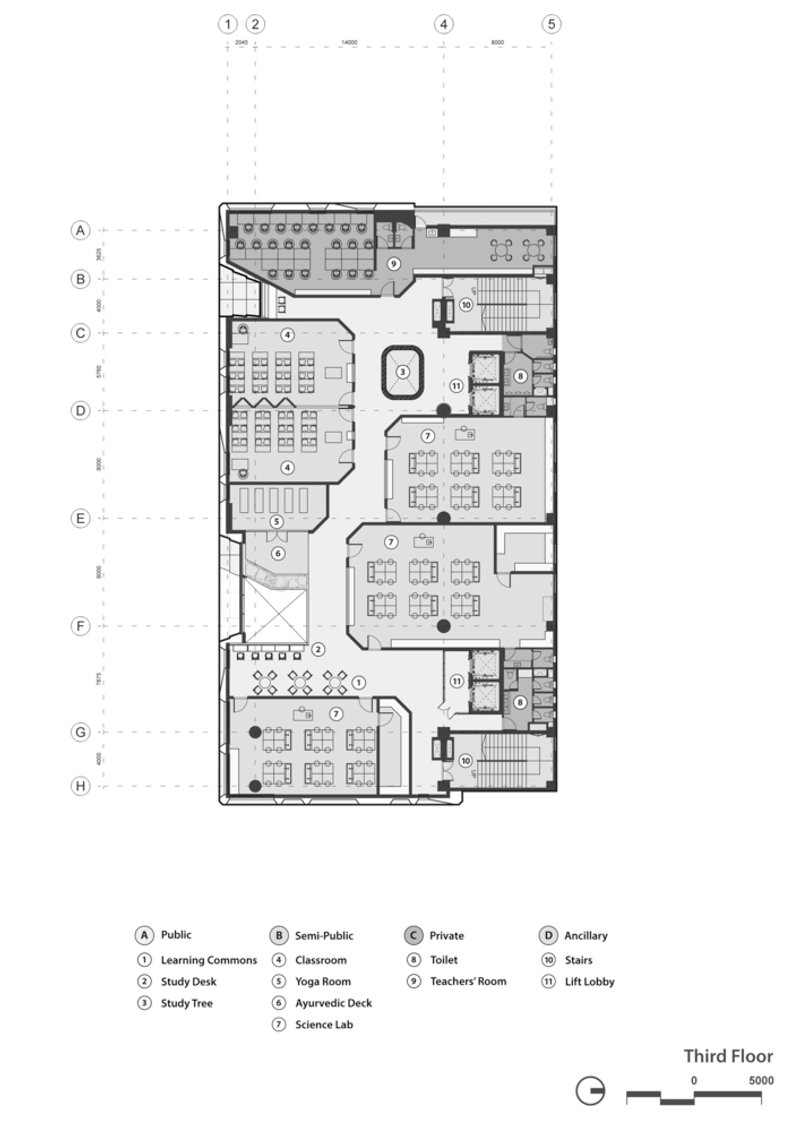
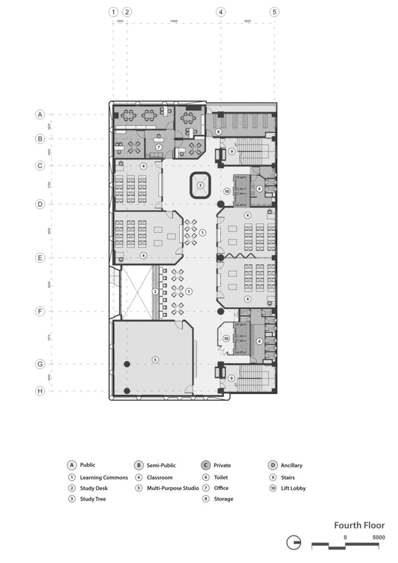
The architectural layout of Modern High School International is meticulously organized to support the IB curriculum's holistic approach. Each floor is distinctly designed to promote student mobility and interaction, blending formal academic programs with informal learning spaces. From maker's workshops to yoga rooms, the school's spatial configuration is a testament to the evolving nature of education, where learning extends beyond traditional classroom settings.





Lighting and Space: Crafting the Learning Commons
At the core of the school's design are two 'Light Canyons' and a central 'Light Atrium', introducing natural light and fostering a connection with nature. Inspired by the Gurukul system, these spaces create a biophilic environment conducive to both focused study and communal interaction. The design cleverly integrates staggered discussion areas and a state-of-the-art library, embodying the school's commitment to creating versatile learning environments.




Structural Innovation and Sustainability
The school's architectural innovation extends to its structural design, with post-tensioned beams enabling a column-free environment that maximizes natural light and facilitates flexible learning spaces. The south façade's ingenious use of cantilevered platforms and glazed light canyons addresses urban challenges like traffic noise and air pollution, ensuring a serene learning atmosphere.




Embracing Green Building Practices
Modern High School International's dedication to sustainability is evident in its Platinum Mark achievement from the Indian Green Building Council (IGBC). The school incorporates eco-friendly materials, solar panels, and rainwater harvesting systems, underscoring its commitment to ecological responsibility and promoting a green education curriculum.













A Blueprint for Future Schools
Modern High School International by Studio SKLIM is a beacon of innovative educational architecture, illustrating how design can enhance learning experiences and adapt to contemporary educational needs. Its holistic approach to spatial organization, structural innovation, and sustainability sets a new standard for educational facilities worldwide, offering a blueprint for future schools that wish to nurture the next generation in thoughtfully designed, dynamic environments.








All photographs are work of Hitesh Toolsidass