Tokyo House Renovation: Nukui House by ROOVICE Blends Heritage and Modern Living
A modern Tokyo house renovation by ROOVICE transforms a 1976 wooden home through adaptive reuse and thoughtful spatial redesign.
Revitalizing Tokyo’s Aging Architecture Through Adaptive Reuse
Nukui House is a standout example of Tokyo house renovation, located in the tranquil residential area of Nukui in Tokyo’s Nerima Ward. Designed by ROOVICE, the project is part of the firm’s Kariage initiative, a bold urban regeneration strategy aimed at tackling Japan’s growing akiya (vacant house) crisis. Originally built in 1976, this wooden two-story home has been meticulously transformed, preserving its architectural essence while meeting modern living standards.



Context and the Kariage Initiative
The Kariage initiative plays a pivotal role in the revitalization of unused homes across Japan. It enables vacant properties to be repurposed without any financial burden to the owners, offering a socially and environmentally sustainable alternative to demolition. In the case of Nukui House, the new owners—neighbors who acquired the property for strategic access to the main road—had no immediate plans for redevelopment. Instead, they opted to breathe new life into the dwelling by collaborating with ROOVICE.




Thoughtful Renovation with Respect for Tradition
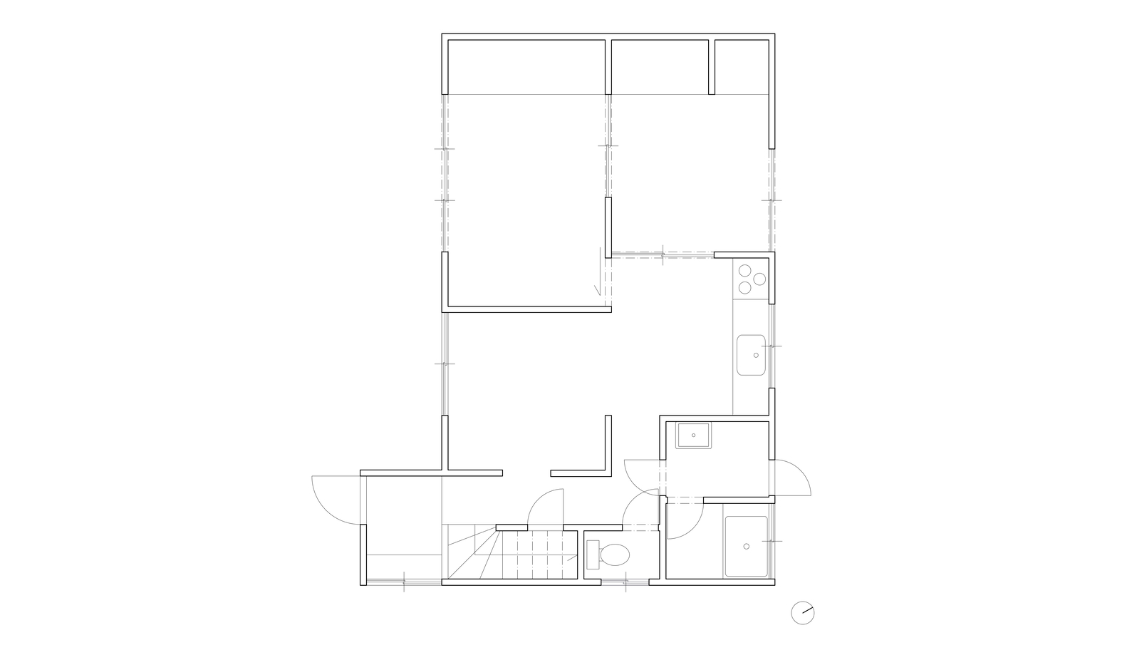
ROOVICE’s approach to this Tokyo house renovation was grounded in balance: retaining key original elements while improving the spatial experience. The original structure featured a 3DK layout on the first floor and a 2LDK layout above. The renovation reconfigured the house into a cohesive 3LDK residence with open circulation and a warm material palette.



First Floor Transformation: Opening Up for Modern Living
The first floor was previously fragmented, limiting natural light and connectivity. By removing the corridor walls, ROOVICE created an expansive entrance area that flows directly into the living spaces. The kitchen was reimagined, leaving behind only a signature tiled wall as a memory of the old design. The bathroom and toilet were newly installed with fresh tiling, and white paint on the walls helped reflect natural light. Tatami was removed in favor of wood flooring, while traditional shōji screens were lovingly restored—offering a nod to the past within a modern spatial composition.



Second Floor Renovation: Harmonizing Craftsmanship and Functionality
On the second floor, heritage elements were preserved and enhanced. The defining red kitchen tiles were replaced with similar hues to honor the original while introducing modern aesthetics. A new custom kitchen was installed, and the wooden wall panels were retained. The ceiling boards were stripped away to reveal exposed beams, introducing vertical openness and celebrating the home’s structure. New insulation was added discreetly, and the space formerly divided by partitions was unified into a bright, continuous living-dining-kitchen zone. The traditional tatami room was also refreshed, blending seamlessly with the contemporary design language.




Final Outcome: A Contemporary 3LDK Rooted in Context
The completed Tokyo house renovation results in a flexible and spacious 3LDK home with a large, welcoming entrance. ROOVICE’s renovation strategy focused on functional upgrades, efficient spatial planning, and sensitive preservation of material and design history. It is not only a practical housing solution but also a symbol of responsible architectural intervention in Tokyo’s aging urban fabric.


A Model for Sustainable Urban Regeneration
Nukui House represents more than a single-family renovation. As part of the Kariage initiative, it models how vacant homes can be adapted for contemporary use while retaining cultural memory. The project illustrates the potential of Tokyo house renovation to drive community-oriented, sustainable urban development—setting a precedent for future revitalization efforts across Japan.


All photographs are works of Akira Nakamura
Popular Articles
Popular articles from the community
Split House: A Compact Urban Home Blending Privacy, Light, and Flexible Living in Japan
Compact Japanese home featuring DOMA space, flexible café potential, passive lighting, privacy zoning, and sustainable urban living design.
Atelier Macri Concept Store Interior Design by CASE-REAL
Atelier Macri store features a "ko" counter, walnut wood details, cork displays, blending retail, gallery, and seamless customer experiences.
Free Architecture Competitions You Can Enter Right Now
No entry fees, real prizes. Here are the best free architecture competitions open for submissions in 2026.
Solar Steam: A Climate-Responsive Architecture That Redefines the Monument
A climate-responsive memorial architecture that transforms heat, decay, and time into a living system reflecting humanity’s ecological impact.
Similar Reads
You might also enjoy these articles
Free Architecture Competitions You Can Enter Right Now
No entry fees, real prizes. Here are the best free architecture competitions open for submissions in 2026.
Top 15 Architecture Competitions to Enter in 2026
From student-friendly idea competitions to prestigious international awards, here are the best architecture competitions open for entries in 2026. Updated regularly.
DIY & Engineering in Computational Design : Enter the BeeGraphy Design Awards
Showcase Your Creativity with Computational Design and Open Source Projects

Innovative Design Solutions: Award-Winning Projects from Recent Architecture Competitions
Exploring award-winning architectural projects shaping the future of design, sustainability, and community.
Explore Architecture Competitions
Discover active competitions in this discipline
The International Standard for Design Portfolios
The Global Benchmark for Architecture Dissertation Awards
The Global Benchmark for Graduation Excellence
Challenge to reimagine the Iron Throne
Comments (0)
Please login or sign up to add comments
No comments yet. Be the first to comment!