Adaptive Reuse Architecture: Transforming the Arts District Warehouse
The article discusses the transformation of a 1920s warehouse into a multifunctional space in LA's Arts District by Sheft Farrace.
In the heart of Los Angeles' dynamic Arts District, a significant architectural transformation is underway, exemplifying the principles of adaptive reuse architecture. The project, led by Sheft Farrace, involves the conversion of a 1920s warehouse into a multifunctional space that challenges traditional notions of workspace and community engagement.




Historical Context and Project Vision
Preserving Industrial Heritage
The Arts District Warehouse, originally constructed in the 1920s, features classic LA bow-truss architecture, a style that is emblematic of the city's industrial past. Sheft Farrace's approach respects and preserves the building's historical integrity while infusing it with new life to meet contemporary needs.



Vision for a Multifunctional Space
As the COVID-19 pandemic reshaped work and social interactions, the design team recognized the need to adapt the project to these new realities. The vision evolved from a conventional office space to a versatile environment that could function as a workplace, event space, and creativity studio, all in one.



Design Strategy and Implementation
Structural Innovations
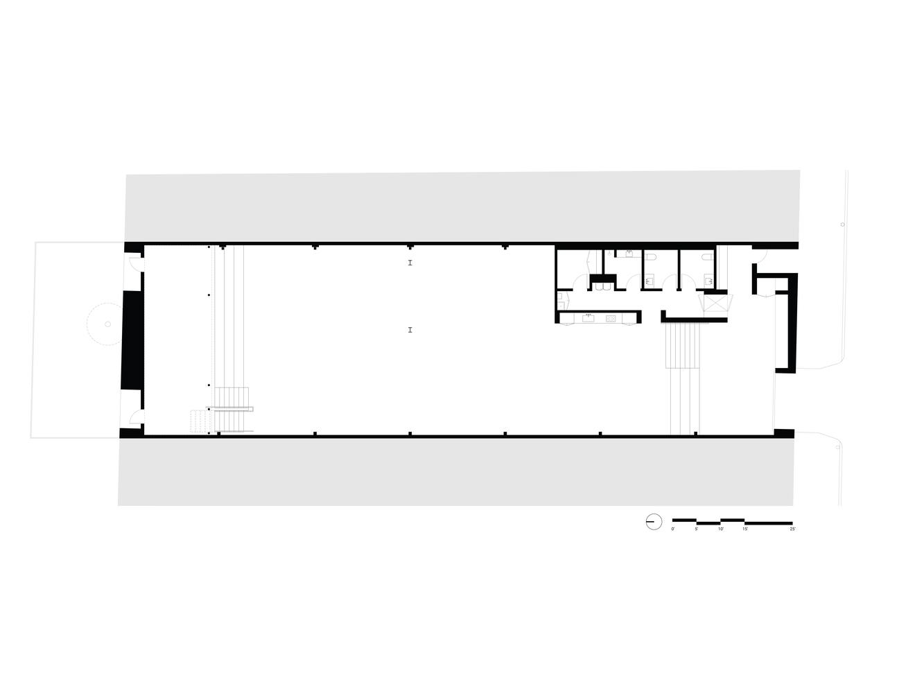
One of the key strategies employed in the adaptive reuse of the Arts District Warehouse was the manipulation of the ground plane. By excavating areas at the front and rear of the building, Sheft Farrace created new indoor/outdoor spaces that enhanced the building’s functionality and accessibility.



Zoning for Dynamic Use
The interior layout was designed to accommodate various activities, with clear zones delineated for different functions. This approach allows for flexibility in the building's use, catering to a wide range of events and work styles.


Architectural Details and Materials
Maintaining the Aesthetic
While the exterior underwent significant modifications, including new openings and a revamped entry vestibule, the architects were meticulous in maintaining the building’s original aesthetic. This strategy aligns with the Los Angeles tradition of unassuming exteriors that reveal a transformed interior.


Material Selection
Consistent with the ethos of adaptive reuse, the materials chosen for the renovation were selected to reflect both the building’s industrial heritage and modern sustainability practices. This included the use of recycled materials where possible, reinforcing the project's commitment to environmental responsibility.


Impact and Future Implications
Cultural and Economic Impact
The transformed Arts District Warehouse not only provides a functional space but also contributes to the cultural vitality of the area. It serves as a model for how adaptive reuse architecture can play a crucial role in urban revitalization.


Future of Adaptive Reuse
As cities continue to evolve, projects like the Arts District Warehouse illustrate the potential for adaptive reuse architecture to meet changing needs. This approach not only preserves historical structures but also provides innovative solutions for modern challenges.

A Blueprint for Urban Transformation
The Arts District Warehouse by Sheft Farrace stands as a beacon of adaptive reuse architecture in Los Angeles. It exemplifies how thoughtful design can repurpose old structures for new uses, providing sustainable and versatile spaces that respond to the evolving demands of urban life.


All photographs are work of Mike Kelley
Popular Articles
Popular articles from the community
On the Brooks House by Monsoon Collective – A Contemporary Kerala Home Rooted in Tradition
Kerala home blending tradition and modernity with water-inspired design, brick architecture, courtyard planning, and sustainable rainwater harvesting strategies.
Inverted Architecture Installation by Studio Link-Arc: Exploring the Intersection of Architecture and Living Organisms
Inverted Architecture Installation by Studio Link-Arc blends mycelium, sustainability, inverted design, ecological cycles, and urban adaptive architecture in Shenzhen.
A Contemporary Take on Iranian Residential Architecture
A modern interior design in Mashhad that reinterprets brick, light, and spatial flow to create a warm, contemporary residential architecture.
Flamboyant House by Juliana Camargo + Prumo Projetos
Modern Brazilian house integrating existing tree, pool, and volumes with glass, wood, and transitional spaces blending interior, exterior, and landscape seamlessly.
Similar Reads
You might also enjoy these articles
Top 15 Architecture Competitions to Enter in 2026
From student-friendly idea competitions to prestigious international awards, here are the best architecture competitions open for entries in 2026. Updated regularly.
DIY & Engineering in Computational Design : Enter the BeeGraphy Design Awards
Showcase Your Creativity with Computational Design and Open Source Projects

Innovative Design Solutions: Award-Winning Projects from Recent Architecture Competitions
Exploring award-winning architectural projects shaping the future of design, sustainability, and community.
Explore Architecture Competitions
Discover active competitions in this discipline
The International Standard for Design Portfolios
The Global Benchmark for Architecture Dissertation Awards
The Global Benchmark for Graduation Excellence
Challenge to reimagine the Iron Throne
Comments (0)
Please login or sign up to add comments
No comments yet. Be the first to comment!