Contemporary Temple Architecture: Datta Vihara Shrine by Karan Darda Architects in Pune
A contemporary Hindu shrine in Pune blending traditional temple elements with modern architecture to create a vibrant spiritual and communal space.
A Sacred Space Reimagined for Modern Spirituality
The Datta Vihara Shrine in Pune, India, designed by Karan Darda Architects, exemplifies a profound reinterpretation of contemporary temple architecture. Conceived in 2025, this 1000-square-foot spiritual and community space emerged from the need to relocate an existing shrine, evolving into an opportunity to harmonize tradition and modern design language.



Designing for Devotion and Community
The site, limited to just 400 square feet, was not only intended for worship but envisioned as a communal gathering place that bridges spiritual sanctity with daily human interaction. Initially imagined as a traditional temple deeply rooted in historical forms, the design process expanded through collaborative dialogue, leading to a form that embraces both heritage and contemporary sensibilities.


Integrating Traditional Elements with Modern Form
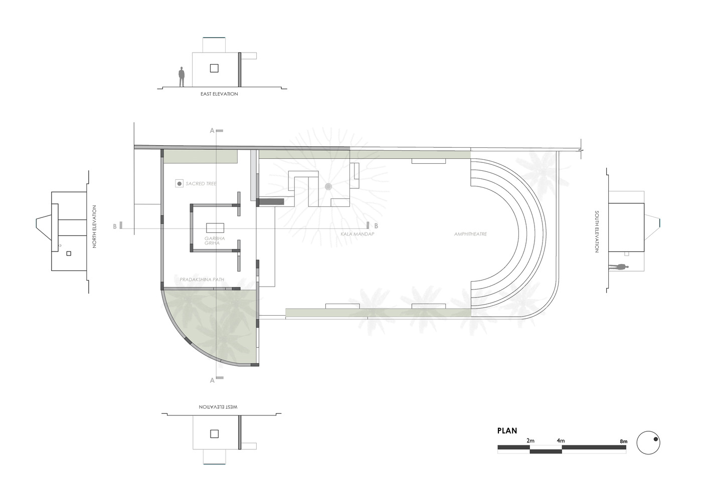
The shrine adopts essential elements of classical Hindu temple architecture, such as the garbhagriha (sanctum), mandapa (assembly hall), and pradakshina path (circumambulatory path), reinterpreting them through minimalist lines and contemporary materiality. A defining shikhara (spire) tops the structure, integrating a skylight that allows natural light to bathe the sanctum, creating a calm and reverent ambiance within.



Spatial Design Rooted in Cultural Context
Beyond the central worship space, the shrine expands into a larger open plaza featuring an amphitheater. This extension transforms the shrine into a space for community rituals, cultural gatherings, and spiritual discourse. Traditional Maharashtrian architectural features such as the otta (raised platform), par (threshold), and osari (veranda) are tactfully integrated into the design, establishing a connection to the regional context and offering shaded areas for relaxation and informal gatherings.




Materiality Inspired by Symbolism and Nature
The shrine is finished in yellow lime plaster, evoking the sacred tone and scent of chandan (sandalwood), which enhances both its tactile quality and sacred symbolism. The warm yellow hue creates a striking presence while resonating with the cultural color palette of Maharashtra. Basalt stone flooring anchors the structure with a sense of permanence, evoking a timeless temple ambiance amidst its modern geometry.



A Harmonious Fusion of Sacred and Social
The Datta Vihara Shrine stands as more than just a place of worship—it serves as a modern sanctuary for reflection, celebration, and unity. Its thoughtful balance of tradition, functionality, and community orientation reflects a new paradigm in contemporary temple architecture. Through its architectural expression, the shrine successfully fosters a spiritual environment while remaining inclusive, inviting, and adaptable to the evolving rhythms of community life.






All Photographs are works of Abhishek Chavhan - Architectural captures
Popular Articles
Popular articles from the community
A Contemporary Take on Iranian Residential Architecture
A modern interior design in Mashhad that reinterprets brick, light, and spatial flow to create a warm, contemporary residential architecture.
An Miên Lumière Cafe by xưởng xép, Ho Chi Minh City, Vietnam
An industrial-inspired café where layered steel and warm light create a dynamic, immersive environment shaped by reflection, depth, and perception.
Atelier Macri Concept Store Interior Design by CASE-REAL
Atelier Macri store features a "ko" counter, walnut wood details, cork displays, blending retail, gallery, and seamless customer experiences.
On the Brooks House by Monsoon Collective – A Contemporary Kerala Home Rooted in Tradition
Kerala home blending tradition and modernity with water-inspired design, brick architecture, courtyard planning, and sustainable rainwater harvesting strategies.
Similar Reads
You might also enjoy these articles
Top 15 Architecture Competitions to Enter in 2026
From student-friendly idea competitions to prestigious international awards, here are the best architecture competitions open for entries in 2026. Updated regularly.
DIY & Engineering in Computational Design : Enter the BeeGraphy Design Awards
Showcase Your Creativity with Computational Design and Open Source Projects

Innovative Design Solutions: Award-Winning Projects from Recent Architecture Competitions
Exploring award-winning architectural projects shaping the future of design, sustainability, and community.
Explore Architecture Competitions
Discover active competitions in this discipline
The International Standard for Design Portfolios
The Global Benchmark for Architecture Dissertation Awards
The Global Benchmark for Graduation Excellence
Challenge to reimagine the Iron Throne
Comments (0)
Please login or sign up to add comments
No comments yet. Be the first to comment!