Elderly Daycare Center Architecture: Yangbei Village CCP by Studio 10
Yangbei Village CCP Elderly Day-Care Center redefines elderly care architecture by blending cultural heritage, community engagement, and environmental sustainability.
Architectural design plays a crucial role in shaping inclusive, community-centered spaces, especially for elderly care. The Yangbei Village CCP Elderly Day-Care Center, designed by Studio 10, is an innovative response to the needs of an aging rural population in Shaoguan, China. This project integrates traditional Yao and Hakka architectural elements with modern spatial solutions, fostering a welcoming environment for the elderly while enhancing community engagement.




Context and Cultural Significance
Located in the Ruyuan Yao Autonomous County of northern Guangdong, the project is deeply rooted in the region’s diverse cultural heritage. Historically, Yao settlements were built in mountainous terrains with rammed-earth and timber structures, while the Hakka communities settled in the plains, engaging in agriculture. As part of ongoing rural revitalization efforts, many elderly residents remain in traditional villages while younger generations migrate to urban areas. The Yangbei Village CCP Center addresses this demographic shift by providing a dedicated space for elderly care, incorporating elements that reflect local building traditions.





Architectural Approach and Design Elements
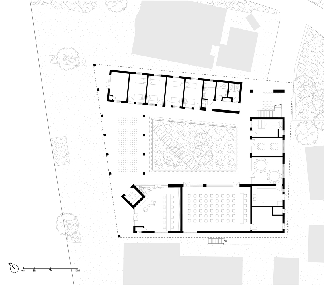
The design of the daycare center prioritizes openness, accessibility, and community interaction. The original site featured a closed courtyard surrounded by temporary structures with overhanging eaves. Studio 10 transformed this layout into a dynamic, semi-open environment by introducing multiple entrances, visual corridors, and a semi-outdoor veranda that connects the inner courtyard with the surrounding village.



Colonnades and covered walkways, characteristic of Yao and Hakka architecture, define the structure’s public circulation areas. These “gray spaces” provide shaded, weather-protected gathering spots for residents, reinforcing the project's focus on social connectivity and environmental adaptability. The ground floor integrates pedestrian-friendly access points, linking the center to the village through strategic pathways that encourage interaction between the elderly and the broader community.



Functional Zoning and Spatial Organization
The facility’s layout is designed to accommodate various services essential for elderly care. The north wing houses private living quarters, positioned to maximize natural light and cross-ventilation. Public spaces, including a multi-purpose hall and service areas, are strategically placed along high-traffic zones to enhance accessibility. The center also features a canteen, clinic, and activity rooms, ensuring comprehensive support for elderly residents.


A defining architectural feature is the overhanging eaves structure, which unifies the building’s multiple volumes while creating semi-outdoor gathering spaces. This integration of indoor and outdoor areas enhances the usability of the space, allowing elderly residents to engage in activities while remaining connected to their surroundings. The second floor accommodates administrative offices and a rooftop garden, providing additional communal spaces that blend traditional design elements with contemporary functionality.


Materiality and Environmental Integration
The center’s material palette reflects a balance between local craftsmanship and modern construction techniques. Earth-toned stucco facades pay homage to the region’s rammed-earth structures, while vintage embossed glass windows evoke the aesthetic of traditional wooden lattice windows. Hollow bricks are strategically used for louvers and partitions, maintaining the visual and functional aspects of local architecture.


The southwest corner of the public service hall features a striking skylight tower, marking the highest point of the structure. Inspired by Yao tribal totems, this tower filters natural light into the interior, creating an interplay of shadows that adds depth to the space. The rooftop garden and semi-outdoor balconies enhance environmental sustainability, promoting cross-ventilation and passive cooling strategies suited to the region’s humid climate.


Enhancing Community Engagement Through Design
Beyond its function as an elderly daycare center, the facility serves as a communal hub for the entire village. The integration of public gathering areas, pedestrian pathways, and semi-outdoor verandas fosters interaction between different generations. The design responds to the social dynamics of the village, ensuring that the elderly remain active participants in community life rather than isolated residents.




The courtyard serves as a focal point, seamlessly connecting various programmatic elements while providing a tranquil space for relaxation and engagement. By maintaining mature trees and incorporating planters along the courtyard’s edge, the design reinforces a connection with nature, further enriching the well-being of its occupants.




The Yangbei Village CCP Elderly Day-Care Center exemplifies how thoughtful architectural interventions can enhance elderly care while preserving cultural identity and community bonds. Through a careful balance of traditional design principles and modern spatial planning, Studio 10 has created a space that not only meets functional needs but also fosters a sense of belonging and interaction. As the demand for elderly-friendly architecture grows, projects like this set a precedent for integrating historical influences with contemporary solutions, ultimately redefining the role of community-based care facilities.






All photographs are works of Arch Nango, Chao Zhang
Popular Articles
Popular articles from the community
Free Architecture Competitions You Can Enter Right Now
No entry fees, real prizes. Here are the best free architecture competitions open for submissions in 2026.
Inverted Architecture Installation by Studio Link-Arc: Exploring the Intersection of Architecture and Living Organisms
Inverted Architecture Installation by Studio Link-Arc blends mycelium, sustainability, inverted design, ecological cycles, and urban adaptive architecture in Shenzhen.
Atelier Macri Concept Store Interior Design by CASE-REAL
Atelier Macri store features a "ko" counter, walnut wood details, cork displays, blending retail, gallery, and seamless customer experiences.
Fifth NRE Jazz Club – De Bever Architecten: Eindhoven’s Revitalized Cultural Hub
Historic gas factory transformed into Fifth NRE Jazz Club blending modern sustainability, jazz culture, dining, and heritage architecture seamlessly.
Similar Reads
You might also enjoy these articles
Bamboo Housing Challenge 2026: Design Affordable, Sustainable Homes Using Bamboo
An international design competition by Bamboo U and IBUKU inviting architects and designers to reimagine affordable housing using bamboo — with the winning design built full-scale in Bali.
Computational Design & Education: Beegraphy Design Awards Introduces 7th Category (Featuring Jiyun's Innovative Approach)
Dive into Beegraphy’s 7th Design Awards category, where computational design meets education to create immersive, interactive learning tools, inspired by Jiyun’s work.
From Parametric Lighting to Urban Furniture: Join the 2nd Workshop in Beegraphy’s Computational Design Series
Dive into Cutting-Edge Design Techniques and Practical Applications with Industry Experts
Explore Architecture Competitions
Discover active competitions in this discipline
The International Standard for Design Portfolios
The Global Benchmark for Architecture Dissertation Awards
The Global Benchmark for Graduation Excellence
Challenge to reimagine the Iron Throne
Comments (0)
Please login or sign up to add comments
No comments yet. Be the first to comment!