Haruna Innovation Center: A Model of Sustainable Office Building Design by Naomi Sato Architects
Haruna Innovation Center by Naomi Sato Architects exemplifies sustainable office building design, blending wood, natural light, and eco-friendly systems.
The Haruna Innovation Center, designed by Naomi Sato Architects, stands as a benchmark for sustainable office building design in Japan. Situated at the foot of Mt. Haruna in Gunma Prefecture, this forward-thinking facility serves as the central hub for Haruna Beverage’s product planning, research, and development. The project not only fosters innovation but also redefines modern workplace environments through its seamless blend of eco-friendly materials, natural light, and thoughtful spatial organization.




Vision Behind the Sustainable Office Building Design
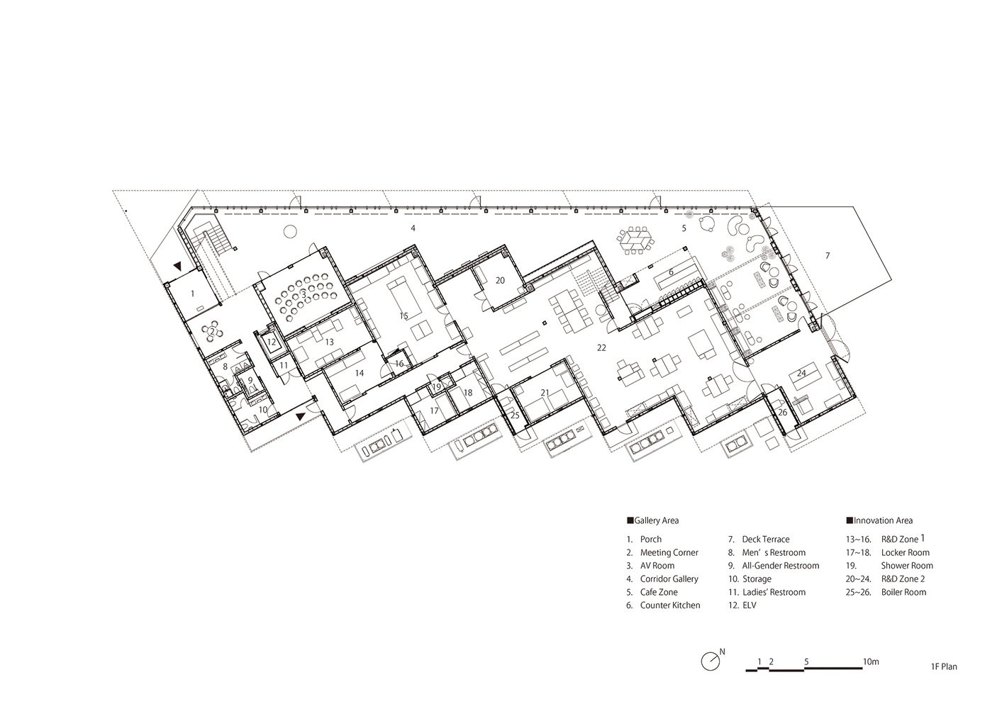
The Haruna Innovation Center was conceived as more than just an office space. Naomi Sato Architects envisioned a facility that would inspire creativity, facilitate collaboration, and connect employees with nature. The building is divided into three primary zones, each supporting a different aspect of the company’s operations.

The Office Area is designed as a free-address workspace, promoting communication and co-creation among employees. The Innovation Area is dedicated to research and development, encouraging scientists to work creatively using all five senses. The Gallery Area welcomes visitors, offering an interactive experience that showcases Haruna Beverage’s history, processes, and products.

This integration of diverse functions within a single facility is a testament to the potential of sustainable office building design to serve both internal and external stakeholders.

Architectural Approach and Material Selection
The design of the Haruna Innovation Center is driven by the goal of creating a comfortable and aesthetically refined environment that supports both productivity and well-being. Wood is the primary material used throughout the building, chosen for its warmth, sustainability, and natural aesthetic appeal.

A fireproof wooden structure was selected to meet stringent safety standards while enhancing the interior's visual and tactile qualities. Exposed wooden beams and columns lend the interior a sense of strength and security, while also creating a welcoming atmosphere reminiscent of a mountain lodge.

Natural light is a defining element of the project. The building’s zig-zag plan layout allows daylight to penetrate deeply into the interior, reducing the need for artificial lighting. Large windows on the north side and openings between the staggered roof sections flood the spaces with soft, diffused light, enhancing the sense of openness and connection to nature.

Spatial Fluidity and Human-Centric Design
The Haruna Innovation Center exemplifies sustainable office building design through its fluid spatial arrangement and user-focused planning. The zig-zag layout creates a dynamic interplay between open collaborative zones and quiet, more private workspaces. This thoughtful organization accommodates different working styles while fostering spontaneous interactions among employees.

The gallery on the ground floor is both a showroom and a social hub, allowing visitors and staff to experience the company’s products while engaging in informal conversations. Adjacent to this space is a café area that further promotes relaxation and collaboration. The upper floor office area offers panoramic views of the surrounding greenery, reinforcing the building’s connection to its natural context.

Eco-Friendly Systems and Energy Efficiency
Sustainability lies at the heart of the Haruna Innovation Center’s design philosophy. Naomi Sato Architects incorporated multiple energy-efficient solutions to minimize the building’s environmental impact while maximizing comfort for occupants.


The high-insulation roof and walls significantly reduce heat loss, ensuring optimal indoor temperatures throughout the year. A floor-supply air conditioning system improves air circulation and minimizes energy consumption. The reliance on natural light further reduces electricity usage, aligning the building’s operations with CO2 reduction goals.


These environmentally conscious strategies not only reduce operational costs but also position the Haruna Innovation Center as a leader in sustainable office building design in Japan.


Connection to Nature and the Surrounding Landscape
One of the most compelling aspects of the Haruna Innovation Center is its seamless integration with the natural landscape of Mt. Haruna. Naomi Sato Architects drew inspiration from the mountainous surroundings, crafting a building that feels like an extension of the environment.

The use of wood, combined with generous glazing and greenery-filled courtyards, blurs the boundary between indoors and outdoors. Employees can enjoy views of the forest while working, creating an atmosphere that promotes mental clarity and reduces workplace stress.

The entrance porch and north garden act as transitional spaces, gently guiding visitors into the building while providing a tranquil buffer from the outside world. This synthesis of architecture and nature reinforces the project’s commitment to creating a workspace that prioritizes both productivity and well-being.

Structural Integrity and Safety Considerations
While aesthetics and sustainability are central to the design, structural resilience is equally vital. Naomi Sato Architects ensured that the Haruna Innovation Center meets rigorous Japanese standards for fire resistance and earthquake safety.

The fireproof wooden structure is not only an architectural statement but also a safeguard against potential hazards. This innovative approach demonstrates how sustainable office building design can achieve a balance between environmental responsibility and structural security.

A Benchmark for Future Office Design
The Haruna Innovation Center by Naomi Sato Architects represents a future-forward model of sustainable office building design. It illustrates how architecture can foster innovation, strengthen community ties, and promote environmental responsibility within a single facility.


As companies worldwide seek to align their workplaces with sustainability goals, this project stands as a source of inspiration. It challenges traditional office design paradigms and proves that workspaces can be both functional and deeply connected to nature.

The Haruna Innovation Center redefines sustainable office building design by harmonizing innovation, environmental consciousness, and human-centric planning. Naomi Sato Architects have created a workplace that not only supports Haruna Beverage’s operational goals but also sets a new standard for sustainable architecture in Japan and beyond.





All Photographs are works of Kazumi Ogata
Popular Articles
Popular articles from the community
Atelier Macri Concept Store Interior Design by CASE-REAL
Atelier Macri store features a "ko" counter, walnut wood details, cork displays, blending retail, gallery, and seamless customer experiences.
Louis Malle Cinema: A Limestone Cultural Landmark Revitalizing Community Life in Prayssac
Limestone cinema extension with public forecourt, blending heritage and modern design to create flexible cultural spaces and strengthen community interaction.
A Contemporary Take on Iranian Residential Architecture
A modern interior design in Mashhad that reinterprets brick, light, and spatial flow to create a warm, contemporary residential architecture.
Treehouse Apartment: A Warm Timber Interior Blending Craft, Play, and Contemporary Living
Warm timber apartment with integrated treehouse, combining natural materials, craftsmanship, and playful design to create a flexible, family-oriented living environment.
Similar Reads
You might also enjoy these articles
Top 15 Architecture Competitions to Enter in 2026
From student-friendly idea competitions to prestigious international awards, here are the best architecture competitions open for entries in 2026. Updated regularly.
DIY & Engineering in Computational Design : Enter the BeeGraphy Design Awards
Showcase Your Creativity with Computational Design and Open Source Projects

Innovative Design Solutions: Award-Winning Projects from Recent Architecture Competitions
Exploring award-winning architectural projects shaping the future of design, sustainability, and community.
Explore Office Building Competitions
Discover active competitions in this discipline
The International Standard for Design Portfolios
The Global Benchmark for Architecture Dissertation Awards
The Global Benchmark for Graduation Excellence
Challenge to reimagine the Iron Throne
Comments (0)
Please login or sign up to add comments
No comments yet. Be the first to comment!