House of Borrowed Scenery by Atelier JingJing: A Courtyard House Renovation in Beijing that Embraces Light, Tradition, and Borrowed Views
A sensitive courtyard house renovation in Beijing merging tradition, borrowed scenery, and spatial clarity for a young urban family.
Reviving a Courtyard Legacy in Beijing’s Historic Hutongs
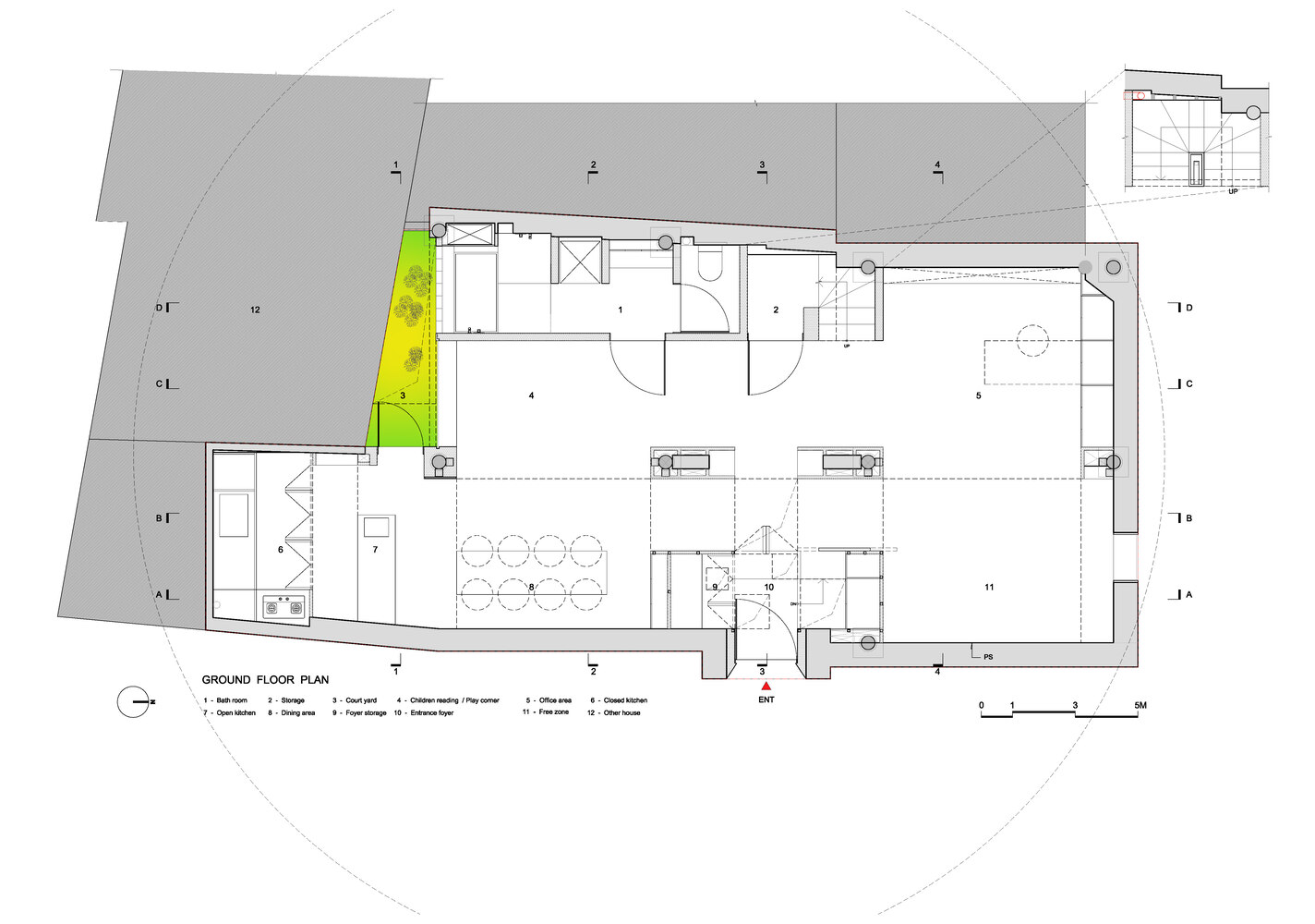
Located within the dense urban fabric of Beijing’s ancient hutong district, the House of Borrowed Scenery by Atelier JingJing is a sensitive and poetic courtyard house renovation in Beijing that weaves together heritage, modern spatial needs, and the beauty of nature. Originally occupying just 97 square meters, the project is a re-renovation of a previously altered site—now reimagined to maximize light, spatial fluidity, and emotional connection with its context.



Confronting Light and Space Challenges in a Compact Plot
The site presented multiple challenges typical of Beijing’s historical hutongs: limited access to natural light, confined courtyard dimensions, and an echo-prone tall volume that diminished comfort. The north building faced the street with a narrow window, while the south volume featured two skylights—yet neither configuration adequately resolved the oppressive atmosphere likened to being “at the bottom of a well.”



High ceilings amplified sound reverberation, while the narrow plan created disconnection between the different zones. These architectural barriers became starting points for a thoughtful design intervention that balances comfort with cultural continuity.




A Dialogue Between Tradition and New Possibilities
The design preserves the structural integrity of the original north building, while the south volume—constructed using pseudo-traditional wooden methods—is largely dismantled, retaining only the foundational masonry. This juxtaposition of authentic and artificial tradition becomes a narrative pivot, where architectural honesty guides the transformation.



The concept of “borrowed scenery,” rooted in Chinese garden philosophy, inspires the architectural strategy. During early site assessments, an ancient tree in a neighboring courtyard—towering 21 meters high—was identified as a key visual anchor. Though separated by 32 meters, the tree became a surrogate courtyard element, guiding the positioning of roof heights and window placements to draw it into daily view.




The Art of Roof Modulation and Spatial Clarity
Rather than rely solely on interior additions, the renovation redefines the roof geometry to introduce layers of daylight and shadow play. Traditional gray bricks, curved ceramic tiles, and exposed wooden elements establish a material language that honors Beijing’s courtyard vernacular, while adjustments in height and rhythm resolve issues of scale and volume.




On the ground level, the previously underutilized northwest courtyard is expanded and transformed into a landscaped micro-garden. The removal of the external ladder allows for a seamless transition from indoor to outdoor, improving natural light access and reinforcing the visual bond with the borrowed tree.



A Home Tailored to Family Life
At the entry level, a new entrance reorients circulation and improves privacy. Practical amenities like stroller and bicycle storage, integrated with wet-dry zones and an open kitchen, allow the space to support the dynamic needs of a young family. The remaining floor area becomes a multi-functional living and play space, responsive to evolving daily routines.


Upstairs, the master suite enjoys a clear division between rest and wardrobe areas, while maintaining connection to a rooftop platform that expands the spatial sequence vertically. A mezzanine level accommodates two compact bedrooms and a shared bathroom. From here, slim strip windows frame elevated views of the Bell Tower and the silhouette of the ancient tree, reinforcing the concept of layered borrowed scenery.


Materials That Capture Time’s Passage
The renovation’s design language is refined yet tactile. Essential furniture items—beds, chairs, and storage—are pared down, allowing the architecture to breathe. Natural lighting becomes a dynamic material, shifting across seasons and filtering through roof openings to animate the muted surfaces of brick, wood, and tile. The overall aesthetic is one of quiet elegance, where every element holds purpose and meaning.



Design That Serves Life, Not Just Form
Rather than focusing on spectacle, Atelier JingJing grounds their design in the rhythms and rituals of domestic life. This courtyard house renovation in Beijing exemplifies how contemporary design can enhance traditional spaces without erasing their soul. The final home supports the family’s sense of freedom, offering layered views, tactile materials, and moments of stillness that resonate deeply with both memory and modernity.



All Photographs are works of Weiqi Jin
Popular Articles
Popular articles from the community
The Ken Roberts Memorial Delineation Competition (Krob)
As the most senior architectural drawing competition currently in operation anywhere in the world, it draws hundreds of entries each year, awarding the very best submissions in a series of medium-based categories.
Free Architecture Competitions You Can Enter Right Now
No entry fees, real prizes. Here are the best free architecture competitions open for submissions in 2026.
Inverted Architecture Installation by Studio Link-Arc: Exploring the Intersection of Architecture and Living Organisms
Inverted Architecture Installation by Studio Link-Arc blends mycelium, sustainability, inverted design, ecological cycles, and urban adaptive architecture in Shenzhen.
Fifth NRE Jazz Club – De Bever Architecten: Eindhoven’s Revitalized Cultural Hub
Historic gas factory transformed into Fifth NRE Jazz Club blending modern sustainability, jazz culture, dining, and heritage architecture seamlessly.
Similar Reads
You might also enjoy these articles
Free Architecture Competitions You Can Enter Right Now
No entry fees, real prizes. Here are the best free architecture competitions open for submissions in 2026.
Top 15 Architecture Competitions to Enter in 2026
From student-friendly idea competitions to prestigious international awards, here are the best architecture competitions open for entries in 2026. Updated regularly.
DIY & Engineering in Computational Design : Enter the BeeGraphy Design Awards
Showcase Your Creativity with Computational Design and Open Source Projects

Innovative Design Solutions: Award-Winning Projects from Recent Architecture Competitions
Exploring award-winning architectural projects shaping the future of design, sustainability, and community.
Explore Architecture Competitions
Discover active competitions in this discipline
The International Standard for Design Portfolios
The Global Benchmark for Architecture Dissertation Awards
The Global Benchmark for Graduation Excellence
Challenge to reimagine the Iron Throne
Comments (0)
Please login or sign up to add comments
No comments yet. Be the first to comment!