In-Between House by Super Assembly: A Biophilic House Design in Singapore That Blurs Architecture and Landscape
A biophilic house in Singapore blurs indoor and outdoor boundaries using voids, greenery, and layered natural materials.
Redefining Living Spaces Through Biophilic House Design
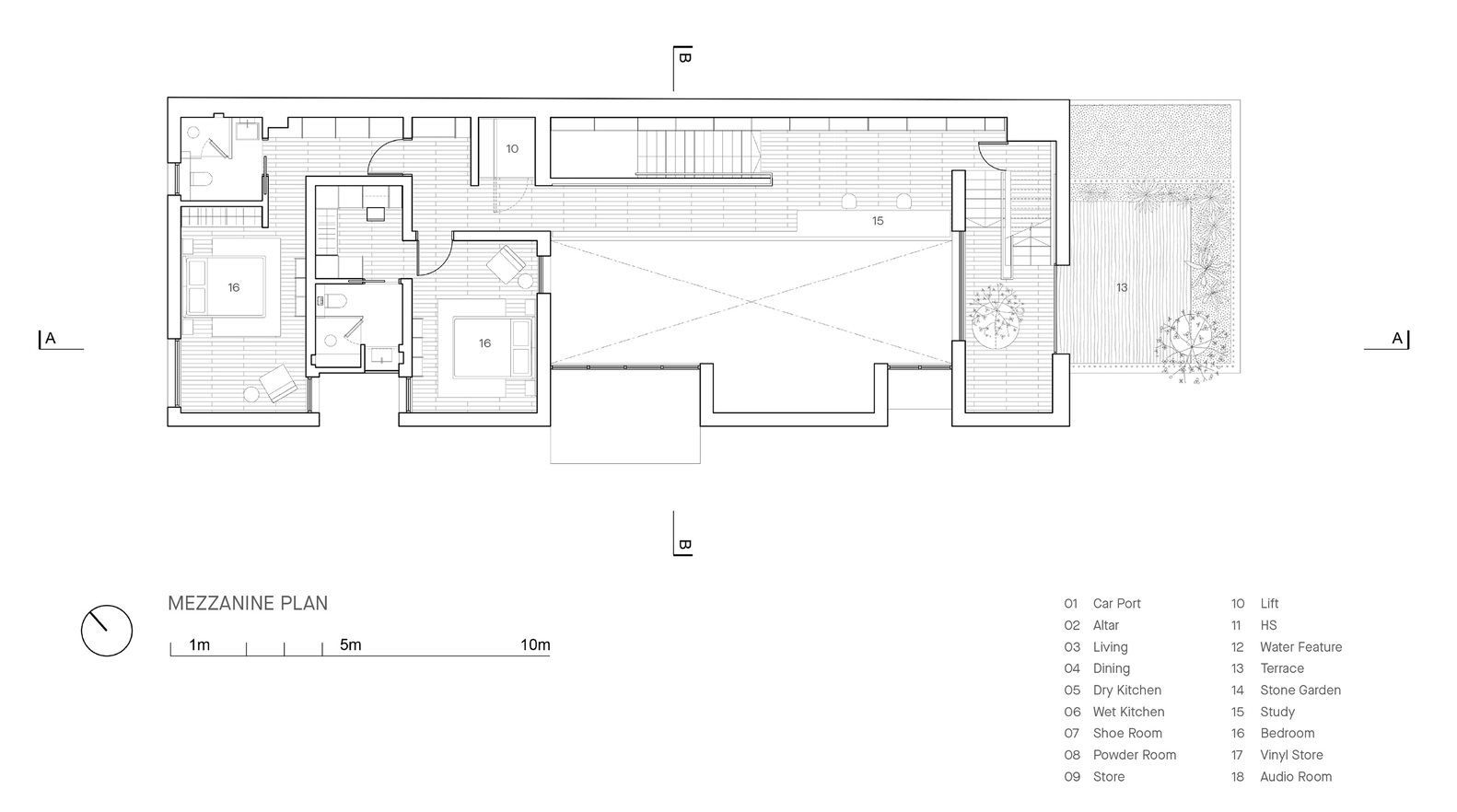
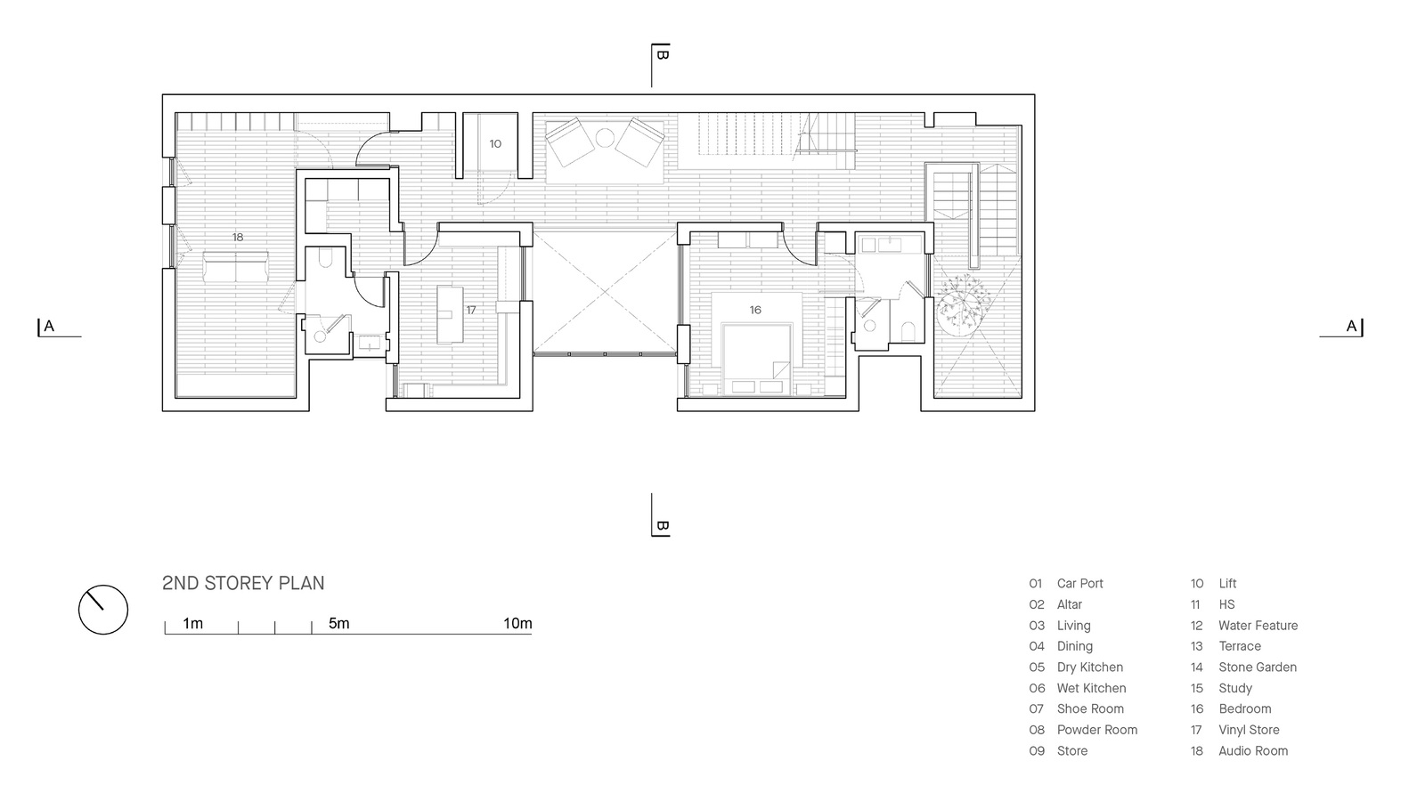
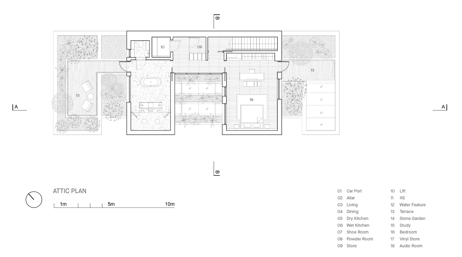
In the lush urban context of Singapore, In-Between House by Super Assembly offers a transformative approach to contemporary residential living through biophilic house design. Composed of four distinct cuboid volumes, the 600-square-meter residence is defined not just by what is built, but by what is left unbuilt. These carefully choreographed voids—open spaces between architectural masses—invite landscape, light, and ventilation deep into the home, creating a spatial rhythm where nature is not merely an addition, but an integral design element.



Architecture of the In-Between: Embracing Void and Volume
Led by architect Iskandar Idris, Super Assembly’s concept of the “in-between” is more than a formal strategy—it is a philosophical stance. Rather than sealing off interior life from the outdoors, the home embraces the void as a generator of spatial richness. Pockets of greenery, water features, and planters animate the in-between zones, mediating the transition between interior and exterior. These interstitial courtyards and garden pockets not only soften the rigid geometry of the volumes but also bring in natural daylight, casting patterns that evolve with time and season.



Living Among Trees: Vertical Biophilic Integration
Biophilic design takes vertical form in this residence. At the carport, a tree pierces through the roof, setting a precedent for the intimate integration of nature and structure. Within the house, another tree punctuates the interior floor beside a custom altar, introducing a spiritual dimension to the natural elements. At the heart of the home lies a central courtyard, planted with shrubs and slender trees that grow freely into a double-volume atrium, crowned by skylights that channel natural light through floating planter boxes and overhead greenery.



Immersive Interior Design Rooted in Nature
The material palette strengthens the home’s biophilic intent. Inside, vertical timber veneers and woven wall coverings create textural depth that echoes tree trunks and organic surfaces. The reddish-toned terracotta cladding from the exterior continues indoors, blurring spatial boundaries and grounding the structure in a warm, earthy tonality. The interplay of materials, textures, and tones reinforces a sensory continuity, where the experience of nature is carried throughout the home—not as decoration but as atmosphere.



Dissolving Boundaries Between Inside and Outside
Movement through the In-Between House is a journey through layers of nature-infused architecture. The house reads as a series of interconnected garden rooms, where the distinctions between built and unbuilt spaces dissolve. This seamless integration fosters not only visual and spatial openness but also improves environmental comfort by promoting cross ventilation and thermal balance. The use of voids as connective tissues challenges traditional notions of solid architectural massing and instead prioritizes breathable, living environments.




A New Urban Typology for Tropical Living
In-Between House reimagines tropical residential architecture in Singapore by focusing on how void, vegetation, and form can coexist. In a dense urban fabric, the home’s design resists enclosure in favor of porosity. This porosity allows for dynamic interaction with light, air, and plant life, resulting in a living experience that feels open, grounded, and intimately connected to the rhythms of nature. It serves as a compelling case for biophilic house design as not just an aesthetic choice, but a necessary strategy for sustainable and soulful urban living.



Biophilic House Design as Architectural Language
Super Assembly’s In-Between House is more than a striking residential project—it is a manifesto for how architecture can create meaning and well-being through the intelligent use of space, light, and nature. In a climate where sustainability and quality of life are increasingly intertwined, the project stands as a model for future-forward biophilic house design in Singapore and beyond. It teaches us that the spaces we leave open can be just as powerful—and even more life-enhancing—than those we build.





All Photographs are works of Finbarr Fallon
Popular Articles
Popular articles from the community
Inverted Architecture Installation by Studio Link-Arc: Exploring the Intersection of Architecture and Living Organisms
Inverted Architecture Installation by Studio Link-Arc blends mycelium, sustainability, inverted design, ecological cycles, and urban adaptive architecture in Shenzhen.
The Ken Roberts Memorial Delineation Competition (Krob)
As the most senior architectural drawing competition currently in operation anywhere in the world, it draws hundreds of entries each year, awarding the very best submissions in a series of medium-based categories.
An Miên Lumière Cafe by xưởng xép, Ho Chi Minh City, Vietnam
An industrial-inspired café where layered steel and warm light create a dynamic, immersive environment shaped by reflection, depth, and perception.
A Contemporary Take on Iranian Residential Architecture
A modern interior design in Mashhad that reinterprets brick, light, and spatial flow to create a warm, contemporary residential architecture.
Similar Reads
You might also enjoy these articles
Top 15 Architecture Competitions to Enter in 2026
From student-friendly idea competitions to prestigious international awards, here are the best architecture competitions open for entries in 2026. Updated regularly.
DIY & Engineering in Computational Design : Enter the BeeGraphy Design Awards
Showcase Your Creativity with Computational Design and Open Source Projects

Innovative Design Solutions: Award-Winning Projects from Recent Architecture Competitions
Exploring award-winning architectural projects shaping the future of design, sustainability, and community.
Explore Architecture Competitions
Discover active competitions in this discipline
The International Standard for Design Portfolios
The Global Benchmark for Architecture Dissertation Awards
The Global Benchmark for Graduation Excellence
Challenge to reimagine the Iron Throne
Comments (0)
Please login or sign up to add comments
No comments yet. Be the first to comment!