Jackson Hole History Museum: A Landmark of Modern Western Museum Architecture
Jackson Hole History Museum exemplifies modern Western museum architecture, blending historical preservation, transparency, and sustainability for an engaging cultural experience.
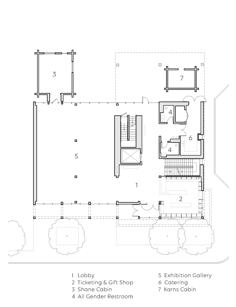
The Jackson Hole History Museum, designed by HGA, is a striking example of modern Western museum architecture. Situated in downtown Jackson, Wyoming, the museum blends historical preservation with contemporary design, creating an interactive and community-oriented cultural destination. By integrating traditional materials and forms with transparent, inviting spaces, the new museum redefines how history is experienced while maintaining a deep connection to its surroundings.



A Thoughtful Approach to Contextual Design
HGA’s design carefully balances modernity with the historic Western aesthetic of Jackson. The museum is located within a conservation-protected downtown block known for its rich history, public green spaces, and vibrant local businesses. The architectural language of the new structure reflects Jackson's signature Western style while incorporating contemporary elements to meet the needs of a 21st-century cultural institution.


The building’s facade references the traditional storefront typology, with a glassy ground floor that fosters openness and engagement. Punched windows on the upper level maintain the scale of the neighboring historic structures, while a covered boardwalk connects seamlessly to the surrounding urban fabric. Rustic materials, including warm woods, textured metals, and woven surfaces, create a tactile and inviting atmosphere that honors Jackson’s architectural heritage.


Transparency and Interactivity in Museum Design
A defining feature of the Jackson Hole History Museum is its emphasis on transparency and interactivity. Unlike its predecessor, which was enclosed and isolated from the town, the new museum is designed to be open and inviting. Large glass walls allow passersby to see inside, offering glimpses of exhibits and living history displays. This visual connection reinforces the museum’s role as a dynamic cultural hub rather than a static institution.



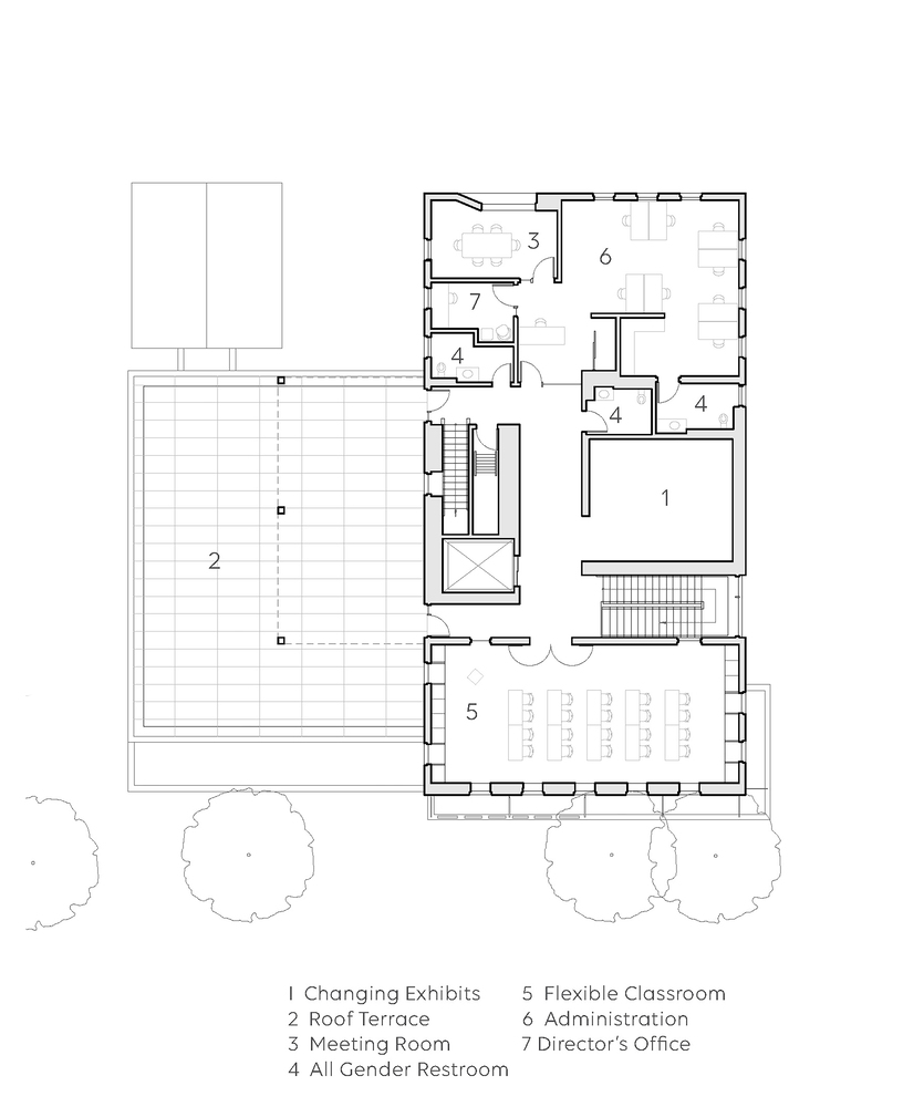
Inside, the museum layout encourages engagement with flexible spaces for educational programs, events, and community gatherings. The design incorporates interactive exhibits that connect visitors to the history of Jackson Hole, its indigenous communities, and the evolution of the American West. The integration of historic log cabins within the museum’s circulation path further enriches the visitor experience, bridging past and present in a meaningful way.



Indoor-Outdoor Integration and Sustainability
Modern Western museum architecture is deeply connected to its environment, and the Jackson Hole History Museum is no exception. The design seamlessly integrates indoor and outdoor spaces, fostering a continuous dialogue with the landscape. A ground-floor patio connects the museum to adjacent log cabins, while a second-floor rooftop terrace provides panoramic views of Snow King Mountain Resort and the surrounding hills. These outdoor spaces enhance the visitor experience by offering moments of reflection and connection to nature.



Sustainability was a key consideration in the project. HGA collaborated with stakeholders to ensure ecological responsibility throughout the design process. The building incorporates energy-efficient systems, responsible material sourcing, and passive design strategies to minimize environmental impact. By prioritizing sustainability, the museum aligns with Jackson Hole’s broader commitment to conservation and environmental stewardship.


A New Standard for Modern Western Museum Architecture
The Jackson Hole History Museum sets a new standard for modern Western museum architecture by successfully merging tradition with innovation. Through its thoughtful integration of history, transparency, and sustainability, the museum establishes itself as a vital cultural anchor for Jackson and beyond.




By embracing both the legacy of the American West and the potential of contemporary architecture, this project exemplifies how museums can be both contextual and forward-thinking. The Jackson Hole History Museum is not just a place to preserve history—it is a space that actively engages the community, fosters learning, and redefines what a modern museum can be in a historic setting.

All photographs are works of Albert Vecerka/Esto
Popular Articles
Popular articles from the community
An Miên Lumière Cafe by xưởng xép, Ho Chi Minh City, Vietnam
An industrial-inspired café where layered steel and warm light create a dynamic, immersive environment shaped by reflection, depth, and perception.
On the Brooks House by Monsoon Collective – A Contemporary Kerala Home Rooted in Tradition
Kerala home blending tradition and modernity with water-inspired design, brick architecture, courtyard planning, and sustainable rainwater harvesting strategies.
A Contemporary Take on Iranian Residential Architecture
A modern interior design in Mashhad that reinterprets brick, light, and spatial flow to create a warm, contemporary residential architecture.
Inverted Architecture Installation by Studio Link-Arc: Exploring the Intersection of Architecture and Living Organisms
Inverted Architecture Installation by Studio Link-Arc blends mycelium, sustainability, inverted design, ecological cycles, and urban adaptive architecture in Shenzhen.
Similar Reads
You might also enjoy these articles
Top 15 Architecture Competitions to Enter in 2026
From student-friendly idea competitions to prestigious international awards, here are the best architecture competitions open for entries in 2026. Updated regularly.
DIY & Engineering in Computational Design : Enter the BeeGraphy Design Awards
Showcase Your Creativity with Computational Design and Open Source Projects

Innovative Design Solutions: Award-Winning Projects from Recent Architecture Competitions
Exploring award-winning architectural projects shaping the future of design, sustainability, and community.
Explore Architecture Competitions
Discover active competitions in this discipline
The International Standard for Design Portfolios
The Global Benchmark for Architecture Dissertation Awards
The Global Benchmark for Graduation Excellence
Challenge to reimagine the Iron Throne
Comments (0)
Please login or sign up to add comments
No comments yet. Be the first to comment!