Set N Rise Bali Restaurant Architecture by Studio Kota – A Tribute to Balinese Terraced Landscapes
Set N Rise Bali Restaurant by Studio Kota blends terraced architecture, local materials, and landscape to create an immersive dining experience.
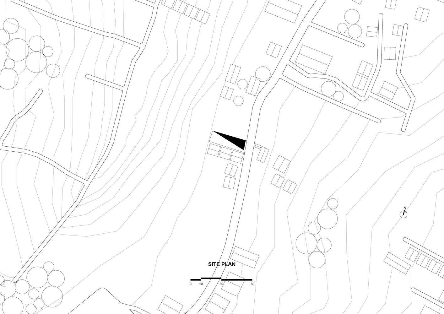
The Set N Rise Bali Restaurant, designed by Studio Kota Architecture, is a semi-open-air Asian grill restaurant located in the serene neighborhood of Pererenan, Bali. Completed in 2025, the 309 m² restaurant embodies a design concept deeply inspired by Balinese rice terraces (terasering), reflecting the layered beauty of the island’s agricultural landscapes. Through its stepped architecture, sustainable materials, and seamless integration with the natural slope of the land, Set N Rise offers both a unique culinary experience and a journey through Bali’s cultural and ecological identity.



Architectural Concept and Site Response
The design of Set N Rise responds to the natural contours of its sloping site, which features a 5-meter elevation drop from front to back. Instead of imposing a single structural gesture, the restaurant is carefully terraced to follow the topography, creating a series of interconnected platforms. This approach not only respects the terrain but also mirrors the stepped pattern of rice fields, blending architecture with the surrounding environment.



The building’s triangular footprint is oriented toward the east and south, allowing abundant daylight to illuminate the interiors while framing views of the lush terraced landscape. This orientation enhances the dining experience, creating a direct and continuous visual connection to nature.



Spatial Organization and Program
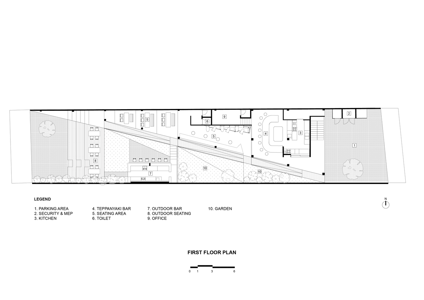
Set N Rise is not just a restaurant but also a mixed-use space with a fashion boutique located on the upper floor. The ground-level restaurant unfolds across four staggered platforms, each offering a distinct spatial character.
- Platform 1 (Street Level): Home to the grill station and main kitchen, featuring a striking bar counter crafted from resin-coated wood set atop textured concrete.
- Platform 2: Includes a combination of seating arrangements, suspended concrete benches, and integrated sofas, with restrooms placed behind a discreet service core.
- Platform 3: Designed for social gatherings, it features standard dining tables for four alongside an outdoor bar and DJ booth.
- Platform 4 (Lowest Level): Serves as the transition to the garden and outdoor amphitheater, bringing diners close to the rice fields for an immersive natural experience.
The central circulation spine, formed by a gently sloping ramp, connects all platforms while ensuring accessibility.




Landscape Design and Garden Integration
The garden is an extension of the restaurant’s architecture, following the triangular geometry of the building. It features tiered seating and an amphitheater-like arrangement for events, blending outdoor dining with lush tropical landscaping. At the garden’s lowest point, diners can experience eye-level views of the paddy fields, making the restaurant an intimate and site-sensitive destination.



Material Strategy and Sustainability
The material palette of Set N Rise prioritizes locality, texture, and sustainability. Pigmented cement floors, rough concrete surfaces, and locally sourced timber create a tactile dialogue that reflects the textures of Bali’s natural environment. The façade, wrapped in horizontal timber fins, not only references the contour lines of rice terraces but also acts as passive shading and rain protection.

This design strategy enhances climatic performance, allowing natural ventilation and daylight to permeate the space while reducing heat gain—a key consideration in Bali’s tropical climate.

Design Philosophy and Contextual Integration
Studio Kota Architecture aimed to create a project that resonates with Bali’s cultural landscape while introducing a modern dining experience. The layered platforms, open-air structure, and use of natural materials evoke a sense of place, blending traditional Balinese spatial logic with contemporary architectural forms. This combination results in a restaurant that feels both rooted in tradition and relevant to modern hospitality trends.




The Set N Rise Bali Restaurant Architecture by Studio Kota stands as a fusion of design, culture, and landscape, delivering an immersive dining journey framed by nature and Balinese heritage. Its terraced design, sustainable materials, and thoughtful integration with the land make it an architectural landmark for hospitality design in Bali.





All Photographs are works of Indra Wiras
Popular Articles
Popular articles from the community
Louis Malle Cinema: A Limestone Cultural Landmark Revitalizing Community Life in Prayssac
Limestone cinema extension with public forecourt, blending heritage and modern design to create flexible cultural spaces and strengthen community interaction.
Inverted Architecture Installation by Studio Link-Arc: Exploring the Intersection of Architecture and Living Organisms
Inverted Architecture Installation by Studio Link-Arc blends mycelium, sustainability, inverted design, ecological cycles, and urban adaptive architecture in Shenzhen.
Solar Steam: A Climate-Responsive Architecture That Redefines the Monument
A climate-responsive memorial architecture that transforms heat, decay, and time into a living system reflecting humanity’s ecological impact.
A Contemporary Take on Iranian Residential Architecture
A modern interior design in Mashhad that reinterprets brick, light, and spatial flow to create a warm, contemporary residential architecture.
Similar Reads
You might also enjoy these articles
Top 15 Architecture Competitions to Enter in 2026
From student-friendly idea competitions to prestigious international awards, here are the best architecture competitions open for entries in 2026. Updated regularly.
DIY & Engineering in Computational Design : Enter the BeeGraphy Design Awards
Showcase Your Creativity with Computational Design and Open Source Projects

Innovative Design Solutions: Award-Winning Projects from Recent Architecture Competitions
Exploring award-winning architectural projects shaping the future of design, sustainability, and community.
Explore Architecture Competitions
Discover active competitions in this discipline
The International Standard for Design Portfolios
The Global Benchmark for Architecture Dissertation Awards
The Global Benchmark for Graduation Excellence
Challenge to reimagine the Iron Throne
Comments (0)
Please login or sign up to add comments
No comments yet. Be the first to comment!