Small Corner Lot House Design: A Vertical Wooden Home by KOMINORU Design
This article explores KOMINORU Design’s compact vertical home on a corner lot, blending fire-resistant wood structure and smart urban design.
Innovative Small Footprint Architecture in Urban Japan
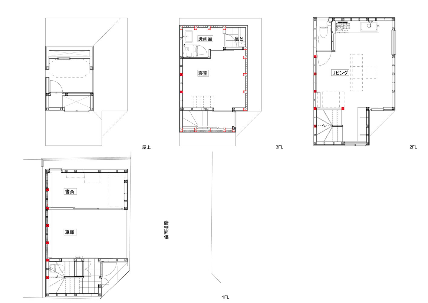
In dense urban environments, efficient use of limited land is not just a challenge but a design opportunity. KOMINORU Design showcases this philosophy in their latest project: a vertical wooden residence built on a corner lot in Japan, measuring just 9 tsubo (approximately 30 square meters). The house exemplifies the power of small corner lot house design, balancing spatial functionality, fire resistance, and elegant simplicity across three compact yet airy floors.



Maximizing Floor Area with Smart Zoning and Fire-Resistant Design
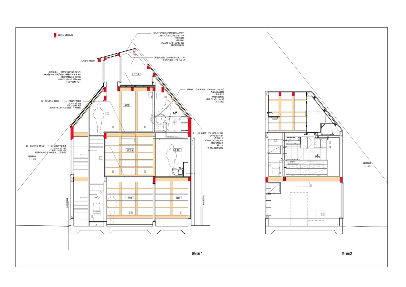
Located on a corner site, the house benefits from local zoning regulations that allow up to 80% building coverage if fire resistance criteria are met. Instead of using conventional semi-fire-resistant construction, the architects leveraged recent revisions to Japan's Building Standards Act, opting for semi-fire-proof construction. By using exposed wooden beams and columns wider than 120 centimeters, the design maintains visual warmth and structural expression while meeting fire safety codes.


This strategic approach enabled higher ceilings and more flexible internal layouts—an essential solution for the steeply sloped lot. The ceiling sits atop the beams, adding precious vertical room without compromising integrity or lightness.


Sculpting Light, Air, and Views Through Sloped Geometry
The shape of the house responds directly to site constraints and sky exposure angles. The road-facing south façade permitted a small rooftop terrace, capitalizing on the 1:1 slope of sky access. On the north side, governed by a 1:1.25 gradient, the team creatively incorporated a slanted wall that accommodates the third-floor bathroom and storage areas.


Rather than fighting the angular restrictions, the architects embraced them. The bathroom, infrequently used and storage-heavy, is nestled into the tightest zone. Even the bathtub was custom-fitted into the narrowing space, sliding in beneath the slanted ceiling. This ingenuity allowed every square meter to be purposefully programmed.


Sustainable Living in Vertical Layers
The verticality of the house is not just spatial—it’s also environmental. A rooftop ventilation window uses stack effect airflow, drawing breezes through the house like a natural wind tower. This passive ventilation system reduces the need for mechanical cooling and keeps the compact home fresh year-round.


Greenery was another design challenge addressed with creativity. Limited ground space made a garden impractical, so KOMINORU Design elevated it. A planted strip above the eaves and a second-floor garden bring nature into view from within, offering a calming presence amid the urban fabric.


A Model for Urban Living on Tight Plots
This project is a compelling example of how small corner lot house design can lead to architectural innovation. By responding with precision to zoning laws, environmental performance, and spatial constraints, KOMINORU Design has created a livable, beautiful, and inspiring residence. It proves that even on a 30 square meter footprint, it’s possible to build upward—without sacrificing daylight, functionality, or warmth.




All photographs are works of Katsumasa Tanaka
Popular Articles
Popular articles from the community
A Contemporary Take on Iranian Residential Architecture
A modern interior design in Mashhad that reinterprets brick, light, and spatial flow to create a warm, contemporary residential architecture.
An Miên Lumière Cafe by xưởng xép, Ho Chi Minh City, Vietnam
An industrial-inspired café where layered steel and warm light create a dynamic, immersive environment shaped by reflection, depth, and perception.
Inverted Architecture Installation by Studio Link-Arc: Exploring the Intersection of Architecture and Living Organisms
Inverted Architecture Installation by Studio Link-Arc blends mycelium, sustainability, inverted design, ecological cycles, and urban adaptive architecture in Shenzhen.
Louis Malle Cinema: A Limestone Cultural Landmark Revitalizing Community Life in Prayssac
Limestone cinema extension with public forecourt, blending heritage and modern design to create flexible cultural spaces and strengthen community interaction.
Similar Reads
You might also enjoy these articles
Top 15 Architecture Competitions to Enter in 2026
From student-friendly idea competitions to prestigious international awards, here are the best architecture competitions open for entries in 2026. Updated regularly.
DIY & Engineering in Computational Design : Enter the BeeGraphy Design Awards
Showcase Your Creativity with Computational Design and Open Source Projects

Innovative Design Solutions: Award-Winning Projects from Recent Architecture Competitions
Exploring award-winning architectural projects shaping the future of design, sustainability, and community.
Explore Architecture Competitions
Discover active competitions in this discipline
The International Standard for Design Portfolios
The Global Benchmark for Architecture Dissertation Awards
The Global Benchmark for Graduation Excellence
Challenge to reimagine the Iron Throne
Comments (0)
Please login or sign up to add comments
No comments yet. Be the first to comment!