Sustainable Architectural Renovation: Multi-Purpose Hall Ingerkingen by Atelier Kaiser Shen
Multi-Purpose Hall Ingerkingen by Atelier Kaiser Shen showcases sustainable architectural renovation, merging adaptive reuse, structural innovation, and material efficiency for contemporary revitaliza
A New Vision for Architectural Modernization
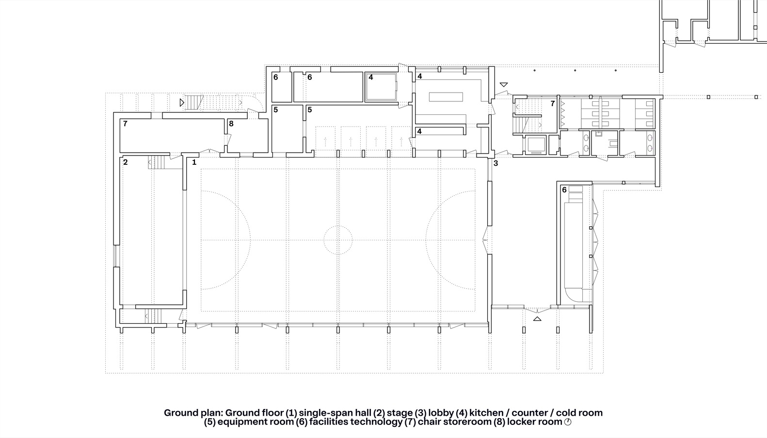
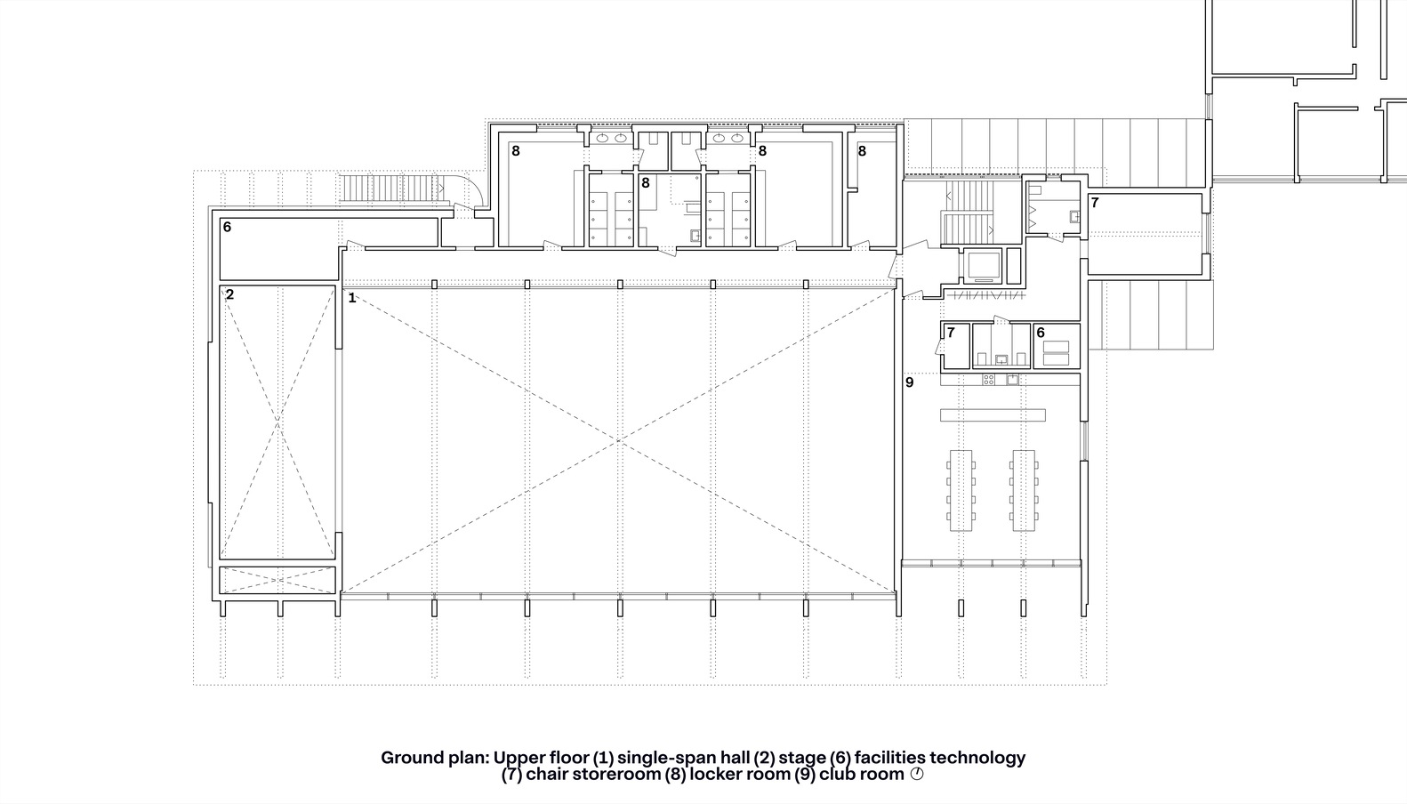
The Multi-Purpose Hall Ingerkingen, designed by Atelier Kaiser Shen, stands as an innovative example of sustainable architectural renovation, emphasizing the benefits of adaptive reuse, energy efficiency, and structural innovation. Located in Schemmerhofen, Germany, the project extends and revitalizes an existing structure, demonstrating how modernization can be more efficient than complete reconstruction.






A Strategic Approach to Adaptive Reuse
Retaining the Existing Structure
The renovation of Multi-Purpose Hall Ingerkingen is based on the principle of building expansion with minimal demolition, ensuring continuity and material efficiency. Rather than focusing on reshaping the original structure, the architects identified key elements for preservation, seamlessly integrating them into the new design.


A significant portion of the foundations, floor slabs, ceilings, and walls in the northern and western sections was retained. This careful selection allowed for 60 percent of the built mass to be preserved, reducing waste while maintaining architectural continuity.



Engineering Innovation in Load-Bearing Systems
A double-jointed laminated timber frame was introduced to create a new structural system that aligns with the existing reinforced concrete supports. The innovative geometry and rigid corner design of the frame redistributed vertical loads, reducing pressure on the old foundations and making the renovation structurally feasible without extensive modifications.




Materiality and Architectural Expression
A Harmonious Blend of Old and New
The architectural dialogue between past and present is a defining feature of Multi-Purpose Hall Ingerkingen. The existing walls were insulated and re-plastered using the original rendering technique, maintaining a connection with the building’s historical layers. The newly added sections feature a light wooden frame construction with a ventilated wooden façade, clearly distinguishing the old from the new.




Interior Spatial Transformation
Inside the hall, the goal was to achieve visual unity while respecting historical layers. The backstage room reveals exposed masonry from the original construction, visible layers of repair work, and modern additions made from hollow bricks and concrete. This raw yet refined aesthetic tells the story of the building’s evolution while enhancing its contemporary spatial identity.


Sustainable Design and Cost Efficiency
Environmental and Economic Advantages of Renovation
The renovation of the Ingerkingen Multi-Purpose Hall offers significant environmental and financial benefits compared to new construction. By preserving existing materials, the design minimizes gray energy consumption, reducing the carbon footprint associated with demolition and rebuilding. The cost efficiency of modernization further highlights the advantages of adaptive reuse, making it a scalable model for similar structures in need of renewal.








A Model for Future Renovations
Setting a Precedent for Sustainable Architectural Renovation
Atelier Kaiser Shen’s approach to Multi-Purpose Hall Ingerkingen exemplifies the potential of sustainable architectural renovation to balance historic preservation with modern efficiency. By integrating structural ingenuity, material sensitivity, and adaptive reuse, the project serves as a benchmark for responsible architectural transformation.







The success of this renovation demonstrates that thoughtful modernization can enhance architectural heritage while meeting contemporary demands, proving that renovation is often more sustainable, cost-effective, and architecturally enriching than demolition and replacement.






All Photographs are works of Brigida González
Popular Articles
Popular articles from the community
Split House: A Compact Urban Home Blending Privacy, Light, and Flexible Living in Japan
Compact Japanese home featuring DOMA space, flexible café potential, passive lighting, privacy zoning, and sustainable urban living design.
Free Architecture Competitions You Can Enter Right Now
No entry fees, real prizes. Here are the best free architecture competitions open for submissions in 2026.
Fifth NRE Jazz Club – De Bever Architecten: Eindhoven’s Revitalized Cultural Hub
Historic gas factory transformed into Fifth NRE Jazz Club blending modern sustainability, jazz culture, dining, and heritage architecture seamlessly.
Solar Steam: A Climate-Responsive Architecture That Redefines the Monument
A climate-responsive memorial architecture that transforms heat, decay, and time into a living system reflecting humanity’s ecological impact.
Similar Reads
You might also enjoy these articles
Free Architecture Competitions You Can Enter Right Now
No entry fees, real prizes. Here are the best free architecture competitions open for submissions in 2026.
Top 15 Architecture Competitions to Enter in 2026
From student-friendly idea competitions to prestigious international awards, here are the best architecture competitions open for entries in 2026. Updated regularly.
DIY & Engineering in Computational Design : Enter the BeeGraphy Design Awards
Showcase Your Creativity with Computational Design and Open Source Projects

Innovative Design Solutions: Award-Winning Projects from Recent Architecture Competitions
Exploring award-winning architectural projects shaping the future of design, sustainability, and community.
Explore Architecture Competitions
Discover active competitions in this discipline
The International Standard for Design Portfolios
The Global Benchmark for Architecture Dissertation Awards
The Global Benchmark for Graduation Excellence
Challenge to reimagine the Iron Throne
Comments (0)
Please login or sign up to add comments
No comments yet. Be the first to comment!