Sustainable Office Building Design: A Deep Dive into The TARA Office Building
Explore the sustainable design of The TARA Office Building in Thailand, emphasizing energy efficiency and integration with nature.
In the heart of Tambon Khlong Klua, Thailand, stands a testament to innovative sustainable architecture – The TARA Office Building. Designed by Plan Associates and completed in 2021, this building exemplifies modern sustainable office building design.


Concept and Inspiration Behind The TARA Office Building
The Spirit of Water
The conceptual foundation of The TARA Office Building is deeply entwined with the theme of water, symbolizing fluidity, convergence, and purity. This theme not only reflects the building's aesthetic but also its functional approach to sustainability and modernity.



Integrating With Nature
Embracing the surrounding natural environment, the building incorporates extensive green spaces, which enhance the ambiance for occupants and contribute to the building's sustainable footprint.



Architectural Features and Sustainable Practices
Energy-Efficient Design
The TARA Office Building leverages highly efficient glass and aluminum sunshades to minimize heat intake, a critical feature in Thailand's tropical climate. This design reduces the building’s energy consumption significantly, aligning with global standards for sustainable office building design.


Water-Inspired Facade
The building's facade features a twisting pattern of aluminum sunshades that mimic the free-flowing movement of water, creating a dynamic visual effect that changes throughout the day and reduces heat gain.


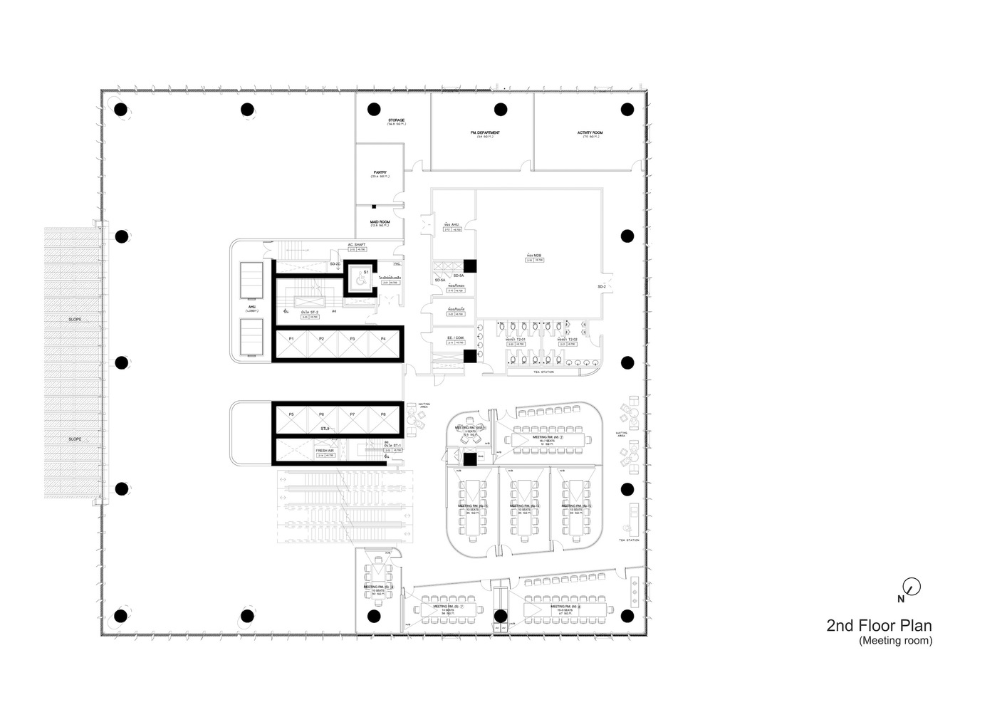
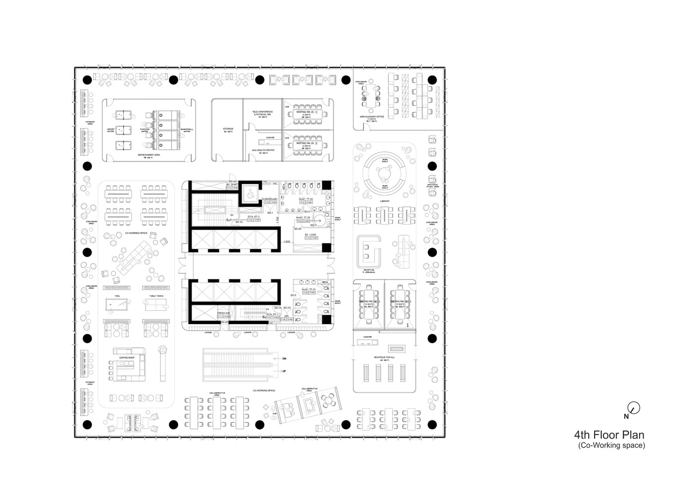
Interior Design and Layout
Maximizing Natural Light
The interior design prioritizes the use of natural light, with skylights and large glass windows that reduce the need for artificial lighting, further contributing to the building’s energy efficiency.


Flexible Workspaces
From co-working spaces to large conference areas, The TARA Office Building offers a variety of work environments that adapt to different organizational needs, all while maintaining high standards of space efficiency and sustainability.


Impact on the Community and Environment
A Centerpiece for Urban Development
Positioned as the centerpiece of the larger TARA PARK project area, the building serves as a catalyst for urban integration, bringing together commercial spaces and public areas in a cohesive design.


Enhancing Local Biodiversity
The landscape design, executed by SHMA CO., LTD, includes native plant species that support local biodiversity, contributing to the ecological health of the area.
The TARA Office Building by Plan Associates is a prime example of sustainable office building design that integrates aesthetic beauty with environmental consciousness. As the world moves towards more sustainable urban development, The TARA stands as a beacon of what is possible in modern architecture.


All photographs are work of W-Workspace
Popular Articles
Popular articles from the community
Solar Steam: A Climate-Responsive Architecture That Redefines the Monument
A climate-responsive memorial architecture that transforms heat, decay, and time into a living system reflecting humanity’s ecological impact.
Flamboyant House by Juliana Camargo + Prumo Projetos
Modern Brazilian house integrating existing tree, pool, and volumes with glass, wood, and transitional spaces blending interior, exterior, and landscape seamlessly.
Atelier Macri Concept Store Interior Design by CASE-REAL
Atelier Macri store features a "ko" counter, walnut wood details, cork displays, blending retail, gallery, and seamless customer experiences.
The Ken Roberts Memorial Delineation Competition (Krob)
As the most senior architectural drawing competition currently in operation anywhere in the world, it draws hundreds of entries each year, awarding the very best submissions in a series of medium-based categories.
Similar Reads
You might also enjoy these articles
Top 15 Architecture Competitions to Enter in 2026
From student-friendly idea competitions to prestigious international awards, here are the best architecture competitions open for entries in 2026. Updated regularly.
DIY & Engineering in Computational Design : Enter the BeeGraphy Design Awards
Showcase Your Creativity with Computational Design and Open Source Projects

Innovative Design Solutions: Award-Winning Projects from Recent Architecture Competitions
Exploring award-winning architectural projects shaping the future of design, sustainability, and community.
Explore Office Building Competitions
Discover active competitions in this discipline
The International Standard for Design Portfolios
The Global Benchmark for Architecture Dissertation Awards
The Global Benchmark for Graduation Excellence
Challenge to reimagine the Iron Throne
Comments (0)
Please login or sign up to add comments
No comments yet. Be the first to comment!