Sustainable Tropical Home Design: AVA House by Irina Biletska
Explore AVA House by Irina Biletska, a sustainable tropical home design in Brazil that harmonizes with its lush surroundings.
Located in the serene coastal village of Serra Grande in southern Bahia, Brazil, AVA House by Irina Biletska exemplifies sustainable tropical home design. This article delves into the architectural strategies and materials that make this residence a model of eco-friendly living.


Project Overview
Design Philosophy
The primary goal of AVA House is to create a healthy, welcoming, and environmentally friendly living space that harmoniously integrates with the lush Atlantic Forest. The design prioritizes solutions that minimize dependence on conventional energy resources, making it a benchmark for sustainable tropical home design.


Thermal Comfort and Ventilation
Cross Ventilation
Maximizing cross ventilation is key to ensuring thermal comfort without relying on air conditioning. The intelligent use of solid brick cobogó facilitates continuous air circulation, keeping the interior cool and airy even on the hottest days.

Orientation and Natural Light
The house is oriented to the east, optimizing the use of natural light and cool ocean breezes. This orientation not only enhances the indoor climate but also reduces the need for artificial lighting during the day.

Sustainable Materials and Construction
Locally Sourced Materials
Adobe and Brick
Internally, adobe walls help regulate temperature and humidity, contributing to a comfortable living environment. The adobe bricks were produced on-site, reinforcing the project's commitment to sustainability from its inception.


Concrete, Wood, and Bamboo
The structure combines concrete, wood, and bamboo, with the latter sourced from a nearby farm. This combination ensures durability and a reduced environmental footprint.

Local Clay and Paint
The internal plaster and paint are made from local clay, enriched with Tabatinga, a characteristic white clay from the region. This choice not only adds aesthetic value but also aligns with sustainable building practices.

Eco-Friendly Flooring and Frames
Reclaimed Wood and Ceramic Tiles
The flooring, made from reclaimed wood and ceramic tiles, adds rustic charm and warmth to the spaces. Cumaru wood frames further ensure durability and natural beauty.

Ecological Sanitation and Energy Solutions
Water Management
AVA House adopts ecological sanitation practices, such as separating gray water and flush water, directing them to reuse and treatment systems like banana circles and biodigesters. This approach minimizes water waste and enhances sustainability.


Solar Heating System
Hot water is supplied by a solar heating system, significantly reducing the residence's environmental impact and reliance on non-renewable energy sources.


Architectural Layout and Connection with Nature
Integration with the Landscape
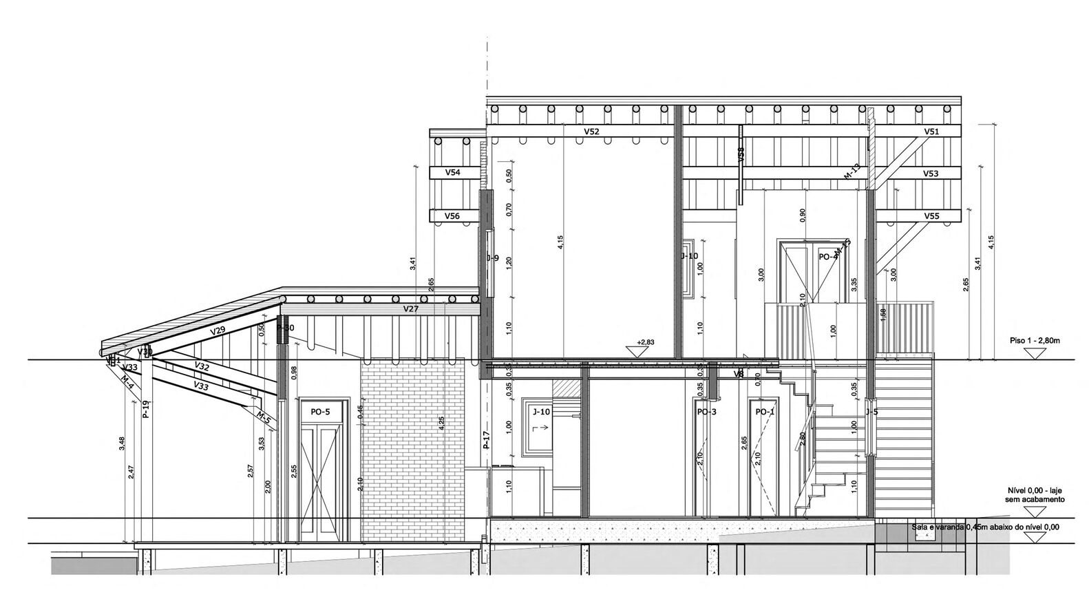
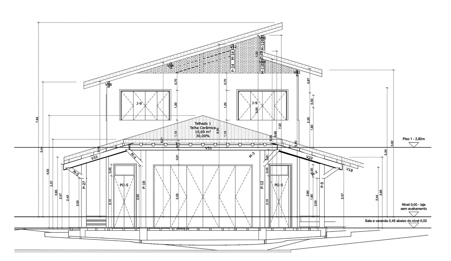
The house is designed to follow the gentle slope of the terrain, integrating seamlessly with the lush surroundings of the Mata Atlântica forest. This design not only provides natural shade but also fosters an intimate connection with nature.


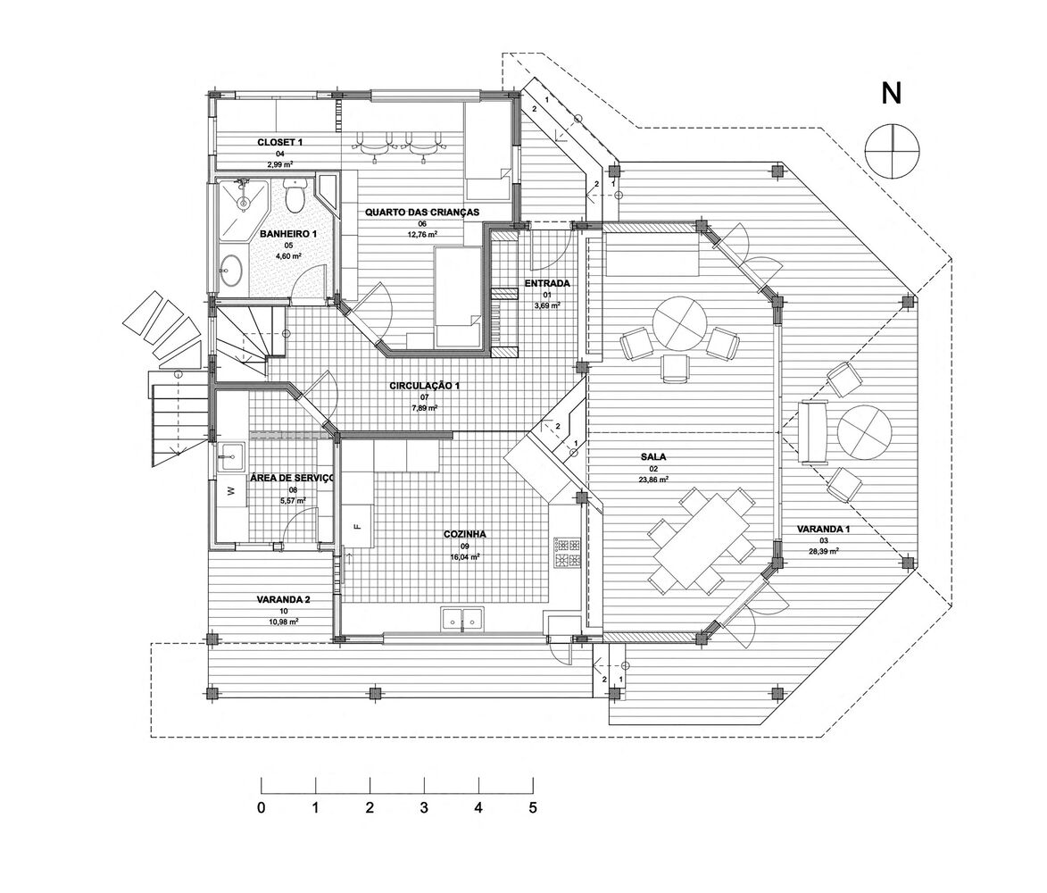
Spatial Organization
The residence is distributed over two levels. The ground floor hosts social and service areas, while the upper floor includes a master suite and a studio/office, which is used for activities such as a home office and music lessons.


AVA House by Irina Biletska is a leading example of sustainable tropical home design. By leveraging natural ventilation, locally sourced materials, and eco-friendly practices, the house offers a blueprint for environmentally conscious living in tropical climates. This project not only meets the immediate needs of its residents but also sets a new standard for sustainable architecture in the region.


All photographs are work of Maja Juzwiak
Popular Articles
Popular articles from the community
Free Architecture Competitions You Can Enter Right Now
No entry fees, real prizes. Here are the best free architecture competitions open for submissions in 2026.
Inverted Architecture Installation by Studio Link-Arc: Exploring the Intersection of Architecture and Living Organisms
Inverted Architecture Installation by Studio Link-Arc blends mycelium, sustainability, inverted design, ecological cycles, and urban adaptive architecture in Shenzhen.
Gads Hill Early Learning Center by JGMA: Adaptive Reuse Shaping Community-Focused Educational Architecture
Adaptive reuse transforms fragmented structure into vibrant early learning center with playful façade, natural light, and community-focused sustainable design.
Similar Reads
You might also enjoy these articles
The Ken Roberts Memorial Delineation Competition (Krob)
As the most senior architectural drawing competition currently in operation anywhere in the world, it draws hundreds of entries each year, awarding the very best submissions in a series of medium-based categories.
Waterfront Redevelopment and Urban Revitalization in Mumbai: Forging a New Dawn for Darukhana
A transformative waterfront redevelopment project reimagining Darukhana’s shipbreaking heritage into an inclusive urban future.
OUT-OF-MAP: A Call for Postcards on Feminist Narratives of Public Space
Rhizoma Design and Research Lab invites artists, designers, architects, researchers, and students to reflect on how feminist perspectives can reshape public space. Selected works will be exhibited in Barcelona, October 2026. Submissions open until 15 April 2026.
Documentation Work on Buddhist Wooden Temple
Architectural syncretism and cultural hybridity: A comparative study of the Buddhist temples in Chattogram Hill tracks
Explore Architecture Competitions
Discover active competitions in this discipline
The International Standard for Design Portfolios
The Global Benchmark for Architecture Dissertation Awards
The Global Benchmark for Graduation Excellence
Challenge to reimagine the Iron Throne
Comments (0)
Please login or sign up to add comments
No comments yet. Be the first to comment!