The Steric Spes House: Breeze Block House Jakarta by Gets Architects
Steric Spes House in West Jakarta uses breeze-block screening, stacked volumes, courtyards and water elements for shaded, private tropical living.
Project Overview And Client Brief
The Steric Spes House in West Jakarta answers a client request for shade, seclusion, natural light, and generous airflow on a compact urban lot. Designed by Gets Architects and completed in 2024, the four-storey, 1,030-square-meter residence translates a demanding brief into a layered tropical envelope that mediates between the glare of a west-facing exposure and the need for domestic privacy in a dense neighborhood. The project’s defining move—a permeable secondary facade of cream-colored fiber-cement breeze-block—wraps the upper volumes in a protective veil that filters harsh sun, screens urban views, and creates calm, setback living terraces.

Climate, Orientation, And The Fiber-Cement Breeze-Block Veil
Responding to a western orientation in Jakarta’s humid tropical climate, the design deploys a grid-like field of fiber-cement breeze-blocks as a responsive climatic skin. This porous screen tempers solar gain during peak afternoon hours while permitting cross-ventilation to sweep through indoor and semi-outdoor zones. Dappled light animates interiors across the day, softening glare without closing the house off from daylight. At night, the same patterned field reverses its effect, glowing outward and giving the home a lantern-like civic presence.




Stacked Volumes And Spatial Detachment
The house is composed as three light-toned upper masses stacked and subtly shifted, each leaning toward the right to open breathing room along the property edge. This dynamic offset achieves roughly ninety percent detachment from the neighboring structure, improving airflow and privacy while generating cantilevered overhangs that shade terraces and façades below. The stepped composition creates multiple suspended planes that read as hovering boxes within the breeze-block lattice, reinforcing the impression of a house that floats rather than fills its site.



Material Hierarchy: Floating Light Above Grounded Base
Material contrast strengthens the visual hierarchy of the composition. The lower plinth—clad in dark natural stone and robust steelwork—anchors the building to grade and absorbs the wear of service functions, vehicular entry, and daily circulation. Above, the cream-toned fiber-cement lattice wraps lighter volumes whose tonal brightness exaggerates their apparent lift. The pairing of heavy base and filtered upper massing produces a controlled tension: grounded permanence below, luminous porosity above.




Layered Openness On A Compact Urban Lot
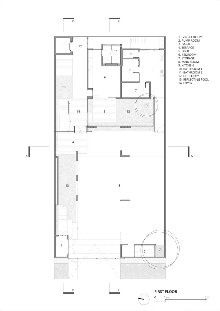
Though the site measures only about four hundred fifty square meters, the house accommodates a large program through vertical layering and spatial compression-release sequences. The ground level hosts a generous garage sized for a car-collecting client, along with guest and service spaces. Above, successively more open, social, and private realms are arranged so that every floor touches outdoor air, vegetation, or water. Strategic setbacks carve sheltered micro-courtyards that let the house inhale, making compactness feel expansive.



Water, Landscape, And Sensory Thresholds
Arrival is choreographed through a gradation of surfaces, sounds, and filtered views. An elevated wooden terrace and double timber entry door frame an initial pause. Beyond, semi-transparent breeze-block reveals glimpses of a reflecting pool, cascading water, and a Plumeria tree composed within a quiet courtyard. The auditory layer—the murmur of falling water—cools the psychological temperature of arrival and distinguishes threshold from street. Planter boxes, meadow-like softscape inserts, and linear water courses stitch green and blue elements across levels, binding the stacked house to a continuous garden ecology.



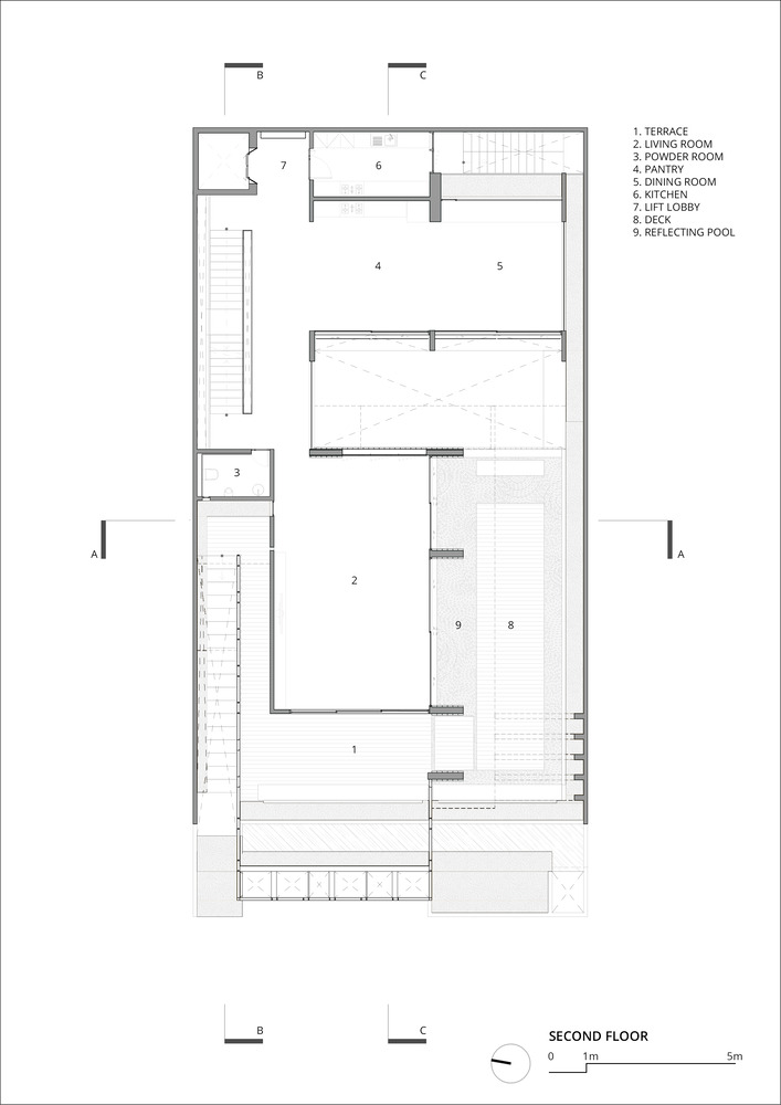
Fluid Living Level: Indoor–Outdoor Continuum
The principal social floor opens wide at the corner through large operable sliding panels on two sides, allowing the living room to dissolve into terraces. The fiber-cement breeze-block surface slips inward across the ceiling plane, blurring the conventional line between facade and interior and reinforcing the idea that enclosure is filtered, not sealed. A wraparound wooden deck extends living outward; a runnel-like reflecting channel collects water and carries it downward to the courtyard waterfall, making hydrologic continuity a spatial experience.


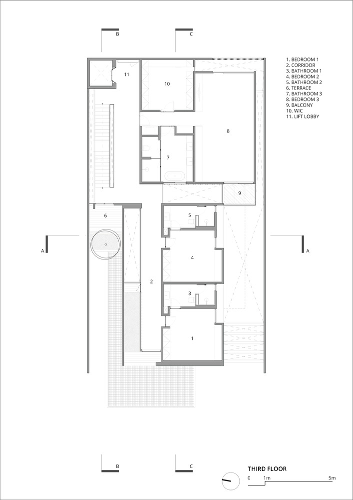
Private Quarters As Elevated Retreat
Two children’s suites occupy the front of the third level where light and ventilation are maximized through side terraces screened for privacy. The master suite withdraws across the internal void to a more secluded zone and includes walk-in closet, generous bath with freestanding tub, and an integrated lounge. A glass-floored balcony overlooks the terrace below, admitting light downward while preserving visual connection between family zones. Timber finishes—requested by the client for a resort-like calm—reinforce the retreat quality of the private floor.


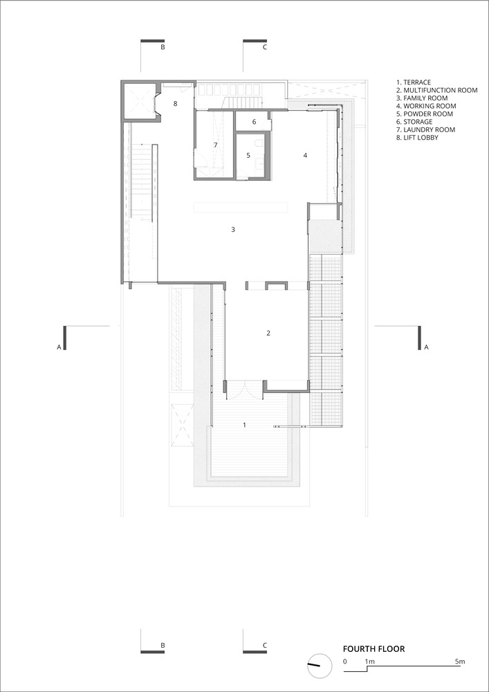
Flexible Top Floor Social Pavilion
The fourth level functions as a multiuse family pavilion that transitions between gatherings, fitness, work, and informal leisure. Large openings lead to a broad planted balcony that mediates exposure at height with greenery as buffer. Portions of the terrace tuck beneath projecting mass to form shaded outdoor rooms usable across seasons. Interior ceiling height is deliberately moderated to maintain neighborhood scale and meet zoning, yet the lateral extension toward open air preserves a feeling of breadth. A continuation of the breeze-block screen sweeps from facade across ceiling, elongating the space and framing sky views.


Environmental Performance: Shade, Ventilation, Thermal Comfort
Passive strategies drive the building’s environmental performance. The perforated secondary skin reduces direct solar load on glazing and walls, lowering interior heat gain. Detachment from the property line along most of the mass increases perimeter exposure to breezes, aiding cross-ventilation. Cantilevered projections act as horizontal brise-soleil, shading terraces and lower facade planes. Water bodies and planted terraces contribute evaporative and psychological cooling, helping to sustain comfort without total reliance on mechanical conditioning.


Naming And Meaning: Steric And Spes
The project name encodes layered intention. “Steric,” coined by merging “stacked” and “relic,” recalls the stepped massing while acknowledging the family memories the house is meant to hold. The term also echoes “steric” arrangements in molecular science—spatial relationships among atoms—mirrored here in the grid, offsets, and volumetric interplay of the architecture. “Spes,” Latin for “hope” and resonant with “space,” folds emotional aspiration into the formal concept: a resilient, light-filled vessel designed to support evolving family life.

Lessons For Breeze Block House Jakarta Design
The Steric Spes House demonstrates how breeze-block envelopes can do more than decorate tropical homes in Jakarta; they can structure environmental response, mediate privacy gradients, register massing shifts, and script sensory transitions from street to sanctuary. By coupling patterned porosity with volumetric detachment, water-linked courtyards, and a calibrated material hierarchy, Gets Architects offer a replicable design strategy for dense, sun-exposed urban parcels across Indonesia and comparable climates.
Breeze Block House Jakarta design reaches a sophisticated expression in the Steric Spes House, where a cream-toned lattice, stacked shifting volumes, water gardens, and timber-lined interiors work together to produce shaded, private, and emotionally resonant tropical living. Attentive to climate, memory, and urban context, the house stands as both refuge and evolving family narrative—an architecture of hope held within a breathing grid.

All the photographs are works of Mario Wibowo
Popular Articles
Popular articles from the community
Solar Steam: A Climate-Responsive Architecture That Redefines the Monument
A climate-responsive memorial architecture that transforms heat, decay, and time into a living system reflecting humanity’s ecological impact.
Inverted Architecture Installation by Studio Link-Arc: Exploring the Intersection of Architecture and Living Organisms
Inverted Architecture Installation by Studio Link-Arc blends mycelium, sustainability, inverted design, ecological cycles, and urban adaptive architecture in Shenzhen.
Fifth NRE Jazz Club – De Bever Architecten: Eindhoven’s Revitalized Cultural Hub
Historic gas factory transformed into Fifth NRE Jazz Club blending modern sustainability, jazz culture, dining, and heritage architecture seamlessly.
The Ken Roberts Memorial Delineation Competition (Krob)
As the most senior architectural drawing competition currently in operation anywhere in the world, it draws hundreds of entries each year, awarding the very best submissions in a series of medium-based categories.
Similar Reads
You might also enjoy these articles
Free Architecture Competitions You Can Enter Right Now
No entry fees, real prizes. Here are the best free architecture competitions open for submissions in 2026.
Top 15 Architecture Competitions to Enter in 2026
From student-friendly idea competitions to prestigious international awards, here are the best architecture competitions open for entries in 2026. Updated regularly.
DIY & Engineering in Computational Design : Enter the BeeGraphy Design Awards
Showcase Your Creativity with Computational Design and Open Source Projects

Innovative Design Solutions: Award-Winning Projects from Recent Architecture Competitions
Exploring award-winning architectural projects shaping the future of design, sustainability, and community.
Explore Architecture Competitions
Discover active competitions in this discipline
The International Standard for Design Portfolios
The Global Benchmark for Architecture Dissertation Awards
The Global Benchmark for Graduation Excellence
Challenge to reimagine the Iron Throne
Comments (0)
Please login or sign up to add comments
No comments yet. Be the first to comment!