1516 W Carroll: Warehouse to Rooftop Farm in Chicago
Bureau Gemmell and Converge Architecture converted a 1920s Chicago warehouse into a food hall with test kitchens and a working rooftop farm.
Chicago's Fulton Market district was a meatpacking and cold storage neighbourhood until the 2010s, when it became one of the city's fastest-changing commercial zones. The 1920s warehouses that survive are being converted into restaurants, offices, and food halls. 1516 W Carroll Ave, designed by Bureau Gemmell and Converge Architecture, is an adaptive reuse of one of these warehouses that goes further than most: it adds a second floor inside the high-bay volume, and then puts a working rooftop farm and three steel-and-glass greenhouses on top. The building is a food hall, a test kitchen, a tasting bar, a restaurant, a film studio, and an urban farm, all within a single brick shell.
The project keeps the original brick and limestone facade intact and inserts new programme into three levels: a ground-floor food hall and dining room, a second-floor suite of kitchens and studios, and a rooftop farm that grows produce for the restaurants below. The material palette is exposed brick, timber beams, polished concrete, and black steel. The greenhouses are the signature move: visible from the street, they announce that this is not just another warehouse conversion.
The Street and the Roof



From the street, the building reads as a two-storey brick warehouse with three pitched-roof greenhouses rising above the parapet. The original masonry is cleaned but unaltered: cream brick, limestone lintels, steel-framed industrial windows. The greenhouses are black steel and glass, pitched at the same angle as a traditional gable, but unmistakably new. From the rear alley, the same composition appears against a background of power lines and neighbouring brick buildings.

The aerial view shows the building in its Fulton Market context: a grid of low warehouse blocks, rail tracks to the east, and the rooftop farm as a conspicuous green rectangle among the flat white roofs.
The Rooftop Farm and Greenhouses



The rooftop farm is the project's most distinctive feature. Planting beds run in rows across the full roof area, growing herbs, vegetables, and flowers that supply the kitchens below. Three pitched-roof greenhouses provide year-round growing capacity in Chicago's harsh winters. The greenhouses have steel frames with louvre ventilation and pendant lamps for supplemental light. Figures tend the crops in several photographs, which confirms that this is an operational farm, not a decorative green roof.


Inside the greenhouses, the growth is lush: vines climb the steel frame, tomatoes ripen on trellises, and herbs fill the benches. The louvre windows regulate temperature. The relationship between roof and kitchen is direct: produce is harvested upstairs and served downstairs.
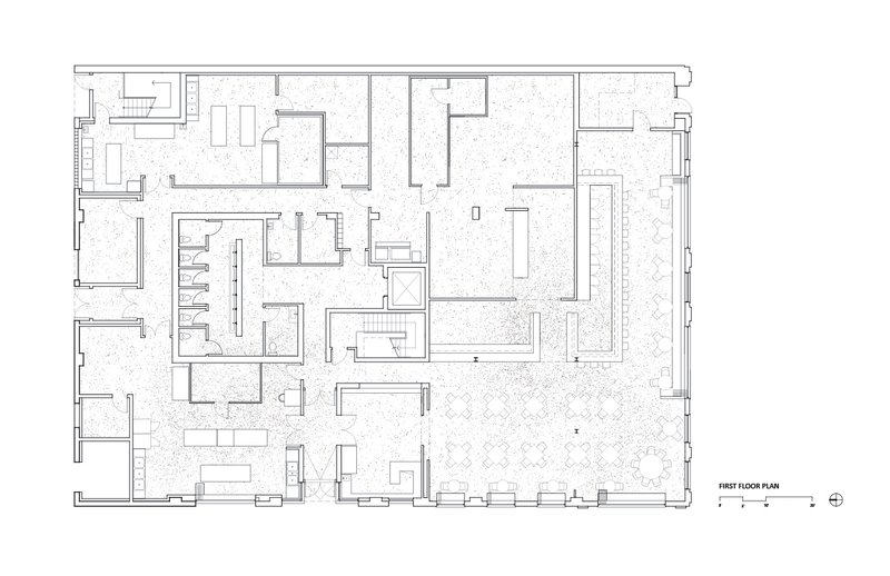
The Ground Floor: Food Hall and Dining



The ground floor is an open food hall anchored by a commercial kitchen with a stainless steel counter and black bifold doors that fold back to connect the cooking area to the dining room. The ceiling is the original timber beam structure, left exposed and lit by globe pendant lights. The dining room has a timber slat ceiling, exposed cream brick walls, and large black steel windows that let in daylight from the street.

The restaurant space has a plaster arch with a corrugated metal reveal that frames the transition between the dining room and the bar area. The exposed brick, the timber furniture, and the pendant fan lights create a warm, material-rich atmosphere that relies entirely on the existing building fabric rather than applied decoration.
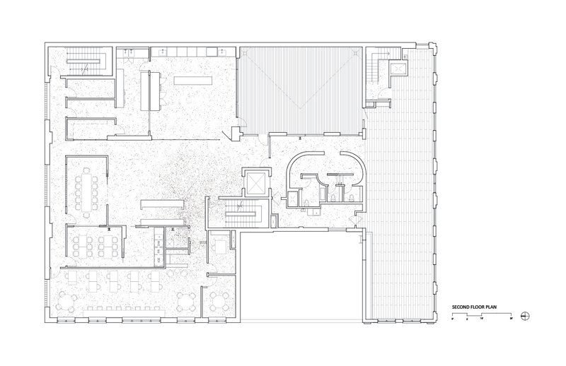
The Second Floor: Kitchens, Studios, and Bar

The second floor, inserted as a new structure within the warehouse volume, contains a food innovation studio, test kitchens, private dining rooms, and a tasting bar. The bar has a long timber counter with stools under a skylight, horizontal timber slat walls, and wine storage. The ceiling is exposed timber beams with globe lights. These spaces are designed for food development, filming, and private events, programmes that generate revenue and keep the building active beyond standard restaurant hours.
Drawings

The exploded axonometric shows the three-level strategy: ground-floor food hall and dining at the base, second-floor studios and kitchens in the middle, and the rooftop farm with greenhouses on top. Each level has its own programme, but the food supply chain connects them vertically: grow on the roof, develop on the second floor, serve on the ground floor.



The floor plans show the ground-floor food hall with its open kitchen, bar, and dining areas; the second-floor test kitchens, innovation studio, and private rooms; and the roof plan with three greenhouses, planting beds in rows, and fruit trees along the perimeter.
Why This Project Matters
Adaptive reuse in Chicago's Fulton Market has produced dozens of restaurant and office conversions, but most of them stop at the facade. 1516 W Carroll Ave goes three levels deep: it keeps the brick shell, inserts new programme into the volume, and then adds a productive landscape on the roof that feeds the building below. The rooftop farm is not a sustainability gesture. It is a working component of the food programme.
If you are designing an adaptive reuse project, a food hall, or an urban agriculture building, this project is worth studying for how it stacks programme, preserves fabric, and uses the roof as productive space rather than dead weight.
About the Studios
Share Your Own Work on uni.xyz
If you are working on adaptive reuse, urban agriculture, or food-related architecture, uni.xyz is a place to publish your work and connect with a global design community.
Project credits: 1516 W Carroll Ave by Bureau Gemmell and Converge Architecture. Chicago, Illinois, USA. Photographs: Annabell Ren, Jiachen Wang.
Popular Articles
Popular articles from the community
Free Architecture Competitions You Can Enter Right Now
No entry fees, real prizes. Here are the best free architecture competitions open for submissions in 2026.
TGK Nirasaki Plant: A Smart Factory Blending Technology, Landscape, and Wellness
Smart factory in Japan blending IoT manufacturing, scenic trail design, natural ventilation, and landscape integration to enhance user experience and sustainability.
Marvila Apartment Renovation in Lisbon: A Bright Minimalist Attic Transformation by KEMA Studio
Bright attic transformed into minimalist Lisbon apartment with skylights, sustainable materials, open plan layout, and industrial-inspired interior design elements.
Rede Arquitetos Builds an Open-Air School in Fortaleza That Doubles as a Neighborhood Living Room
Educar II SESC-CE folds sports, dance, and community gathering into a courtyard campus wrapped in mesh and tropical color.
Similar Reads
You might also enjoy these articles
Filtering Space: A Gradual Spatial Experience
From urban intensity to spatial calm.
The Ken Roberts Memorial Delineation Competition (Krob)
As the most senior architectural drawing competition currently in operation anywhere in the world, it draws hundreds of entries each year, awarding the very best submissions in a series of medium-based categories.
Waterfront Redevelopment and Urban Revitalization in Mumbai: Forging a New Dawn for Darukhana
A transformative waterfront redevelopment project reimagining Darukhana’s shipbreaking heritage into an inclusive urban future.
OUT-OF-MAP: A Call for Postcards on Feminist Narratives of Public Space
Rhizoma Design and Research Lab invites artists, designers, architects, researchers, and students to reflect on how feminist perspectives can reshape public space. Selected works will be exhibited in Barcelona, October 2026. Submissions open until 15 April 2026.
Explore Architecture Competitions
Discover active competitions in this discipline
The International Standard for Design Portfolios
The Global Benchmark for Architecture Dissertation Awards
The Global Benchmark for Graduation Excellence
Challenge to reimagine the Iron Throne
Comments (0)
Please login or sign up to add comments
No comments yet. Be the first to comment!