Adaptive Reuse Architecture: Transforming the Arts District Warehouse
The article discusses the transformation of a 1920s warehouse into a multifunctional space in LA's Arts District by Sheft Farrace.
In the heart of Los Angeles' dynamic Arts District, a significant architectural transformation is underway, exemplifying the principles of adaptive reuse architecture. The project, led by Sheft Farrace, involves the conversion of a 1920s warehouse into a multifunctional space that challenges traditional notions of workspace and community engagement.




Historical Context and Project Vision
Preserving Industrial Heritage
The Arts District Warehouse, originally constructed in the 1920s, features classic LA bow-truss architecture, a style that is emblematic of the city's industrial past. Sheft Farrace's approach respects and preserves the building's historical integrity while infusing it with new life to meet contemporary needs.



Vision for a Multifunctional Space
As the COVID-19 pandemic reshaped work and social interactions, the design team recognized the need to adapt the project to these new realities. The vision evolved from a conventional office space to a versatile environment that could function as a workplace, event space, and creativity studio, all in one.



Design Strategy and Implementation
Structural Innovations
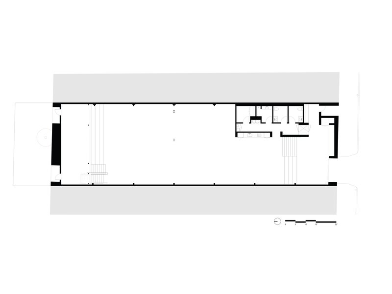
One of the key strategies employed in the adaptive reuse of the Arts District Warehouse was the manipulation of the ground plane. By excavating areas at the front and rear of the building, Sheft Farrace created new indoor/outdoor spaces that enhanced the building’s functionality and accessibility.



Zoning for Dynamic Use
The interior layout was designed to accommodate various activities, with clear zones delineated for different functions. This approach allows for flexibility in the building's use, catering to a wide range of events and work styles.


Architectural Details and Materials
Maintaining the Aesthetic
While the exterior underwent significant modifications, including new openings and a revamped entry vestibule, the architects were meticulous in maintaining the building’s original aesthetic. This strategy aligns with the Los Angeles tradition of unassuming exteriors that reveal a transformed interior.


Material Selection
Consistent with the ethos of adaptive reuse, the materials chosen for the renovation were selected to reflect both the building’s industrial heritage and modern sustainability practices. This included the use of recycled materials where possible, reinforcing the project's commitment to environmental responsibility.


Impact and Future Implications
Cultural and Economic Impact
The transformed Arts District Warehouse not only provides a functional space but also contributes to the cultural vitality of the area. It serves as a model for how adaptive reuse architecture can play a crucial role in urban revitalization.


Future of Adaptive Reuse
As cities continue to evolve, projects like the Arts District Warehouse illustrate the potential for adaptive reuse architecture to meet changing needs. This approach not only preserves historical structures but also provides innovative solutions for modern challenges.

A Blueprint for Urban Transformation
The Arts District Warehouse by Sheft Farrace stands as a beacon of adaptive reuse architecture in Los Angeles. It exemplifies how thoughtful design can repurpose old structures for new uses, providing sustainable and versatile spaces that respond to the evolving demands of urban life.


All photographs are work of Mike Kelley
Popular Articles
Popular articles from the community
OUJ Rewires a 72-Square-Meter Taipei Apartment for Multigenerational Living After the Pandemic
Inside a 40-year-old public housing block, plywood volumes and translucent screens turn three cramped bedrooms into a flexible family home.
Atelier LAI Scatters a Timber Resort Across a Terraced Anhui Valley
Nanshan Junning Resort uses wood joinery and topographic sensitivity to settle 6,700 square meters into a ten-meter slope near Hefei.
MIDW Casts a Pavilion Roof from the Earth Itself at the 2025 Osaka Expo
On a fragile reclaimed island, excavated soil becomes formwork for a concrete canopy that will eventually disappear into wisteria.
20 Most Popular Furniture Design Projects of 2025
Modular street systems, parametric benches, and insect hotels: the furniture design projects that captivated architects on uni.xyz in 2025.
Similar Reads
You might also enjoy these articles
FAAB Wraps a Polish Healthcare Complex in Perforated Metal Inspired by the Sea
Waves 4 and 5 of the ECR complex in Sopot transform brownfield land into a healing environment 400 meters from the Baltic coast.
OUJ Rewires a 72-Square-Meter Taipei Apartment for Multigenerational Living After the Pandemic
Inside a 40-year-old public housing block, plywood volumes and translucent screens turn three cramped bedrooms into a flexible family home.
Pedevilla Architects Disguise a Five-Story School as a Tyrolean Farmhouse in Kössen
A dark-clad education center in rural Austria borrows the robust calm of Alpine vernacular to anchor a village's northern edge.
MAVA Design Turns a Column-Riddled Shell into a Serene Hair Extension Salon in Kyiv
Inside a former motorcycle factory campus, a 110 square metre beauty atelier treats structural obstacles as spatial anchors.
Explore Architecture Competitions
Discover active competitions in this discipline
The International Standard for Design Portfolios
The Global Benchmark for Architecture Dissertation Awards
The Global Benchmark for Graduation Excellence
Challenge to reimagine the Iron Throne
Comments (0)
Please login or sign up to add comments
No comments yet. Be the first to comment!