Atrium-Centered House Design: The Story of House G by ARP Studio
House G by ARP Studio showcases atrium-centered design, combining privacy, natural light, and seamless integration with its Slovenian landscape.
Blending with Nature
Nestled within the olive groves of Škoflje, Slovenia, House G by ARP Studio exemplifies an elegant balance between modern architectural form and the natural landscape. This family home, designed for a family of four, adopts a restrained external appearance while offering a spatially rich, atrium-centered layout. The architectural narrative unfolds as one enters the home, transitioning from a minimalist façade to a harmonious interior centered around a void that shapes the entire living experience.


Context and Exterior Design
House G is located on the edge of a terrace in the Slovenian coastal hinterland. Its simple square layout is divided into two distinct roof types—half covered by a flat roof and the other half by a classic gabled roof. This choice allows the home to blend seamlessly with its surroundings, mirroring the architectural vernacular of Škoflje without drawing unnecessary attention. The full front façade appears reserved, offering little indication of the spatial richness within.


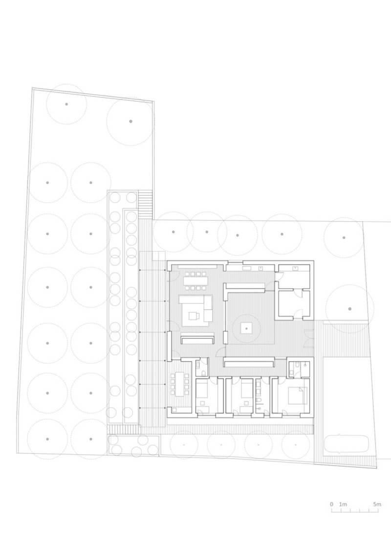
The Atrium: A Central Design Element
At the heart of House G lies its defining feature: the atrium. More than just an architectural centerpiece, this void serves as a transitional space, guiding movement and creating a dialogue between the home’s exterior and interior. As visitors enter the house, they are welcomed into this intermediate zone, a semi-private area that bridges the outside world with the intimate spaces of the home.


Functional Zoning and Interior Layout
House G is divided into two main functional zones—living and sleeping areas. The sleeping quarters are situated on the southern side of the house, accessible through a corridor that culminates in a window overlooking the atrium. This thoughtful spatial arrangement prioritizes privacy while maintaining a connection to the central void.


The living areas, located in the northern and western wings, are interconnected for seamless functionality. The kitchen occupies the northern wing and includes direct access to the atrium, ensuring natural light and ventilation from multiple directions. Adjacent to the kitchen are the dining and living rooms, situated in the western part of the home. The living room features a double-height ceiling and expansive windows that frame views of both the atrium and the surrounding olive grove.


The Role of Light and Views
The design of House G minimizes external openings, a deliberate choice that enhances privacy while controlling visual access to the outdoors. Instead, the atrium acts as the primary source of natural light, with carefully placed windows ensuring illumination throughout the home. The largest window, positioned in the living room, connects the atrium to the olive grove and offers distant views of the sea. This strategic interplay of openings creates a dynamic yet intimate atmosphere.


Outdoor Living and Landscape Integration
The west façade opens to a spacious terrace, extending the living space outdoors and providing direct access to the olive grove below. This progression—from the minimalist entrance façade to the atrium, through the living spaces, and onto the terrace—culminates in an immersive connection with the natural surroundings. The terrace not only serves as a vantage point for appreciating the landscape but also integrates the home into its environment, emphasizing the harmony between architecture and nature.

A Journey Through Space
The architectural journey through House G is one of intentional transitions and evolving experiences. Beginning at the full and reserved entrance façade, the journey moves inward through the atrium, a space that blurs the lines between public and private realms. From there, it flows into the vibrant living areas, onto the terrace, and finally into the olive grove—a design that narrates the seamless integration of built and natural environments.

A Model of Atrium-Centered Design
House G by ARP Studio is a testament to the power of atrium-centered house design. By anchoring the home around a central void, the architects have created a spatial experience that prioritizes light, privacy, and connection to nature. This home is not just a living space but a narrative of how architecture can harmonize with its surroundings while offering a rich and meaningful spatial journey.

All Photographs are work of Ana Skobe
Popular Articles
Popular articles from the community
Split House: A Compact Urban Home Blending Privacy, Light, and Flexible Living in Japan
Compact Japanese home featuring DOMA space, flexible café potential, passive lighting, privacy zoning, and sustainable urban living design.
Free Architecture Competitions You Can Enter Right Now
No entry fees, real prizes. Here are the best free architecture competitions open for submissions in 2026.
Alton Cliff House: A Harmonious Retreat by f2a Architecture in Lake Country, Canada
Alton Cliff House blends corten steel, prefabrication, and sustainable design, creating a luxurious, energy-efficient retreat perched on Canadian cliffs.
The Ken Roberts Memorial Delineation Competition (Krob)
As the most senior architectural drawing competition currently in operation anywhere in the world, it draws hundreds of entries each year, awarding the very best submissions in a series of medium-based categories.
Similar Reads
You might also enjoy these articles
The Ken Roberts Memorial Delineation Competition (Krob)
As the most senior architectural drawing competition currently in operation anywhere in the world, it draws hundreds of entries each year, awarding the very best submissions in a series of medium-based categories.
Waterfront Redevelopment and Urban Revitalization in Mumbai: Forging a New Dawn for Darukhana
A transformative waterfront redevelopment project reimagining Darukhana’s shipbreaking heritage into an inclusive urban future.
OUT-OF-MAP: A Call for Postcards on Feminist Narratives of Public Space
Rhizoma Design and Research Lab invites artists, designers, architects, researchers, and students to reflect on how feminist perspectives can reshape public space. Selected works will be exhibited in Barcelona, October 2026. Submissions open until 15 April 2026.
Documentation Work on Buddhist Wooden Temple
Architectural syncretism and cultural hybridity: A comparative study of the Buddhist temples in Chattogram Hill tracks
Explore Architecture Competitions
Discover active competitions in this discipline
The International Standard for Design Portfolios
The Global Benchmark for Architecture Dissertation Awards
The Global Benchmark for Graduation Excellence
Challenge to reimagine the Iron Throne
Comments (0)
Please login or sign up to add comments
No comments yet. Be the first to comment!