Black Cube House Renovation by MM++ Architects: A Masterpiece in Renovated Riverside Modern Architecture
Renovation turning a riverside Ho Chi Minh townhouse into a light-filled, greenery-adorned modern Black Cube House responsive to nature.
In the tranquil riverside district of Ho Chi Minh City, MM++ architects have transformed a four-story 2019 townhouse into a luminous, nature-friendly residence. The Black Cube House renovation reimagines the home’s spatial dynamics, enhancing light, ventilation, and livability while respecting the existing structure.
Rationale Behind the Renovation
Facing a design that was dim, congested, and out of tune with the homeowners’ desire for an open, nature-responsive lifestyle, the architectural strategy focused on optimizing light, airflow, and spatial connectivity.


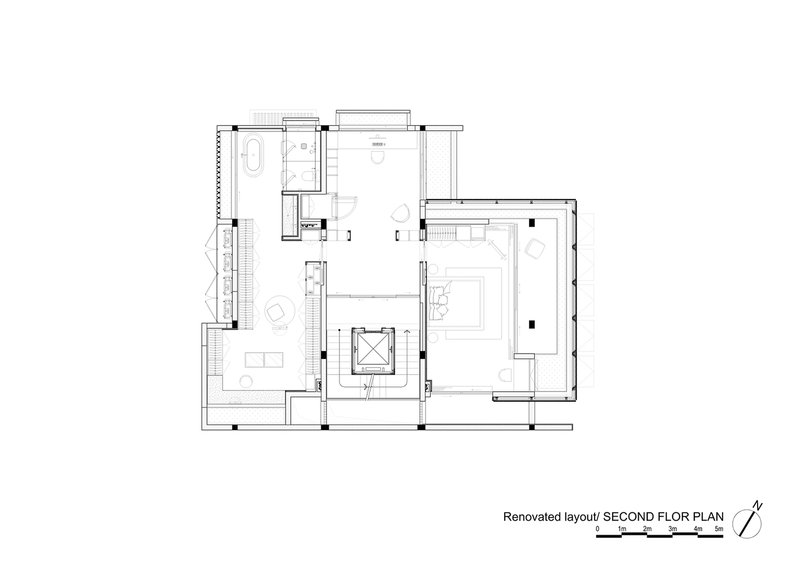
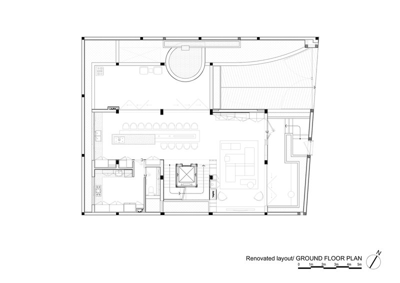
Creating Light and Air Through Vertical Integration
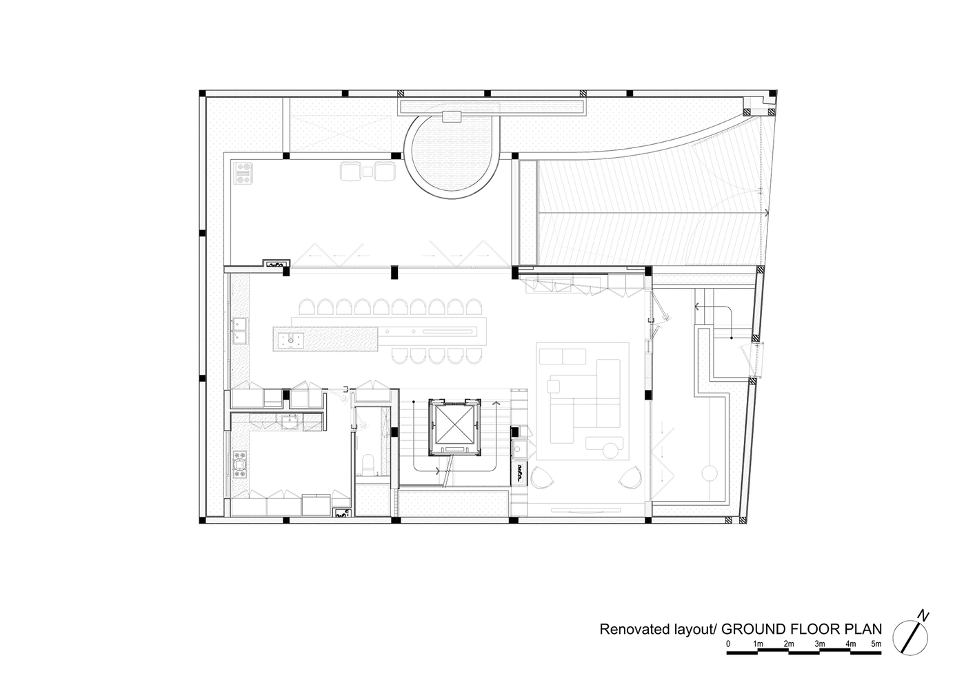
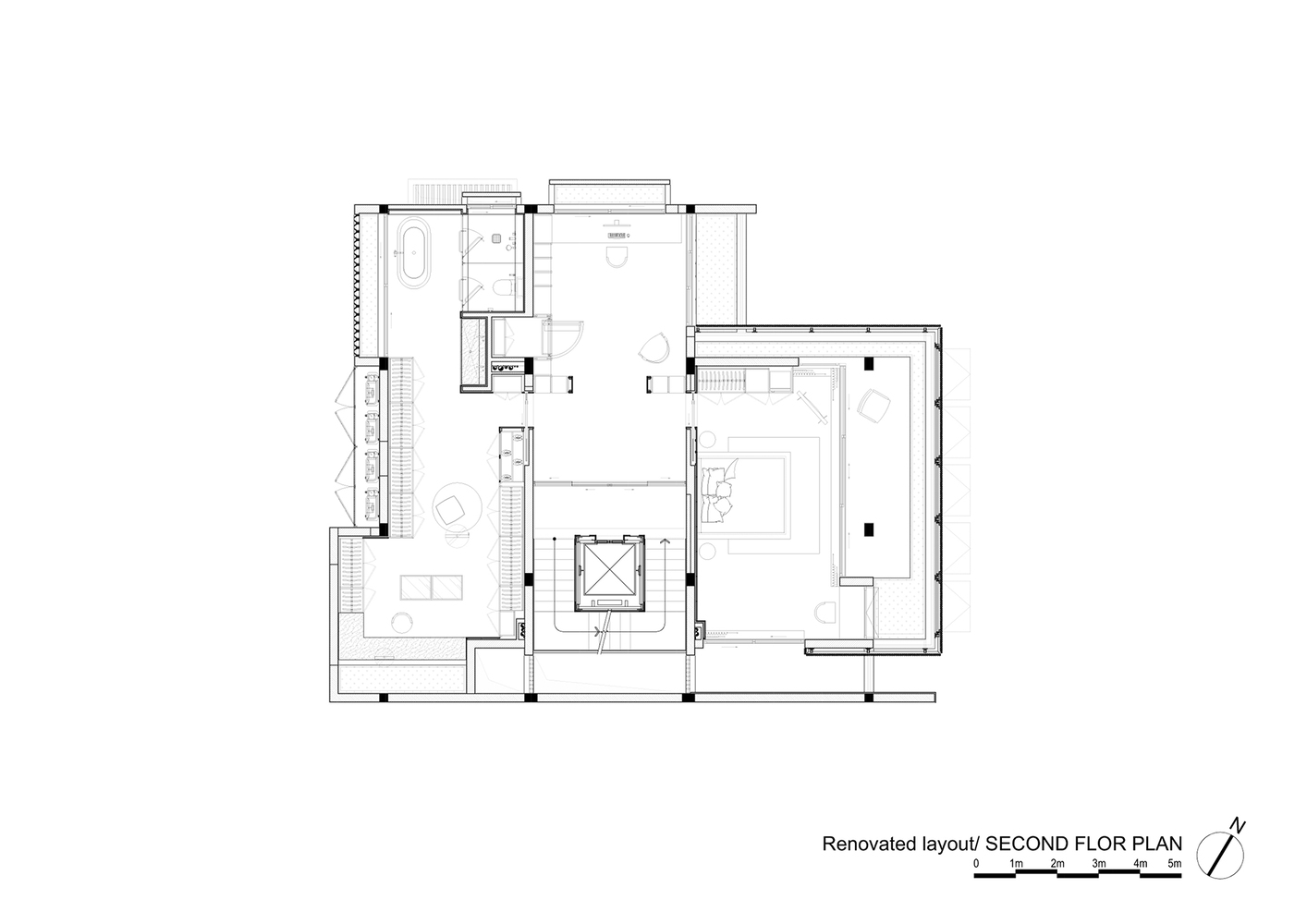
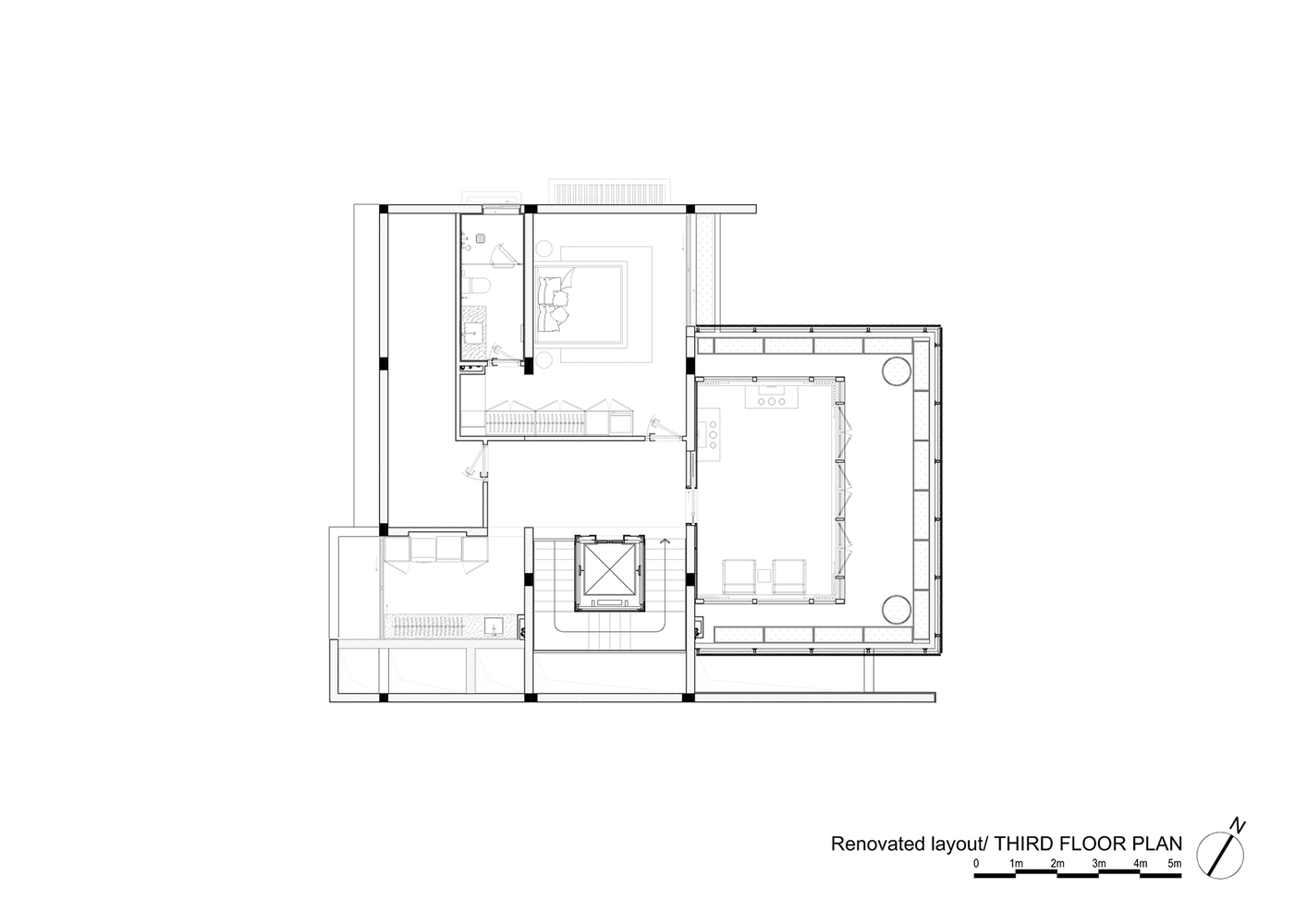
The renovation retained the building’s structural bones but relocated the elevator shaft to carve out a skylit atrium running from roof to ground. This change floods the interior with daylight and facilitates passive cooling—dramatically improving comfort and energy efficiency.
Introducing Vertical Layers of Greenery
Externally, reinforced concrete planters have been affixed to the existing frame, creating cascading green layers across multiple levels. These living elements enrich the home’s character while connecting its interior to the riverside environment.


Defining the Exterior: Black Oiled Wood Slats
The façade is enveloped in flexible black oiled wood slats. These serve dual roles—offering adjustable shading and privacy—while shaping the house’s bold black box aesthetic. The striking exterior juxtaposes calm solidity with the vibrancy within.

A Resilient, Nature-Connected Box
The Black Cube House renovation is a refined interplay between the existing townhouse form and visionary transformation—honoring structure while reinvigorating it with light, greenery, and architectural character. It represents the powerful potential of renovation to reinvent a home in harmony with both its environment and its occupants’ lifestyle.




All photographs are works of Hiroyuki Oki
Popular Articles
Popular articles from the community
Fifth NRE Jazz Club – De Bever Architecten: Eindhoven’s Revitalized Cultural Hub
Historic gas factory transformed into Fifth NRE Jazz Club blending modern sustainability, jazz culture, dining, and heritage architecture seamlessly.
Solar Steam: A Climate-Responsive Architecture That Redefines the Monument
A climate-responsive memorial architecture that transforms heat, decay, and time into a living system reflecting humanity’s ecological impact.
Gads Hill Early Learning Center by JGMA: Adaptive Reuse Shaping Community-Focused Educational Architecture
Adaptive reuse transforms fragmented structure into vibrant early learning center with playful façade, natural light, and community-focused sustainable design.
Atelier Macri Concept Store Interior Design by CASE-REAL
Atelier Macri store features a "ko" counter, walnut wood details, cork displays, blending retail, gallery, and seamless customer experiences.
Similar Reads
You might also enjoy these articles
Free Architecture Competitions You Can Enter Right Now
No entry fees, real prizes. Here are the best free architecture competitions open for submissions in 2026.
Top 15 Architecture Competitions to Enter in 2026
From student-friendly idea competitions to prestigious international awards, here are the best architecture competitions open for entries in 2026. Updated regularly.
DIY & Engineering in Computational Design : Enter the BeeGraphy Design Awards
Showcase Your Creativity with Computational Design and Open Source Projects

Innovative Design Solutions: Award-Winning Projects from Recent Architecture Competitions
Exploring award-winning architectural projects shaping the future of design, sustainability, and community.
Explore Architecture Competitions
Discover active competitions in this discipline
The International Standard for Design Portfolios
The Global Benchmark for Architecture Dissertation Awards
The Global Benchmark for Graduation Excellence
Challenge to reimagine the Iron Throne
Comments (0)
Please login or sign up to add comments
No comments yet. Be the first to comment!