Boleslavova 3: A Modern Approach to Historic Building Renovation by Plus One Architects
This article explores the historic building renovation of Boleslavova 3, showcasing its seamless blend of preservation and modern architectural innovation
Revitalizing a Historic Landmark in Prague
The Boleslavova 3 Building in Prague’s Nusle district stands as a testament to the seamless fusion of historical preservation and modern design. Designed by Plus One Architects, this ambitious renovation project breathes new life into a courtyard gallery building from the late 19th and early 20th centuries. While honoring its historical essence, the transformation introduces contemporary spatial layouts, refined aesthetics, and enhanced communal areas, redefining urban living in a heritage setting.






Architectural Vision and Preservation Strategy
The guiding principle behind the renovation was to respect the building’s original character while adapting it to contemporary needs. The architects retained key architectural elements, such as the courtyard galleries, which previously served as shared walkways but have now been repurposed into private balconies. The building's light cashmere-toned facade, insulated on the rear side, harmonizes with the surrounding architecture, creating a visual dialogue between past and present. The arched ceilings of the galleries, adorned with ceramic chess-patterned tiles and elegant metal railings, further reinforce the building’s refined historical presence.



Enhancing Common Spaces with Modern Design
Common spaces played a significant role in the original structure, and their restoration was approached with a focus on maintaining their representative function. The hallways preserve their traditional layout, with powdery shades of grey and pink stucco walls drawing inspiration from period murals. These textured finishes subtly echo decorative motifs from local historical buildings. Dark-toned paneled entrance doors and mottled brown veneer mailboxes complement the color scheme, creating a balance between modern minimalism and classic elegance.




The staircase, a defining feature of the building, underwent meticulous restoration. Its original curvilinear form, emphasized by brushed stone steps, maintains its historical authenticity. Linear lighting, designed in collaboration with the Penocze studio, accentuates the spiral flow of the stairwell, offering a contemporary touch to the preserved architectural fabric.



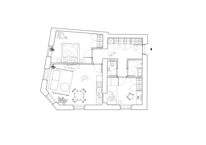
Apartment Layouts: A Unique Blend of Old and New
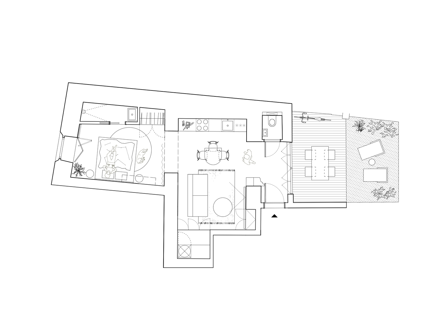
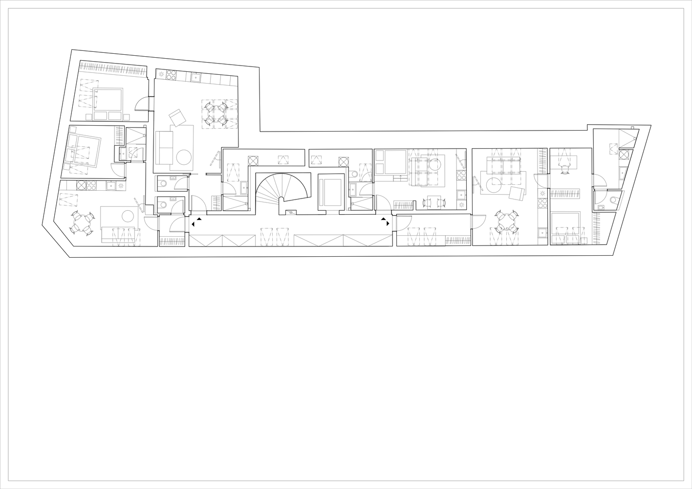
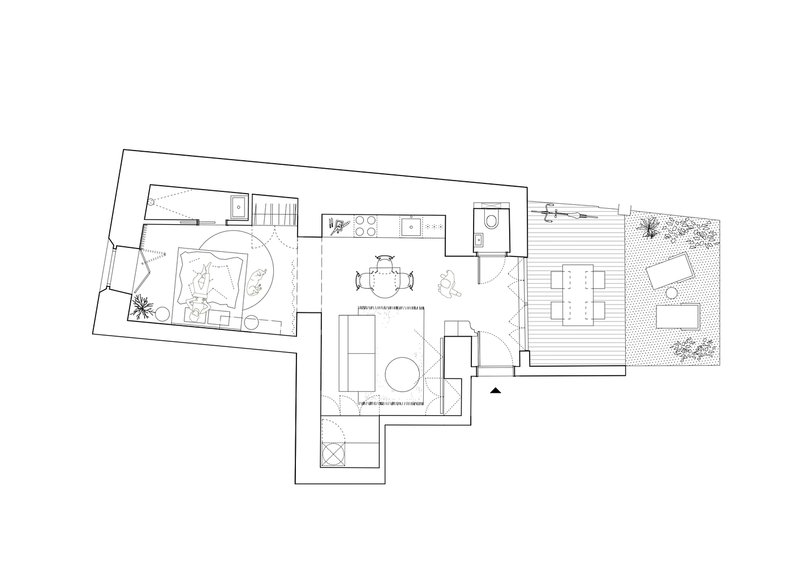
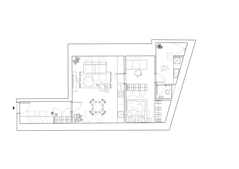
Each of the 15 apartment units within Boleslavova 3 has been designed to cater to modern living standards while embracing the historical framework of the building. No two layouts are identical, ensuring individuality in every residence. The first and second-floor apartments were reconfigured to maximize functionality, featuring spacious bathrooms and improved spatial organization. Some units also incorporate balconies, blending indoor and outdoor living experiences.



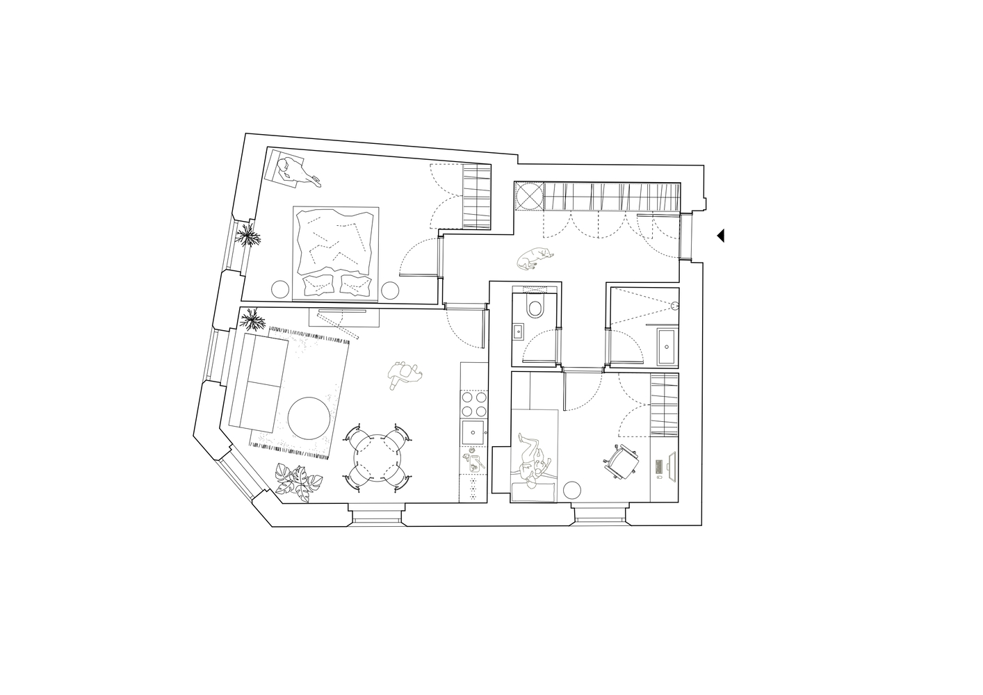
The most striking transformation occurred in the attic, where the former loft space was divided into four distinct units. A key challenge was maximizing natural light while preserving the original structure. Skylights were strategically placed, even in bathrooms, and rounded lightwells above doors allow daylight to filter into entry corridors. These design decisions enhance the sense of openness and connectivity within the living spaces.



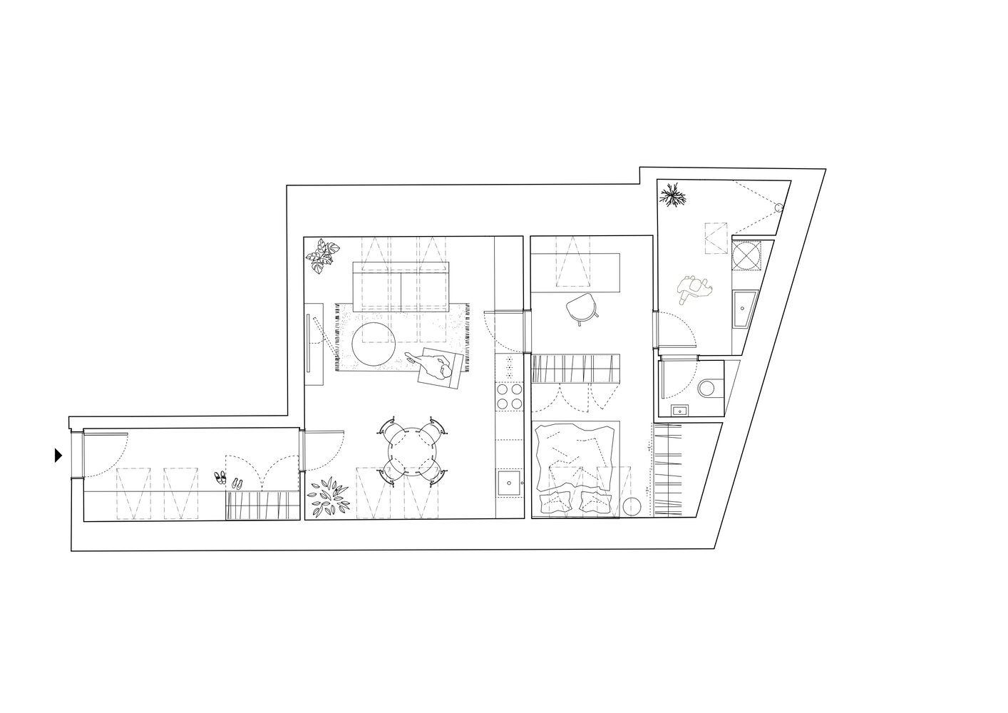
One standout feature is the maisonette, the only one of its kind within the building, which has a direct street entrance. The integration of exposed concrete ceilings and structural reinforcements ensures both visual appeal and long-term durability.



Interior Aesthetics and Material Selection
The interiors of Boleslavova 3 reflect a cohesive design philosophy that merges heritage elements with modern sophistication. Earthy and white tones dominate the material palette, creating a warm yet contemporary ambiance. Heated flooring, electric heating systems, and high-end bathroom fixtures from Grohe and Laufen add a touch of luxury while maintaining practicality.


On the ground floor, original architectural features such as barrel vaults and wall niches were preserved, enhancing the historical narrative of the space. A show apartment, designed by Plus One Architects, features a stainless steel kitchen accented with red-pink glazed tiles from the Dutch brand Palet. Privacy and climate control are achieved through profiled shutters, ensuring comfort during Prague’s warm summers.


The top-floor apartments incorporate air conditioning, ensuring optimal indoor temperatures year-round. In contrast, the maisonette distinguishes itself with a monolithic concrete staircase, reinforcing its unique character within the building.


A Developer’s Vision for Historic Urban Living
The Boleslavova 3 renovation was made possible through a collaboration between Plus One Architects and Castle Rock Investments, a developer committed to preserving historical architecture while embracing bold design solutions. The freedom and trust extended by the investor allowed the architects to explore unconventional material and color choices, resulting in a project that stands out in the Czech architectural landscape.



Although this development is intended for private housing, it serves as a broader inspiration for urban renovation projects. By striking a balance between conservation and contemporary design, Boleslavova 3 demonstrates how historic building renovation can create functional, aesthetically refined living spaces while preserving architectural heritage.



All Photographs are works of BoysPlayNice
Popular Articles
Popular articles from the community
The Ken Roberts Memorial Delineation Competition (Krob)
As the most senior architectural drawing competition currently in operation anywhere in the world, it draws hundreds of entries each year, awarding the very best submissions in a series of medium-based categories.
Split House: A Compact Urban Home Blending Privacy, Light, and Flexible Living in Japan
Compact Japanese home featuring DOMA space, flexible café potential, passive lighting, privacy zoning, and sustainable urban living design.
Atelier Macri Concept Store Interior Design by CASE-REAL
Atelier Macri store features a "ko" counter, walnut wood details, cork displays, blending retail, gallery, and seamless customer experiences.
Similar Reads
You might also enjoy these articles
The Ken Roberts Memorial Delineation Competition (Krob)
As the most senior architectural drawing competition currently in operation anywhere in the world, it draws hundreds of entries each year, awarding the very best submissions in a series of medium-based categories.
Waterfront Redevelopment and Urban Revitalization in Mumbai: Forging a New Dawn for Darukhana
A transformative waterfront redevelopment project reimagining Darukhana’s shipbreaking heritage into an inclusive urban future.
OUT-OF-MAP: A Call for Postcards on Feminist Narratives of Public Space
Rhizoma Design and Research Lab invites artists, designers, architects, researchers, and students to reflect on how feminist perspectives can reshape public space. Selected works will be exhibited in Barcelona, October 2026. Submissions open until 15 April 2026.
Documentation Work on Buddhist Wooden Temple
Architectural syncretism and cultural hybridity: A comparative study of the Buddhist temples in Chattogram Hill tracks
Explore Architecture Competitions
Discover active competitions in this discipline
The International Standard for Design Portfolios
The Global Benchmark for Architecture Dissertation Awards
The Global Benchmark for Graduation Excellence
Challenge to reimagine the Iron Throne
Comments (0)
Please login or sign up to add comments
No comments yet. Be the first to comment!