CIMI Restaurant: A Masterpiece of Sustainable Restaurant Design in Tokyo
CIMI Restaurant exemplifies sustainable restaurant design, integrating reclaimed materials, ethical dining, and interactive social experiences to redefine hospitality in Tokyo.
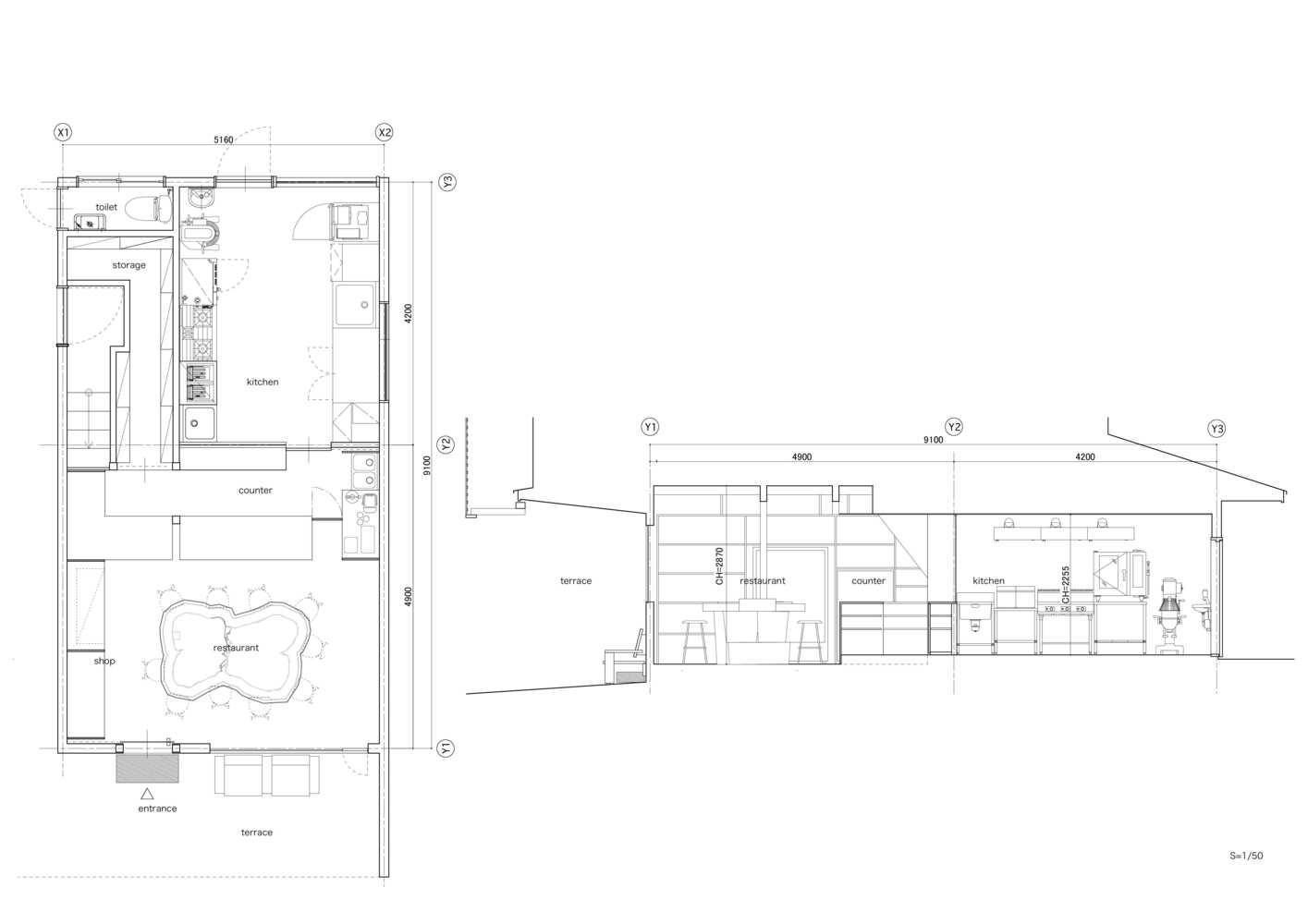
Nestled in a quiet residential area of Yoyogi, Shibuya, CIMI Restaurant by Jo Nagasaka + Schemata Architects redefines the concept of sustainable restaurant design. Built within the former space of FarmMart & Friends, this intimate dining establishment is more than just a place to eat—it's a space where people from different backgrounds gather, share meals, and engage in meaningful conversations.


With a strong commitment to sustainability, CIMI Restaurant not only sources environmentally responsible ingredients but also integrates reclaimed materials into its architectural design. The project embodies a holistic approach, merging eco-conscious construction, ethical dining, and community engagement into a single experience.


An Architectural Vision Rooted in Sustainability
CIMI Restaurant stands as an example of mindful architecture, where every element has been carefully selected to minimize environmental impact while enhancing the dining experience. Designed to foster interaction and togetherness, the space encourages guests to share not only meals but also ideas, traditions, and perspectives.

The restaurant's core design philosophy revolves around repurposing non-standard materials that would otherwise go to waste. The architectural team collaborated with Takahiro Lumber and the WOOD STOCK YARD project, an initiative focused on repurposing dead-stock lumber. By using reclaimed materials, the project challenges conventional construction norms, proving that beauty and sustainability can coexist.

The Red Cedar Table: A Symbol of Connection
One of the defining features of CIMI Restaurant is its custom-designed communal table, crafted from a red cedar log sourced from Shinkiba. This particular piece of wood, initially deemed unsuitable by industry standards, was salvaged and repurposed into the heart of the dining space.

The table design is unique, with three stumps forming its legs and five thinner slabs serving as the tabletop, creating a structure that provides ample legroom for guests. Additionally, the table's concave and convex edges encourage organic group formation, subtly nudging diners toward interaction.


At first, guests may keep to themselves, but as the meal progresses, conversations naturally unfold, forming a circle of engagement and shared experiences. This thoughtful design transforms the act of dining into an interactive social experience, reinforcing the restaurant's core mission of fostering human connection through food and space.

A Culinary Experience Rooted in Sustainability
Beyond its architectural vision, CIMI Restaurant extends its commitment to sustainability through its carefully curated menu. Offering a blend of vegan dishes, locally sourced venison, and sustainable seafood like oysters, the restaurant aligns its culinary practices with Japan’s broader environmental conservation efforts.

By incorporating ingredients that contribute to ecological balance, the restaurant challenges the idea that sustainability is solely about plant-based dining. Instead, it presents a holistic approach that respects both human traditions and environmental needs. The result is a dining experience that is not just about nourishment but also about raising awareness of responsible consumption.

Reclaimed Materials and Digital Innovation
In today’s digital economy, materials that were once considered discarded or unusable now find new life through online platforms and direct sales initiatives. The red cedar used in CIMI’s design was sourced through an online marketplace, allowing materials that had been forgotten to be rediscovered and repurposed.

This approach highlights the intersection of technology and sustainability, showing how modern tools can reshape the construction industry by providing access to underutilized materials. By leveraging digital platforms, CIMI Restaurant’s design process became not only resource-efficient but also a model for future sustainable architecture projects.

A Model for Future Sustainable Restaurant Design
CIMI Restaurant exemplifies a new era of sustainable restaurant design, where architecture, materials, and dining experiences converge to create a space that is both aesthetically compelling and environmentally responsible.

By reusing non-standard materials, fostering human interaction, and curating a menu that supports ecological balance, the project presents an alternative approach to hospitality design—one that prioritizes both people and the planet.

All Photographs are works of Tetsuya Ito
Popular Articles
Popular articles from the community
The Ken Roberts Memorial Delineation Competition (Krob)
As the most senior architectural drawing competition currently in operation anywhere in the world, it draws hundreds of entries each year, awarding the very best submissions in a series of medium-based categories.
Free Architecture Competitions You Can Enter Right Now
No entry fees, real prizes. Here are the best free architecture competitions open for submissions in 2026.
Atelier Macri Concept Store Interior Design by CASE-REAL
Atelier Macri store features a "ko" counter, walnut wood details, cork displays, blending retail, gallery, and seamless customer experiences.
Fifth NRE Jazz Club – De Bever Architecten: Eindhoven’s Revitalized Cultural Hub
Historic gas factory transformed into Fifth NRE Jazz Club blending modern sustainability, jazz culture, dining, and heritage architecture seamlessly.
Similar Reads
You might also enjoy these articles
Free Architecture Competitions You Can Enter Right Now
No entry fees, real prizes. Here are the best free architecture competitions open for submissions in 2026.
Top 15 Architecture Competitions to Enter in 2026
From student-friendly idea competitions to prestigious international awards, here are the best architecture competitions open for entries in 2026. Updated regularly.
DIY & Engineering in Computational Design : Enter the BeeGraphy Design Awards
Showcase Your Creativity with Computational Design and Open Source Projects

Innovative Design Solutions: Award-Winning Projects from Recent Architecture Competitions
Exploring award-winning architectural projects shaping the future of design, sustainability, and community.
Explore Architecture Competitions
Discover active competitions in this discipline
The International Standard for Design Portfolios
The Global Benchmark for Architecture Dissertation Awards
The Global Benchmark for Graduation Excellence
Challenge to reimagine the Iron Throne
Comments (0)
Please login or sign up to add comments
No comments yet. Be the first to comment!