Gambit Office by KWK Promes: A Landmark of Industrial Office Architecture
A sustainable industrial office building that integrates company identity, local context, and employee wellbeing in an innovative architectural form.
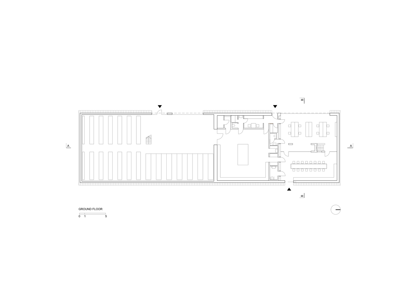
The Gambit Office, designed by Robert Konieczny and KWK Promes, stands as a striking example of industrial office architecture that seamlessly blends functionality, sustainability, and contextual awareness. Located in Poland, this 1,285-square-meter office-warehouse complex showcases how thoughtful design can turn an industrial building into a meaningful architectural statement.





A Vision Rooted in Function
Gambit, a specialist pipe distribution company, commissioned KWK Promes to design an office-warehouse that would serve as its architectural identity. With a limited budget, the architects cleverly proposed using the company’s own trade materials—pipes—as the central design element. This approach not only communicated the company's purpose but also established a strong visual language by transforming the building into a sculptural stack of pipes.



Set on a site formerly occupied by a rectangular production hall, the building’s design draws inspiration from the surrounding residential neighborhood of steep roofs and long outbuildings. This dialogue between the industrial and domestic scales results in a form that is both distinctive and harmonious with its environment.



A Composition of Industrial Volumes
The building is organized into three distinct functions: warehouse, workshop, and office. The office area, housed in a two-story section with sloping walls, adheres to the local zoning height restrictions and avoids unnecessary massing. The workshop sits in a lower volume, while the warehouse rises as a taller cuboid. The pitch of the office roof is dictated by the layout of the pipes, creating a dynamic, angular profile that emphasizes the building’s industrial roots.



Material Strategy and Sustainability
Although the initial plan was to clad the building in Gambit’s own pipes, the design team ultimately chose raw aluminum sheeting after realizing that the pipes were unsuitable for exterior use. This cost-effective and durable material develops a natural patina over time, lending the façade a raw, concrete-like character. This choice aligns with the architects’ commitment to sustainability and low-maintenance solutions, recognizing that building operation accounts for up to 30% of CO₂ emissions.



Blurring Boundaries with Nature
Attention to ecological concerns extended to the treatment of the building edges. While the pipes were capped to avoid wind noise, the team chose not to install bird nets, allowing the building to become a potential habitat for wildlife. This decision reflects an evolving perspective on how industrial office architecture can coexist with nature, transforming utilitarian structures into ecosystems.




Light, Space, and Wellbeing
Natural light fills the interior through a thoughtful arrangement of windows and skylights. The ground-floor office spaces feature classic glazing that offers views of a landscaped garden, carved from the parking area, providing workers with a connection to nature. Upper-level storage areas benefit from skylights that ensure bright, flexible workspaces. Recognizing the importance of employee wellbeing, the architects incorporated a rooftop terrace atop the workshop section, offering a dedicated relaxation space amid an otherwise industrial setting.


Industrial Office Architecture as a Cultural Statement
The Gambit Office project exemplifies how industrial office architecture can transcend utilitarianism to become a cultural and environmental statement. By integrating the company’s identity, respecting the local context, employing sustainable materials, and enhancing worker experience, KWK Promes has redefined what an industrial office can achieve.

The Gambit Office by Robert Konieczny + KWK Promes is more than a functional building—it’s a dynamic piece of industrial office architecture that reshapes the relationship between industry, community, and environment. Through innovative design strategies and material choices, it sets a new benchmark for sustainable and expressive workplace architecture.

All the photographs are works of Juliusz Sokołowski
Popular Articles
Popular articles from the community
Fifth NRE Jazz Club – De Bever Architecten: Eindhoven’s Revitalized Cultural Hub
Historic gas factory transformed into Fifth NRE Jazz Club blending modern sustainability, jazz culture, dining, and heritage architecture seamlessly.
Free Architecture Competitions You Can Enter Right Now
No entry fees, real prizes. Here are the best free architecture competitions open for submissions in 2026.
The Ken Roberts Memorial Delineation Competition (Krob)
As the most senior architectural drawing competition currently in operation anywhere in the world, it draws hundreds of entries each year, awarding the very best submissions in a series of medium-based categories.
Similar Reads
You might also enjoy these articles
The Ken Roberts Memorial Delineation Competition (Krob)
As the most senior architectural drawing competition currently in operation anywhere in the world, it draws hundreds of entries each year, awarding the very best submissions in a series of medium-based categories.
Waterfront Redevelopment and Urban Revitalization in Mumbai: Forging a New Dawn for Darukhana
A transformative waterfront redevelopment project reimagining Darukhana’s shipbreaking heritage into an inclusive urban future.
OUT-OF-MAP: A Call for Postcards on Feminist Narratives of Public Space
Rhizoma Design and Research Lab invites artists, designers, architects, researchers, and students to reflect on how feminist perspectives can reshape public space. Selected works will be exhibited in Barcelona, October 2026. Submissions open until 15 April 2026.
Documentation Work on Buddhist Wooden Temple
Architectural syncretism and cultural hybridity: A comparative study of the Buddhist temples in Chattogram Hill tracks
Explore Architecture Competitions
Discover active competitions in this discipline
The International Standard for Design Portfolios
The Global Benchmark for Architecture Dissertation Awards
The Global Benchmark for Graduation Excellence
Challenge to reimagine the Iron Throne
Comments (0)
Please login or sign up to add comments
No comments yet. Be the first to comment!