Gothic Revival Home Renovation: Quatrefoil House by Hyde + Hyde Architects
A Gothic Revival home transformed into a contemporary family residence, blending historical preservation with modern design innovations.
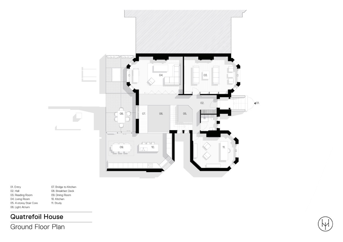
Quatrefoil House, designed by Hyde + Hyde Architects, is a stunning refurbishment and extension of an early Gothic Revival home located in North Oxford’s Victorian Suburb Conservation Area. This 499-square-meter residence, completed in 2021, harmonizes the historical charm of its 1870s architecture with contemporary design, creating a family home that reflects 21st-century living.



Restoring Historic Integrity
Originally serving as a student residence for the Eckersley School of English, the house was structurally sound but had suffered decades of neglect. Hyde + Hyde’s retrofit-led approach prioritized preserving the retainable historic fabric, including the intricate quatrefoil details above the door. These features were carefully restored to enhance the property’s contribution to the Conservation Area, reestablishing its period character and its connection to Oxford’s architectural heritage.



The New Extension: Contemporary Contextualization
The design introduced a fourth volume to the home, completing the square with a rear extension. Supported by a steel structure, the extension cantilevers over the rear garden, showcasing a blend of modern engineering and Gothic Revival influences. A concrete column, inspired by inverted Gothic windows, supports the cantilevered structure. The glazed extension features a brick façade that maintains privacy and respects the visual language of the original architecture.



Addressing Privacy and Context
To ensure the design harmonizes with its surroundings, the architects incorporated a brick partition on the ground floor terrace, preventing overlooking into neighboring properties. This thoughtful intervention retains privacy for both the homeowners and the surrounding community while contributing to the Conservation Area’s aesthetic coherence.


Exploring Ornamentation
Ornament plays a key role in the design’s dialogue between old and new. Inspired by the original quatrefoil motifs and Oxford’s architectural legacy, Hyde + Hyde introduced bronze quatrefoil tectonic tiles to the extension. This modern interpretation of ornament celebrates local iconography while creating a visually striking contemporary facade. These design choices reflect the influence of Louis Sullivan, whose philosophy of ornament as a means of visual storytelling is evident throughout the project.


Maximizing Natural Light and Space
The extension’s floor-to-ceiling windows and skylight flood the interior with natural light, seamlessly connecting the home to the secluded garden. A bespoke timber staircase, spanning all four stories, enhances passive ventilation and creates a visual centerpiece. The design incorporates voids that allow light to penetrate deep into the home, introducing a sense of openness while maintaining a connection to the historic structure.


Interior Reconfiguration: Balancing Old and New
Inside, the home’s layout has been carefully reconfigured to meet the needs of modern family life. The ground floor features a triple-height, open-plan design that contrasts with the formal, intimate character of the restored historic spaces. Transparent walls visually link the living room and kitchen-diner, fostering a sense of connection while preserving functional separation. The result is a dynamic family hub that serves as the heart of the home.


A Harmonious Blend of Heritage and Modernity
Quatrefoil House exemplifies how thoughtful design can bridge historical preservation with contemporary innovation. Hyde + Hyde Architects have transformed this Gothic Revival home into a modern family residence, seamlessly integrating the old and the new. By celebrating its architectural heritage while embracing modernity, Quatrefoil House stands as a testament to the enduring relevance of sensitive and contextualized design.



All Photographs are work of Martin Gardner, Michael Sinclair
Popular Articles
Popular articles from the community
Fifth NRE Jazz Club – De Bever Architecten: Eindhoven’s Revitalized Cultural Hub
Historic gas factory transformed into Fifth NRE Jazz Club blending modern sustainability, jazz culture, dining, and heritage architecture seamlessly.
Inverted Architecture Installation by Studio Link-Arc: Exploring the Intersection of Architecture and Living Organisms
Inverted Architecture Installation by Studio Link-Arc blends mycelium, sustainability, inverted design, ecological cycles, and urban adaptive architecture in Shenzhen.
Atelier Macri Concept Store Interior Design by CASE-REAL
Atelier Macri store features a "ko" counter, walnut wood details, cork displays, blending retail, gallery, and seamless customer experiences.
The Ken Roberts Memorial Delineation Competition (Krob)
As the most senior architectural drawing competition currently in operation anywhere in the world, it draws hundreds of entries each year, awarding the very best submissions in a series of medium-based categories.
Similar Reads
You might also enjoy these articles
The Ken Roberts Memorial Delineation Competition (Krob)
As the most senior architectural drawing competition currently in operation anywhere in the world, it draws hundreds of entries each year, awarding the very best submissions in a series of medium-based categories.
Waterfront Redevelopment and Urban Revitalization in Mumbai: Forging a New Dawn for Darukhana
A transformative waterfront redevelopment project reimagining Darukhana’s shipbreaking heritage into an inclusive urban future.
OUT-OF-MAP: A Call for Postcards on Feminist Narratives of Public Space
Rhizoma Design and Research Lab invites artists, designers, architects, researchers, and students to reflect on how feminist perspectives can reshape public space. Selected works will be exhibited in Barcelona, October 2026. Submissions open until 15 April 2026.
Documentation Work on Buddhist Wooden Temple
Architectural syncretism and cultural hybridity: A comparative study of the Buddhist temples in Chattogram Hill tracks
Explore Architecture Competitions
Discover active competitions in this discipline
The International Standard for Design Portfolios
The Global Benchmark for Architecture Dissertation Awards
The Global Benchmark for Graduation Excellence
Challenge to reimagine the Iron Throne
Comments (0)
Please login or sign up to add comments
No comments yet. Be the first to comment!