House of Harvest by Frayn Studio: Adaptive Reuse Architecture for Regenerative Food Systems
Frayn Studio transforms a former slaughterhouse into a sustainable food hub through adaptive reuse architecture and regenerative design strategies.
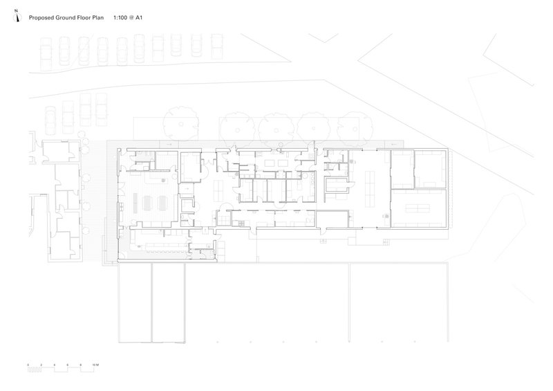
The House of Harvest, designed by Frayn Studio, exemplifies a visionary model of adaptive reuse architecture that reshapes how communities interact with food. Situated in Santa Gertrudis de Fruitera, Spain, the project transforms a former cattle slaughterhouse into a 615 m² hub for sustainable, community-based agriculture. It integrates food cultivation, processing, distribution, and public engagement into one holistic ecosystem that is as regenerative as it is architectural.


Transforming the Past for a Sustainable Future
At the heart of the project lies a commitment to reimagining defunct agricultural infrastructure. Rather than demolishing the old slaughterhouse, Frayn Studio retained its original footprint and revived its form through purposeful design. The space has been reconfigured into a functional sequence that mimics a living metabolism—where freshly harvested produce enters, is transformed, and then flows toward distribution or public experience.

This narrative of transformation aligns seamlessly with the building’s new identity: no longer a site of extraction and waste, but one of nourishment and circularity. It supports a localized food system across the Balearic Islands and provides a physical and symbolic space for community interaction around food.

Spatial Organization and Public Engagement
The building’s functions are carefully distributed across interconnected spaces. Private areas such as the Food Distribution and Transformation Kitchens are designated for commercial use, while public zones—including a Farm Shop and Tasting Room—invite visitors to engage with local produce and culinary culture.

A central courtyard, carved into the site, acts as both a spatial organizer and a social catalyst. Filled with native planting and public seating, it bridges the programmatic elements and allows users to participate in the food cycle as spectators, shoppers, and diners.

Architectural Materiality Rooted in Nature
Frayn Studio’s material choices are deeply intertwined with the ethos of regenerative design. The building is enveloped in Diathonite Evolution, a natural insulating composite made of lime, cork, and clay, which enhances thermal performance while remaining breathable and low-impact. The roof structure, made from compressed wood fibre panels and clad in standing-seam zinc, is engineered to last while integrating energy and water harvesting systems.


This thoughtful material palette reinforces the building’s agricultural identity and sustainability goals. The natural tones and textures echo the land it serves and ground the architecture in a regional sensibility that is both practical and poetic.


Energy Independence and Water Regeneration
The House of Harvest exemplifies self-sufficiency through its climate-responsive strategies. Over 100 solar panels are mounted on its south-facing roof, generating up to 70 kWh—enough to power the building year-round and feed surplus energy back into the grid. Skylights on the north-facing roof ensure ample natural illumination, reducing daytime reliance on artificial lighting.

Rainwater is also harvested via the roof and stored underground, then redirected to nourish the adjacent farm. In this way, the building not only sustains itself but also contributes actively to the growth of the crops that fuel its operations—creating a self-reinforcing cycle between architecture and agriculture.

A Blueprint for Agricultural Transformation
More than a functional food facility, the House of Harvest is a prototype for wider change. As part of Juntos Farm, it sets a precedent for how outdated industrial buildings can be repurposed to support local, regenerative food systems. It offers a physical blueprint and an ideological manifesto—a place where community, ecology, and design converge.


By turning a symbol of the past into a vehicle for future resilience, Frayn Studio has shown that adaptive reuse architecture can play a powerful role in the global movement toward sustainability and food sovereignty.

Popular Articles
Popular articles from the community
Solar Steam: A Climate-Responsive Architecture That Redefines the Monument
A climate-responsive memorial architecture that transforms heat, decay, and time into a living system reflecting humanity’s ecological impact.
Flamboyant House by Juliana Camargo + Prumo Projetos
Modern Brazilian house integrating existing tree, pool, and volumes with glass, wood, and transitional spaces blending interior, exterior, and landscape seamlessly.
Atelier Macri Concept Store Interior Design by CASE-REAL
Atelier Macri store features a "ko" counter, walnut wood details, cork displays, blending retail, gallery, and seamless customer experiences.
Louis Malle Cinema: A Limestone Cultural Landmark Revitalizing Community Life in Prayssac
Limestone cinema extension with public forecourt, blending heritage and modern design to create flexible cultural spaces and strengthen community interaction.
Similar Reads
You might also enjoy these articles
Top 15 Architecture Competitions to Enter in 2026
From student-friendly idea competitions to prestigious international awards, here are the best architecture competitions open for entries in 2026. Updated regularly.
DIY & Engineering in Computational Design : Enter the BeeGraphy Design Awards
Showcase Your Creativity with Computational Design and Open Source Projects

Innovative Design Solutions: Award-Winning Projects from Recent Architecture Competitions
Exploring award-winning architectural projects shaping the future of design, sustainability, and community.
Explore Architecture Competitions
Discover active competitions in this discipline
The International Standard for Design Portfolios
The Global Benchmark for Architecture Dissertation Awards
The Global Benchmark for Graduation Excellence
Challenge to reimagine the Iron Throne
Comments (0)
Please login or sign up to add comments
No comments yet. Be the first to comment!