House WBVD by BASIL Architecture: A Striking Townhouse Renovation in Bruges
A bold and sustainable renovation transforms a historic Bruges townhouse into a luminous, multi-level home celebrating light and heritage.
A Contemporary Transformation Behind a Historic Façade
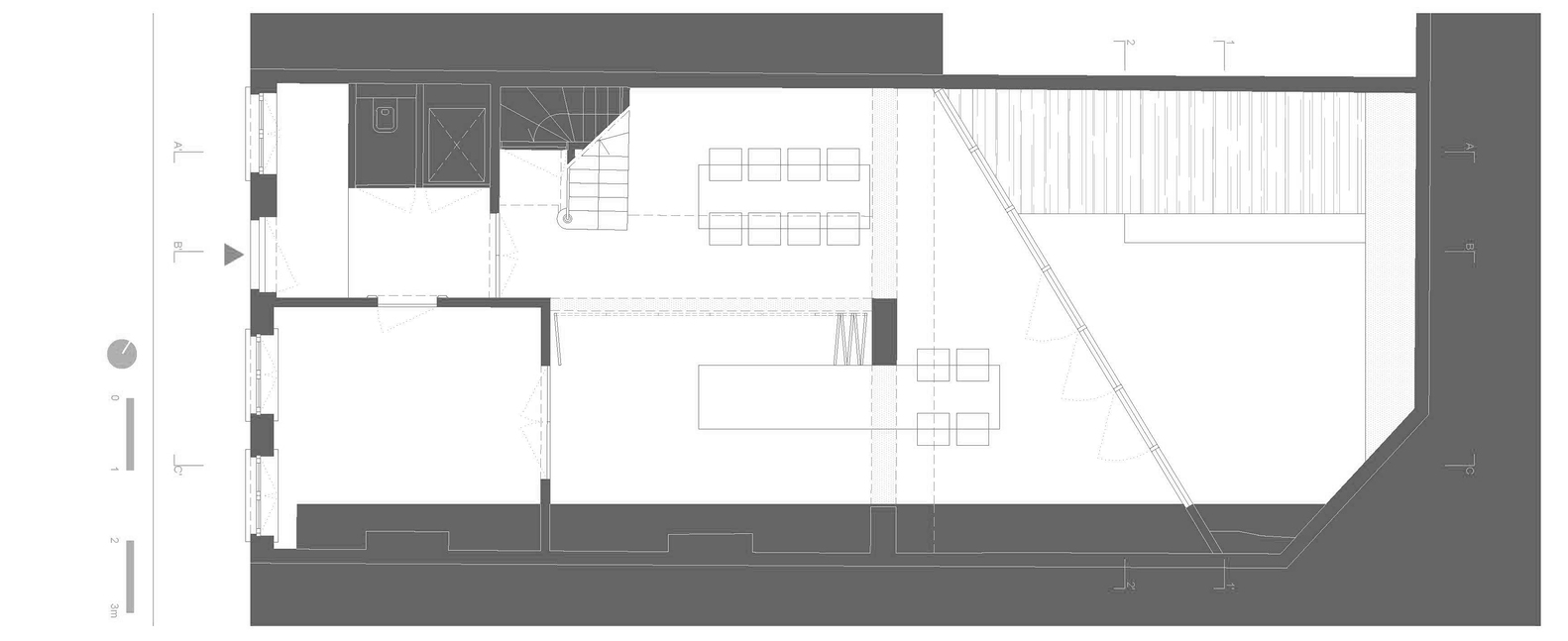
At first glance, House WBVD appears to be a typical 19th-century townhouse nestled in the historic heart of Bruges. The original façade, dating back to the 1870s, was intentionally preserved to maintain the urban fabric. But upon entering through the tall entry door, a modern and light-filled architectural world is revealed—an innovative renovation that blends heritage with contemporary design, led by BASIL architecture.




Respecting History While Reimagining Space
Rather than demolishing the structure, the architects retained the original main volume and emphasized their interventions with strong architectural gestures. A series of diagonally stacked glass volumes were added to the rear, introducing dramatic openness and a striking visual identity. These new volumes contrast yet harmonize with the existing shell, celebrating the intersection between old and new.




Maximizing Natural Light and Vertical Interaction
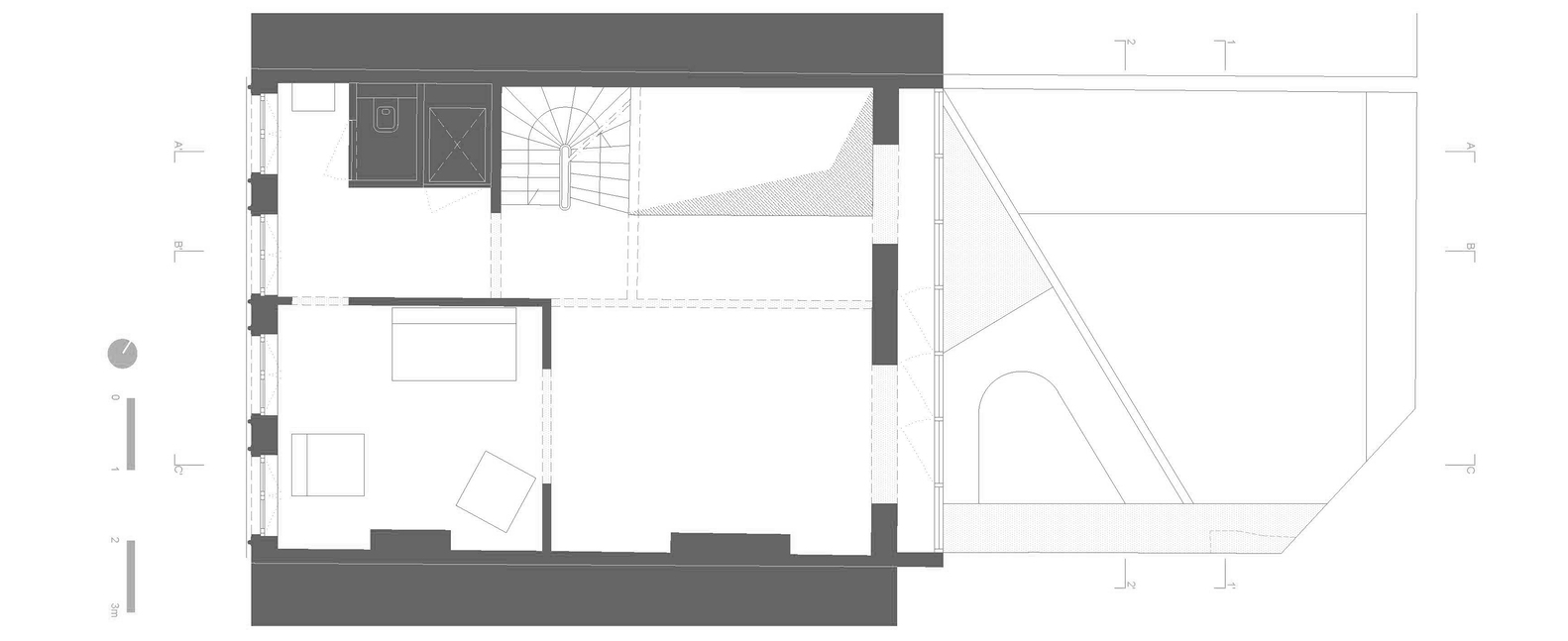
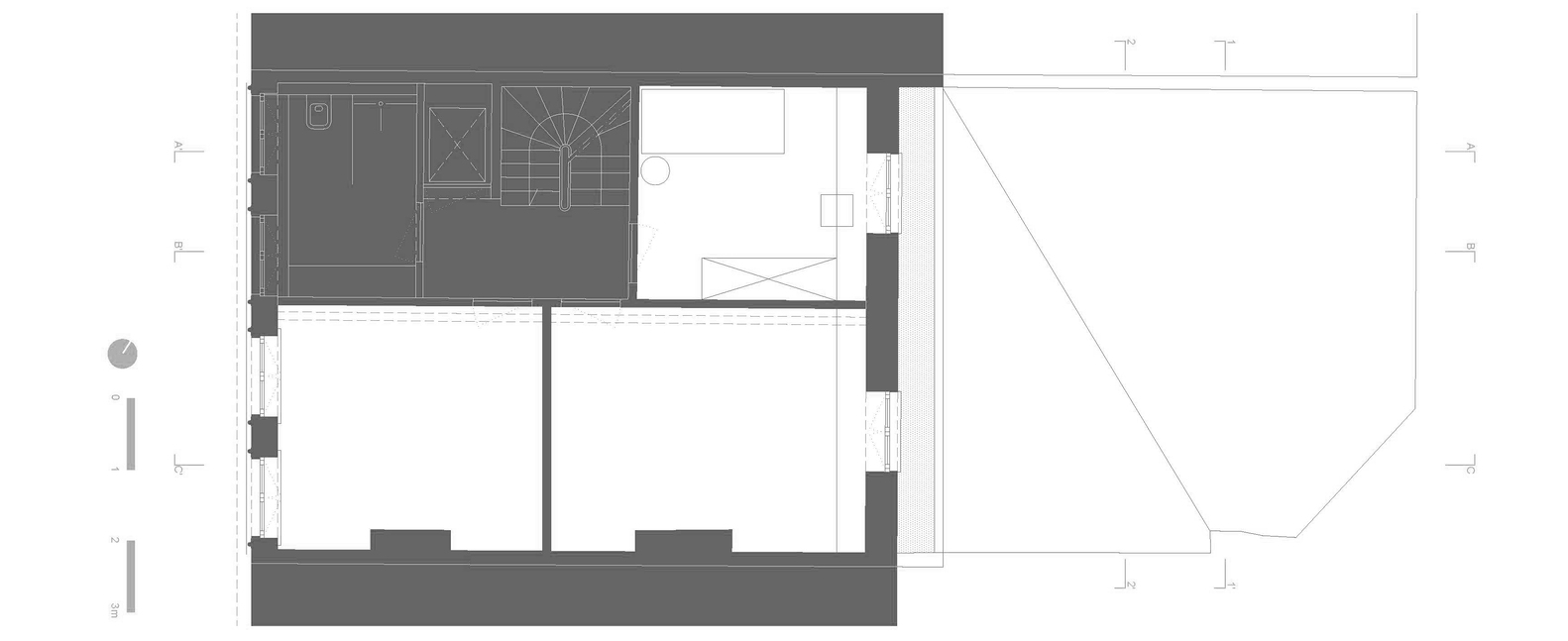
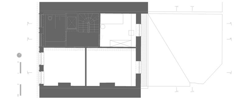
The heart of the home is the void—a central light well that spans the height of the house and is paired with a sculptural green staircase. The first floor was opened up to establish interaction between levels, enabling daylight to penetrate deep into the plan. The stairwell, enclosed in the original layout, was transformed into a vertical connection that visually links all floors. A ridge rooflight further enhances this light flow, turning what was once a dark core into a dynamic and bright spatial experience.





Architectural Details That Speak to the Era
Structural beams within the retained volume subtly reflect the historical room divisions typical of 1870s townhouses. Simultaneously, exposed concrete interventions clearly mark what is new—an honest expression of material and method. These concrete elements, made entirely on-site, emphasize sustainability through local construction techniques.




Sustainability Through Preservation and Purposeful Construction
By reusing the main volume and limiting new materials, the project takes a sustainable stance rooted in conservation. The approach not only reduces waste but also celebrates the embodied energy of the existing structure. Every new component was fabricated on site, minimizing transport and reinforcing the environmentally conscious design strategy.




Green Accents and Functional Elegance
The project's contemporary identity is further enriched by its green accents—a signature of the renovation. From the staircase and kitchen cabinetry to switches and door handles, the olive-toned elements unify the design and add vibrancy. Functionally, the home is prepared for lifelong living, with a lift shaft incorporated to provide access across all four levels.




A Floating Terrace and Water Garden Oasis
The rear outdoor space complements the architectural clarity of the interior. A 'floating' terrace hovers above a serene water garden, which serves dual functions: as a reflective pool that bounces light back into the house and a rainwater buffer enhancing environmental responsiveness. This courtyard, freed by demolishing obstructive rear additions, becomes a tranquil retreat within the dense urban context.



A Bathroom With a View
The attic space, once a closed-off roof volume, was reimagined through the addition of a pronounced dormer. This intervention houses the bathroom and provides sweeping views over the Bruges skyline, reinforcing the connection between architecture and place. The master bedroom shares this elevated perspective, receiving daylight and an expanded sense of spatial luxury.




Redefining Urban Townhouse Living
House WBVD by BASIL architecture redefines what a historic urban townhouse can be. Through surgical interventions, strategic voids, material expression, and an unwavering commitment to sustainability, the project elevates the quality of life while respecting the layered history of Bruges. It stands as a model of how old buildings can be adapted to contemporary standards without erasing their past.

All Photographs are works of Evenbeeld
Popular Articles
Popular articles from the community
The Ken Roberts Memorial Delineation Competition (Krob)
As the most senior architectural drawing competition currently in operation anywhere in the world, it draws hundreds of entries each year, awarding the very best submissions in a series of medium-based categories.
Free Architecture Competitions You Can Enter Right Now
No entry fees, real prizes. Here are the best free architecture competitions open for submissions in 2026.
Atelier Macri Concept Store Interior Design by CASE-REAL
Atelier Macri store features a "ko" counter, walnut wood details, cork displays, blending retail, gallery, and seamless customer experiences.
Similar Reads
You might also enjoy these articles
Bamboo Housing Challenge 2026: Design Affordable, Sustainable Homes Using Bamboo
An international design competition by Bamboo U and IBUKU inviting architects and designers to reimagine affordable housing using bamboo — with the winning design built full-scale in Bali.
Computational Design & Education: Beegraphy Design Awards Introduces 7th Category (Featuring Jiyun's Innovative Approach)
Dive into Beegraphy’s 7th Design Awards category, where computational design meets education to create immersive, interactive learning tools, inspired by Jiyun’s work.
From Parametric Lighting to Urban Furniture: Join the 2nd Workshop in Beegraphy’s Computational Design Series
Dive into Cutting-Edge Design Techniques and Practical Applications with Industry Experts
Explore Architecture Competitions
Discover active competitions in this discipline
The International Standard for Design Portfolios
The Global Benchmark for Architecture Dissertation Awards
The Global Benchmark for Graduation Excellence
Challenge to reimagine the Iron Throne
Comments (0)
Please login or sign up to add comments
No comments yet. Be the first to comment!