ITSUMO Dessert Shop: Redefining Minimalist Dessert Shop Architecture in Batam by kousou
ITSUMO Dessert Shop in Batam redefines minimalist dessert shop architecture through material clarity, spatial poetry, and contextual transformation.
A Bold Take on Minimalism in Southeast Asia
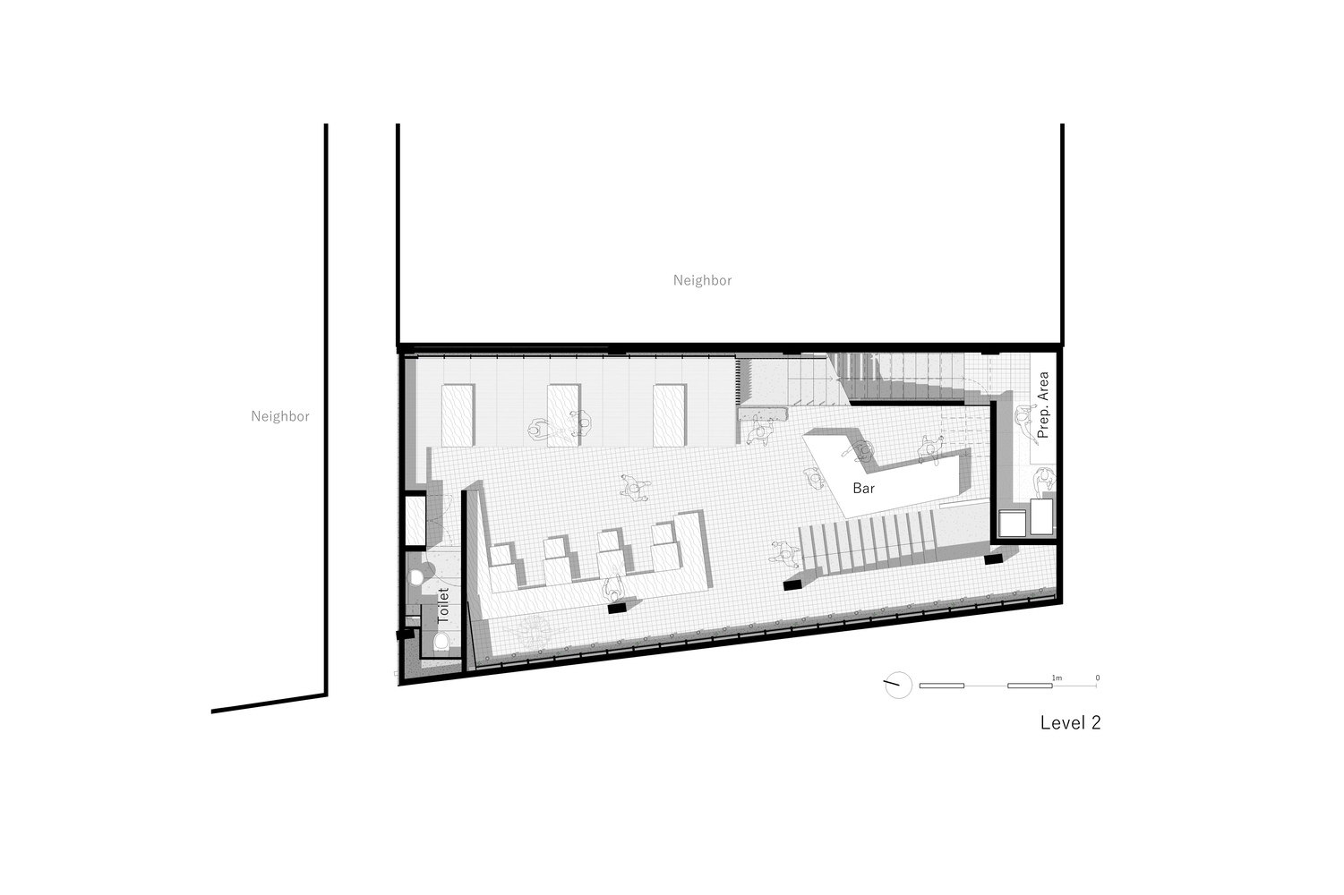
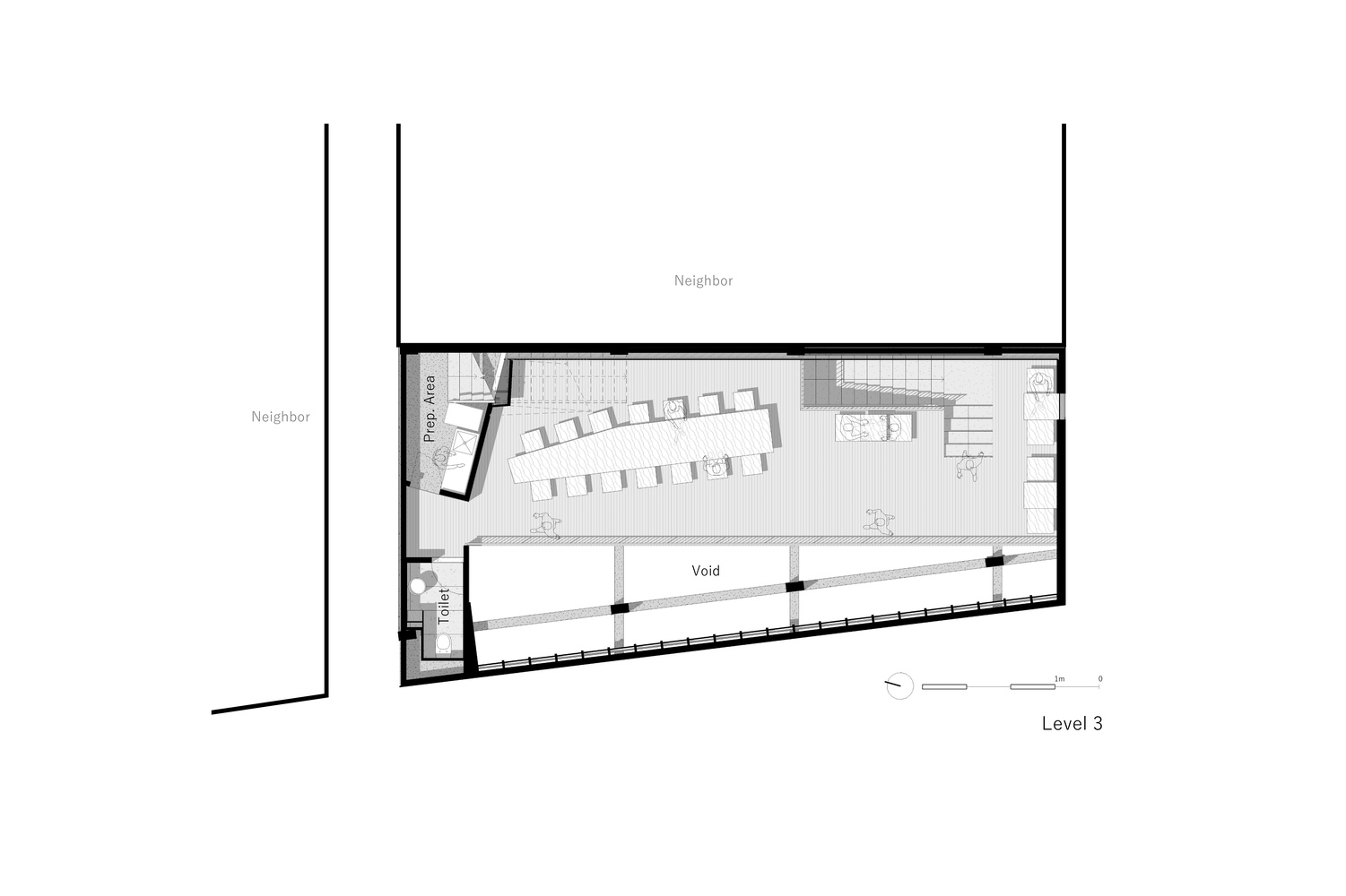
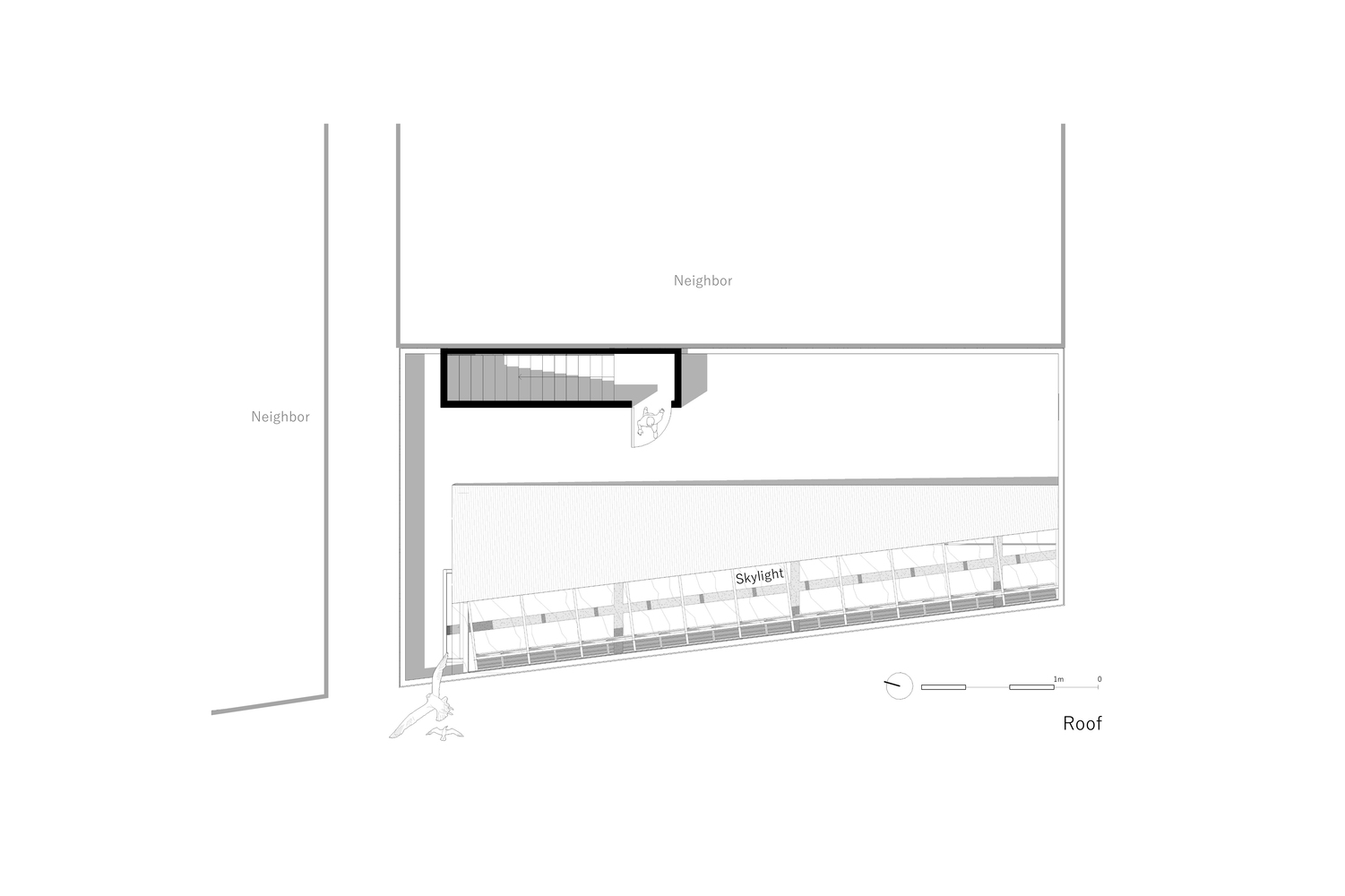
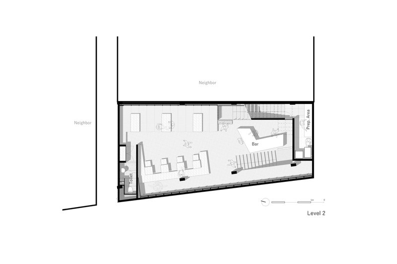
ITSUMO Dessert Shop by kousou is a striking example of minimalist dessert shop architecture that elevates the conventional shop-house (ruko) typology into a refined architectural experience. Located in the bustling city of Batam, Indonesia, the 300 m² renovation goes far beyond interior decoration—it presents a statement of calm and confidence through subtle geometry, material clarity, and poetic detail.




Origin Story: A Personal Connection as the Foundation
This project is more than a commercial fit-out—it is a deeply personal venture. The Batam location is the original site of the client's first store, a space she initially designed herself. Architect Svetlin Petrov and his studio kousou approached the renovation with deep respect for this history while challenging the limitations of the traditional ruko form. The client’s vision was to mark the brand’s origin with boldness, sparking a spatial conversation that juxtaposes memory, culture, and forward-thinking design.




Breaking Local Norms: A Shift Away from Utilitarian Architecture
In contrast to Batam's typical urban language—marked by bright colors and synthetic materials—ITSUMO stands in quiet defiance. The architects designed a minimal white facade that subtly interrupts the visual noise of its surroundings. Its simplicity becomes powerful, signaling a spatial transformation not just for the brand, but for the local context as well. Through natural materials and refined forms, the shop invites visitors into a serene world unlike anything nearby.



Spatial Identity: From Bali to Batam
Each ITSUMO location is envisioned with its own identity. Where the Bali branch was defined by softness and organic curvature, Batam is articulated through sharp geometries and a darker palette. The core interior hue—black—is inspired by avant-garde Japanese fashion, referencing layered textures and silent boldness. This approach ensures the Batam shop remains distinct, while remaining true to the brand’s design philosophy.




Rain as Architecture: A Poetic Courtyard Feature
One of the most emotionally resonant elements is the integration of rain into the architecture. The client’s personal connection to rain became a conceptual driver, leading to the creation of a central courtyard that welcomes natural light and allows rainwater to gently fall indoors. Custom-designed hidden gutters channel rain between facade walls and skylights, offering not just ventilation but a multisensory experience. It’s architecture as memory, filtered through innovation.



Balancing Minimalism and Material Depth
Achieving the right emotional tone in an almost entirely black interior posed significant challenges. To avoid somberness, the design team selected naturally black and stainable materials such as textured stone, metal, and wood. These were harmonized with raw concrete surfaces and warm brown accents, creating depth and inviting tactile engagement. The result is a space that feels intentional, meditative, and alive with texture.



Artistic Freedom and Iterative Design
With rare client trust, the architects were given artistic freedom—an unusual situation that shifted the design process internally. Without the usual constraints, they became their own sharpest critics. This freedom brought focus to every detail, from material selection to light choreography. The process was intensely collaborative, involving the client, contractors, and craftsmen at Room Studio. Through testing countless samples, the team refined each element until the atmosphere aligned perfectly with their conceptual goals.



Exposing the Original Structure
Another key design choice was to retain and expose parts of the existing structure, celebrating rather than concealing the building’s history. This added a raw honesty to the project, reinforcing the renovation’s core theme: transformation without erasure. The raw bones of the old shop-house became the perfect counterpoint to the precise interventions layered over it.



Architectural Impact Beyond the Shop
ITSUMO Dessert Shop is a compelling case for how minimalist dessert shop architecture can shift perceptions and raise design standards, even in cities not typically known for architectural innovation. In Batam, a place often defined by efficiency over expression, this project proves that thoughtful design can inspire, challenge, and transform. It’s a beacon for how small-scale retail projects can make a larger cultural and architectural impact.



Minimalism as Cultural Catalyst
ITSUMO is not just a dessert shop; it is a catalyst for rethinking how architecture can express brand identity, memory, and atmosphere through subtlety. It redefines what’s possible in a ruko and demonstrates the profound effect of trust, collaboration, and intention. As a prototype for minimalist dessert shop architecture in Southeast Asia, it sets a new benchmark for spatial storytelling.


All the photographs are works of Kung Photograph
Popular Articles
Popular articles from the community
Flamboyant House by Juliana Camargo + Prumo Projetos
Modern Brazilian house integrating existing tree, pool, and volumes with glass, wood, and transitional spaces blending interior, exterior, and landscape seamlessly.
Inverted Architecture Installation by Studio Link-Arc: Exploring the Intersection of Architecture and Living Organisms
Inverted Architecture Installation by Studio Link-Arc blends mycelium, sustainability, inverted design, ecological cycles, and urban adaptive architecture in Shenzhen.
Treehouse Apartment: A Warm Timber Interior Blending Craft, Play, and Contemporary Living
Warm timber apartment with integrated treehouse, combining natural materials, craftsmanship, and playful design to create a flexible, family-oriented living environment.
The Ken Roberts Memorial Delineation Competition (Krob)
As the most senior architectural drawing competition currently in operation anywhere in the world, it draws hundreds of entries each year, awarding the very best submissions in a series of medium-based categories.
Similar Reads
You might also enjoy these articles
Top 15 Architecture Competitions to Enter in 2026
From student-friendly idea competitions to prestigious international awards, here are the best architecture competitions open for entries in 2026. Updated regularly.
DIY & Engineering in Computational Design : Enter the BeeGraphy Design Awards
Showcase Your Creativity with Computational Design and Open Source Projects

Innovative Design Solutions: Award-Winning Projects from Recent Architecture Competitions
Exploring award-winning architectural projects shaping the future of design, sustainability, and community.
Explore Architecture Competitions
Discover active competitions in this discipline
The International Standard for Design Portfolios
The Global Benchmark for Architecture Dissertation Awards
The Global Benchmark for Graduation Excellence
Challenge to reimagine the Iron Throne
Comments (0)
Please login or sign up to add comments
No comments yet. Be the first to comment!