Malachowsky Hall Wraps AI Research in Faceted Skin
Bohlin Cywinski Jackson delivers a data science hub at UF that pairs a tessellated facade with a generous timber atrium at its core.
A building dedicated to artificial intelligence and data science could easily default to the glass-box corporate aesthetic that haunts most tech campuses. At the University of Florida, Bohlin Cywinski Jackson went a different direction with Malachowsky Hall, wrapping five stories in a deeply faceted precast panel system that reads less like a server farm and more like a piece of origami dropped onto a subtropical campus. The result is a building that earns its presence on Gainesville's flat, oak-shaded terrain without shouting.
What makes the project genuinely interesting is the tension between its outward geometry and its interior warmth. The exterior is angular, precise, almost crystalline. Step inside, and the language shifts to timber ceilings, amphitheater stairs, and multi-story atria flooded with diffused light. It is a building that understands a core challenge of academic tech facilities: how to make spaces where people want to linger, collaborate, and stumble into conversation, not just plug in and disappear.
A Facade That Earns Its Complexity



The triangulated precast panels that define Malachowsky Hall's exterior are the building's most immediately legible move. Viewed from across the lawn, the facade reads as a continuous, shifting surface: deep relief triangles catch raking Florida sunlight and cast sharp shadows that change throughout the day. It is a strategy that gives the building visual mass and texture without resorting to applied ornament.
Up close, the panel system reveals its discipline. Each facet is a flat plane, but the angles between them create an optical complexity that belies the simplicity of the unit. At sunset, the warm light turns the surface into something almost geological. The glass curtain wall at the base grounds the composition, making the heavy upper volumes appear to float above the pedestrian realm.
Campus Presence and Street Edge



The building sits at a prominent corner, and the architects use the stacked, shifted volumes to create a massing that responds to two different scales simultaneously. From the street, the patterned facade panels give a civic weight to the corner, while the glazed ground floor keeps the pedestrian edge transparent and inviting. There is a deliberate generosity here: the shaded paths along the base, the landscaped entry plaza, the way the building steps back to let the existing live oaks remain.
The presence of Spanish moss draped over those oaks in the foreground of nearly every approach is not incidental. BCJ understood that the building would always be read through a filter of the Florida landscape, and the angular geometry benefits enormously from that contrast. The organic against the geometric is a well-worn play, but when the organic element is a sixty-foot live oak, it works.
The Timber Atrium as Social Engine



The central atrium is the building's primary organizational and social device. Rising through multiple floors, it is lined with timber ceiling panels and anchored by a wide staircase that doubles as amphitheater seating. Students occupy every surface: sitting on steps, leaning against railings, sprawled across the tiered platforms. The space succeeds because it offers a range of postures, not just designated seats.
The coffered white ceiling above and the slatted wood surfaces below create an acoustic environment that absorbs the hum of a busy academic building without deadening it. Linear integrated lighting runs through the slats, giving the space an even glow in the evening. The staircase is generous enough to encourage lingering, which is the point. In a data science building, the most valuable computation often happens in unplanned hallway conversations, and this atrium is designed to manufacture those encounters at scale.
Dusk and the Illuminated Edge



At twilight, the building transforms. The glass base glows, revealing the active ground floor, while the faceted upper panels become a dark, sculptural mass above. The corner stair tower, illuminated from within, acts as a lantern marking the building's position on campus. It is a smart move: giving the building a nighttime identity that differs meaningfully from its daytime one.
The perforated metal panels on certain faces add another layer at dusk, filtering interior light into a soft pattern that bridges the solid precast and the transparent glass. Against the silhouette of moss-laden oaks, the building at night looks both more monumental and more approachable than it does by day.
Work Spaces That Range from Focused to Social



The interior program covers a wide spectrum, from quiet study desks beneath triangulated wood ceilings to double-height workshop spaces with exposed concrete and pendant lighting. The study desks along the building's perimeter benefit from the facade's geometry: the triangular openings in the wood ceiling frame views outward, connecting individual focus work to the landscape beyond.
Counter-height seating along glazed walls overlooks planted courtyards, offering a more casual work posture. The maker and workshop spaces are deliberately rougher in finish, with exposed structure and industrial lighting, signaling that these rooms are for building and breaking things, not just thinking about them. The tiered seating platform in the workshop doubles as informal presentation space, collapsing the distance between making and sharing.
Teaching and Production Rooms



The tiered lecture hall features an undulating wood ceiling that is probably the most photogenic single room in the building. The ceiling's wave pattern is not pure decoration: it manages acoustics across a large, sloped room while integrating recessed strip lighting. It reads as a serious space, not a playful one, which suits the research-intensive programs housed here.
Elsewhere, media production workstations with exposed black conduit and glass partitions overlook the multi-level atrium, keeping specialized labs visually connected to the building's social core. The double-height lobby with full-height glazing onto a planted courtyard provides a decompression zone between the more intense program spaces. BCJ is careful not to let any single room feel sealed off from the larger building.
The Wide Stair as Recurring Motif


Wide, timber-clad staircases appear repeatedly throughout the building, and they serve as more than circulation. Each landing becomes a gathering spot; each run of steps becomes seating. The coffered white ceilings above keep the stair zones feeling open even when the timber surfaces might otherwise darken them. The commitment to stairs over elevators as the primary social connector is worth noting: it keeps people moving through shared space rather than bypassing it.
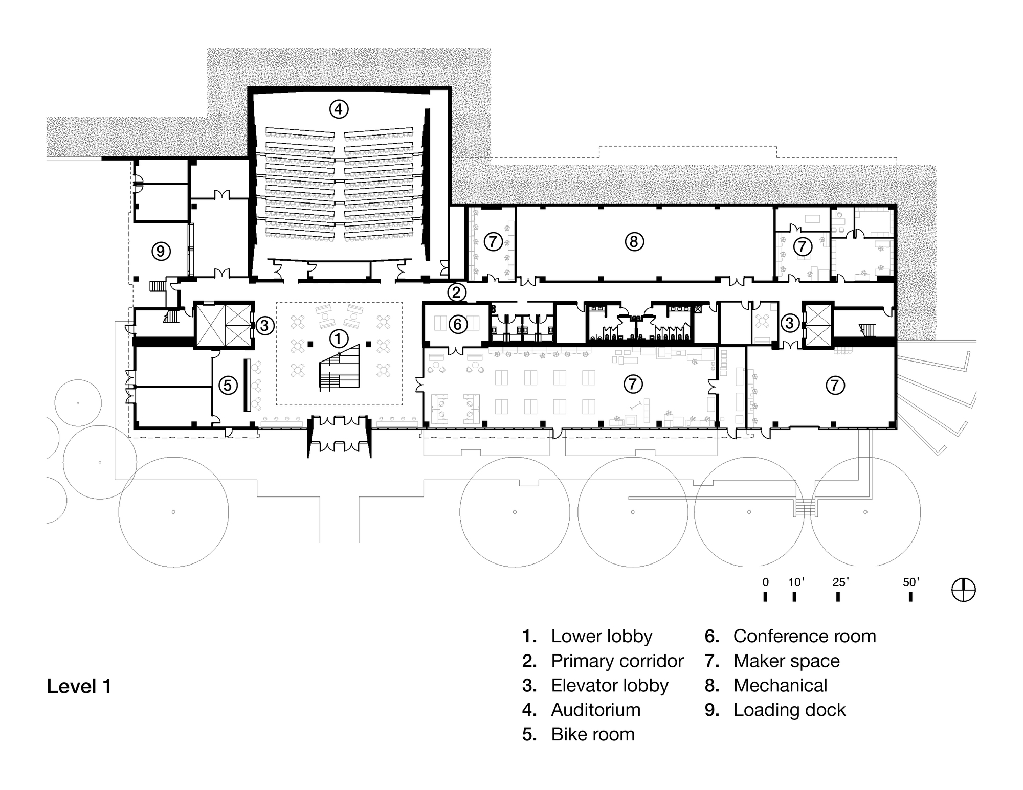
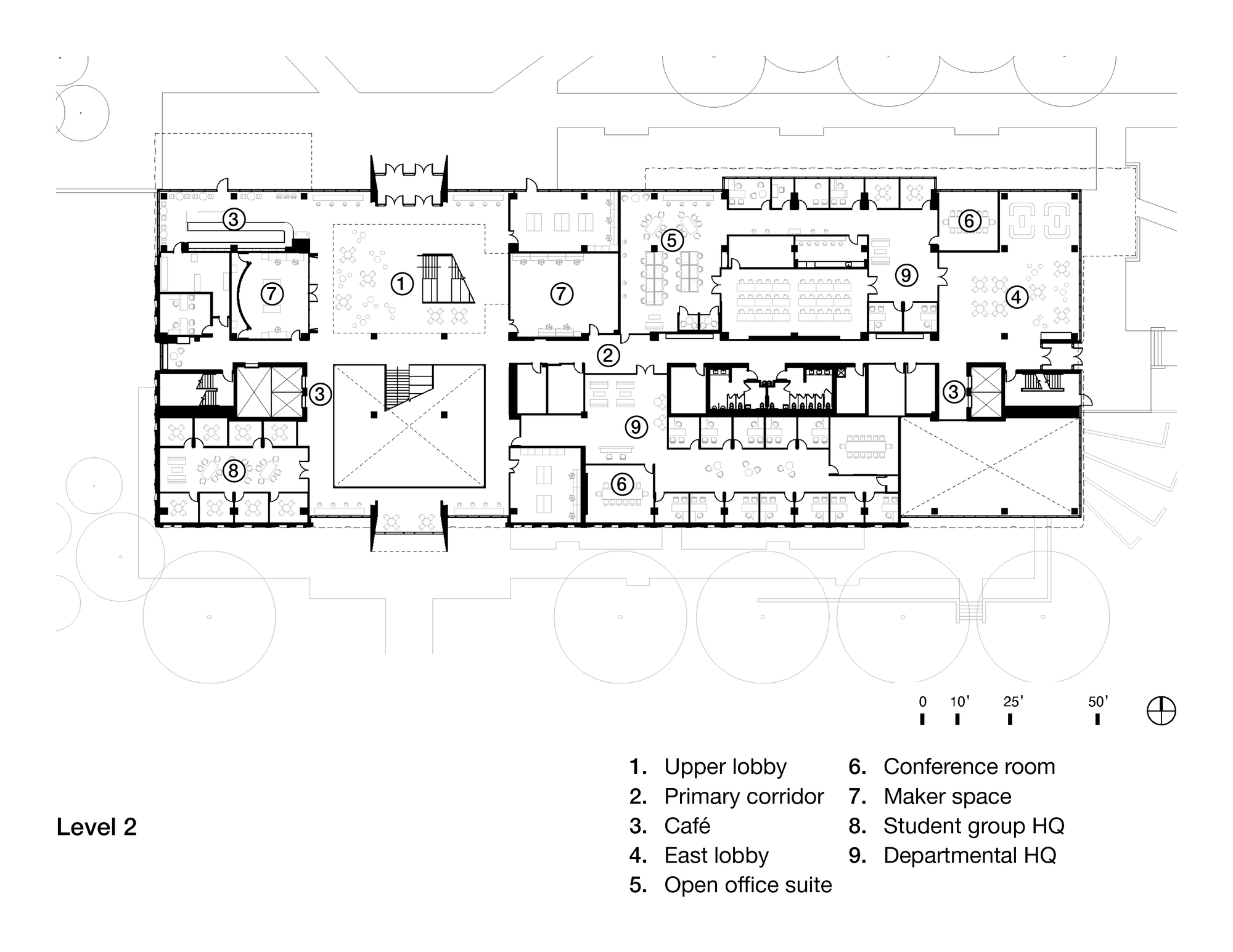
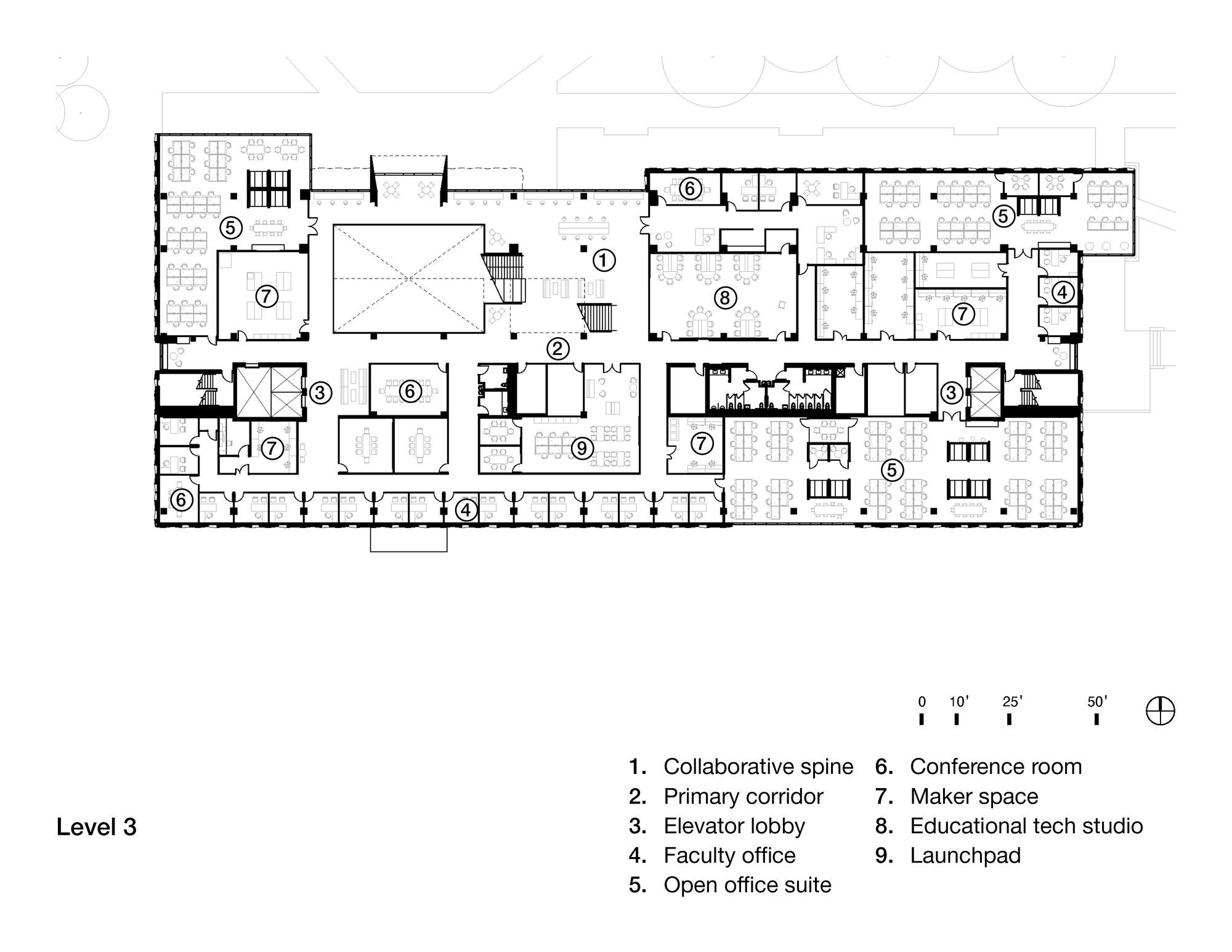
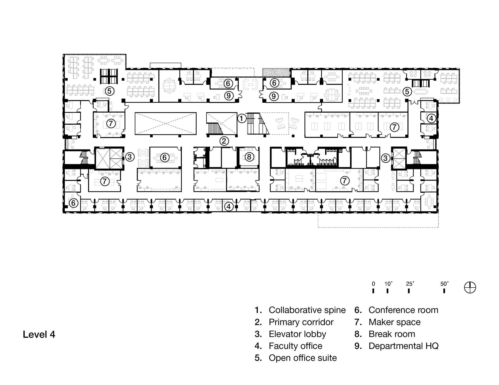
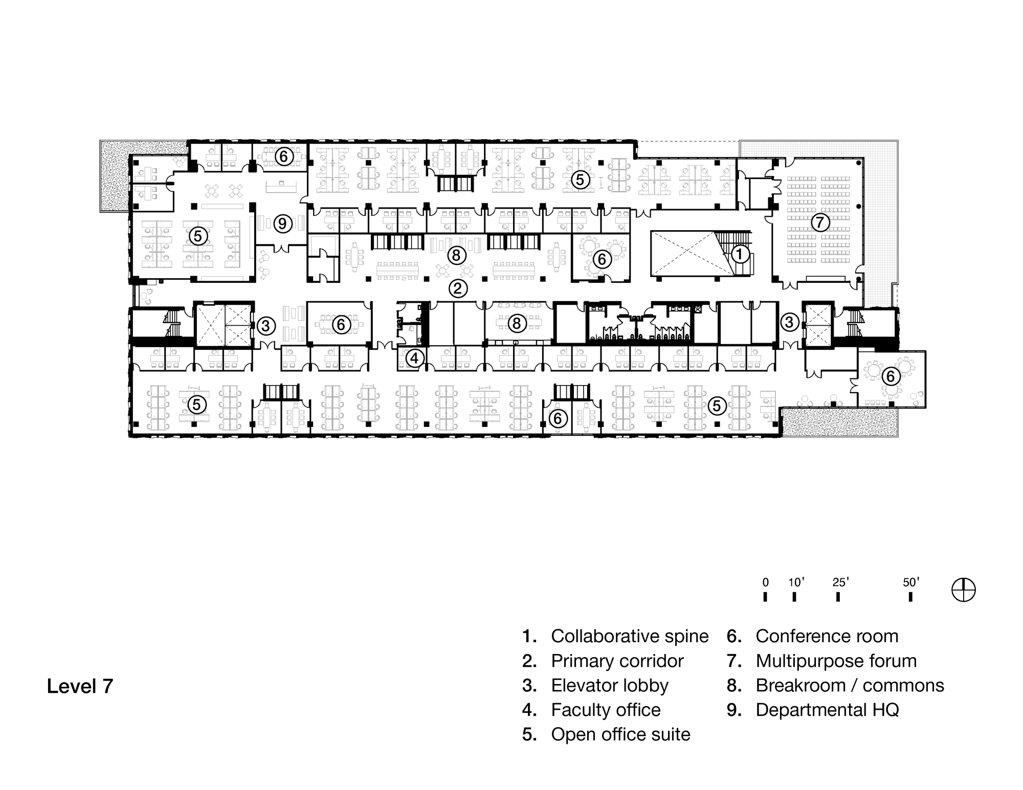
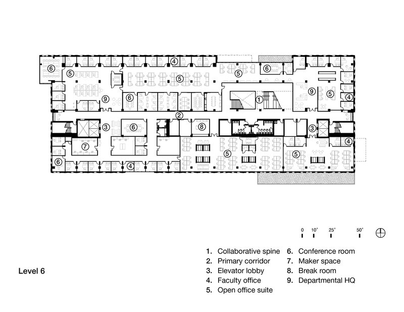
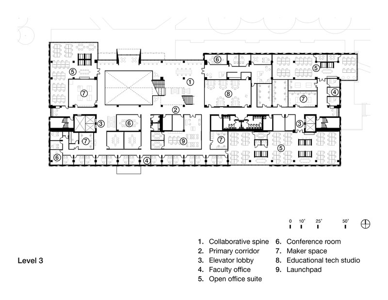
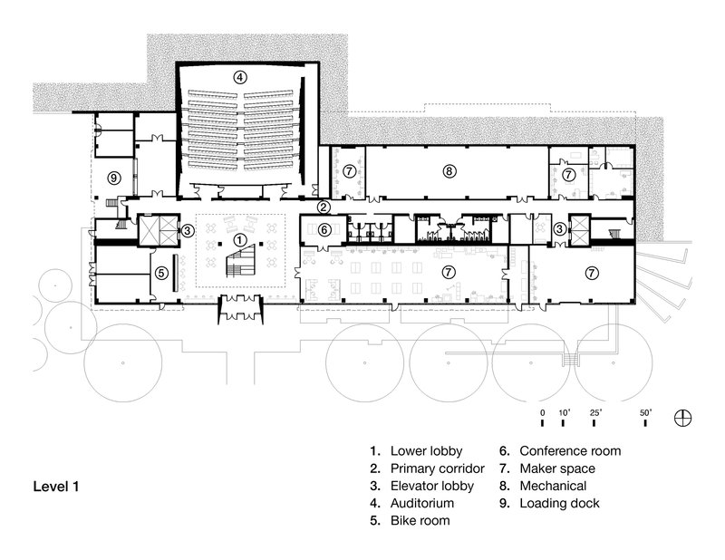
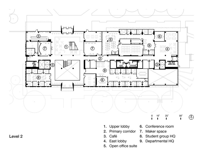
Plans and Drawings









The floor plans reveal the building's organizational logic with clarity. The ground level anchors an auditorium, lobby, and maker areas along a transparent base. Upper floors progress from a café and open office suite on the second level through collaborative spines, faculty offices, and educational studios on the third and fourth, culminating in conference rooms and departmental offices at the top. The primary corridor on every floor runs adjacent to the central atrium, ensuring that vertical and horizontal circulation overlap.
The section drawing is particularly telling. It shows the central atrium as the building's lung, connecting all five floors visually and spatially. Rooftop solar panels cap the composition, an acknowledgment that a building this size in Florida carries real energy obligations. The north elevation confirms the stepped massing: the patterned facade screens wrap the upper volumes while the base recedes behind glass, giving the building a clear top, middle, and bottom.
Why This Project Matters
University buildings for technology programs often fall into one of two traps: either they mimic the corporate campuses of Silicon Valley, all white surfaces and open plans optimized for nothing in particular, or they retreat into generic institutional brick. Malachowsky Hall avoids both. The faceted facade gives it a genuine identity on campus without being willfully strange, and the timber atrium creates the kind of gravitational social space that academic buildings desperately need but rarely achieve.
BCJ's real accomplishment here is calibrating the building's personality to its context. The facade responds to Gainesville's fierce sunlight. The wide stairs and tiered seating respond to the way students actually occupy buildings, in groups, on their own terms, rarely at a desk. The transparent base and generous landscaping respond to a campus culture that lives outdoors for much of the year. None of these moves are radical individually, but together they produce a building that feels considered rather than assembled, and that is rarer than it should be.
Malachowsky Hall for Data Science and Information Technology, University of Florida, by Bohlin Cywinski Jackson. Gainesville, United States. Completed 2024. Photography by Nic Lehoux.
About the Studio
Share Your Own Work on uni.xyz
If projects like this are the kind of work you want to make, uni.xyz is a place to publish your own, find collaborators, and enter design competitions.
Popular Articles
Popular articles from the community
Magic Box Office Barcelona Innovative Sustainable Workplace Design
Innovative sustainable office design featuring triangular form, ceramic façade, flexible interiors, natural light optimization, and creative workspace for modern work culture.
Free Architecture Competitions You Can Enter Right Now
No entry fees, real prizes. Here are the best free architecture competitions open for submissions in 2026.
20 Most Popular Commercial Architecture Projects of 2025
From sustainable market concepts to heritage factories, the commercial buildings and proposals that drew the most attention on uni.xyz this year.
Similar Reads
You might also enjoy these articles
STEM School Mechelen by LAVA Architecten: A Future-Ready Educational Architecture in Belgium
Flexible, sustainable STEM school in Mechelen featuring modular classrooms, acoustic innovation, and energy-efficient design supporting future-focused collaborative learning environments.
Marvila Apartment Renovation in Lisbon: A Bright Minimalist Attic Transformation by KEMA Studio
Bright attic transformed into minimalist Lisbon apartment with skylights, sustainable materials, open plan layout, and industrial-inspired interior design elements.
20 Most Popular Commercial Architecture Projects of 2025
From sustainable market concepts to heritage factories, the commercial buildings and proposals that drew the most attention on uni.xyz this year.
Magic Box Office Barcelona Innovative Sustainable Workplace Design
Innovative sustainable office design featuring triangular form, ceramic façade, flexible interiors, natural light optimization, and creative workspace for modern work culture.
Comments (0)
Please login or sign up to add comments
No comments yet. Be the first to comment!