MARS Architectes Weaves a Cultural Center into the Medieval Fabric of Villefranche-de-Rouergue
A 1,700 square meter cultural hub stitches together scattered civic services inside a cluster of restored stone buildings in southern France.
In Villefranche-de-Rouergue, a bastide town planted in the Aveyron valley in the thirteenth century, the streets still follow their original grid. Terracotta roofs blanket the hillside in tight formation. Inserting anything new here, let alone a 1,700 square meter cultural center, demands a project that is less about addition and more about consolidation. MARS Architectes understood this. La Manufacture does not announce itself with a signature gesture. It absorbs a cluster of existing stone buildings, reconnects them through interior courtyards and mezzanines, and tops the ensemble with a translucent canopy that hovers just below the roofline of its neighbors.
What makes the project genuinely interesting is its refusal to flatten the distinction between old and new. The restored stone walls are left exposed, arched openings kept intact, while timber cladding, perforated metal ceilings, and a steel and glass canopy occupy clearly defined roles as contemporary insertions. The result is a building that consolidates civic services previously scattered across town, from a library and exhibition spaces to a tourist office and reading rooms, without producing the visual noise that cultural facilities of this scale so often generate in historic centers.
Rooftops and Context



Seen from above, the town reads as a continuous crust of terracotta and stone. La Manufacture sits within this crust rather than on top of it. The aerial view reveals how the glazed rooftop addition occupies the interstitial space between existing buildings, its dark canopy calibrated to match the pitch and height of surrounding roofs. At dusk, the illuminated windows betray the presence of something new without disrupting the silhouette.
The decision to work within the town's grain rather than against it is the project's most disciplined move. MARS Architectes treats the roofscape as a collective artifact. The new canopy defers to it.
Stone Facades and Public Thresholds



The street-facing facades retain their masonry character. Irregularly placed windows punctuate the stone, a nod to the organic fenestration patterns found throughout the town rather than an imposed compositional order. At ground level, arched openings serve as the primary public thresholds, drawing visitors in from the narrow plaza that separates the building from its neighbors.
A floating dark roof canopy visible from the street signals the intervention without competing with the stone below it. The architects resist the temptation to over-articulate the entrance. A small tree, a few paving stones, and the arched openings do the work.
The Courtyard as Organizing Device



At the heart of the project lies the courtyard, the spatial DNA of Mediterranean civic architecture repurposed here as both circulation hub and daylight engine. Retained stone walls define the edges while new timber-paneled volumes and a translucent roof overhead transform what was once an open gap between buildings into a protected interior landscape. The steel and glass canopy reads as lightweight scaffolding stretched over the masonry, never pretending to be anything other than an addition.
This courtyard does double duty. It brings light deep into the plan while simultaneously creating a legible center of gravity for a program that could easily have felt like a labyrinth. Two visitors standing beneath the canopy give scale to the intervention: the space is generous without being monumental.
The Timber Atrium



The interior atrium is the project's most photogenic space, and also its most structurally ambitious. A curved timber balcony wraps the central void, its vertical slats filtering views between levels while admitting light from the translucent skylight above. The skylight itself curves in section, creating a lantern effect that washes the stone walls below with even, diffused illumination.
Rotating display towers and a timber reception desk occupy the ground floor, giving the atrium a civic generosity that feels closer to a public market hall than a typical cultural lobby. The perforated white metal ceiling panels suspended beneath the timber structure serve a clear acoustic function while also softening the visual transition between old stone and new wood.
Interior Rooms and Material Contrasts



The individual rooms speak a quieter language. In the reading room, exposed stone walls meet timber ceiling panels in a pairing that feels earned rather than decorative. The library alcove, with its yellow armchair centered beneath an arched window and ribbed ceiling, distills the project's approach to a single frame: the existing geometry of the building dictates the spatial experience, and the new elements furnish it without overwriting it.
Arched openings recur throughout, connecting rooms to the reception areas and maintaining sightlines that reinforce the sense of a single, interconnected institution rather than a collection of isolated programs.
Upper Levels and the Mezzanine



Moving upward, the program shifts from public reception to quieter uses. The mezzanine level, defined by a concrete railing and perforated metal ceiling panels, overlooks the atrium below and keeps the building's vertical dimension active. An upper gallery space with white walls and exposed timber beams hosts exhibition functions, while a wall mural adds a note of informality that prevents the space from feeling sterile.
Outside, the steel canopy extends over a vegetable garden at the building's edge, a modest but meaningful gesture that ties the institution to the agricultural landscape of the Aveyron. It is a detail that most cultural centers would not bother with, and it says something about the priorities of the project.
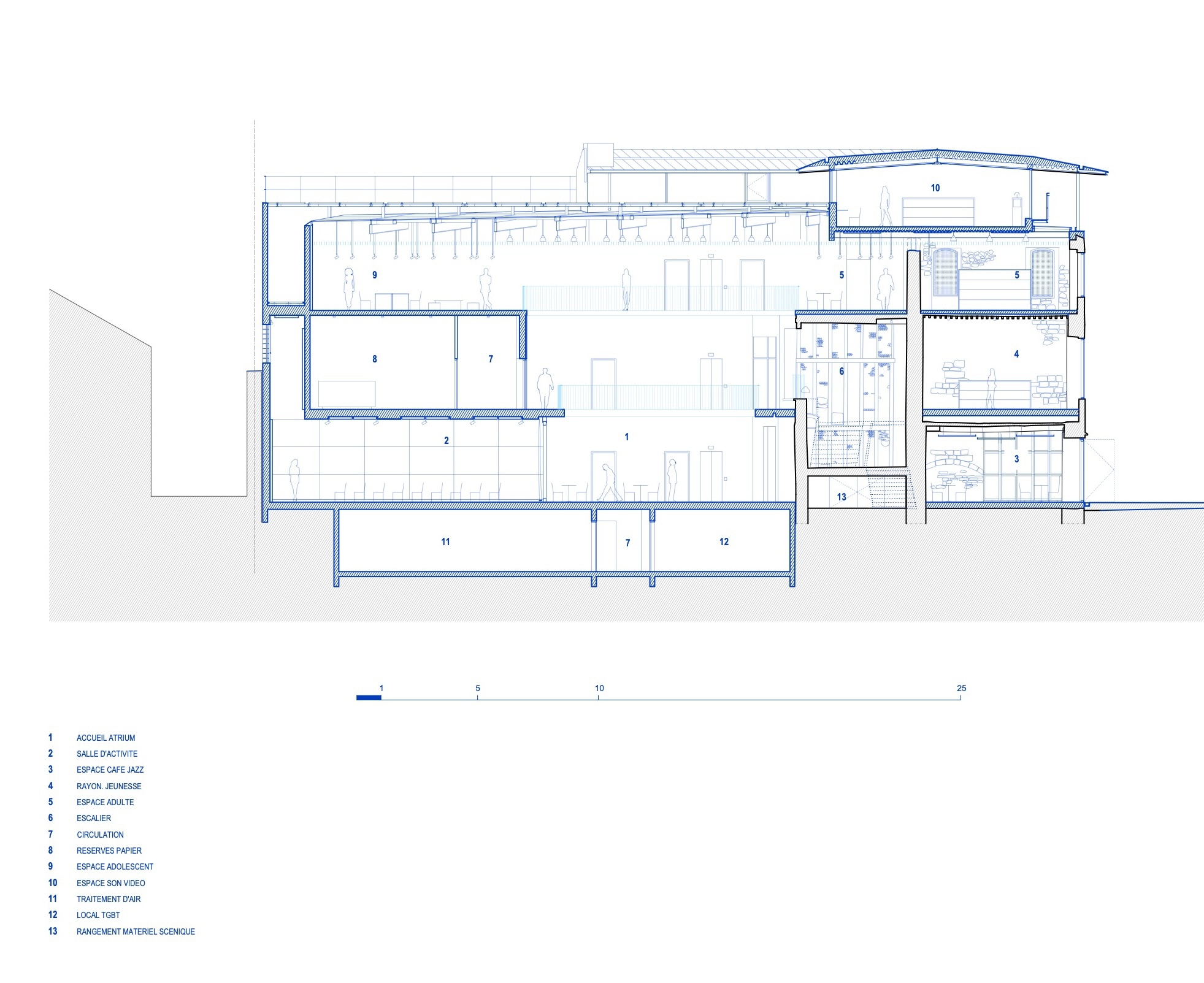
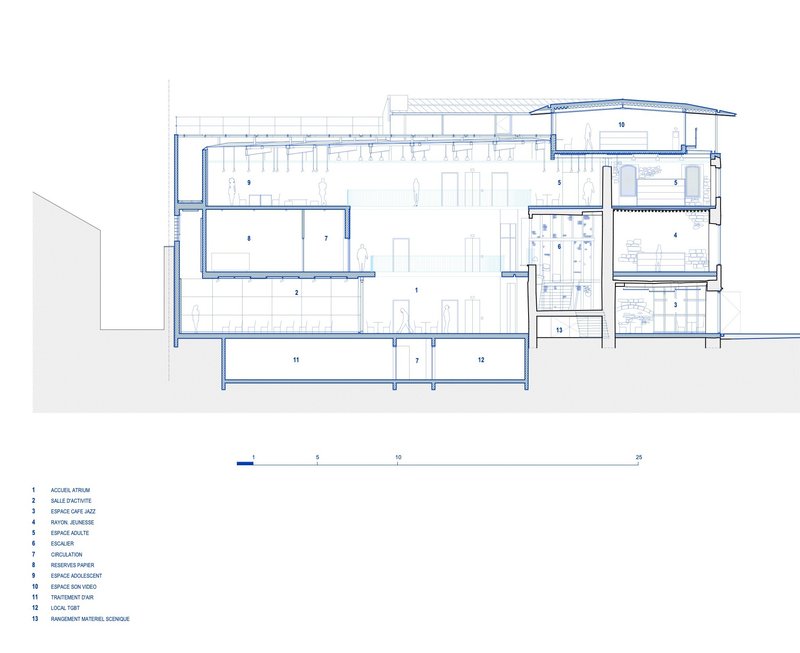
Plans and Drawings












The axonometric drawing is the most revealing document. It stacks five floor plans vertically, making the irregular site boundary and the angled relationship between new and existing volumes legible at a glance. The floor plans show how the program is distributed along the town's angled streets, with an open central hall and stair acting as the connective spine. The gridded courtyard appears repeatedly as the plan's anchor point.
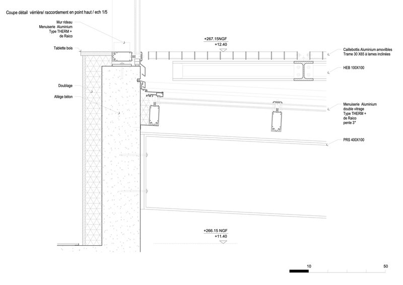
The detail sections deserve attention. They document the steel beam to metal post connections, aluminum cladding assemblies, thermal insulation layers, and acoustic absorbers with a precision that reveals the seriousness behind the project's deceptively simple material palette. The north facade detail, in particular, illustrates how the aluminum cladding, insulation, and drainage are coordinated within a wall thickness that must negotiate the thermal performance demands of contemporary code while maintaining fidelity to the existing masonry.
Why This Project Matters
Cultural centers in historic towns tend to follow one of two scripts: either they defer so completely to context that they become invisible, or they plant a conspicuous contemporary object in the middle of the old fabric and dare the town to accept it. La Manufacture does neither. It occupies the harder middle ground, consolidating scattered civic programs into a single institution that is unmistakably contemporary in its detailing yet deeply embedded in the spatial logic of the bastide.
MARS Architectes has produced a building that respects the collective roofscape, exposes rather than conceals its medieval structure, and introduces new materials only where they serve a clear functional purpose. In a discipline that too often treats heritage as either a constraint to overcome or a skin to mimic, this project treats it as a collaborator. That is a position worth paying attention to.
La Manufacture Cultural Center by MARS Architectes, Villefranche-de-Rouergue, France. 1,700 m². Completed 2023. Photography by Charly Broyez.
About the Studio
Share Your Own Work on uni.xyz
If projects like this are the kind of work you want to make, uni.xyz is a place to publish your own, find collaborators, and enter design competitions.
Popular Articles
Popular articles from the community
Marvila Apartment Renovation in Lisbon: A Bright Minimalist Attic Transformation by KEMA Studio
Bright attic transformed into minimalist Lisbon apartment with skylights, sustainable materials, open plan layout, and industrial-inspired interior design elements.
20 Most Popular Commercial Architecture Projects of 2025
From sustainable market concepts to heritage factories, the commercial buildings and proposals that drew the most attention on uni.xyz this year.
Free Architecture Competitions You Can Enter Right Now
No entry fees, real prizes. Here are the best free architecture competitions open for submissions in 2026.
Similar Reads
You might also enjoy these articles
STEM School Mechelen by LAVA Architecten: A Future-Ready Educational Architecture in Belgium
Flexible, sustainable STEM school in Mechelen featuring modular classrooms, acoustic innovation, and energy-efficient design supporting future-focused collaborative learning environments.
Marvila Apartment Renovation in Lisbon: A Bright Minimalist Attic Transformation by KEMA Studio
Bright attic transformed into minimalist Lisbon apartment with skylights, sustainable materials, open plan layout, and industrial-inspired interior design elements.
20 Most Popular Commercial Architecture Projects of 2025
From sustainable market concepts to heritage factories, the commercial buildings and proposals that drew the most attention on uni.xyz this year.
Magic Box Office Barcelona Innovative Sustainable Workplace Design
Innovative sustainable office design featuring triangular form, ceramic façade, flexible interiors, natural light optimization, and creative workspace for modern work culture.
Comments (0)
Please login or sign up to add comments
No comments yet. Be the first to comment!