Modern Home Renovation: CS Residence by TAKATINA
CS Residence by TAKATINA showcases modern home renovation through material contrast, seamless indoor-outdoor integration, and Japanese-inspired design elements.
A Contemporary Transformation in Cold Spring
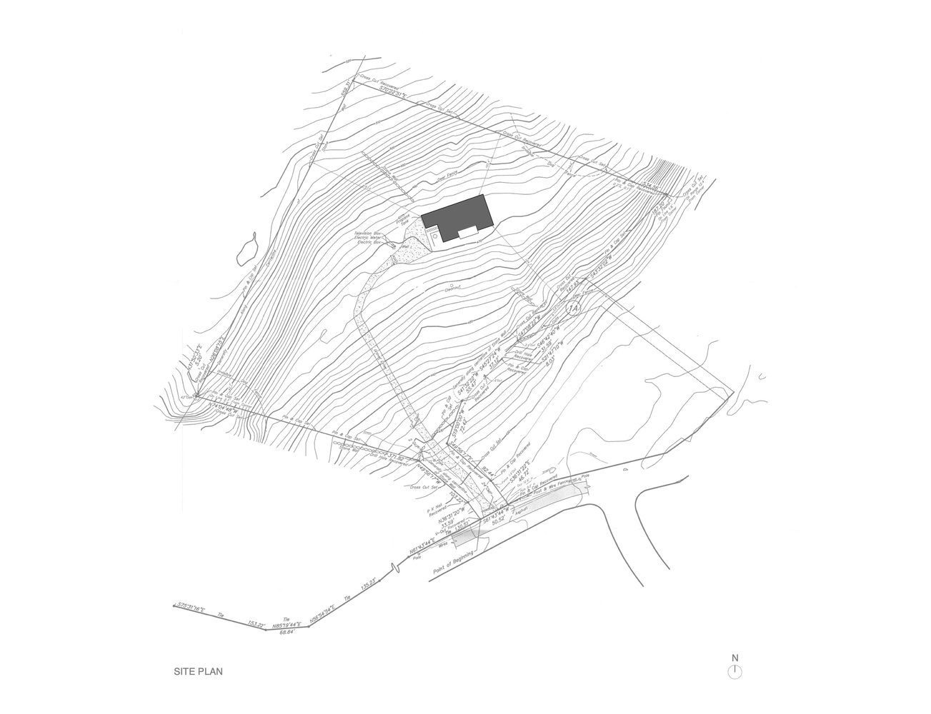
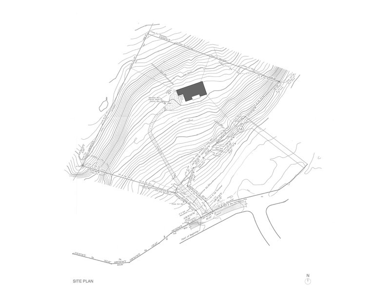
CS Residence, originally built in 2004, has been reimagined through a modern home renovation by TAKATINA. Situated atop a serene hill in Cold Spring, this residence offers sweeping views of a six-acre landscape surrounded by lush greenery. The renovation includes a refined dining pavilion, carefully curated furnishings, and a Japanese-inspired garden pavilion that enhances the entry experience.



A Harmonious Balance of Materials and Design
The approach to the residence is marked by an L-shaped blackened cedar slat fence, creating a visual contrast with the monolithic concrete block walls. This element defines the entrance pathway while providing privacy from the carport. Pietra Royal stepping stones lead to a concealed blackened cedar entrance door, offering glimpses of the garden through the slat fence. The design draws inspiration from traditional Kyoto tea pavilions, crafting a meditative transition into the home.


Expanding Spaces with a Dining Pavilion
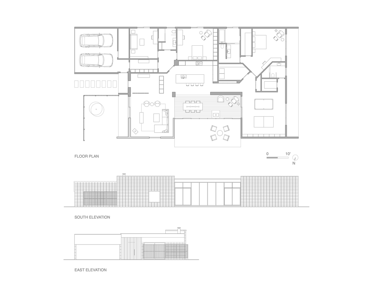
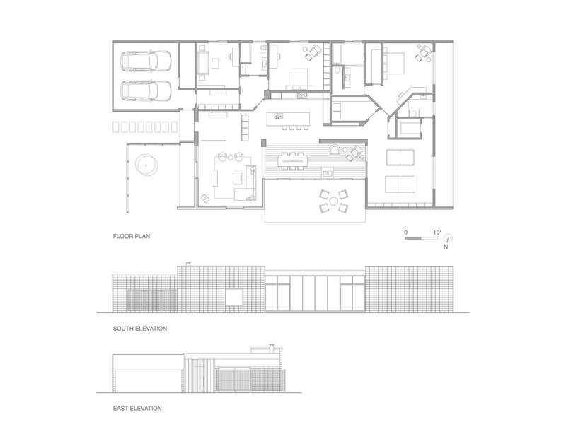
A key feature of the modern home renovation is the transformation of the former sunroom into a striking dining pavilion. Floor-to-ceiling aluminum storefront glass systems maximize southern views while providing access to a newly designed stone garden terrace. Inside, walnut wood flooring contrasts with polished concrete, offering a dynamic material palette. The sculptural Dot pendant light, alongside a shaker firewood stove, adds warmth and texture to the space.



Blurring Boundaries Between Indoors and Outdoors
The garden pavilion extends into the living room, where a sliding door seamlessly connects the two spaces. This integration allows residents to experience seasonal transitions while maintaining a visually cohesive environment. Carefully selected furnishings, including a custom marble coffee table and a chocolate-colored leather sofa, create a balance between warmth and modern minimalism. The gallery-like ambiance is softened by a tactile palette that enhances comfort and sophistication.




A Vision for Timeless Design
TAKATINA's master plan envisions a holistic transformation of CS Residence, with future phases including kitchen and bathroom renovations. By blending natural materials, contemporary aesthetics, and Japanese design influences, this modern home renovation redefines luxury and tranquility. The meticulous attention to detail ensures a living space that is both functional and visually compelling, offering a timeless retreat that evolves with its surroundings.



Popular Articles
Popular articles from the community
Split House: A Compact Urban Home Blending Privacy, Light, and Flexible Living in Japan
Compact Japanese home featuring DOMA space, flexible café potential, passive lighting, privacy zoning, and sustainable urban living design.
Alton Cliff House: A Harmonious Retreat by f2a Architecture in Lake Country, Canada
Alton Cliff House blends corten steel, prefabrication, and sustainable design, creating a luxurious, energy-efficient retreat perched on Canadian cliffs.
Atelier Macri Concept Store Interior Design by CASE-REAL
Atelier Macri store features a "ko" counter, walnut wood details, cork displays, blending retail, gallery, and seamless customer experiences.
Free Architecture Competitions You Can Enter Right Now
No entry fees, real prizes. Here are the best free architecture competitions open for submissions in 2026.
Similar Reads
You might also enjoy these articles
The Ken Roberts Memorial Delineation Competition (Krob)
As the most senior architectural drawing competition currently in operation anywhere in the world, it draws hundreds of entries each year, awarding the very best submissions in a series of medium-based categories.
Waterfront Redevelopment and Urban Revitalization in Mumbai: Forging a New Dawn for Darukhana
A transformative waterfront redevelopment project reimagining Darukhana’s shipbreaking heritage into an inclusive urban future.
OUT-OF-MAP: A Call for Postcards on Feminist Narratives of Public Space
Rhizoma Design and Research Lab invites artists, designers, architects, researchers, and students to reflect on how feminist perspectives can reshape public space. Selected works will be exhibited in Barcelona, October 2026. Submissions open until 15 April 2026.
Documentation Work on Buddhist Wooden Temple
Architectural syncretism and cultural hybridity: A comparative study of the Buddhist temples in Chattogram Hill tracks
Explore Architecture Competitions
Discover active competitions in this discipline
The International Standard for Design Portfolios
The Global Benchmark for Architecture Dissertation Awards
The Global Benchmark for Graduation Excellence
Challenge to reimagine the Iron Throne
Comments (0)
Please login or sign up to add comments
No comments yet. Be the first to comment!