Newcastle East End Mixed-Use Building: Redefining Urban Living in Australia
Newcastle East End by SJB, Durbach Block Jaggers, and TZG redefines urban living with mixed-use design, heritage integration, and civic spaces.
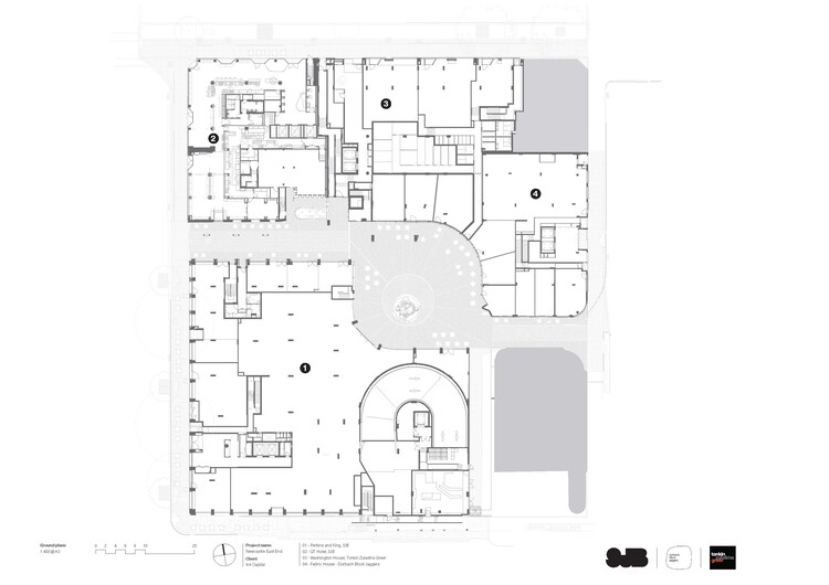
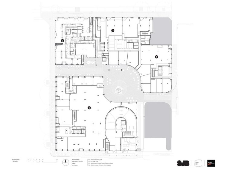
The Newcastle East End Mixed-Use Development, designed collaboratively by SJB, Durbach Block Jaggers, and Tonkin Zulaikha Greer Architects, is a landmark project that reflects the city’s transformation into a vibrant, future-focused urban hub. Completed in 2022, this ambitious project spans 6,556 m² and represents Stage 1 of the East End redevelopment, setting a new standard for sustainable architecture, heritage integration, and mixed-use design in Newcastle, Australia.

A New Chapter for Newcastle’s Urban Identity
Newcastle, historically known for its industrial character, has undergone a dramatic reinvention. With urban renewal projects shaping its future, the East End redevelopment stands as a symbol of urban regeneration, cultural diversity, and architectural excellence. The three mixed-use buildings, each designed by one of Australia’s leading architecture firms, contribute to a dynamic cityscape that blends history with contemporary living.
The architects were selected for their ability to navigate complex heritage contexts while delivering modern, community-driven spaces. Their shared vision was to create a protected civic space at the site’s heart, fostering urban diversity, public interaction, and livability.


Design Vision: Blending Heritage with Modernity
The project’s design approach was deeply rooted in respect for Newcastle’s historic fabric while embracing modern design principles. Through extensive collaboration with the Newcastle City Council’s Urban Design Consultative Group, the architectural teams refined the master plan to ensure the buildings complemented the local context and cultural identity.
Instead of rigidly following the original master plan, the architects proposed more flexible strategies that allowed the project to evolve with the city. This led to innovative solutions in building form, materiality, and urban connections, making the East End development a benchmark for regional urban growth across New South Wales (NSW).


Functionality and Mixed-Use Integration
The Newcastle East End development seamlessly integrates residential, commercial, and civic functions, offering a lifestyle where people can live, work, and socialize within one urban ecosystem. The mixed-use design not only supports housing but also enhances the retail and commercial fabric, attracting new businesses while serving the local community.
The development’s arcades, facades, and urban interiors are designed to create a strong pedestrian experience, linking the site with the wider city. Open spaces, retail arcades, and cultural amenities ensure that the project remains inclusive, vibrant, and connected to Newcastle’s evolving identity.


Collaborative Architectural Process
One of the defining aspects of this project is its collaborative design process. SJB acted as the Executive Architect, coordinating with Durbach Block Jaggers and Tonkin Zulaikha Greer Architects to bring diverse architectural perspectives into one cohesive master vision. This collaborative framework, along with active participation from Newcastle City Council, allowed the team to balance innovation with sensitivity to heritage and community needs.


A Model for Future Urban Development
The success of Stage 1 of the Newcastle East End redevelopment demonstrates how regional cities in Australia can embrace rapid urban growth without losing their cultural depth and historic identity. By prioritizing design excellence, community consultation, and sustainable mixed-use strategies, the project sets a precedent for future large-scale urban developments across NSW and beyond.
This is more than just a mixed-use building—it is a blueprint for how cities can grow sustainably, inclusively, and beautifully.


All the photographs are works of Tom Roe
Popular Articles
Popular articles from the community
Free Architecture Competitions You Can Enter Right Now
No entry fees, real prizes. Here are the best free architecture competitions open for submissions in 2026.
Inverted Architecture Installation by Studio Link-Arc: Exploring the Intersection of Architecture and Living Organisms
Inverted Architecture Installation by Studio Link-Arc blends mycelium, sustainability, inverted design, ecological cycles, and urban adaptive architecture in Shenzhen.
Atelier Macri Concept Store Interior Design by CASE-REAL
Atelier Macri store features a "ko" counter, walnut wood details, cork displays, blending retail, gallery, and seamless customer experiences.
The Ken Roberts Memorial Delineation Competition (Krob)
As the most senior architectural drawing competition currently in operation anywhere in the world, it draws hundreds of entries each year, awarding the very best submissions in a series of medium-based categories.
Similar Reads
You might also enjoy these articles
The Ken Roberts Memorial Delineation Competition (Krob)
As the most senior architectural drawing competition currently in operation anywhere in the world, it draws hundreds of entries each year, awarding the very best submissions in a series of medium-based categories.
Waterfront Redevelopment and Urban Revitalization in Mumbai: Forging a New Dawn for Darukhana
A transformative waterfront redevelopment project reimagining Darukhana’s shipbreaking heritage into an inclusive urban future.
OUT-OF-MAP: A Call for Postcards on Feminist Narratives of Public Space
Rhizoma Design and Research Lab invites artists, designers, architects, researchers, and students to reflect on how feminist perspectives can reshape public space. Selected works will be exhibited in Barcelona, October 2026. Submissions open until 15 April 2026.
Documentation Work on Buddhist Wooden Temple
Architectural syncretism and cultural hybridity: A comparative study of the Buddhist temples in Chattogram Hill tracks
Explore Architecture Competitions
Discover active competitions in this discipline
The International Standard for Design Portfolios
The Global Benchmark for Architecture Dissertation Awards
The Global Benchmark for Graduation Excellence
Challenge to design mud housing for contemporary communities
Comments (0)
Please login or sign up to add comments
No comments yet. Be the first to comment!