Nirvana House: A Masterpiece of Sustainable Residential Architecture
Nirvana House redefines sustainable residential architecture by seamlessly integrating nature, passive design, and timeless materials for a harmonious living experience.
A Harmonious Blend of Nature and Design
Nestled in the scenic landscape of Pilar, Buenos Aires, Nirvana House by AtelierM is a striking example of sustainable residential architecture. Positioned facing a serene polo field, this residence is designed to integrate effortlessly with its natural surroundings. The architectural vision extends beyond aesthetics, embracing sustainability, passive design strategies, and a seamless relationship between indoor and outdoor spaces.




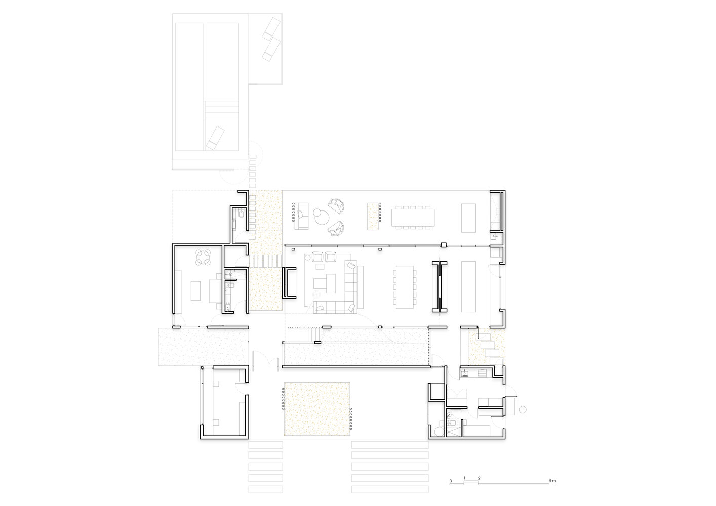
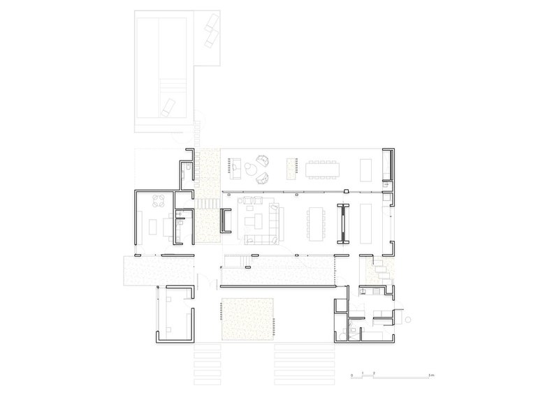
A Three-Level Garden Home
Inspired by the site's topography, Nirvana House is conceived as a three-level garden, where the built form and natural elements coexist in perfect harmony. The architectural layout prioritizes openness, incorporating expansive glass surfaces that dissolve the barriers between interior and exterior. Lush greenery weaves through the structure, creating a dynamic connection between human habitation and nature. A central water pond further enhances the sense of tranquility, reflecting both the sky and the house itself, reinforcing the dialogue between architecture and landscape.





Materials and Design Philosophy
The house is crafted with a refined palette of noble materials, including concrete and wood, chosen for their durability and ability to age gracefully over time. The smooth lines and organic textures contribute to a minimalist yet warm aesthetic, celebrating the raw beauty of natural elements. These materials not only ensure longevity but also minimize maintenance, aligning with the project's ecological commitment.





Spatial Organization: A Balance of Public and Private Realms
The architectural program of Nirvana House is carefully divided into distinct functional zones. The ground floor is dedicated to social interaction, featuring an open-plan living, dining, and kitchen area. Large openings allow for uninterrupted views of the landscape, while natural ventilation and daylighting reduce the need for artificial climate control. The upper level is a sanctuary of privacy, housing bedrooms that offer panoramic views, promoting rest and contemplation in a serene setting.



Sustainability at the Core
At its essence, Nirvana House embodies sustainable residential architecture, employing passive design strategies to optimize energy efficiency. The strategic positioning of windows and openings maximizes cross-ventilation, reducing the reliance on mechanical cooling systems. Thoughtfully oriented to capture natural light, the house minimizes the use of artificial lighting, lowering energy consumption. These elements, combined with the integration of native vegetation, contribute to a self-sustaining ecosystem that enhances the home's environmental performance.


A Living Experience Beyond Traditional Architecture
More than a residence, Nirvana House offers an experiential approach to living, where architecture becomes an extension of its environment. The home is designed to adapt to the changing seasons, allowing occupants to experience the shifting light, textures, and natural rhythms of the landscape. Every design decision reflects a commitment to sustainability, elevating the relationship between built space and nature.




A Vision for Future Sustainable Homes
Nirvana House stands as an exemplary model of sustainable residential architecture, where nature and design exist in perfect balance. By prioritizing ecological integration, passive strategies, and timeless materials, this project paves the way for future homes that not only respect their surroundings but actively enhance them. It is a testament to the idea that architecture, when designed with intention, can foster harmony between human living and the natural world.




All Photographs are works of AtelierM
Popular Articles
Popular articles from the community
Inverted Architecture Installation by Studio Link-Arc: Exploring the Intersection of Architecture and Living Organisms
Inverted Architecture Installation by Studio Link-Arc blends mycelium, sustainability, inverted design, ecological cycles, and urban adaptive architecture in Shenzhen.
Alton Cliff House: A Harmonious Retreat by f2a Architecture in Lake Country, Canada
Alton Cliff House blends corten steel, prefabrication, and sustainable design, creating a luxurious, energy-efficient retreat perched on Canadian cliffs.
Free Architecture Competitions You Can Enter Right Now
No entry fees, real prizes. Here are the best free architecture competitions open for submissions in 2026.
Similar Reads
You might also enjoy these articles
The Ken Roberts Memorial Delineation Competition (Krob)
As the most senior architectural drawing competition currently in operation anywhere in the world, it draws hundreds of entries each year, awarding the very best submissions in a series of medium-based categories.
Waterfront Redevelopment and Urban Revitalization in Mumbai: Forging a New Dawn for Darukhana
A transformative waterfront redevelopment project reimagining Darukhana’s shipbreaking heritage into an inclusive urban future.
OUT-OF-MAP: A Call for Postcards on Feminist Narratives of Public Space
Rhizoma Design and Research Lab invites artists, designers, architects, researchers, and students to reflect on how feminist perspectives can reshape public space. Selected works will be exhibited in Barcelona, October 2026. Submissions open until 15 April 2026.
Documentation Work on Buddhist Wooden Temple
Architectural syncretism and cultural hybridity: A comparative study of the Buddhist temples in Chattogram Hill tracks
Explore Architecture Competitions
Discover active competitions in this discipline
The International Standard for Design Portfolios
The Global Benchmark for Architecture Dissertation Awards
The Global Benchmark for Graduation Excellence
Challenge to reimagine the Iron Throne
Comments (0)
Please login or sign up to add comments
No comments yet. Be the first to comment!