Nyckelviksskolan Extension: A Masterpiece of Contemporary Brick Architecture
Nyckelviksskolan’s new extension by Marge Arkitekter showcases contemporary brick architecture, blending tradition with modern design for educational creativity.
Blending Tradition with Modernity
Nyckelviksskolan, an esteemed institution on Lidingö in Sweden, has been a hub for art, crafts, architecture, and design education since 1955. With growing demand for expanded facilities, Marge Arkitekter designed an extension that seamlessly integrates with the existing school while establishing a distinct contemporary identity. This architectural intervention embodies contemporary brick architecture, redefining how educational spaces embrace both tradition and innovation.



A Sculptural Brick Monolith
The new extension serves as a connecting element between the original plaster and brick structures, adding a bold yet harmonious layer to the campus. Designed as a sculptural brick monolith, the volume is carefully chiseled with expansive, wooden-framed glass openings, allowing natural light to penetrate deep into the interiors. Its east-facing entrance creates an inviting presence, while its strategic placement fosters a cohesive dialogue with the surrounding buildings.


Materiality and Structural Integrity
The extension’s façade features site-laid bricks in varying red tones, creating a dynamic, textured surface that respects the historical essence of the school. The hybrid structural system combines prefabricated concrete and steel, while glulam beams frame the studio’s roof lights. This blend of materials ensures durability, aesthetic refinement, and a strong connection to the existing architectural language.




Designed for Artistic Exploration
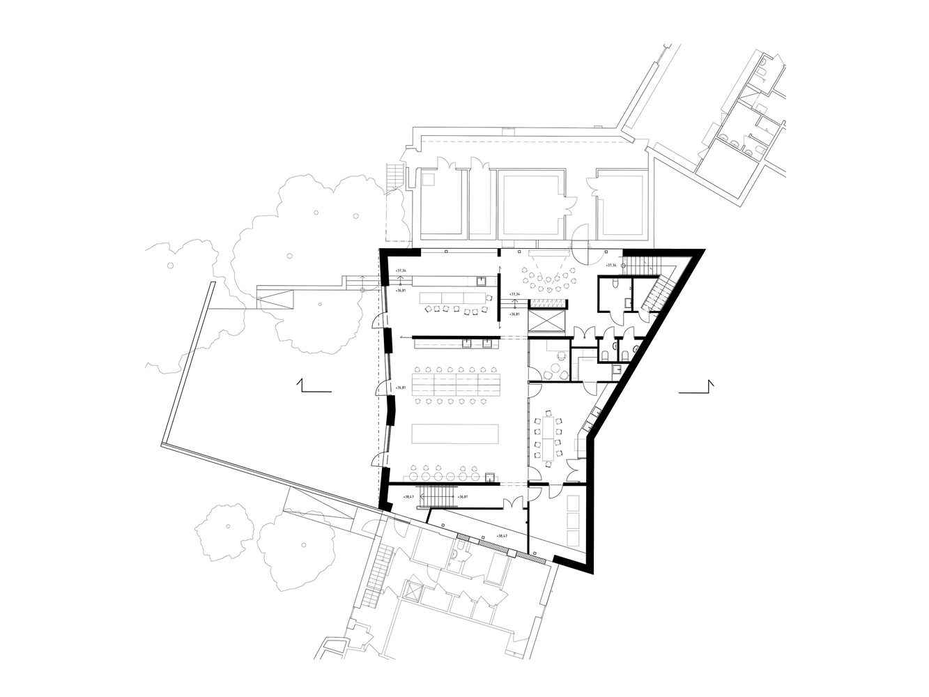
Dedicated to ceramic and sculpture workshops, the new space is meticulously designed to support creative learning. A souterrain level opens to an outdoor teaching area, fostering an immersive environment where students can seamlessly transition between indoor and outdoor artistic practices. Skylights in the sculpture studios flood the spaces with diffused natural light, enhancing the ambiance and functionality of the workspace.


A Future-Forward Approach to Brick Architecture
Nyckelviksskolan’s extension exemplifies how contemporary brick architecture can be both contextual and forward-thinking. By respecting its historical surroundings while introducing modern spatial concepts, the project sets a new standard for educational architecture. Through material innovation and strategic design, the extension embodies a timeless approach to integrating new and old, proving that brick remains a versatile and enduring element in modern architecture.



All Photographs are works of Johan Fowelin
Popular Articles
Popular articles from the community
Free Architecture Competitions You Can Enter Right Now
No entry fees, real prizes. Here are the best free architecture competitions open for submissions in 2026.
The Ken Roberts Memorial Delineation Competition (Krob)
As the most senior architectural drawing competition currently in operation anywhere in the world, it draws hundreds of entries each year, awarding the very best submissions in a series of medium-based categories.
Gads Hill Early Learning Center by JGMA: Adaptive Reuse Shaping Community-Focused Educational Architecture
Adaptive reuse transforms fragmented structure into vibrant early learning center with playful façade, natural light, and community-focused sustainable design.
Similar Reads
You might also enjoy these articles
The Ken Roberts Memorial Delineation Competition (Krob)
As the most senior architectural drawing competition currently in operation anywhere in the world, it draws hundreds of entries each year, awarding the very best submissions in a series of medium-based categories.
Waterfront Redevelopment and Urban Revitalization in Mumbai: Forging a New Dawn for Darukhana
A transformative waterfront redevelopment project reimagining Darukhana’s shipbreaking heritage into an inclusive urban future.
OUT-OF-MAP: A Call for Postcards on Feminist Narratives of Public Space
Rhizoma Design and Research Lab invites artists, designers, architects, researchers, and students to reflect on how feminist perspectives can reshape public space. Selected works will be exhibited in Barcelona, October 2026. Submissions open until 15 April 2026.
Documentation Work on Buddhist Wooden Temple
Architectural syncretism and cultural hybridity: A comparative study of the Buddhist temples in Chattogram Hill tracks
Explore Architecture Competitions
Discover active competitions in this discipline
The International Standard for Design Portfolios
The Global Benchmark for Architecture Dissertation Awards
The Global Benchmark for Graduation Excellence
Challenge to reimagine the Iron Throne
Comments (0)
Please login or sign up to add comments
No comments yet. Be the first to comment!