Residential Buildings in Xueshan Village By DL Atelier
Residential Buildings in Xueshan Village by DL Atelier create a flexible hybrid home integrating living, working, sustainability, and community at Beijing’s urban-rural edge.
Located in Xueshan Village, Changping District, Beijing, this residential project by DL Atelier sits at the intersection of urban accessibility and rural flexibility. Just 30 minutes from Beijing’s Second Ring Road, the site occupies a strategic position within the city’s expanding fringe—where new lifestyles, working patterns, and spatial experiments are actively emerging.
Commissioned by a homeowner with evolving needs, the project was conceived not as a fixed residence but as a multi-functional architectural prototype. Designed to accommodate residential living, office use, exhibition space, workshops, and future rental potential, the building explores how architecture can adapt over time while remaining economical, sustainable, and contextually responsive.



A Flexible Program Rooted in Change
At the outset, the homeowner envisioned three possible futures for the site:
- A second home for family use
- A design office for long-term professional work
- A rental or income-generating property
Rather than selecting a single path, DL Atelier embraced all three. The result is a highly adaptable building that allows work, living, production, and community interaction to coexist. This flexibility is embedded not only in the spatial layout but also in circulation, access points, and structural logic.
The architects describe the project as reminiscent of a handcrafted combination cabinet from 1980s China—a modular object capable of holding diverse functions within a compact form. This metaphor guided the design’s layered organization and neutral architectural language.



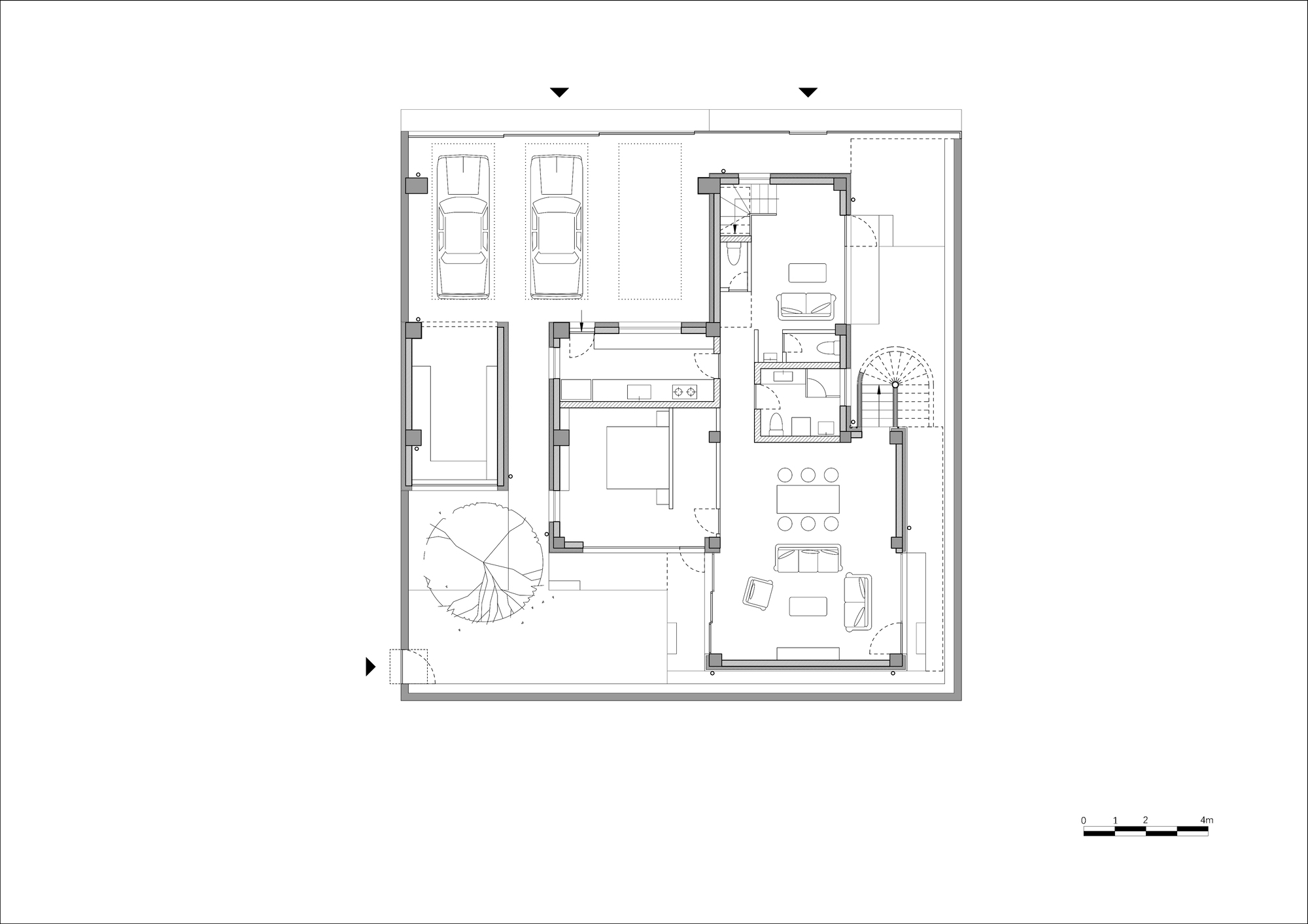
Reversing the Courtyard Typology
Challenging traditional rural housing models where buildings surround a central courtyard, the architects concentrated the building at the center of the plot, allowing a sequence of courtyards, terraces, and rooftop platforms to wrap around it. This strategy ensures that every room has direct access to outdoor space, supporting gardening, daylight, cross-ventilation, and privacy.
The stepped building form introduces terraces for upper-level bedrooms, while raised courtyard walls maintain visual separation from neighboring plots. Carefully positioned entrances further distinguish residential, office, and workshop functions, allowing independent or combined use as required.



Living, Working, and Making—Under One Roof
The ground floor functions as a fluid public zone, seamlessly connecting indoor spaces with the courtyard. Initially designed as a living area, it now operates as an exhibition and display space, reflecting the homeowner’s evolving professional focus.
A three-car garage and workshop occupy the street-facing edge, accommodating automotive work, woodworking, and 3D printing. Importantly, this productive zone remains acoustically and spatially separated from the living quarters, ensuring comfort without sacrificing functionality.
Upper levels accommodate bedrooms and open-plan workspaces, capable of hosting over ten people. Independent staircases, entrances, and restrooms allow office operations to function autonomously, reinforcing the building’s hybrid character.



Passive Design and Energy Efficiency
Sustainability is not an aesthetic gesture but a core operational principle. The building adopts passive energy-saving strategies, including optimized insulation, courtyard-mediated ventilation, and climate-responsive window placement. Courtyard walls of varying heights shield against winter winds while promoting summer airflow.
Rainwater management plays a central role. Drawing on the homeowner’s expertise, the project integrates rainwater harvesting, infiltration, and reuse systems into both the courtyard and rooftop landscape. Permeable paving, green roofs, and experimental planting beds transform the building into a living research platform for landscape and water systems.


A Neutral Architecture for Replication
Formally restrained and economically constructed, the building avoids excessive personalization. Its utilitarian concrete structure, modular logic, and adaptable layout make it suitable for replication across similar urban–rural contexts. This neutrality enables future transformations—from private home to shared office, from exhibition venue to rental property—without architectural compromise.


Toward a New Rural Lifestyle Model
More than a single house, this project proposes a new lifestyle paradigm for China’s urban fringe. By merging living, working, making, and community engagement, it responds to the realities of remote work, freelance economies, and flexible careers.
DL Atelier envisions this project as the first node in an organically growing micro-community, where adjacent plots gradually connect, shared amenities emerge, and village life evolves without erasing its rural character. Planned additions such as shuttle services, cafés, and local markets aim to further bridge urban convenience with countryside affordability.


Architecture as Social Experiment
Residential Buildings in Xueshan Village is not positioned as a final solution, but as a critical architectural proposition—one that questions conventional housing models and explores how architecture can support future societal shifts. It is simultaneously a home, an office, an exhibition, and a community space—an experiment grounded in reality, adaptability, and long-term value.

All the photographs are works of Yumeng Zhu
Popular Articles
Popular articles from the community
Inverted Architecture Installation by Studio Link-Arc: Exploring the Intersection of Architecture and Living Organisms
Inverted Architecture Installation by Studio Link-Arc blends mycelium, sustainability, inverted design, ecological cycles, and urban adaptive architecture in Shenzhen.
Free Architecture Competitions You Can Enter Right Now
No entry fees, real prizes. Here are the best free architecture competitions open for submissions in 2026.
The Ken Roberts Memorial Delineation Competition (Krob)
As the most senior architectural drawing competition currently in operation anywhere in the world, it draws hundreds of entries each year, awarding the very best submissions in a series of medium-based categories.
Similar Reads
You might also enjoy these articles
The Ken Roberts Memorial Delineation Competition (Krob)
As the most senior architectural drawing competition currently in operation anywhere in the world, it draws hundreds of entries each year, awarding the very best submissions in a series of medium-based categories.
Waterfront Redevelopment and Urban Revitalization in Mumbai: Forging a New Dawn for Darukhana
A transformative waterfront redevelopment project reimagining Darukhana’s shipbreaking heritage into an inclusive urban future.
OUT-OF-MAP: A Call for Postcards on Feminist Narratives of Public Space
Rhizoma Design and Research Lab invites artists, designers, architects, researchers, and students to reflect on how feminist perspectives can reshape public space. Selected works will be exhibited in Barcelona, October 2026. Submissions open until 15 April 2026.
Documentation Work on Buddhist Wooden Temple
Architectural syncretism and cultural hybridity: A comparative study of the Buddhist temples in Chattogram Hill tracks
Explore Architecture Competitions
Discover active competitions in this discipline
The International Standard for Design Portfolios
The Global Benchmark for Architecture Dissertation Awards
The Global Benchmark for Graduation Excellence
Challenge to design mud housing for contemporary communities
Comments (0)
Please login or sign up to add comments
No comments yet. Be the first to comment!